Property
Account |
| Property ID: | 16929 | Abbreviated Legal Description: | 35-7-35 TAX 20A |
| Parcel Number: | 350735440043 | Agent Code: | |
| Type: | Real | | |
| Tax Area: | 75 - CP 250 | Land Use Code | 11 |
| Open Space: | N | DFL | N |
| Historic Property: | N | Remodel Property: | N |
| Multi-Family Redevelopment: | N | | |
| Township: | 7 | Section: | 35 |
| Range: | 35 |
Location |
| Address: | 1227 SW BADE AVE WA 99324 | Mapsco: | |
| Neighborhood: | A SFR | Map ID: | |
| Neighborhood CD: | 113011 |
Owner |
| Name: | GUSTIN PATRICIA JO | Owner ID: | 57973 |
| Mailing Address: | 1227 SW BADE AVE COLLEGE PLACE, WA 99324 | % Ownership: | 100.0000000000% |
| | | Exemptions: | |
Taxes and Assessment Details
Values
| (+) Improvement Homesite Value: | + | $0 | |
| (+) Improvement Non-Homesite Value: | + | $231,320 | |
| (+) Land Homesite Value: | + | $0 | |
| (+) Land Non-Homesite Value: | + | $44,750 | |
| (+) Curr Use (HS): | + | $0 | $0 |
| (+) Curr Use (NHS): | + | $0 | $0 |
| | | -------------------------- | |
| (=) Market Value: | = | $276,070 | |
| (–) Productivity Loss: | – | $0 | |
| | | -------------------------- | |
| (=) Subtotal: | = | $276,070 | |
| (+) Senior Appraised Value: | + | $0 | |
| (+) Non-Senior Appraised Value: | + | $276,070 | |
| | | -------------------------- | |
| (=) Total Appraised Value: | = | $276,070 | |
| (–) Senior Exemption Loss: | – | $0 | |
| (–) Exemption Loss: | – | $0 | |
| | | -------------------------- | |
| (=) Taxable Value: | = | $276,070 | |
Taxing Jurisdiction
| Owner: | GUSTIN PATRICIA JO | | |
| % Ownership: | 100.0000000000% | | |
| Total Value: | $276,070 | | |
| Tax Area: | 75 - CP 250 |
| CERFD | CURRENT EXPENSE REFUND 010 | 0.0000000000 | $276,070 | $276,070 | $0.00 | | |
| CURREXP | CURRENT EXPENSE 010 | 1.0175366760 | $276,070 | $276,070 | $280.91 | | |
| HUMNSERV | HUMAN SERVICES 119 | 0.0250000000 | $276,070 | $276,070 | $6.90 | | |
| SLDREL | SOLDIERS RELIEF 121 | 0.0155990005 | $276,070 | $276,070 | $4.31 | | |
| COLLPLBOND | C OF CP BOND 644 | 0.4374241808 | $276,070 | $276,070 | $120.76 | | |
| COLLPLGEN | CITY OF CP 632 | 1.4453819216 | $276,070 | $276,070 | $399.03 | | |
| EMERGSER | EMS 147 | 0.3792580840 | $276,070 | $276,070 | $104.70 | | |
| EMSRFD | EMS REFUND 147 | 0.0000000000 | $276,070 | $276,070 | $0.00 | | |
| RURALLIB | RURAL LIBRARY 623 | 0.3710609029 | $276,070 | $276,070 | $102.44 | | |
| PORTRFD | PORT REFUND 640 | 0.0000000000 | $276,070 | $276,070 | $0.00 | | |
| PORTWWGEN | PORT OF WW 640 | 0.2460186015 | $276,070 | $276,070 | $67.92 | | |
| SD250BOND | SD #250 BOND 773 | 1.4560608159 | $276,070 | $276,070 | $401.97 | | |
| SD250GEN | SD #250 GENERAL 770 | 2.3880724087 | $276,070 | $276,070 | $659.28 | | |
| ST2 | STATE SCHOOL PART 2 600 | 0.8131451643 | $276,070 | $276,070 | $224.48 | | |
| STATESCHL | STATE SCHOOL 600 | 1.5158548041 | $276,070 | $276,070 | $418.48 | | |
| STREFUND | STATE REFUND LEVY 603 | 0.0000000000 | $276,070 | $276,070 | $0.00 | | |
| | Total Tax Rate: | 10.1104125603 | | | | | |
| | | | | Taxes w/Current Exemptions: | $2,791.18 | | |
| | | | | Taxes w/o Exemptions: | $2,791.18 | | |
Improvement / Building
| Improvement #1: | RESIDENTIAL | State Code: | 11 | 912.0 sqft | Value: | $231,320 |
| Exterior Wall: | HARDBOARD | Foundation: | SLAB | | Heating/Cooling: | BASEBOARD ELECTRIC | Number of Bathrooms: | 1 | | Number of Bedrooms: | 3 | Plumbing: | 7 | | Roof Covering: | COMP SHINGLE |   |   |
|
| | Type | Description | Class CD | Sub Class CD | Year Built | Area |
| | MA | Main Area | 1 | 30 | 1963 | 912.0 |
| | SI1 | SITE IMPROVEMENT | 1 | 30 | 1963 | 1.5 |
| | ATG | Attached Garage | 1 | 30 | 1963 | 288.0 |
| | CPC | COVERED CARPORT/PATIO | 1 | 30 | 1963 | 400.0 |
Sketch
Property Image
Land
| 1 | RES 1 | Converted: Residential | 0.1522 | 6630.00 | 0.00 | 0.00 | 1.00 | $44,750 | $0 |
Roll Value History
| 2026 | N/A | N/A | N/A | N/A | N/A |
| 2025 | $208,190 | $66,300 | $0 | $274,490 | $274,490 |
| 2024 | $231,320 | $44,750 | $0 | $276,070 | $276,070 |
| 2023 | $231,320 | $44,750 | $0 | $276,070 | $276,070 |
| 2022 | $220,300 | $44,750 | $0 | $265,050 | $265,050 |
| 2021 | $157,360 | $44,750 | $0 | $202,110 | $202,110 |
| 2020 | $112,400 | $44,750 | $0 | $157,150 | $157,150 |
| 2019 | $117,350 | $39,800 | $0 | $157,150 | $157,150 |
| 2018 | $102,040 | $39,800 | $0 | $141,840 | $141,840 |
| 2017 | $97,180 | $39,800 | $0 | $136,980 | $136,980 |
| 2016 | $97,180 | $39,800 | $0 | $136,980 | $136,980 |
| 2015 | $50,300 | $39,800 | $0 | $90,100 | $90,100 |
| 2014 | $50,300 | $39,800 | $0 | $90,100 | $90,100 |
| 2013 | $50,900 | $39,200 | $0 | $90,100 | $90,100 |
| 2012 | $50,900 | $39,200 | $0 | $0 | $0 |
| 2011 | $50,900 | $39,200 | $0 | $0 | $0 |
| 2010 | $46,600 | $39,200 | $0 | $0 | $0 |
| 2009 | $56,100 | $39,200 | $0 | $0 | $0 |
| 2008 | $49,400 | $19,600 | $0 | $0 | $0 |
| 2007 | $49,400 | $19,600 | $0 | $0 | $0 |
Deed and Sales History
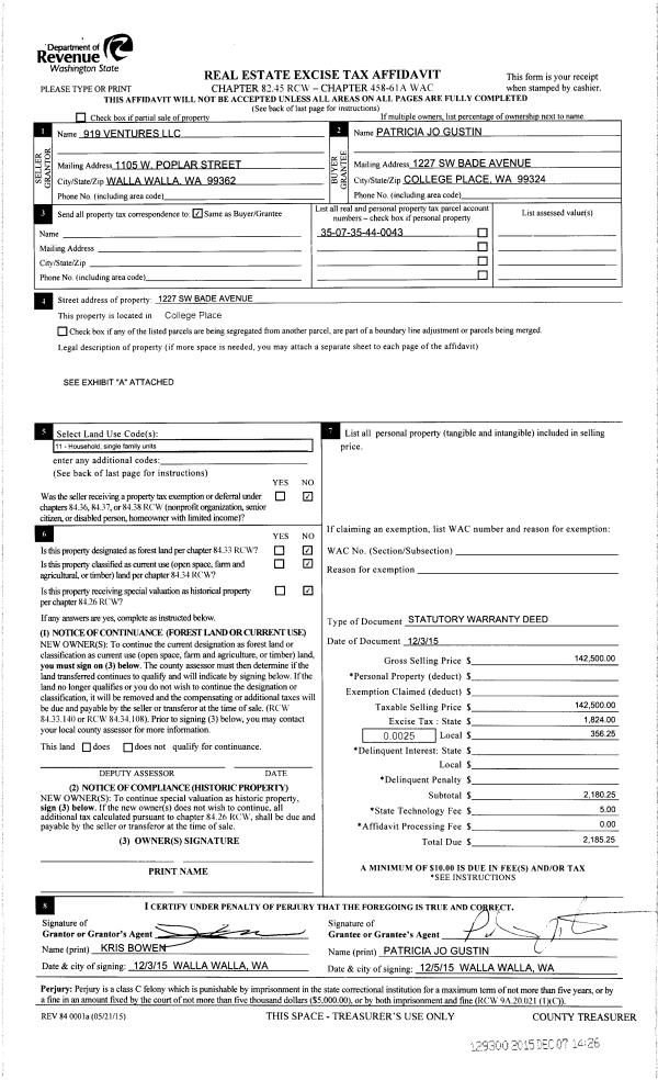
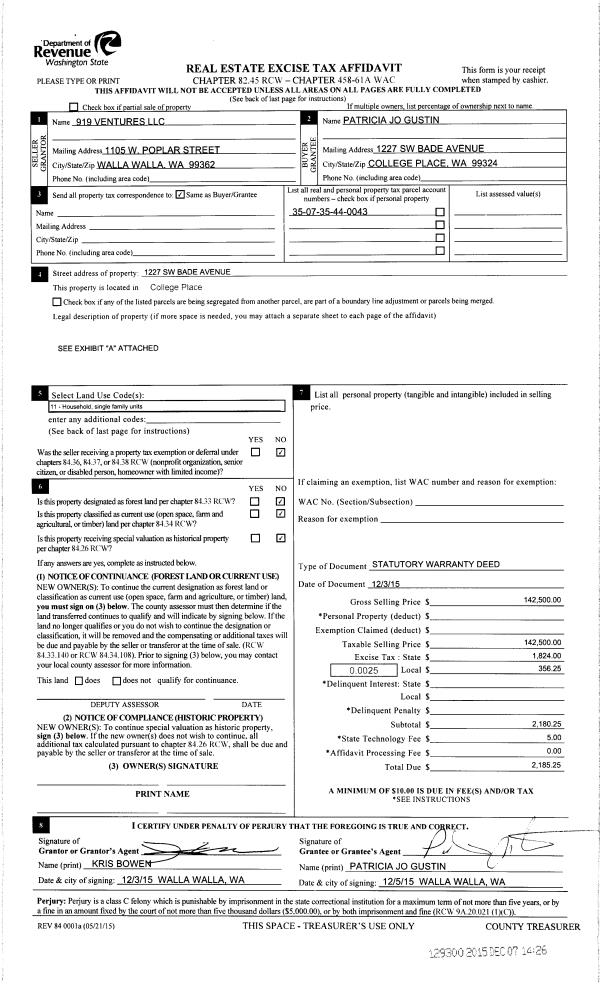
| 1 | 12/07/2015 | SWD | STATUTORY WARRANTY DEED | 919 VENTURES LLC | GUSTIN PATRICIA JO | | | $142,500.00 | 129300 | 2015-10458 |
| 2 | 06/04/2015 | DPR | DEED OF PERSONAL REPRESENTATIVE | TIVEY RONALD ORLO ESTATE OF | 919 VENTURES LLC | | | $67,500.00 | 128122 | 2015-04817 |
| 3 | 04/19/1978 | WARRANTY D | WARRANTY DEED | | | | | $24,800.00 | 0 | 8078-03463 |
Payout Agreement
| No payout information available.. |