| 1 | 09/23/2016 | BARGAIN & | BARGAIN & SALE DEED | COLUMBIA STATE BANK | COLLEGE PLACE 17 ASSOCIATES LLC | | 24 PARCLES | $2,190,000.00 | 131100 | 2016-07792 |
|   | |
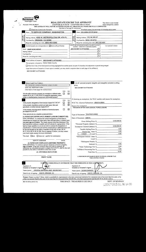
| 2 | 07/06/2015 | TRUSTEES D | TRUSTEE'S DEED | CAMBER LLC | COLUMBIA STATE BANK | | 17-PACELS | $2,032,050.00 | 128317 | 2015-05725 |
|   | |
| 3 | 09/18/2009 | WARRANTY D | WARRANTY DEED | BANK OF WHITMAN | CAMBER LLC | | | | 117358 | 2009-09414 |
| 4 | 09/09/2009 | WARRANTY D | WARRANTY DEED | EAGLE MEADOWS COTTAGES~LLC | | | | | 117307 | 2009-09084 |
| 5 | 09/09/2009 | WARRANTY D | WARRANTY DEED | EAGLE MEADOWS COTTAGES~LLC | | | | | 117309 | 2009-09086 |
| 6 | 09/09/2009 | WARRANTY D | WARRANTY DEED | EAGLE MEADOWS COTTAGES~LLC | | | | | 117306 | 2009-09083 |
| 7 | 09/09/2009 | WARRANTY D | WARRANTY DEED | EAGLE MEADOWS COTTAGES~LLC | BANK OF WHITMAN | | | | 117308 | 2009-09085 |