Property
Account |
| Property ID: | 16870 | Abbreviated Legal Description: | GREEN PARK LOT 9 BLK 2 PLUS PTN VAC ALLEY |
| Parcel Number: | 360720510209 | Agent Code: | |
| Type: | Real | | |
| Tax Area: | 1 - OL-140-F | Land Use Code | 11 |
| Open Space: | N | DFL | N |
| Historic Property: | N | Remodel Property: | N |
| Multi-Family Redevelopment: | N | | |
| Township: | 7 | Section: | 20 |
| Range: | 36 |
Location |
| Address: | 904 BONNIE BRAE ST WA 99362 | Mapsco: | |
| Neighborhood: | G Superior SFR | Map ID: | |
| Neighborhood CD: | 514211 |
Owner |
| Name: | COLEMAN JOHN C JR | Owner ID: | 63161 |
| Mailing Address: | 2211 1ST AVE NAPA, CA 94558 | % Ownership: | 100.0000000000% |
| | | Exemptions: | |
Taxes and Assessment Details
Property Tax Information as of
02/21/2026
Click on "Statement Details" to expand or collapse a tax statement.
* Please enter a valid date ** Please enter a valid date *
Statement Details |
| | TOTAL: | $0.00 | $0.00 | $0.00 | $0.00 | $0.00 | $0.00 |
|
| | $0.00 | $0.00 | $0.00 | $0.00 | $0.00 | $0.00 |
Values
| (+) Improvement Homesite Value: | + | $0 | |
| (+) Improvement Non-Homesite Value: | + | $449,550 | |
| (+) Land Homesite Value: | + | $0 | |
| (+) Land Non-Homesite Value: | + | $72,860 | |
| (+) Curr Use (HS): | + | $0 | $0 |
| (+) Curr Use (NHS): | + | $0 | $0 |
| | | -------------------------- | |
| (=) Market Value: | = | $522,410 | |
| (–) Productivity Loss: | – | $0 | |
| | | -------------------------- | |
| (=) Subtotal: | = | $522,410 | |
| (+) Senior Appraised Value: | + | $0 | |
| (+) Non-Senior Appraised Value: | + | $522,410 | |
| | | -------------------------- | |
| (=) Total Appraised Value: | = | $522,410 | |
| (–) Senior Exemption Loss: | – | $0 | |
| (–) Exemption Loss: | – | $0 | |
| | | -------------------------- | |
| (=) Taxable Value: | = | $522,410 | |
Taxing Jurisdiction
| Owner: | COLEMAN JOHN C JR | | |
| % Ownership: | 100.0000000000% | | |
| Total Value: | $522,410 | | |
| Tax Area: | 1 - OL-140-F |
| CERFD | CURRENT EXPENSE REFUND 010 | 0.0000000000 | $522,410 | $522,410 | $0.00 | | |
| CURREXP | CURRENT EXPENSE 010 | 1.0175366760 | $522,410 | $522,410 | $531.57 | | |
| HUMNSERV | HUMAN SERVICES 119 | 0.0250000000 | $522,410 | $522,410 | $13.06 | | |
| SLDREL | SOLDIERS RELIEF 121 | 0.0155990005 | $522,410 | $522,410 | $8.15 | | |
| EMERGSER | EMS 147 | 0.3792580840 | $522,410 | $522,410 | $198.13 | | |
| EMSRFD | EMS REFUND 147 | 0.0000000000 | $522,410 | $522,410 | $0.00 | | |
| PORTRFD | PORT REFUND 640 | 0.0000000000 | $522,410 | $522,410 | $0.00 | | |
| PORTWWGEN | PORT OF WW 640 | 0.2460186015 | $522,410 | $522,410 | $128.52 | | |
| SD140BOND | SD #140 BOND 764 | 0.8342371393 | $522,410 | $522,410 | $435.81 | | |
| SD140GEN | SD #140 GENERAL 760 | 2.0646500647 | $522,410 | $522,410 | $1,078.59 | | |
| ST2 | STATE SCHOOL PART 2 600 | 0.8131451643 | $522,410 | $522,410 | $424.80 | | |
| STATESCHL | STATE SCHOOL 600 | 1.5158548041 | $522,410 | $522,410 | $791.90 | | |
| STREFUND | STATE REFUND LEVY 603 | 0.0000000000 | $522,410 | $522,410 | $0.00 | | |
| CWWBOND | C OF WW BOND 643 | 0.2760494372 | $522,410 | $522,410 | $144.21 | | |
| CWWGEN | CITY OF WW 631 | 1.6100204973 | $522,410 | $522,410 | $841.09 | | |
| CWWRFD | CITY OF WALLA WALLA REFUND 631 | 0.0000000000 | $522,410 | $522,410 | $0.00 | | |
| | Total Tax Rate: | 8.7973694689 | | | | | |
| | | | | Taxes w/Current Exemptions: | $4,595.83 | | |
| | | | | Taxes w/o Exemptions: | $4,595.83 | | |
Improvement / Building
| Improvement #1: | RESIDENTIAL | State Code: | 11 | 2110.0 sqft | Value: | $449,550 |
| Exterior Wall: | SIDING | Heating/Cooling: | WARM & COOLED AIR | | Number of Bathrooms: | 2 | Number of Bedrooms: | 5 | | Plumbing: | 10 | Roof Covering: | COMP SHINGLE |
|
| | Type | Description | Class CD | Sub Class CD | Year Built | Area |
| | MA | Main Area | 4 | 35 | 1921 | 2110.0 |
| | RCD | WOOD DECK W/ROOF, CEILED | 4 | 35 | 0 | 119.0 |
| | SI1 | SITE IMPROVEMENT | 4 | 35 | 0 | 2.0 |
| | BASE | BASEMENT | 4 | 35 | 1921 | 1125.0 |
| | BMF | BASEMENT - MIN FINISH | 4 | 35 | 1921 | 400.0 |
| | DTG | Detached Garage | 4 | 35 | 1921 | 400.0 |
| | UPFL | Upper Floor (included in main area) | 4 | 35 | 0 | 604.0 |
Sketch
Property Image
Land
| 1 | RES 1 | Converted: Residential | 0.2452 | 10683.00 | 0.00 | 0.00 | 1.00 | $72,860 | $0 |
Roll Value History
| 2026 | N/A | N/A | N/A | N/A | N/A |
| 2025 | $361,140 | $117,510 | $0 | $478,650 | $478,650 |
| 2024 | $361,140 | $117,510 | $0 | $478,650 | $478,650 |
| 2023 | $449,550 | $72,860 | $0 | $522,410 | $522,410 |
| 2022 | $449,550 | $72,860 | $0 | $522,410 | $522,410 |
| 2021 | $374,630 | $72,860 | $0 | $447,490 | $447,490 |
| 2020 | $288,180 | $72,860 | $0 | $361,040 | $361,040 |
| 2019 | $288,180 | $72,860 | $0 | $361,040 | $361,040 |
| 2018 | $230,540 | $72,860 | $0 | $303,400 | $303,400 |
| 2017 | $221,760 | $45,400 | $0 | $267,160 | $267,160 |
| 2016 | $211,200 | $45,400 | $0 | $256,600 | $256,600 |
| 2015 | $211,200 | $45,400 | $0 | $256,600 | $256,600 |
| 2014 | $211,200 | $45,400 | $0 | $256,600 | $256,600 |
| 2013 | $211,200 | $45,400 | $0 | $256,600 | $256,600 |
| 2012 | $211,200 | $45,400 | $0 | $0 | $0 |
| 2011 | $211,200 | $45,400 | $0 | $0 | $0 |
| 2010 | $199,000 | $45,400 | $0 | $0 | $0 |
| 2009 | $226,200 | $45,400 | $0 | $0 | $0 |
| 2008 | $180,900 | $45,400 | $0 | $0 | $0 |
| 2007 | $180,900 | $45,400 | $0 | $0 | $0 |
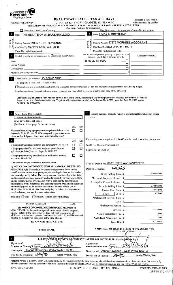
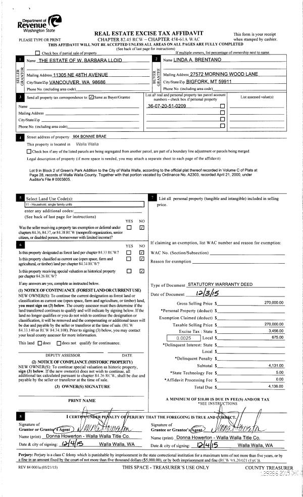
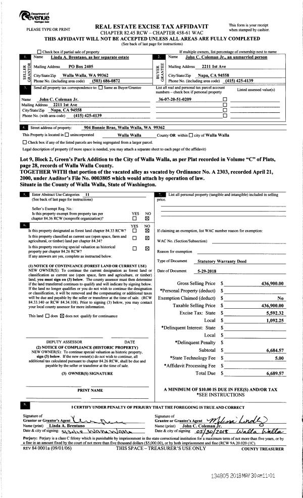
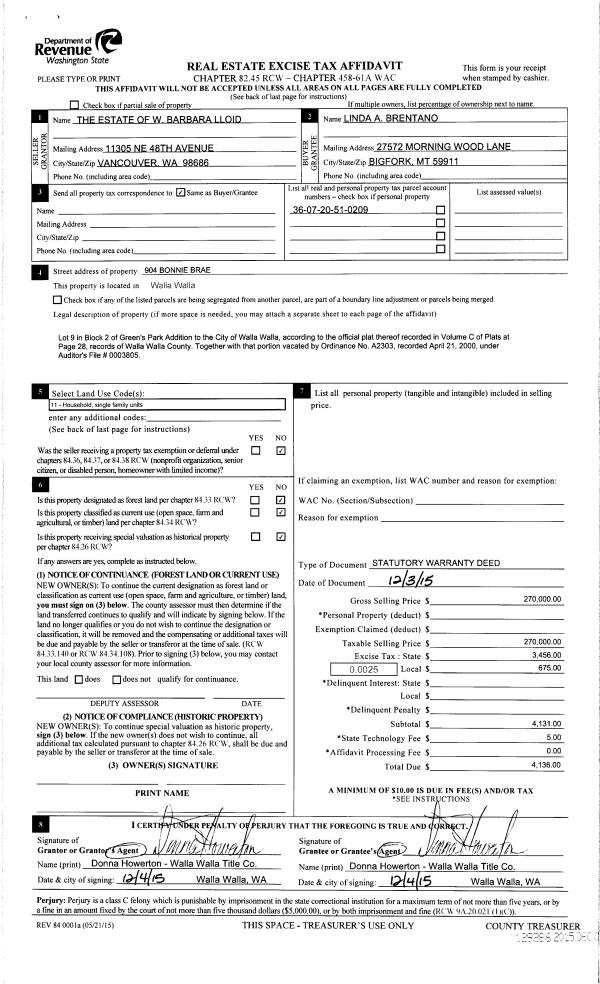
Deed and Sales History
| 1 | 05/30/2018 | SWD | STATUTORY WARRANTY DEED | BRENTANO LINDA A | COLEMAN JOHN C JR | | | $436,900.00 | 134805 | 2018-04268 |
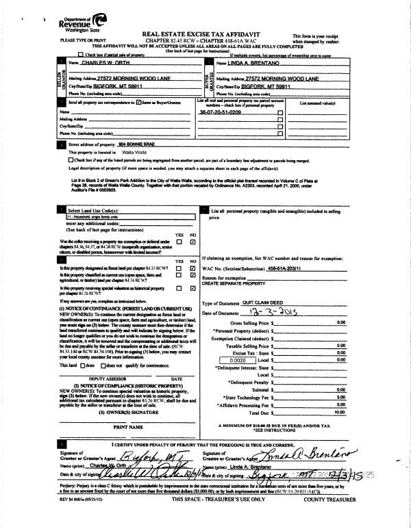
| 2 | 12/04/2015 | QCD | QUIT CLAIM DEED | ORTH CHARLES W | BRENTANO LINDA A | | | | 129287 | 2015-10389 |
| 3 | 12/04/2015 | SWD | STATUTORY WARRANTY DEED | LLOID W BARBARA ESTATE OF | BRENTANO LINDA A | | | $270,000.00 | 129286 | 2015-10388 |
| 4 | 12/21/2006 | QCD | QUIT CLAIM DEED | LLOID, H WALTON | LLOID, W BARBARA | | | | 111949 | 2006-15176 |
| 5 | 01/01/1956 | WARRANTY D | WARRANTY DEED | | | | | $0.00 | 0 | 2770-386283 |
Payout Agreement
| No payout information available.. |