Property
Account |
| Property ID: | 16869 | Abbreviated Legal Description: | CRISCOLA'S ADDITION SUBDIVISION LOT 5 |
| Parcel Number: | 350726690005 | Agent Code: | |
| Type: | Real | | |
| Tax Area: | 311 - 250-4 | Land Use Code | 11 |
| Open Space: | N | DFL | N |
| Historic Property: | N | Remodel Property: | N |
| Multi-Family Redevelopment: | N | | |
| Township: | 7 | Section: | 26 |
| Range: | 35 |
Location |
| Address: | 86 PRIMROSE LN WA 99362 | Mapsco: | |
| Neighborhood: | GOOD SFR Rural/City Inf | Map ID: | |
| Neighborhood CD: | 314012 |
Owner |
| Name: | KUNISHIGE LIVING TRUST | Owner ID: | 59447 |
| Mailing Address: | 86 PRIMROSE LN WALLA WALLA, WA 99362 | % Ownership: | 100.0000000000% |
| | | Exemptions: | |
Taxes and Assessment Details
Property Tax Information as of
02/21/2026
Click on "Statement Details" to expand or collapse a tax statement.
* Please enter a valid date ** Please enter a valid date *
Statement Details |
| | TOTAL: | $0.00 | $0.00 | $0.00 | $0.00 | $0.00 | $0.00 |
|
| | $0.00 | $0.00 | $0.00 | $0.00 | $0.00 | $0.00 |
Values
| (+) Improvement Homesite Value: | + | N/A | |
| (+) Improvement Non-Homesite Value: | + | N/A | |
| (+) Land Homesite Value: | + | N/A | |
| (+) Land Non-Homesite Value: | + | N/A | Ag / Timber Use Value |
| (+) Curr Use (HS): | + | N/A | N/A |
| (+) Curr Use (NHS): | + | N/A | N/A |
| | | -------------------------- | |
| (=) Market Value: | = | N/A | |
| (–) Productivity Loss: | – | N/A | |
| | | -------------------------- | |
| (=) Subtotal: | = | N/A | |
| (+) Senior Appraised Value: | + | N/A | |
| (+) Non-Senior Appraised Value: | + | N/A | |
| | | -------------------------- | |
| (=) Total Appraised Value: | = | N/A | |
| (–) Senior Exemption Loss: | – | N/A | |
| (–) Exemption Loss: | – | N/A | |
| | | -------------------------- | |
| (=) Taxable Value: | = | N/A | |
Taxing Jurisdiction
| Owner: | KUNISHIGE LIVING TRUST | | |
| % Ownership: | 100.0000000000% | | |
| Total Value: | N/A | | |
| Tax Area: | 311 - 250-4 |
| CERFD | CURRENT EXPENSE REFUND 010 | N/A | N/A | N/A | N/A | | |
| CURREXP | CURRENT EXPENSE 010 | N/A | N/A | N/A | N/A | | |
| HUMNSERV | HUMAN SERVICES 119 | N/A | N/A | N/A | N/A | | |
| SLDREL | SOLDIERS RELIEF 121 | N/A | N/A | N/A | N/A | | |
| EMERGSER | EMS 147 | N/A | N/A | N/A | N/A | | |
| EMSRFD | EMS REFUND 147 | N/A | N/A | N/A | N/A | | |
| FD4EXP | FD #4 EXPENSE 686 | N/A | N/A | N/A | N/A | | |
| RLBRFD | RURAL LIBRARY REFUND 623 | N/A | N/A | N/A | N/A | | |
| RURALLIB | RURAL LIBRARY 623 | N/A | N/A | N/A | N/A | | |
| PORTRFD | PORT REFUND 640 | N/A | N/A | N/A | N/A | | |
| PORTWWGEN | PORT OF WW 640 | N/A | N/A | N/A | N/A | | |
| SD250BOND | SD #250 BOND 773 | N/A | N/A | N/A | N/A | | |
| SD250GEN | SD #250 GENERAL 770 | N/A | N/A | N/A | N/A | | |
| ST2 | STATE SCHOOL PART 2 600 | N/A | N/A | N/A | N/A | | |
| STATESCHL | STATE SCHOOL 600 | N/A | N/A | N/A | N/A | | |
| STREFUND | STATE REFUND LEVY 603 | N/A | N/A | N/A | N/A | | |
| COROAD | COUNTY ROAD 115 | N/A | N/A | N/A | N/A | | |
| CRPRD | COUNTY ROAD REFUND 115 | N/A | N/A | N/A | N/A | | |
| | Total Tax Rate: | N/A | | | | | |
| | | | | Taxes w/Current Exemptions: | N/A | | |
| | | | | Taxes w/o Exemptions: | N/A | | |
Improvement / Building
| Improvement #1: | RESIDENTIAL | State Code: | 11 | 2518.0 sqft | Value: | N/A |
| Exterior Wall: | STUCCO | Heating/Cooling: | WARM & COOLED AIR | | Number of Bathrooms: | 3 | Number of Bedrooms: | 4 | | Plumbing: | 13 | Roof Covering: | COMP SHINGLE |
|
| | Type | Description | Class CD | Sub Class CD | Year Built | Area |
| | MA | Main Area | 1 | 45 | 2006 | 2518.0 |
| | GFP | GAS FIREPLACE | 1 | 45 | 0 | 1.0 |
| | PRC | PORCH W STEPS, ROOF,CEILED | 1 | 45 | 0 | 150.0 |
| | RPC | OPEN PORCH W/ROOF , CEILED | 1 | 45 | 0 | 392.0 |
| | SI1 | SITE IMPROVEMENT | 1 | 45 | 0 | 4.0 |
| | ATG | Attached Garage | 1 | 45 | 2006 | 1195.0 |
Sketch
Property Image
Land
| 1 | RES 1 | Converted: Residential | 0.0000 | 0.00 | 0.00 | 0.00 | 1.00 | N/A | N/A |
Roll Value History
| 2026 | N/A | N/A | N/A | N/A | N/A |
| 2025 | $590,520 | $150,000 | $0 | $740,520 | $740,520 |
| 2024 | $590,520 | $150,000 | $0 | $740,520 | $740,520 |
| 2023 | $513,490 | $150,000 | $0 | $663,490 | $663,490 |
| 2022 | $466,810 | $150,000 | $0 | $616,810 | $616,810 |
| 2021 | $407,970 | $75,000 | $0 | $482,970 | $482,970 |
| 2020 | $370,880 | $75,000 | $0 | $445,880 | $445,880 |
| 2019 | $370,880 | $75,000 | $0 | $445,880 | $445,880 |
| 2018 | $353,220 | $75,000 | $0 | $428,220 | $428,220 |
| 2017 | $353,220 | $75,000 | $0 | $428,220 | $428,220 |
| 2016 | $353,220 | $75,000 | $0 | $428,220 | $428,220 |
| 2015 | $331,000 | $75,000 | $0 | $406,000 | $406,000 |
| 2014 | $331,000 | $75,000 | $0 | $406,000 | $406,000 |
| 2013 | $331,000 | $75,000 | $0 | $406,000 | $406,000 |
| 2012 | $294,100 | $75,000 | $0 | $0 | $0 |
| 2011 | $294,100 | $75,000 | $0 | $0 | $0 |
| 2010 | $268,500 | $75,000 | $0 | $0 | $0 |
| 2009 | $306,700 | $75,000 | $0 | $0 | $0 |
| 2008 | $315,500 | $75,000 | $0 | $0 | $0 |
| 2007 | $65,100 | $75,000 | $0 | $0 | $0 |
Deed and Sales History
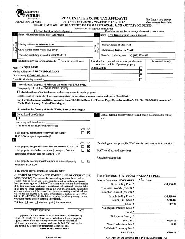
| 1 | 06/10/2016 | SWD | STATUTORY WARRANTY DEED | KUNISHIGE ALVIN & COLEEN | KUNISHIGE LIVING TRUST | | | $0.00 | 130752 | 2016-06671 |
| 2 | 11/20/2015 | SWD | STATUTORY WARRANTY DEED | AMIRZADEH ALI & DAISY | KUNISHIGE ALVIN & COLEEN | | | $434,910.00 | 129225 | 2015-10045 |
| 3 | 10/16/2012 | WARRANTY D | WARRANTY DEED | MAIDMENT, ROGER & CONNIE | AMIRZADEH, ALI & DAISY | | | $415,000.00 | 122807 | 2012-09103 |
| 4 | 01/25/2007 | QCD | QUIT CLAIM DEED | PREAS, DAN D & MARVA | MAIDMENT, ROGER & CONNIE | | | | 112134 | 2007-00978 |
| 5 | 08/09/2005 | WARRANTY D | WARRANTY DEED | CRISCOLA, VIRGIL E | PREAS DAN D & MARVA | | | $320,000.00 | 108181 | 2005-09789 |
|   | |
Payout Agreement
| No payout information available.. |