Property
Account |
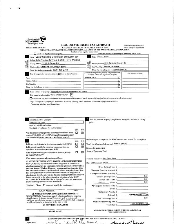
| Property ID: | 16864 | Abbreviated Legal Description: | 9-6-35 TAX 11A |
| Parcel Number: | 350609420019 | Agent Code: | |
| Type: | Real | | |
| Tax Area: | 311 - 250-4 | Land Use Code | 83 |
| Open Space: | Y | DFL | N |
| Historic Property: | N | Remodel Property: | N |
| Multi-Family Redevelopment: | N | | |
| Township: | 6 | Section: | 9 |
| Range: | 35 |
Location |
| Address: | 636 VALLEY CHAPEL RD WA 99324 | Mapsco: | |
| Neighborhood: | 0 Farm | Map ID: | |
| Neighborhood CD: | 2220 |
Owner |
| Name: | BROOKS GREGORY S & KRISTIN H | Owner ID: | 62833 |
| Mailing Address: | 636 VALLEY CHAPEL RD WALLA WALLA, WA 99362 | % Ownership: | 100.0000000000% |
| | | Exemptions: | |
Taxes and Assessment Details
Property Tax Information as of
02/21/2026
Click on "Statement Details" to expand or collapse a tax statement.
* Please enter a valid date ** Please enter a valid date *
Statement Details |
| | TOTAL: | $0.00 | $0.00 | $0.00 | $0.00 | $0.00 | $0.00 |
|
| | $0.00 | $0.00 | $0.00 | $0.00 | $0.00 | $0.00 |
Values
| (+) Improvement Homesite Value: | + | $0 | |
| (+) Improvement Non-Homesite Value: | + | $80,300 | |
| (+) Land Homesite Value: | + | $150,000 | |
| (+) Land Non-Homesite Value: | + | $0 | |
| (+) Curr Use (HS): | + | $0 | $0 |
| (+) Curr Use (NHS): | + | $28,600 | $7,210 |
| | | -------------------------- | |
| (=) Market Value: | = | $258,900 | |
| (–) Productivity Loss: | – | $21,390 | |
| | | -------------------------- | |
| (=) Subtotal: | = | $237,510 | |
| (+) Senior Appraised Value: | + | $0 | |
| (+) Non-Senior Appraised Value: | + | $237,510 | |
| | | -------------------------- | |
| (=) Total Appraised Value: | = | $237,510 | |
| (–) Senior Exemption Loss: | – | $0 | |
| (–) Exemption Loss: | – | $0 | |
| | | -------------------------- | |
| (=) Taxable Value: | = | $237,510 | |
Taxing Jurisdiction
| Owner: | BROOKS GREGORY S & KRISTIN H | | |
| % Ownership: | 100.0000000000% | | |
| Total Value: | $258,900 | | |
| Tax Area: | 311 - 250-4 |
| CERFD | CURRENT EXPENSE REFUND 010 | 0.0000000000 | $237,510 | $237,510 | $0.00 | | |
| CURREXP | CURRENT EXPENSE 010 | 1.0175366760 | $237,510 | $237,510 | $241.68 | | |
| HUMNSERV | HUMAN SERVICES 119 | 0.0250000000 | $237,510 | $237,510 | $5.94 | | |
| SLDREL | SOLDIERS RELIEF 121 | 0.0155990005 | $237,510 | $237,510 | $3.70 | | |
| EMERGSER | EMS 147 | 0.3792580840 | $237,510 | $237,510 | $90.08 | | |
| EMSRFD | EMS REFUND 147 | 0.0000000000 | $237,510 | $237,510 | $0.00 | | |
| FD4EXP | FD #4 EXPENSE 686 | 0.8836993059 | $237,510 | $237,510 | $209.89 | | |
| RLBRFD | RURAL LIBRARY REFUND 623 | 0.0000000000 | $237,510 | $237,510 | $0.00 | | |
| RURALLIB | RURAL LIBRARY 623 | 0.3710609029 | $237,510 | $237,510 | $88.13 | | |
| PORTRFD | PORT REFUND 640 | 0.0000000000 | $237,510 | $237,510 | $0.00 | | |
| PORTWWGEN | PORT OF WW 640 | 0.2460186015 | $237,510 | $237,510 | $58.43 | | |
| SD250BOND | SD #250 BOND 773 | 1.4560608159 | $237,510 | $237,510 | $345.83 | | |
| SD250GEN | SD #250 GENERAL 770 | 2.3880724087 | $237,510 | $237,510 | $567.19 | | |
| ST2 | STATE SCHOOL PART 2 600 | 0.8131451643 | $237,510 | $237,510 | $193.13 | | |
| STATESCHL | STATE SCHOOL 600 | 1.5158548041 | $237,510 | $237,510 | $360.03 | | |
| STREFUND | STATE REFUND LEVY 603 | 0.0000000000 | $237,510 | $237,510 | $0.00 | | |
| COROAD | COUNTY ROAD 115 | 1.6549953990 | $237,510 | $237,510 | $393.08 | | |
| CRPRD | COUNTY ROAD REFUND 115 | 0.0000000000 | $237,510 | $237,510 | $0.00 | | |
| | Total Tax Rate: | 10.7663011628 | | | | | |
| | | | | Taxes w/Current Exemptions: | $2,557.11 | | |
| | | | | Taxes w/o Exemptions: | $2,557.11 | | |
Improvement / Building
| Improvement #1: | RESIDENTIAL | State Code: | 83 | 1994.0 sqft | Value: | $80,300 |
| Exterior Wall: | STUCCO | Heating/Cooling: | STOVE-NO HEAT | | Number of Bathrooms: | 2 | Number of Bedrooms: | 3 | | Plumbing: | 9 | Roof Covering: | COMP SHINGLE |
|
| | Type | Description | Class CD | Sub Class CD | Year Built | Area |
| | MA | Main Area | 4 | 25 | 1908 | 1994.0 |
| | CPC | COVERED CARPORT/PATIO | 1 | 25 | 1908 | 460.0 |
| | SI1 | SITE IMPROVEMENT | 4 | 25 | 1908 | 1.5 |
| | BASE | BASEMENT | 4 | 25 | 1908 | 80.0 |
| | UPFL | Upper Floor (included in main area) | 4 | 25 | 1908 | 570.0 |
| | RPO | OPEN PORCH W/ROOF | 4 | 25 | 1908 | 184.0 |
| | BNV | BUILDING NO VALUE | 1 | 25 | 1908 | 2100.0 |
| | UTST | Utility Storage Shed | 1 | 25 | 1908 | 320.0 |
Sketch
Property Image
Land
| 1 | HS-150,000 | Homesite 150,000 | 1.0000 | 0.00 | 0.00 | 0.00 | 1.00 | $150,000 | $0 |
| 2 | 5000-C1-I | 5000-C1 Irrigation | 5.7200 | 0.00 | 0.00 | 0.00 | 1.00 | $28,600 | $7,210 |
Roll Value History
| 2026 | N/A | N/A | N/A | N/A | N/A |
| 2025 | $80,300 | $178,600 | $7,110 | $237,410 | $237,410 |
| 2024 | $80,300 | $178,600 | $7,240 | $237,540 | $237,540 |
| 2023 | $80,300 | $178,600 | $7,210 | $237,510 | $237,510 |
| 2022 | $80,300 | $178,600 | $7,090 | $237,390 | $237,390 |
| 2021 | $134,800 | $178,600 | $7,090 | $291,890 | $291,890 |
| 2020 | $77,200 | $103,600 | $7,240 | $159,440 | $159,440 |
| 2019 | $77,200 | $103,600 | $7,460 | $159,660 | $159,660 |
| 2018 | $77,200 | $103,600 | $7,600 | $159,800 | $159,800 |
| 2017 | $77,200 | $103,600 | $7,840 | $160,040 | $160,040 |
| 2016 | $77,200 | $103,600 | $7,870 | $160,070 | $160,070 |
| 2015 | $77,200 | $103,600 | $7,170 | $159,370 | $159,370 |
| 2014 | $77,200 | $103,600 | $7,170 | $159,370 | $159,370 |
| 2013 | $77,200 | $103,600 | $6,104 | $158,300 | $158,300 |
| 2012 | $76,700 | $79,900 | $0 | $0 | $0 |
| 2011 | $77,100 | $79,700 | $0 | $0 | $0 |
| 2010 | $75,900 | $79,800 | $0 | $0 | $0 |
| 2009 | $115,400 | $79,800 | $0 | $0 | $0 |
| 2008 | $88,600 | $51,600 | $0 | $0 | $0 |
| 2007 | $88,600 | $51,600 | $0 | $0 | $0 |
Deed and Sales History
| 1 | 04/04/2018 | SWD | STATUTORY WARRANTY DEED | JONES LORNA L | BROOKS GREGORY S & KRISTIN H | | | $270,000.00 | 134446 | 2018-02617 |
| 2 | 09/09/2015 | QCD | QUIT CLAIM DEED | UPPER COLUMBIA MISSION SOC SDA | JONES LORNA L | | | | 129164 | 2015-09756 |
| 3 | 12/05/1968 | QCD | QUIT CLAIM DEED | | | | | $0.00 | 0 | 3290-498502 |
Payout Agreement
| No payout information available.. |