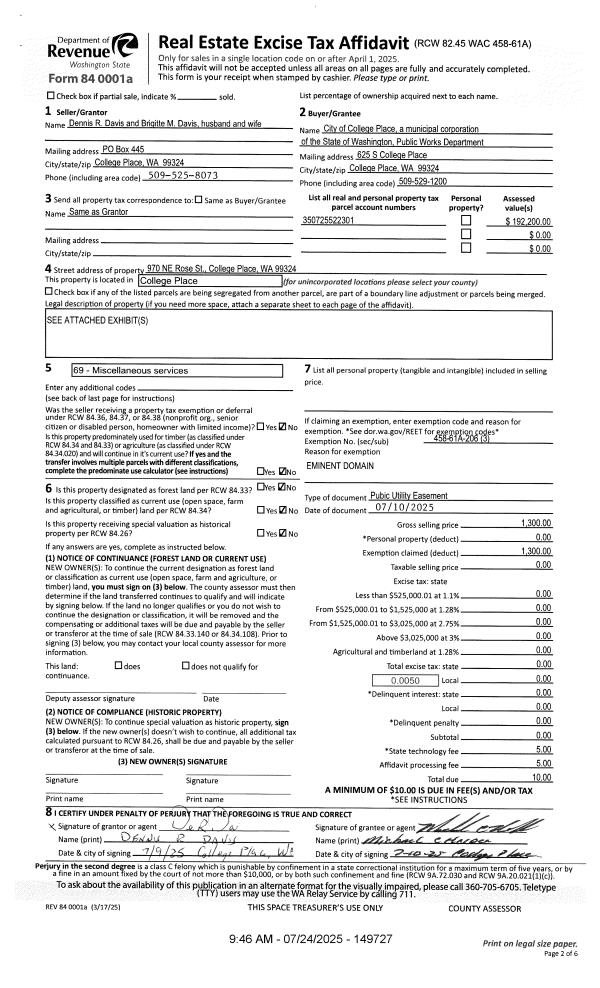
Property
Account |
| Property ID: | 16862 | Abbreviated Legal Description: | BLALOCK ORCHARDS TAX 2 LOT 1 BLK 23 LESS STRIP ON N TO RD; LESS PTN FOR PUBLIC RD ROW/EASEMENT TAKE |
| Parcel Number: | 350725522301 | Agent Code: | |
| Type: | Real | | |
| Tax Area: | 77 - CP-250-F | Land Use Code | 66 |
| Open Space: | N | DFL | N |
| Historic Property: | N | Remodel Property: | N |
| Multi-Family Redevelopment: | N | | |
| Township: | 7 | Section: | 25 |
| Range: | 35 |
Location |
| Address: | 970 NE ROSE ST WA 99324 | Mapsco: | |
| Neighborhood: | CP CITY | Map ID: | |
| Neighborhood CD: | 1342 |
Owner |
| Name: | DAVIS DENNIS R & BRIGITTE M | Owner ID: | 55155 |
| Mailing Address: | 3316 PEPPERS BRIDGE RD WALLA WALLA, WA 99362 | % Ownership: | 100.0000000000% |
| | | Exemptions: | |
Taxes and Assessment Details
Values
| (+) Improvement Homesite Value: | + | $0 | |
| (+) Improvement Non-Homesite Value: | + | $208,600 | |
| (+) Land Homesite Value: | + | $0 | |
| (+) Land Non-Homesite Value: | + | $192,200 | |
| (+) Curr Use (HS): | + | $0 | $0 |
| (+) Curr Use (NHS): | + | $0 | $0 |
| | | -------------------------- | |
| (=) Market Value: | = | $400,800 | |
| (–) Productivity Loss: | – | $0 | |
| | | -------------------------- | |
| (=) Subtotal: | = | $400,800 | |
| (+) Senior Appraised Value: | + | $0 | |
| (+) Non-Senior Appraised Value: | + | $400,800 | |
| | | -------------------------- | |
| (=) Total Appraised Value: | = | $400,800 | |
| (–) Senior Exemption Loss: | – | $0 | |
| (–) Exemption Loss: | – | $0 | |
| | | -------------------------- | |
| (=) Taxable Value: | = | $400,800 | |
Taxing Jurisdiction
| Owner: | DAVIS DENNIS R & BRIGITTE M | | |
| % Ownership: | 100.0000000000% | | |
| Total Value: | $400,800 | | |
| Tax Area: | 77 - CP-250-F |
| CERFD | CURRENT EXPENSE REFUND 010 | 0.0000000000 | $400,800 | $400,800 | $0.00 | | |
| CURREXP | CURRENT EXPENSE 010 | 0.9851088983 | $400,800 | $400,800 | $394.83 | | |
| HUMNSERV | HUMAN SERVICES 119 | 0.0250000000 | $400,800 | $400,800 | $10.02 | | |
| SLDREL | SOLDIERS RELIEF 121 | 0.0155990000 | $400,800 | $400,800 | $6.25 | | |
| COLLPLBOND | C OF CP BOND 644 | 0.3846009312 | $400,800 | $400,800 | $154.15 | | |
| COLLPLGEN | CITY OF CP 632 | 1.4193088888 | $400,800 | $400,800 | $568.86 | | |
| EMERGSER | EMS 147 | 0.3676811629 | $400,800 | $400,800 | $147.37 | | |
| EMSRFD | EMS REFUND 147 | 0.0000000000 | $400,800 | $400,800 | $0.00 | | |
| RLBRFD | RURAL LIBRARY REFUND 623 | 0.0000000000 | $400,800 | $0 | $0.00 | | |
| RURALLIB | RURAL LIBRARY 623 | 0.0000000000 | $400,800 | $0 | $0.00 | | |
| PORTRFD | PORT REFUND 640 | 0.0000000000 | $400,800 | $400,800 | $0.00 | | |
| PORTWWGEN | PORT OF WW 640 | 0.2344301070 | $400,800 | $400,800 | $93.96 | | |
| SD250BOND | SD #250 BOND 773 | 1.3740031235 | $400,800 | $400,800 | $550.70 | | |
| SD250GEN | SD #250 GENERAL 770 | 2.4999999988 | $400,800 | $400,800 | $1,002.00 | | |
| ST2 | STATE SCHOOL PART 2 600 | 0.8853714103 | $400,800 | $400,800 | $354.86 | | |
| STATESCHL | STATE SCHOOL 600 | 1.6424571473 | $400,800 | $400,800 | $658.30 | | |
| STREFUND | STATE REFUND LEVY 603 | 0.0000000000 | $400,800 | $400,800 | $0.00 | | |
| | Total Tax Rate: | 9.8335606681 | | | | | |
| | | | | Taxes w/Current Exemptions: | $3,941.30 | | |
| | | | | Taxes w/o Exemptions: | $3,941.30 | | |
Improvement / Building
| Improvement #1: | COMMERCIAL | State Code: | 66 | 14539.0 sqft | Value: | $208,600 |
| | Type | Description | Class CD | Sub Class CD | Year Built | Area |
| | MA | Main Area | D | | 1945 | 14539.0 |
| | SI1 | SITE IMPROVEMENT | D | * | 1945 | 4.0 |
| | UPFL | Upper Floor (included in main area) | D | * | 1945 | 1000.0 |
| | EWS | EXT WOOD STAIRS | D | * | 1945 | 1.0 |
| | BLW | WOOD BALCONIES | D | * | 1945 | 45.0 |
| | CPC | COVERED CARPORT/PATIO | D | * | 1945 | 814.0 |
| | UPFL | Upper Floor (included in main area) | D | * | 1945 | 600.0 |
Sketch
Property Image
Land
| 1 | COM 1 | Converted: Commercial | 0.9129 | 39768.00 | 0.00 | 0.00 | 1.00 | $192,200 | $0 |
Roll Value History
| 2026 | N/A | N/A | N/A | N/A | N/A |
| 2025 | $208,600 | $192,200 | $0 | $400,800 | $400,800 |
| 2024 | $208,600 | $192,200 | $0 | $400,800 | $400,800 |
| 2023 | $208,600 | $192,200 | $0 | $400,800 | $400,800 |
| 2022 | $208,600 | $192,200 | $0 | $400,800 | $400,800 |
| 2021 | $208,600 | $192,200 | $0 | $400,800 | $400,800 |
| 2020 | $208,600 | $192,200 | $0 | $400,800 | $400,800 |
| 2019 | $180,700 | $204,500 | $0 | $385,200 | $385,200 |
| 2018 | $180,700 | $204,500 | $0 | $385,200 | $385,200 |
| 2017 | $180,700 | $204,500 | $0 | $385,200 | $385,200 |
| 2016 | $180,700 | $204,500 | $0 | $385,200 | $385,200 |
| 2015 | $180,700 | $204,500 | $0 | $385,200 | $385,200 |
| 2014 | $184,800 | $200,400 | $0 | $385,200 | $385,200 |
| 2013 | $184,800 | $200,400 | $0 | $385,200 | $385,200 |
| 2012 | $184,800 | $200,400 | $0 | $0 | $0 |
| 2011 | $184,800 | $200,400 | $0 | $0 | $0 |
| 2010 | $184,800 | $200,400 | $0 | $0 | $0 |
| 2009 | $184,800 | $200,400 | $0 | $0 | $0 |
| 2008 | $197,900 | $120,200 | $0 | $0 | $0 |
| 2007 | $197,900 | $120,200 | $0 | $0 | $0 |
Deed and Sales History
| 1 | 06/17/2014 | SWD | STATUTORY WARRANTY DEED | ENQUIST JANI DAVIS | DAVIS DENNIS R & BRIGITTE M | 3-PARCELS | | $507,210.00 | 126087 | 2014-04171 |
|   | |
| 2 | 02/26/2013 | WARRANTY D | WARRANTY DEED | DAVIS DENNIS TRUSTEE | ENQUIST JANI DAVIS | | | $0.00 | 123499 | 2013-01718 |
| 3 | 12/29/1986 | WARRANTY D | WARRANTY DEED | | | | | $130,000.00 | 0 | 1618-610183 |
|   | |
Payout Agreement
| No payout information available.. |