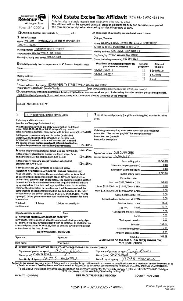
Property
Account |
| Property ID: | 16856 | Abbreviated Legal Description: | ENNIS ANNEX E 105' OF TAX 13 LOT 2 BLK 6 |
| Parcel Number: | 360721550627 | Agent Code: | |
| Type: | Real | | |
| Tax Area: | 1 - OL-140-F | Land Use Code | 91 |
| Open Space: | N | DFL | N |
| Historic Property: | N | Remodel Property: | N |
| Multi-Family Redevelopment: | N | | |
| Township: | 7 | Section: | 21 |
| Range: | 36 |
Location |
| Address: | WA 99362 | Mapsco: | |
| Neighborhood: | A-SFR Contig | Map ID: | |
| Neighborhood CD: | 513097 |
Owner |
| Name: | RIVAS WILLIAM E & ANNA M & | Owner ID: | 76601 |
| Mailing Address: | CINDY G RIVAS & GRANT G GODARD 1329 UNIVERSITY ST WALLA WALLA, WA 99362 | % Ownership: | 100.0000000000% |
| | | Exemptions: | |
Taxes and Assessment Details
Property Tax Information as of
02/21/2026
Click on "Statement Details" to expand or collapse a tax statement.
* Please enter a valid date ** Please enter a valid date *
Statement Details |
| | TOTAL: | $0.00 | $0.00 | $0.00 | $0.00 | $0.00 | $0.00 |
|
| | $0.00 | $0.00 | $0.00 | $0.00 | $0.00 | $0.00 |
Values
| (+) Improvement Homesite Value: | + | $0 | |
| (+) Improvement Non-Homesite Value: | + | $0 | |
| (+) Land Homesite Value: | + | $0 | |
| (+) Land Non-Homesite Value: | + | $4,010 | |
| (+) Curr Use (HS): | + | $0 | $0 |
| (+) Curr Use (NHS): | + | $0 | $0 |
| | | -------------------------- | |
| (=) Market Value: | = | $4,010 | |
| (–) Productivity Loss: | – | $0 | |
| | | -------------------------- | |
| (=) Subtotal: | = | $4,010 | |
| (+) Senior Appraised Value: | + | $0 | |
| (+) Non-Senior Appraised Value: | + | $4,010 | |
| | | -------------------------- | |
| (=) Total Appraised Value: | = | $4,010 | |
| (–) Senior Exemption Loss: | – | $0 | |
| (–) Exemption Loss: | – | $0 | |
| | | -------------------------- | |
| (=) Taxable Value: | = | $4,010 | |
Taxing Jurisdiction
| Owner: | RIVAS WILLIAM E & ANNA M & | | |
| % Ownership: | 100.0000000000% | | |
| Total Value: | $4,010 | | |
| Tax Area: | 1 - OL-140-F |
| CERFD | CURRENT EXPENSE REFUND 010 | 0.0000000000 | $4,010 | $4,010 | $0.00 | | |
| CURREXP | CURRENT EXPENSE 010 | 0.9851088983 | $4,010 | $4,010 | $3.95 | | |
| HUMNSERV | HUMAN SERVICES 119 | 0.0250000000 | $4,010 | $4,010 | $0.10 | | |
| SLDREL | SOLDIERS RELIEF 121 | 0.0155990000 | $4,010 | $4,010 | $0.06 | | |
| EMERGSER | EMS 147 | 0.3676811629 | $4,010 | $4,010 | $1.47 | | |
| EMSRFD | EMS REFUND 147 | 0.0000000000 | $4,010 | $4,010 | $0.00 | | |
| PORTRFD | PORT REFUND 640 | 0.0000000000 | $4,010 | $4,010 | $0.00 | | |
| PORTWWGEN | PORT OF WW 640 | 0.2344301070 | $4,010 | $4,010 | $0.94 | | |
| SD140BOND | SD #140 BOND 764 | 0.8032434458 | $4,010 | $4,010 | $3.22 | | |
| SD140CAP | SD #140 CAP 762 | 0.3840034221 | $4,010 | $4,010 | $1.54 | | |
| SD140GEN | SD #140 GENERAL 760 | 2.4999999996 | $4,010 | $4,010 | $10.03 | | |
| ST2 | STATE SCHOOL PART 2 600 | 0.8853714103 | $4,010 | $4,010 | $3.55 | | |
| STATESCHL | STATE SCHOOL 600 | 1.6424571473 | $4,010 | $4,010 | $6.59 | | |
| STREFUND | STATE REFUND LEVY 603 | 0.0000000000 | $4,010 | $4,010 | $0.00 | | |
| CWWBOND | C OF WW BOND 643 | 0.2642134255 | $4,010 | $4,010 | $1.06 | | |
| CWWGEN | CITY OF WW 631 | 1.6110494978 | $4,010 | $4,010 | $6.46 | | |
| CWWRFD | CITY OF WALLA WALLA REFUND 631 | 0.0000000000 | $4,010 | $4,010 | $0.00 | | |
| | Total Tax Rate: | 9.7181575166 | | | | | |
| | | | | Taxes w/Current Exemptions: | $38.97 | | |
| | | | | Taxes w/o Exemptions: | $38.97 | | |
Improvement / Building
Sketch
| No sketches available for this property. |
Property Image
Land
| 1 | RES 1 | Converted: Residential | 0.1262 | 5498.00 | 0.00 | 0.00 | 1.00 | $4,010 | $0 |
Roll Value History
| 2026 | N/A | N/A | N/A | N/A | N/A |
| 2025 | $0 | $4,010 | $0 | $4,010 | $4,010 |
| 2024 | $0 | $4,010 | $0 | $4,010 | $4,010 |
| 2023 | $0 | $2,620 | $0 | $2,620 | $2,620 |
| 2022 | $0 | $2,620 | $0 | $2,620 | $2,620 |
| 2021 | $0 | $2,620 | $0 | $2,620 | $2,620 |
| 2020 | $0 | $2,620 | $0 | $2,620 | $2,620 |
| 2019 | $0 | $2,620 | $0 | $2,620 | $2,620 |
| 2018 | $0 | $2,620 | $0 | $2,620 | $2,620 |
| 2017 | $0 | $4,100 | $0 | $4,100 | $4,100 |
| 2016 | $0 | $4,100 | $0 | $4,100 | $4,100 |
| 2015 | $0 | $4,100 | $0 | $4,100 | $4,100 |
| 2014 | $0 | $4,100 | $0 | $4,100 | $4,100 |
| 2013 | $0 | $4,100 | $0 | $4,100 | $4,100 |
| 2012 | $0 | $4,100 | $0 | $0 | $0 |
| 2011 | $0 | $4,100 | $0 | $0 | $0 |
| 2010 | $0 | $4,100 | $0 | $0 | $0 |
| 2009 | $0 | $4,100 | $0 | $0 | $0 |
| 2008 | $0 | $4,100 | $0 | $0 | $0 |
| 2007 | $0 | $4,100 | $0 | $0 | $0 |
Deed and Sales History
| 1 | 02/03/2025 | QCD | QUIT CLAIM DEED | RIVAS WILLIAM E & ANNA M | RIVAS WILLIAM E & ANNA M & | | | $11,725.00 | 148866 | 2024-00546 |
|   | |
| 2 | 05/18/2021 | SWD | STATUTORY WARRANTY DEED | RODRIGUEZ SARIBEL | RIVAS WILLIAM E & ANNA M | | 2-PARCELS | $280,000.00 | 141590 | 2021-06105 |
|   | |
| 3 | 12/08/2006 | WARRANTY D | WARRANTY DEED | MORGAN, ALMA J | RODRIGUEZ SARIBEL | | | $211,200.00 | 111854 | 2006-14667 |
|   | |
| 4 | 10/15/2004 | QCD | QUIT CLAIM DEED | MORGAN, JOHN H | MORGAN, ALMA J | | | | 105986 | 2004-11980 |
| 5 | 08/15/1984 | QCD | QUIT CLAIM DEED | | | | | $0.00 | 0 | 1458-405737 |
Payout Agreement
| No payout information available.. |