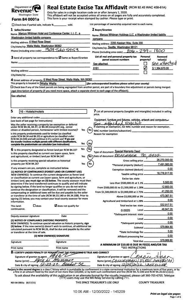
Property
Account |
| Property ID: | 16851 | Abbreviated Legal Description: | COUNCIL GROVE LOT 2 PLUS VAC ALLEY |
| Parcel Number: | 360720600002 | Agent Code: | |
| Type: | Real | | |
| Tax Area: | 1 - OL-140-F | Land Use Code | 54 |
| Open Space: | N | DFL | N |
| Historic Property: | N | Remodel Property: | N |
| Multi-Family Redevelopment: | N | | |
| Township: | 7 | Section: | 20 |
| Range: | 36 |
Location |
| Address: | 410 E ALDER ST WA 99362 | Mapsco: | |
| Neighborhood: | WW Downtown Core area #3 | Map ID: | |
| Neighborhood CD: | 5343 |
Owner |
| Name: | CSEH LLC | Owner ID: | 55128 |
| Mailing Address: | 410 E ALDER ST WALLA WALLA, WA 99362 | % Ownership: | 100.0000000000% |
| | | Exemptions: | |
Taxes and Assessment Details
Values
| (+) Improvement Homesite Value: | + | $0 | |
| (+) Improvement Non-Homesite Value: | + | $423,500 | |
| (+) Land Homesite Value: | + | $0 | |
| (+) Land Non-Homesite Value: | + | $78,000 | |
| (+) Curr Use (HS): | + | $0 | $0 |
| (+) Curr Use (NHS): | + | $0 | $0 |
| | | -------------------------- | |
| (=) Market Value: | = | $501,500 | |
| (–) Productivity Loss: | – | $0 | |
| | | -------------------------- | |
| (=) Subtotal: | = | $501,500 | |
| (+) Senior Appraised Value: | + | $0 | |
| (+) Non-Senior Appraised Value: | + | $501,500 | |
| | | -------------------------- | |
| (=) Total Appraised Value: | = | $501,500 | |
| (–) Senior Exemption Loss: | – | $0 | |
| (–) Exemption Loss: | – | $0 | |
| | | -------------------------- | |
| (=) Taxable Value: | = | $501,500 | |
Taxing Jurisdiction
| Owner: | CSEH LLC | | |
| % Ownership: | 100.0000000000% | | |
| Total Value: | $501,500 | | |
| Tax Area: | 1 - OL-140-F |
| CERFD | CURRENT EXPENSE REFUND 010 | 0.0000000000 | $501,500 | $501,500 | $0.00 | | |
| CURREXP | CURRENT EXPENSE 010 | 1.0175366760 | $501,500 | $501,500 | $510.29 | | |
| HUMNSERV | HUMAN SERVICES 119 | 0.0250000000 | $501,500 | $501,500 | $12.54 | | |
| SLDREL | SOLDIERS RELIEF 121 | 0.0155990005 | $501,500 | $501,500 | $7.82 | | |
| EMERGSER | EMS 147 | 0.3792580840 | $501,500 | $501,500 | $190.20 | | |
| EMSRFD | EMS REFUND 147 | 0.0000000000 | $501,500 | $501,500 | $0.00 | | |
| PORTRFD | PORT REFUND 640 | 0.0000000000 | $501,500 | $501,500 | $0.00 | | |
| PORTWWGEN | PORT OF WW 640 | 0.2460186015 | $501,500 | $501,500 | $123.38 | | |
| SD140BOND | SD #140 BOND 764 | 0.8342371393 | $501,500 | $501,500 | $418.37 | | |
| SD140GEN | SD #140 GENERAL 760 | 2.0646500647 | $501,500 | $501,500 | $1,035.42 | | |
| ST2 | STATE SCHOOL PART 2 600 | 0.8131451643 | $501,500 | $501,500 | $407.79 | | |
| STATESCHL | STATE SCHOOL 600 | 1.5158548041 | $501,500 | $501,500 | $760.20 | | |
| STREFUND | STATE REFUND LEVY 603 | 0.0000000000 | $501,500 | $501,500 | $0.00 | | |
| CWWBOND | C OF WW BOND 643 | 0.2760494372 | $501,500 | $501,500 | $138.44 | | |
| CWWGEN | CITY OF WW 631 | 1.6100204973 | $501,500 | $501,500 | $807.43 | | |
| CWWRFD | CITY OF WALLA WALLA REFUND 631 | 0.0000000000 | $501,500 | $501,500 | $0.00 | | |
| | Total Tax Rate: | 8.7973694689 | | | | | |
| | | | | Taxes w/Current Exemptions: | $4,411.88 | | |
| | | | | Taxes w/o Exemptions: | $4,411.88 | | |
Improvement / Building
| Improvement #1: | COMMERCIAL | State Code: | 54 | 2400.0 sqft | Value: | $423,500 |
| | Type | Description | Class CD | Sub Class CD | Year Built | Area |
| | MA | Main Area | D | * | 1975 | 2400.0 |
| | SI1 | SITE IMPROVEMENT | D | * | 1975 | 4.0 |
Sketch
Property Image
Land
| 1 | COM 1 | Converted: Commercial | 0.1791 | 7800.00 | 0.00 | 0.00 | 1.00 | $78,000 | $0 |
Roll Value History
| 2026 | N/A | N/A | N/A | N/A | N/A |
| 2025 | $403,700 | $93,600 | $0 | $497,300 | $497,300 |
| 2024 | $401,600 | $93,600 | $0 | $495,200 | $495,200 |
| 2023 | $423,500 | $78,000 | $0 | $501,500 | $501,500 |
| 2022 | $419,800 | $70,200 | $0 | $490,000 | $490,000 |
| 2021 | $419,800 | $70,200 | $0 | $490,000 | $490,000 |
| 2020 | $419,800 | $70,200 | $0 | $490,000 | $490,000 |
| 2019 | $419,800 | $70,200 | $0 | $490,000 | $490,000 |
| 2018 | $419,800 | $70,200 | $0 | $490,000 | $490,000 |
| 2017 | $419,800 | $70,200 | $0 | $490,000 | $490,000 |
| 2016 | $419,800 | $70,200 | $0 | $490,000 | $490,000 |
| 2015 | $537,280 | $70,200 | $0 | $607,480 | $607,480 |
| 2014 | $233,600 | $70,200 | $0 | $303,800 | $303,800 |
| 2013 | $233,600 | $70,200 | $0 | $303,800 | $303,800 |
| 2012 | $233,600 | $31,200 | $0 | $0 | $0 |
| 2011 | $233,600 | $31,200 | $0 | $0 | $0 |
| 2010 | $233,600 | $31,200 | $0 | $0 | $0 |
| 2009 | $233,600 | $31,200 | $0 | $0 | $0 |
| 2008 | $252,200 | $31,200 | $0 | $0 | $0 |
| 2007 | $252,200 | $31,200 | $0 | $0 | $0 |
Deed and Sales History
| 1 | 03/06/2014 | QCD | QUIT CLAIM DEED | SOHN CHANG MOOK & SUCKJOO AS TRUSTEES OF THE | CSEH LLC | 2-PARCELS | | | 125528 | 2014-01569 |
| 2 | 11/28/2006 | WARRANTY D | WARRANTY DEED | KIM, CHUL JIK | SOHN CHANG MOOK & SUCKJOO AS TRUSTEES OF THE | | | $300,000.00 | 111740 | 2006-14189 |
|   | |
| 3 | 08/15/2003 | WARRANTY D | WARRANTY DEED | CHO & LEE INVESTMENTS INC | KIM CHUL JIK | | | $270,000.00 | 102798 | 2003-12248 |
|   | |
| 4 | 10/30/1997 | WARRANTY D | WARRANTY DEED | | | | | $160,000.00 | 89244 | 2589-710564 |
|   | |
Payout Agreement
| No payout information available.. |