Property
Account |
| Property ID: | 16849 | Abbreviated Legal Description: | CAINS TAX 1 BLOCK 2 |
| Parcel Number: | 360720570211 | Agent Code: | |
| Type: | Real | | |
| Tax Area: | 1 - OL-140-F | Land Use Code | 58 |
| Open Space: | N | DFL | N |
| Historic Property: | N | Remodel Property: | N |
| Multi-Family Redevelopment: | N | | |
| Township: | 7 | Section: | 20 |
| Range: | 36 |
Location |
| Address: | 201 E MAIN ST WA 99362 | Mapsco: | |
| Neighborhood: | WW Downtown Core Area #2 | Map ID: | |
| Neighborhood CD: | 5342 |
Owner |
| Name: | THOMPSON DAVID W | Owner ID: | 68987 |
| Mailing Address: | 6181 COTTONWOOD RD WALLA WALLA, WA 99362 | % Ownership: | 100.0000000000% |
| | | Exemptions: | |
Taxes and Assessment Details
Values
| (+) Improvement Homesite Value: | + | N/A | |
| (+) Improvement Non-Homesite Value: | + | N/A | |
| (+) Land Homesite Value: | + | N/A | |
| (+) Land Non-Homesite Value: | + | N/A | Ag / Timber Use Value |
| (+) Curr Use (HS): | + | N/A | N/A |
| (+) Curr Use (NHS): | + | N/A | N/A |
| | | -------------------------- | |
| (=) Market Value: | = | N/A | |
| (–) Productivity Loss: | – | N/A | |
| | | -------------------------- | |
| (=) Subtotal: | = | N/A | |
| (+) Senior Appraised Value: | + | N/A | |
| (+) Non-Senior Appraised Value: | + | N/A | |
| | | -------------------------- | |
| (=) Total Appraised Value: | = | N/A | |
| (–) Senior Exemption Loss: | – | N/A | |
| (–) Exemption Loss: | – | N/A | |
| | | -------------------------- | |
| (=) Taxable Value: | = | N/A | |
Taxing Jurisdiction
| Owner: | THOMPSON DAVID W | | |
| % Ownership: | 100.0000000000% | | |
| Total Value: | N/A | | |
| Tax Area: | 1 - OL-140-F |
| CERFD | CURRENT EXPENSE REFUND 010 | N/A | N/A | N/A | N/A | | |
| CURREXP | CURRENT EXPENSE 010 | N/A | N/A | N/A | N/A | | |
| HUMNSERV | HUMAN SERVICES 119 | N/A | N/A | N/A | N/A | | |
| SLDREL | SOLDIERS RELIEF 121 | N/A | N/A | N/A | N/A | | |
| EMERGSER | EMS 147 | N/A | N/A | N/A | N/A | | |
| EMSRFD | EMS REFUND 147 | N/A | N/A | N/A | N/A | | |
| PORTRFD | PORT REFUND 640 | N/A | N/A | N/A | N/A | | |
| PORTWWGEN | PORT OF WW 640 | N/A | N/A | N/A | N/A | | |
| SD140BOND | SD #140 BOND 764 | N/A | N/A | N/A | N/A | | |
| SD140GEN | SD #140 GENERAL 760 | N/A | N/A | N/A | N/A | | |
| ST2 | STATE SCHOOL PART 2 600 | N/A | N/A | N/A | N/A | | |
| STATESCHL | STATE SCHOOL 600 | N/A | N/A | N/A | N/A | | |
| STREFUND | STATE REFUND LEVY 603 | N/A | N/A | N/A | N/A | | |
| CWWBOND | C OF WW BOND 643 | N/A | N/A | N/A | N/A | | |
| CWWGEN | CITY OF WW 631 | N/A | N/A | N/A | N/A | | |
| CWWRFD | CITY OF WALLA WALLA REFUND 631 | N/A | N/A | N/A | N/A | | |
| | Total Tax Rate: | N/A | | | | | |
| | | | | Taxes w/Current Exemptions: | N/A | | |
| | | | | Taxes w/o Exemptions: | N/A | | |
Improvement / Building
| Improvement #1: | COMMERCIAL | State Code: | 58 | 4092.0 sqft | Value: | N/A |
| | Type | Description | Class CD | Sub Class CD | Year Built | Area |
| | MA | Main Area | D | | 1969 | 4092.0 |
| | SI1 | SITE IMPROVEMENT | D | * | 1969 | 4.0 |
Sketch
Property Image
Land
| 1 | COM 1 | Converted: Commercial | 0.1097 | 4779.00 | 0.00 | 0.00 | 1.00 | N/A | N/A |
Roll Value History
| 2026 | N/A | N/A | N/A | N/A | N/A |
| 2025 | $522,600 | $57,400 | $0 | $580,000 | $580,000 |
| 2024 | $521,500 | $57,400 | $0 | $578,900 | $578,900 |
| 2023 | $519,600 | $52,600 | $0 | $572,200 | $572,200 |
| 2022 | $519,600 | $52,600 | $0 | $572,200 | $572,200 |
| 2021 | $519,600 | $52,600 | $0 | $572,200 | $572,200 |
| 2020 | $519,600 | $52,600 | $0 | $572,200 | $572,200 |
| 2019 | $519,600 | $52,600 | $0 | $572,200 | $572,200 |
| 2018 | $519,600 | $52,600 | $0 | $572,200 | $572,200 |
| 2017 | $519,600 | $52,570 | $0 | $572,170 | $572,170 |
| 2016 | $519,600 | $52,570 | $0 | $572,170 | $572,170 |
| 2015 | $359,400 | $47,800 | $0 | $407,200 | $407,200 |
| 2014 | $359,400 | $47,800 | $0 | $407,200 | $407,200 |
| 2013 | $359,400 | $47,800 | $0 | $407,200 | $407,200 |
| 2012 | $386,900 | $47,800 | $0 | $0 | $0 |
| 2011 | $386,900 | $47,800 | $0 | $0 | $0 |
| 2010 | $386,900 | $47,800 | $0 | $0 | $0 |
| 2009 | $401,200 | $33,500 | $0 | $0 | $0 |
| 2008 | $201,500 | $33,500 | $0 | $0 | $0 |
| 2007 | $201,500 | $33,500 | $0 | $0 | $0 |
Deed and Sales History
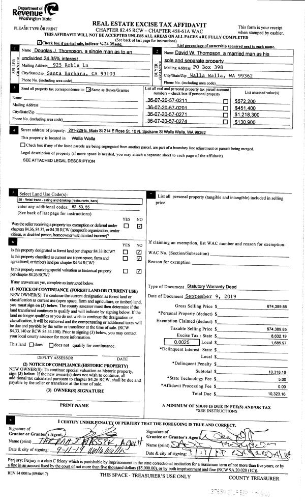
| 1 | 01/24/2021 | SWD | STATUTORY WARRANTY DEED | THOMPSON DAVID W | THOMPSON DAVID W | | 4 PARCELS | $0.00 | 141069 | 2021-02653 |
| 2 | 09/11/2019 | SWD | STATUTORY WARRANTY DEED | THOMPSON DAVID W ET AL | THOMPSON DAVID W | | 4-PARCLES | $674,390.00 | 137659 | 2019-07070 |
|   | |
| 3 | 01/09/2015 | SWD | STATUTORY WARRANTY DEED | BETSY ROSS APARTMENTS LLC | THOMPSON DAVID W ET AL | | 4-PARCELS | $2,740,000.00 | 127276 | 2015-00343 |
|   | |
| 4 | 12/04/2006 | WARRANTY D | WARRANTY DEED | DUKE, LEILANI R | BETSY ROSS APARTMENTS LLC | | | $450,000.00 | 111795 | 2006-14433 |
| 5 | 06/14/2006 | WARRANTY D | WARRANTY DEED | WALTER LEE POST O 32 OF THE | DUKE, LEILANI R | | | | 79974 | 2006-06898 |
| 6 | 09/13/1993 | WARRANTY D | WARRANTY DEED | | | | | $125,000.00 | 79974 | 2109-309445 |
Payout Agreement
| No payout information available.. |