Property
Account |
| Property ID: | 16848 | Abbreviated Legal Description: | CAINS BLDG ONLY (LAND PARCEL 36-07-20-57-0212) |
| Parcel Number: | 360720570274 | Agent Code: | |
| Type: | Real | | |
| Tax Area: | 1 - OL-140-F | Land Use Code | 55 |
| Open Space: | N | DFL | N |
| Historic Property: | N | Remodel Property: | N |
| Multi-Family Redevelopment: | N | | |
| Township: | 7 | Section: | 20 |
| Range: | 36 |
Location |
| Address: | 214 E ROSE ST WA 99362 | Mapsco: | |
| Neighborhood: | WW Downtown Core area #3 | Map ID: | |
| Neighborhood CD: | 5343 |
Owner |
| Name: | THOMPSON DAVID W | Owner ID: | 68987 |
| Mailing Address: | 6181 COTTONWOOD RD WALLA WALLA, WA 99362 | % Ownership: | 100.0000000000% |
| | | Exemptions: | |
Taxes and Assessment Details
Values
| (+) Improvement Homesite Value: | + | N/A | |
| (+) Improvement Non-Homesite Value: | + | N/A | |
| (+) Land Homesite Value: | + | N/A | |
| (+) Land Non-Homesite Value: | + | N/A | Ag / Timber Use Value |
| (+) Curr Use (HS): | + | N/A | N/A |
| (+) Curr Use (NHS): | + | N/A | N/A |
| | | -------------------------- | |
| (=) Market Value: | = | N/A | |
| (–) Productivity Loss: | – | N/A | |
| | | -------------------------- | |
| (=) Subtotal: | = | N/A | |
| (+) Senior Appraised Value: | + | N/A | |
| (+) Non-Senior Appraised Value: | + | N/A | |
| | | -------------------------- | |
| (=) Total Appraised Value: | = | N/A | |
| (–) Senior Exemption Loss: | – | N/A | |
| (–) Exemption Loss: | – | N/A | |
| | | -------------------------- | |
| (=) Taxable Value: | = | N/A | |
Taxing Jurisdiction
| Owner: | THOMPSON DAVID W | | |
| % Ownership: | 100.0000000000% | | |
| Total Value: | N/A | | |
| Tax Area: | 1 - OL-140-F |
| CERFD | CURRENT EXPENSE REFUND 010 | N/A | N/A | N/A | N/A | | |
| CURREXP | CURRENT EXPENSE 010 | N/A | N/A | N/A | N/A | | |
| HUMNSERV | HUMAN SERVICES 119 | N/A | N/A | N/A | N/A | | |
| SLDREL | SOLDIERS RELIEF 121 | N/A | N/A | N/A | N/A | | |
| EMERGSER | EMS 147 | N/A | N/A | N/A | N/A | | |
| EMSRFD | EMS REFUND 147 | N/A | N/A | N/A | N/A | | |
| PORTRFD | PORT REFUND 640 | N/A | N/A | N/A | N/A | | |
| PORTWWGEN | PORT OF WW 640 | N/A | N/A | N/A | N/A | | |
| SD140BOND | SD #140 BOND 764 | N/A | N/A | N/A | N/A | | |
| SD140GEN | SD #140 GENERAL 760 | N/A | N/A | N/A | N/A | | |
| ST2 | STATE SCHOOL PART 2 600 | N/A | N/A | N/A | N/A | | |
| STATESCHL | STATE SCHOOL 600 | N/A | N/A | N/A | N/A | | |
| STREFUND | STATE REFUND LEVY 603 | N/A | N/A | N/A | N/A | | |
| CWWBOND | C OF WW BOND 643 | N/A | N/A | N/A | N/A | | |
| CWWGEN | CITY OF WW 631 | N/A | N/A | N/A | N/A | | |
| CWWRFD | CITY OF WALLA WALLA REFUND 631 | N/A | N/A | N/A | N/A | | |
| | Total Tax Rate: | N/A | | | | | |
| | | | | Taxes w/Current Exemptions: | N/A | | |
| | | | | Taxes w/o Exemptions: | N/A | | |
Improvement / Building
| Improvement #1: | COMMERCIAL | State Code: | 55 | 2988.0 sqft | Value: | N/A |
| | Type | Description | Class CD | Sub Class CD | Year Built | Area |
| | MA | Main Area | D | * | 1995 | 2988.0 |
| | SI1 | SITE IMPROVEMENT | D | * | 1995 | 1.0 |
| | CPC | COVERED CARPORT/PATIO | D | * | 1995 | 96.0 |
Sketch
Property Image
Land
No land segments exist for this property.
Roll Value History
| 2026 | N/A | N/A | N/A | N/A | N/A |
| 2025 | $136,300 | $0 | $0 | $136,300 | $136,300 |
| 2024 | $133,100 | $0 | $0 | $133,100 | $133,100 |
| 2023 | $130,900 | $0 | $0 | $130,900 | $130,900 |
| 2022 | $130,900 | $0 | $0 | $130,900 | $130,900 |
| 2021 | $130,900 | $0 | $0 | $130,900 | $130,900 |
| 2020 | $130,900 | $0 | $0 | $130,900 | $130,900 |
| 2019 | $130,900 | $0 | $0 | $130,900 | $130,900 |
| 2018 | $130,900 | $0 | $0 | $130,900 | $130,900 |
| 2017 | $130,900 | $0 | $0 | $130,900 | $130,900 |
| 2016 | $130,900 | $0 | $0 | $130,900 | $130,900 |
| 2015 | $130,900 | $0 | $0 | $130,900 | $130,900 |
| 2014 | $130,900 | $0 | $0 | $130,900 | $130,900 |
| 2013 | $130,900 | $0 | $0 | $130,900 | $130,900 |
| 2012 | $36,500 | $0 | $0 | $0 | $0 |
| 2011 | $36,500 | $0 | $0 | $0 | $0 |
| 2010 | $36,500 | $0 | $0 | $0 | $0 |
| 2009 | $36,500 | $0 | $0 | $0 | $0 |
| 2008 | $36,500 | $0 | $0 | $0 | $0 |
| 2007 | $36,500 | $0 | $0 | $0 | $0 |
Deed and Sales History
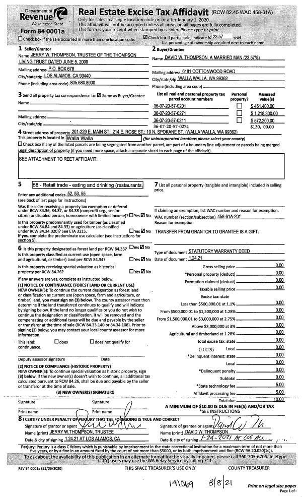
| 1 | 01/24/2021 | SWD | STATUTORY WARRANTY DEED | THOMPSON DAVID W | THOMPSON DAVID W | | 4 PARCELS | $0.00 | 141069 | 2021-02653 |
| 2 | 09/11/2019 | SWD | STATUTORY WARRANTY DEED | THOMPSON DAVID W ET AL | THOMPSON DAVID W | | 4-PARCLES | $674,390.00 | 137659 | 2019-07070 |
|   | |
| 3 | 01/09/2015 | SWD | STATUTORY WARRANTY DEED | BETSY ROSS APARTMENTS LLC | THOMPSON DAVID W ET AL | | 4-PARCELS | $2,740,000.00 | 127276 | 2015-00343 |
|   | |
| 4 | 12/04/2006 | WARRANTY D | WARRANTY DEED | "CORNELIUS, NANCY M" | | | | | 111794 | 2006-14432 |
Payout Agreement
| No payout information available.. |