Property
Account |
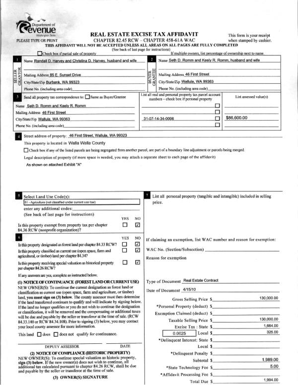
| Property ID: | 1684 | Abbreviated Legal Description: | SEC 14 TWP 7 RNG 31 PARCEL 6 PORTIONOF PARCEL 5 |
| Parcel Number: | 310714340006 | Agent Code: | |
| Type: | Real | | |
| Tax Area: | 327 - 400-5-WI-C-M | Land Use Code | 11 |
| Open Space: | N | DFL | N |
| Historic Property: | N | Remodel Property: | N |
| Multi-Family Redevelopment: | N | | |
| Township: | 7 | Section: | 14 |
| Range: | 31 |
Location |
| Address: | 46 FIRST ST WA 99363 | Mapsco: | |
| Neighborhood: | Wallula A SFR | Map ID: | |
| Neighborhood CD: | 213811 |
Owner |
| Name: | WEAVER ALAN N & TAMARA S | Owner ID: | 56429 |
| Mailing Address: | PO BOX 504 BURBANK, WA 99323 | % Ownership: | 100.0000000000% |
| | | Exemptions: | |
Taxes and Assessment Details
Property Tax Information as of
02/21/2026
Click on "Statement Details" to expand or collapse a tax statement.
* Please enter a valid date ** Please enter a valid date *
Statement Details |
| | TOTAL: | $0.00 | $0.00 | $0.00 | $0.00 | $0.00 | $0.00 |
|
| | $0.00 | $0.00 | $0.00 | $0.00 | $0.00 | $0.00 |
Values
| (+) Improvement Homesite Value: | + | $0 | |
| (+) Improvement Non-Homesite Value: | + | $352,460 | |
| (+) Land Homesite Value: | + | $0 | |
| (+) Land Non-Homesite Value: | + | $68,520 | |
| (+) Curr Use (HS): | + | $0 | $0 |
| (+) Curr Use (NHS): | + | $0 | $0 |
| | | -------------------------- | |
| (=) Market Value: | = | $420,980 | |
| (–) Productivity Loss: | – | $0 | |
| | | -------------------------- | |
| (=) Subtotal: | = | $420,980 | |
| (+) Senior Appraised Value: | + | $0 | |
| (+) Non-Senior Appraised Value: | + | $420,980 | |
| | | -------------------------- | |
| (=) Total Appraised Value: | = | $420,980 | |
| (–) Senior Exemption Loss: | – | $0 | |
| (–) Exemption Loss: | – | $0 | |
| | | -------------------------- | |
| (=) Taxable Value: | = | $420,980 | |
Taxing Jurisdiction
| Owner: | WEAVER ALAN N & TAMARA S | | |
| % Ownership: | 100.0000000000% | | |
| Total Value: | $420,980 | | |
| Tax Area: | 327 - 400-5-WI-C-M |
| CERFD | CURRENT EXPENSE REFUND 010 | 0.0000000000 | $420,980 | $420,980 | $0.00 | | |
| CURREXP | CURRENT EXPENSE 010 | 1.0175366760 | $420,980 | $420,980 | $428.36 | | |
| HUMNSERV | HUMAN SERVICES 119 | 0.0250000000 | $420,980 | $420,980 | $10.52 | | |
| SLDREL | SOLDIERS RELIEF 121 | 0.0155990005 | $420,980 | $420,980 | $6.57 | | |
| EMERGSER | EMS 147 | 0.3792580840 | $420,980 | $420,980 | $159.66 | | |
| EMSRFD | EMS REFUND 147 | 0.0000000000 | $420,980 | $420,980 | $0.00 | | |
| FD5EXP | FD #5 EXPENSE 689 | 1.2045331840 | $420,980 | $420,980 | $507.08 | | |
| RLBRFD | RURAL LIBRARY REFUND 623 | 0.0000000000 | $420,980 | $420,980 | $0.00 | | |
| RURALLIB | RURAL LIBRARY 623 | 0.3710609029 | $420,980 | $420,980 | $156.21 | | |
| PORTRFD | PORT REFUND 640 | 0.0000000000 | $420,980 | $420,980 | $0.00 | | |
| PORTWWGEN | PORT OF WW 640 | 0.2460186015 | $420,980 | $420,980 | $103.57 | | |
| SD400BOND | SD #400 BOND 793 | 0.0000000000 | $420,980 | $420,980 | $0.00 | | |
| SD400CAP | SD #400 CP 792 | 0.3443722657 | $420,980 | $420,980 | $144.97 | | |
| SD400GEN | SD #400 GENERAL 790 | 1.9278469916 | $420,980 | $420,980 | $811.59 | | |
| ST2 | STATE SCHOOL PART 2 600 | 0.8131451643 | $420,980 | $420,980 | $342.32 | | |
| STATESCHL | STATE SCHOOL 600 | 1.5158548041 | $420,980 | $420,980 | $638.14 | | |
| STREFUND | STATE REFUND LEVY 603 | 0.0000000000 | $420,980 | $420,980 | $0.00 | | |
| COROAD | COUNTY ROAD 115 | 1.6549953990 | $420,980 | $420,980 | $696.72 | | |
| CRPRD | COUNTY ROAD REFUND 115 | 0.0000000000 | $420,980 | $420,980 | $0.00 | | |
| | Total Tax Rate: | 9.5152210736 | | | | | |
| | | | | Taxes w/Current Exemptions: | $4,005.71 | | |
| | | | | Taxes w/o Exemptions: | $4,005.71 | | |
Improvement / Building
| Improvement #1: | RESIDENTIAL | State Code: | 11 | 1654.0 sqft | Value: | $352,460 |
| Exterior Wall: | METAL/STEEL | Heating/Cooling: | MINI-SPLIT HP SYSTEM | | Number of Bathrooms: | 2 | Number of Bedrooms: | 3 | | Plumbing: | 15 | Roof Covering: | METAL ROOFING |
|
| | Type | Description | Class CD | Sub Class CD | Year Built | Area |
| | MA | Main Area | 1 | 30 | 2022 | 1654.0 |
| | SI1 | SITE IMPROVEMENT | 1 | 30 | 2022 | 3.0 |
| | ATG | Attached Garage | 1 | 30 | 2022 | 672.0 |
| | RPC | OPEN PORCH W/ROOF , CEILED | 1 | 30 | 2022 | 160.0 |
| | RPC | OPEN PORCH W/ROOF , CEILED | 1 | 30 | 2022 | 181.0 |
| | TOOL | TOOL SHED | 1 | 20 | 2006 | 100.0 |
| | WOD | Wood Deck | 1 | 30 | 2022 | 220.0 |
| | GFP | GAS FIREPLACE | * | 30 | 2022 | 1.0 |
Sketch
Property Image
Land
| 1 | RES 1 | Converted: Residential | 6.6700 | 0.00 | 0.00 | 0.00 | 1.00 | $68,520 | $0 |
Roll Value History
| 2026 | N/A | N/A | N/A | N/A | N/A |
| 2025 | $387,710 | $68,520 | $0 | $456,230 | $456,230 |
| 2024 | $387,710 | $68,520 | $0 | $456,230 | $456,230 |
| 2023 | $352,460 | $68,520 | $0 | $420,980 | $420,980 |
| 2022 | $89,360 | $68,520 | $0 | $157,880 | $157,880 |
| 2021 | $93,060 | $68,520 | $0 | $161,580 | $161,580 |
| 2020 | $93,060 | $41,300 | $0 | $134,360 | $134,360 |
| 2019 | $93,060 | $41,300 | $0 | $134,360 | $134,360 |
| 2018 | $84,600 | $41,300 | $0 | $125,900 | $125,900 |
| 2017 | $84,600 | $41,300 | $0 | $125,900 | $125,900 |
| 2016 | $84,600 | $41,300 | $0 | $125,900 | $125,900 |
| 2015 | $84,600 | $41,300 | $0 | $125,900 | $125,900 |
| 2014 | $84,600 | $41,300 | $0 | $125,900 | $125,900 |
| 2013 | $84,600 | $41,300 | $0 | $125,900 | $125,900 |
| 2012 | $84,600 | $41,300 | $0 | $0 | $0 |
| 2011 | $63,600 | $41,300 | $0 | $0 | $0 |
| 2010 | $45,300 | $41,300 | $0 | $0 | $0 |
| 2009 | $0 | $32,000 | $0 | $0 | $0 |
| 2008 | $0 | $32,000 | $0 | $0 | $0 |
| 2007 | $0 | $32,000 | $0 | $0 | $0 |
Deed and Sales History
| 1 | 04/13/2015 | SWD | STATUTORY WARRANTY DEED | ROMM SETH D & KEELY R | WEAVER ALAN N & TAMARA S | | | $133,000.00 | 127766 | 2015-02987 |
| 2 | 04/20/2015 | FUL | FULFILLMENT DEED | HARVEY RANDALL D & CHRISTINA D | ROMM SETH D & KEELY R | | | | 0 | 2015-03167 |
| 3 | 05/07/2010 | WARRANTY D | WARRANTY DEED | HARVEY, RANDALL D & CHRISTINA | ROMM, SETH D & KEELY R | | | $130,000.00 | 118442 | 2010-03536 |
| 4 | 02/27/2009 | WARRANTY D | WARRANTY DEED | KETCHERSID, MARY E | HARVEY, RANDALL D & CHRISTINA | | | | 108806 | 2009-01912 |
| 5 | 10/19/2005 | WARRANTY D | WARRANTY DEED | KETCHERSIDE, MARY E | HARVEY, RANDALL D & CHRISTINA | | | $60,000.00 | 108806 | 2005-13125 |
| 6 | 10/07/1981 | WARRANTY D | WARRANTY DEED | | | | | $0.00 | 0 | 1308-107525 |
Payout Agreement
| No payout information available.. |