| 1 | 06/15/2018 | SWP | Special Warranty Deed | HSBC BANK USA NATIONAL ASSOCIATION | CRUMLEY DONALD A & LINDA F P | | | $183,011.00 | 134931 | 2018-04834 |
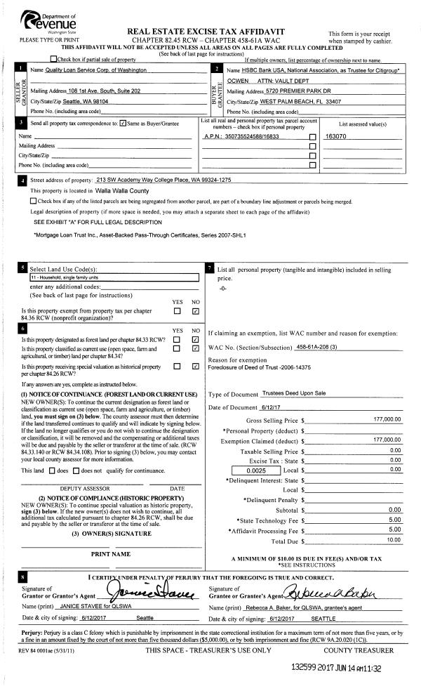
| 2 | 06/14/2017 | TRUSTEES D | TRUSTEE'S DEED | TEWELL RICHARD D & LAURIE R | HSBC BANK USA NATIONAL ASSOCIATION | | | $177,000.00 | 132599 | 2017-04536 |
| 3 | 12/01/2006 | WARRANTY D | WARRANTY DEED | JUHASZ, DAVID A & TANIA K | TEWELL, RICHARD D & LAURIE R | | | $193,490.00 | 111782 | 2006-14374 |
| 4 | 11/08/2004 | WARRANTY D | WARRANTY DEED | CLOUGH, CHESTER B & HELEN L | JUHASZ, DAVID A & TANIA K | | | $175,900.00 | 106141 | 2004-12862 |
| 5 | 10/19/1992 | WARRANTY D | WARRANTY DEED | | | | | $64,500.00 | 77822 | 2019-209370 |