Property
Account |
| Property ID: | 16832 | Abbreviated Legal Description: | GREYSTONE HEIGHTS LOT 1 |
| Parcel Number: | 350610520001 | Agent Code: | |
| Type: | Real | | |
| Tax Area: | 311 - 250-4 | Land Use Code | 11 |
| Open Space: | N | DFL | N |
| Historic Property: | N | Remodel Property: | N |
| Multi-Family Redevelopment: | N | | |
| Township: | 6 | Section: | 10 |
| Range: | 35 |
Location |
| Address: | 63 STARVIEW PL WA 99324 | Mapsco: | |
| Neighborhood: | VG SFR RURAL | Map ID: | |
| Neighborhood CD: | 215013 |
Owner |
| Name: | MASON JUSTIN & ERIN L | Owner ID: | 55770 |
| Mailing Address: | 63 STARVIEW PL WALLA WALLA, WA 99362 | % Ownership: | 100.0000000000% |
| | | Exemptions: | |
Taxes and Assessment Details
Property Tax Information as of
02/21/2026
Click on "Statement Details" to expand or collapse a tax statement.
* Please enter a valid date ** Please enter a valid date *
Statement Details |
| | TOTAL: | $0.00 | $0.00 | $0.00 | $0.00 | $0.00 | $0.00 |
|
| | $0.00 | $0.00 | $0.00 | $0.00 | $0.00 | $0.00 |
Values
| (+) Improvement Homesite Value: | + | $0 | |
| (+) Improvement Non-Homesite Value: | + | $842,670 | |
| (+) Land Homesite Value: | + | $0 | |
| (+) Land Non-Homesite Value: | + | $206,460 | |
| (+) Curr Use (HS): | + | $0 | $0 |
| (+) Curr Use (NHS): | + | $0 | $0 |
| | | -------------------------- | |
| (=) Market Value: | = | $1,049,130 | |
| (–) Productivity Loss: | – | $0 | |
| | | -------------------------- | |
| (=) Subtotal: | = | $1,049,130 | |
| (+) Senior Appraised Value: | + | $0 | |
| (+) Non-Senior Appraised Value: | + | $1,049,130 | |
| | | -------------------------- | |
| (=) Total Appraised Value: | = | $1,049,130 | |
| (–) Senior Exemption Loss: | – | $0 | |
| (–) Exemption Loss: | – | $0 | |
| | | -------------------------- | |
| (=) Taxable Value: | = | $1,049,130 | |
Taxing Jurisdiction
| Owner: | MASON JUSTIN & ERIN L | | |
| % Ownership: | 100.0000000000% | | |
| Total Value: | $1,049,130 | | |
| Tax Area: | 311 - 250-4 |
| CERFD | CURRENT EXPENSE REFUND 010 | 0.0000000000 | $1,049,130 | $1,049,130 | $0.00 | | |
| CURREXP | CURRENT EXPENSE 010 | 1.0175366760 | $1,049,130 | $1,049,130 | $1,067.53 | | |
| HUMNSERV | HUMAN SERVICES 119 | 0.0250000000 | $1,049,130 | $1,049,130 | $26.23 | | |
| SLDREL | SOLDIERS RELIEF 121 | 0.0155990005 | $1,049,130 | $1,049,130 | $16.37 | | |
| EMERGSER | EMS 147 | 0.3792580840 | $1,049,130 | $1,049,130 | $397.89 | | |
| EMSRFD | EMS REFUND 147 | 0.0000000000 | $1,049,130 | $1,049,130 | $0.00 | | |
| FD4EXP | FD #4 EXPENSE 686 | 0.8836993059 | $1,049,130 | $1,049,130 | $927.12 | | |
| RLBRFD | RURAL LIBRARY REFUND 623 | 0.0000000000 | $1,049,130 | $1,049,130 | $0.00 | | |
| RURALLIB | RURAL LIBRARY 623 | 0.3710609029 | $1,049,130 | $1,049,130 | $389.29 | | |
| PORTRFD | PORT REFUND 640 | 0.0000000000 | $1,049,130 | $1,049,130 | $0.00 | | |
| PORTWWGEN | PORT OF WW 640 | 0.2460186015 | $1,049,130 | $1,049,130 | $258.11 | | |
| SD250BOND | SD #250 BOND 773 | 1.4560608159 | $1,049,130 | $1,049,130 | $1,527.60 | | |
| SD250GEN | SD #250 GENERAL 770 | 2.3880724087 | $1,049,130 | $1,049,130 | $2,505.40 | | |
| ST2 | STATE SCHOOL PART 2 600 | 0.8131451643 | $1,049,130 | $1,049,130 | $853.09 | | |
| STATESCHL | STATE SCHOOL 600 | 1.5158548041 | $1,049,130 | $1,049,130 | $1,590.33 | | |
| STREFUND | STATE REFUND LEVY 603 | 0.0000000000 | $1,049,130 | $1,049,130 | $0.00 | | |
| COROAD | COUNTY ROAD 115 | 1.6549953990 | $1,049,130 | $1,049,130 | $1,736.31 | | |
| CRPRD | COUNTY ROAD REFUND 115 | 0.0000000000 | $1,049,130 | $1,049,130 | $0.00 | | |
| | Total Tax Rate: | 10.7663011628 | | | | | |
| | | | | Taxes w/Current Exemptions: | $11,295.27 | | |
| | | | | Taxes w/o Exemptions: | $11,295.27 | | |
Improvement / Building
| Improvement #1: | RESIDENTIAL | State Code: | 11 | 2728.0 sqft | Value: | $842,670 |
| Exterior Wall: | POURED CONCRETE | Heating/Cooling: | HEAT PUMP | | Number of Bathrooms: | 3.5 | Number of Bedrooms: | 3 | | Plumbing: | 15 | Roof Covering: | COMP SHINGLE |
|
| | Type | Description | Class CD | Sub Class CD | Year Built | Area |
| | MA | Main Area | 1 | 50 | 2015 | 2728.0 |
| | ATG | Attached Garage | 1 | 50 | 2015 | 1608.3 |
| | ATG | Attached Garage | 1 | 50 | 2015 | 498.9 |
| | RPC | OPEN PORCH W/ROOF , CEILED | 1 | 50 | 2015 | 1098.3 |
| | RPC | OPEN PORCH W/ROOF , CEILED | 1 | 50 | 2015 | 96.0 |
| | SI1 | SITE IMPROVEMENT | 1 | 50 | 2015 | 5.0 |
| | DTG | Detached Garage | 1 | 50 | 2015 | 2400.0 |
Sketch
Property Image
Land
| 1 | RES 1 | Converted: Residential | 1.9400 | 84506.40 | 0.00 | 0.00 | 1.00 | $206,460 | $0 |
Roll Value History
| 2026 | N/A | N/A | N/A | N/A | N/A |
| 2025 | $884,810 | $206,460 | $0 | $1,091,270 | $1,091,270 |
| 2024 | $884,810 | $206,460 | $0 | $1,091,270 | $1,091,270 |
| 2023 | $842,670 | $206,460 | $0 | $1,049,130 | $1,049,130 |
| 2022 | $551,940 | $206,460 | $0 | $758,400 | $758,400 |
| 2021 | $510,710 | $206,460 | $0 | $717,170 | $717,170 |
| 2020 | $474,600 | $144,700 | $0 | $619,300 | $619,300 |
| 2019 | $474,600 | $144,700 | $0 | $619,300 | $619,300 |
| 2018 | $474,600 | $144,700 | $0 | $619,300 | $619,300 |
| 2017 | $474,600 | $144,700 | $0 | $619,300 | $619,300 |
| 2016 | $474,600 | $144,700 | $0 | $619,300 | $619,300 |
| 2015 | $255,500 | $79,700 | $0 | $335,200 | $335,200 |
| 2014 | $0 | $79,700 | $0 | $79,700 | $79,700 |
| 2013 | $0 | $79,700 | $4,702 | $79,700 | $79,700 |
| 2012 | $0 | $79,700 | $0 | $0 | $0 |
| 2011 | $0 | $79,700 | $0 | $0 | $0 |
| 2010 | $0 | $79,700 | $0 | $0 | $0 |
| 2009 | $0 | $79,700 | $0 | $0 | $0 |
| 2008 | $0 | $48,800 | $0 | $0 | $0 |
| 2007 | $0 | $48,800 | $0 | $0 | $0 |
Deed and Sales History
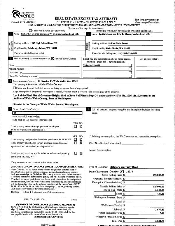
| 1 | 11/04/2014 | SWD | STATUTORY WARRANTY DEED | CONRAD RICHARD J & JOAN W | MASON JUSTIN & ERIN L | | | $175,000.00 | 126885 | 2014-08071 |
| 2 | 12/12/2006 | WARRANTY D | WARRANTY DEED | VOTH, RICK & TERI | CONRAD, RICHARD J & JOAN W | | | $170,000.00 | 111873 | 2006-14800 |
Payout Agreement
| No payout information available.. |