Property
Account |
| Property ID: | 16796 | Abbreviated Legal Description: | CHASE N 51.57' OF LOT 13 BLK 2 LESS ALLEY |
| Parcel Number: | 360729580225 | Agent Code: | |
| Type: | Real | | |
| Tax Area: | 1 - OL-140-F | Land Use Code | 11 |
| Open Space: | N | DFL | N |
| Historic Property: | N | Remodel Property: | N |
| Multi-Family Redevelopment: | N | | |
| Township: | 7 | Section: | 29 |
| Range: | 36 |
Location |
| Address: | 520 S 4TH AVE WA 99362 | Mapsco: | |
| Neighborhood: | Fair Res | Map ID: | |
| Neighborhood CD: | 612011 |
Owner |
| Name: | SALGADO NESTOR DIAZ & LILIA MORALES DIAZ | Owner ID: | 69181 |
| Mailing Address: | 295 NE DECCIO RD COLLEGE PLACE, WA 99324 | % Ownership: | 100.0000000000% |
| | | Exemptions: | |
Taxes and Assessment Details
Property Tax Information as of
02/21/2026
Click on "Statement Details" to expand or collapse a tax statement.
* Please enter a valid date ** Please enter a valid date *
Statement Details |
| | TOTAL: | $0.00 | $0.00 | $0.00 | $0.00 | $0.00 | $0.00 |
|
| | $0.00 | $0.00 | $0.00 | $0.00 | $0.00 | $0.00 |
Values
| (+) Improvement Homesite Value: | + | $0 | |
| (+) Improvement Non-Homesite Value: | + | $165,370 | |
| (+) Land Homesite Value: | + | $0 | |
| (+) Land Non-Homesite Value: | + | $19,200 | |
| (+) Curr Use (HS): | + | $0 | $0 |
| (+) Curr Use (NHS): | + | $0 | $0 |
| | | -------------------------- | |
| (=) Market Value: | = | $184,570 | |
| (–) Productivity Loss: | – | $0 | |
| | | -------------------------- | |
| (=) Subtotal: | = | $184,570 | |
| (+) Senior Appraised Value: | + | $0 | |
| (+) Non-Senior Appraised Value: | + | $184,570 | |
| | | -------------------------- | |
| (=) Total Appraised Value: | = | $184,570 | |
| (–) Senior Exemption Loss: | – | $0 | |
| (–) Exemption Loss: | – | $0 | |
| | | -------------------------- | |
| (=) Taxable Value: | = | $184,570 | |
Taxing Jurisdiction
| Owner: | SALGADO NESTOR DIAZ & LILIA MORALES DIAZ | | |
| % Ownership: | 100.0000000000% | | |
| Total Value: | $184,570 | | |
| Tax Area: | 1 - OL-140-F |
| CERFD | CURRENT EXPENSE REFUND 010 | 0.0000000000 | $184,570 | $184,570 | $0.00 | | |
| CURREXP | CURRENT EXPENSE 010 | 1.0175366760 | $184,570 | $184,570 | $187.81 | | |
| HUMNSERV | HUMAN SERVICES 119 | 0.0250000000 | $184,570 | $184,570 | $4.61 | | |
| SLDREL | SOLDIERS RELIEF 121 | 0.0155990005 | $184,570 | $184,570 | $2.88 | | |
| EMERGSER | EMS 147 | 0.3792580840 | $184,570 | $184,570 | $70.00 | | |
| EMSRFD | EMS REFUND 147 | 0.0000000000 | $184,570 | $184,570 | $0.00 | | |
| PORTRFD | PORT REFUND 640 | 0.0000000000 | $184,570 | $184,570 | $0.00 | | |
| PORTWWGEN | PORT OF WW 640 | 0.2460186015 | $184,570 | $184,570 | $45.41 | | |
| SD140BOND | SD #140 BOND 764 | 0.8342371393 | $184,570 | $184,570 | $153.98 | | |
| SD140GEN | SD #140 GENERAL 760 | 2.0646500647 | $184,570 | $184,570 | $381.07 | | |
| ST2 | STATE SCHOOL PART 2 600 | 0.8131451643 | $184,570 | $184,570 | $150.08 | | |
| STATESCHL | STATE SCHOOL 600 | 1.5158548041 | $184,570 | $184,570 | $279.78 | | |
| STREFUND | STATE REFUND LEVY 603 | 0.0000000000 | $184,570 | $184,570 | $0.00 | | |
| CWWBOND | C OF WW BOND 643 | 0.2760494372 | $184,570 | $184,570 | $50.95 | | |
| CWWGEN | CITY OF WW 631 | 1.6100204973 | $184,570 | $184,570 | $297.16 | | |
| CWWRFD | CITY OF WALLA WALLA REFUND 631 | 0.0000000000 | $184,570 | $184,570 | $0.00 | | |
| | Total Tax Rate: | 8.7973694689 | | | | | |
| | | | | Taxes w/Current Exemptions: | $1,623.73 | | |
| | | | | Taxes w/o Exemptions: | $1,623.73 | | |
Improvement / Building
| Improvement #1: | RESIDENTIAL | State Code: | 11 | 640.0 sqft | Value: | $165,370 |
| Exterior Wall: | HARDBOARD | Heating/Cooling: | BASEBOARD ELECTRIC | | Number of Bathrooms: | 1 | Number of Bedrooms: | 1 | | Plumbing: | 7 | Roof Covering: | COMP SHINGLE |
|
| | Type | Description | Class CD | Sub Class CD | Year Built | Area |
| | MA | Main Area | 1 | 20 | 1900 | 640.0 |
| | SI1 | SITE IMPROVEMENT | 1 | 20 | 1900 | 1.0 |
| | OPS | OPEN PORCH W/STEPS | 1 | 20 | 1900 | 20.0 |
Sketch
Property Image
Land
| 1 | RES 1 | Converted: Residential | 0.0551 | 2400.00 | 0.00 | 0.00 | 1.00 | $19,200 | $0 |
Roll Value History
| 2026 | N/A | N/A | N/A | N/A | N/A |
| 2025 | $160,720 | $24,000 | $0 | $184,720 | $184,720 |
| 2024 | $165,370 | $19,200 | $0 | $184,570 | $184,570 |
| 2023 | $165,370 | $19,200 | $0 | $184,570 | $184,570 |
| 2022 | $157,490 | $15,000 | $0 | $172,490 | $172,490 |
| 2021 | $136,950 | $15,000 | $0 | $151,950 | $151,950 |
| 2020 | $91,300 | $15,000 | $0 | $106,300 | $106,300 |
| 2019 | $91,300 | $15,000 | $0 | $106,300 | $106,300 |
| 2018 | $91,890 | $14,400 | $0 | $106,290 | $106,290 |
| 2017 | $70,690 | $14,400 | $0 | $85,090 | $85,090 |
| 2016 | $67,320 | $14,400 | $0 | $81,720 | $81,720 |
| 2015 | $67,320 | $14,400 | $0 | $81,720 | $81,720 |
| 2014 | $61,200 | $14,400 | $0 | $75,600 | $75,600 |
| 2013 | $61,200 | $14,400 | $0 | $75,600 | $75,600 |
| 2012 | $66,900 | $14,400 | $0 | $0 | $0 |
| 2011 | $66,900 | $14,400 | $0 | $0 | $0 |
| 2010 | $59,500 | $14,400 | $0 | $0 | $0 |
| 2009 | $67,700 | $14,400 | $0 | $0 | $0 |
| 2008 | $67,700 | $14,400 | $0 | $0 | $0 |
| 2007 | $38,300 | $4,800 | $0 | $0 | $0 |
Deed and Sales History
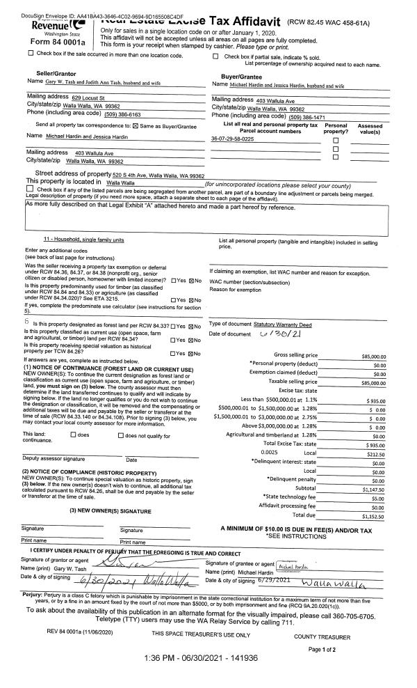
| 1 | 10/28/2021 | SWD | STATUTORY WARRANTY DEED | HARDIN MICHAEL & JESSICA | SALGADO NESTOR DIAZ & LILIA MORALES DIAZ | | | $181,700.00 | 142752 | 2021-12982 |
| 2 | 06/30/2021 | SWD | STATUTORY WARRANTY DEED | TASH GARY W & JUDITH ANN | HARDIN MICHAEL & JESSICA | | | $85,000.00 | 141936 | 2021-07968 |
| 3 | 05/07/2021 | AGREEMENT | AGREEMENT | TASH GARY W & JUDITH ANN | | | | | 0 | 2021-05528 |
| 4 | 12/15/2006 | WARRANTY D | WARRANTY DEED | ADAMS, JEFFREY | TASH, GARY W & JUDITH ANN | | | $82,500.00 | 111911 | 2006-14972 |
| 5 | 09/25/2003 | WARRANTY D | WARRANTY DEED | HARRAL, ELAINE RAE | ADAMS, JEFFREY | | | $32,000.00 | 103081 | 2003-14680 |
| 6 | 12/30/1997 | WARRANTY D | WARRANTY DEED | | | | | $31,000.00 | 89621 | 2619-712788 |
Payout Agreement
| No payout information available.. |