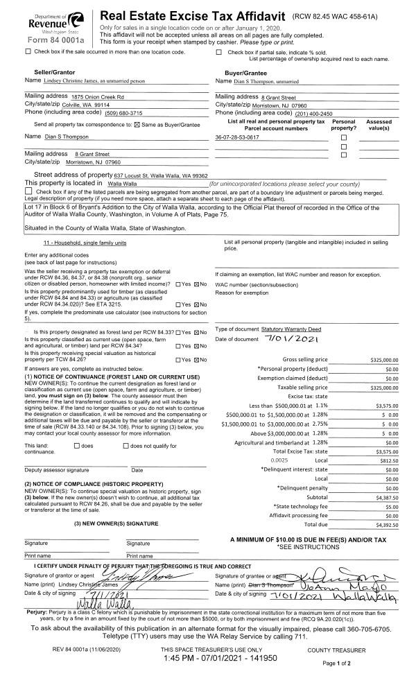
Property
Account |
| Property ID: | 16793 | Abbreviated Legal Description: | BRYANTS LOT 17 BLK 6 |
| Parcel Number: | 360728530617 | Agent Code: | |
| Type: | Real | | |
| Tax Area: | 1 - OL-140-F | Land Use Code | 11 |
| Open Space: | N | DFL | N |
| Historic Property: | N | Remodel Property: | N |
| Multi-Family Redevelopment: | N | | |
| Township: | 7 | Section: | 28 |
| Range: | 36 |
Location |
| Address: | 637 LOCUST ST WA 99362 | Mapsco: | |
| Neighborhood: | A Res | Map ID: | |
| Neighborhood CD: | 613011 |
Owner |
| Name: | THOMPSON DIAN S | Owner ID: | 69725 |
| Mailing Address: | 637 LOCUST ST WALLA WALLA, WA 99362 | % Ownership: | 100.0000000000% |
| | | Exemptions: | |
Taxes and Assessment Details
Values
| (+) Improvement Homesite Value: | + | $0 | |
| (+) Improvement Non-Homesite Value: | + | $276,160 | |
| (+) Land Homesite Value: | + | $0 | |
| (+) Land Non-Homesite Value: | + | $70,000 | |
| (+) Curr Use (HS): | + | $0 | $0 |
| (+) Curr Use (NHS): | + | $0 | $0 |
| | | -------------------------- | |
| (=) Market Value: | = | $346,160 | |
| (–) Productivity Loss: | – | $0 | |
| | | -------------------------- | |
| (=) Subtotal: | = | $346,160 | |
| (+) Senior Appraised Value: | + | $0 | |
| (+) Non-Senior Appraised Value: | + | $346,160 | |
| | | -------------------------- | |
| (=) Total Appraised Value: | = | $346,160 | |
| (–) Senior Exemption Loss: | – | $0 | |
| (–) Exemption Loss: | – | $0 | |
| | | -------------------------- | |
| (=) Taxable Value: | = | $346,160 | |
Taxing Jurisdiction
| Owner: | THOMPSON DIAN S | | |
| % Ownership: | 100.0000000000% | | |
| Total Value: | $346,160 | | |
| Tax Area: | 1 - OL-140-F |
| CERFD | CURRENT EXPENSE REFUND 010 | 0.0000000000 | $346,160 | $346,160 | $0.00 | | |
| CURREXP | CURRENT EXPENSE 010 | 1.0175366760 | $346,160 | $346,160 | $352.23 | | |
| HUMNSERV | HUMAN SERVICES 119 | 0.0250000000 | $346,160 | $346,160 | $8.65 | | |
| SLDREL | SOLDIERS RELIEF 121 | 0.0155990005 | $346,160 | $346,160 | $5.40 | | |
| EMERGSER | EMS 147 | 0.3792580840 | $346,160 | $346,160 | $131.28 | | |
| EMSRFD | EMS REFUND 147 | 0.0000000000 | $346,160 | $346,160 | $0.00 | | |
| PORTRFD | PORT REFUND 640 | 0.0000000000 | $346,160 | $346,160 | $0.00 | | |
| PORTWWGEN | PORT OF WW 640 | 0.2460186015 | $346,160 | $346,160 | $85.16 | | |
| SD140BOND | SD #140 BOND 764 | 0.8342371393 | $346,160 | $346,160 | $288.78 | | |
| SD140GEN | SD #140 GENERAL 760 | 2.0646500647 | $346,160 | $346,160 | $714.70 | | |
| ST2 | STATE SCHOOL PART 2 600 | 0.8131451643 | $346,160 | $346,160 | $281.48 | | |
| STATESCHL | STATE SCHOOL 600 | 1.5158548041 | $346,160 | $346,160 | $524.73 | | |
| STREFUND | STATE REFUND LEVY 603 | 0.0000000000 | $346,160 | $346,160 | $0.00 | | |
| CWWBOND | C OF WW BOND 643 | 0.2760494372 | $346,160 | $346,160 | $95.56 | | |
| CWWGEN | CITY OF WW 631 | 1.6100204973 | $346,160 | $346,160 | $557.32 | | |
| CWWRFD | CITY OF WALLA WALLA REFUND 631 | 0.0000000000 | $346,160 | $346,160 | $0.00 | | |
| | Total Tax Rate: | 8.7973694689 | | | | | |
| | | | | Taxes w/Current Exemptions: | $3,045.29 | | |
| | | | | Taxes w/o Exemptions: | $3,045.29 | | |
Improvement / Building
| Improvement #1: | RESIDENTIAL | State Code: | 11 | 918.0 sqft | Value: | $276,160 |
| Exterior Wall: | SIDING | Heating/Cooling: | WARM & COOLED AIR | | Number of Bathrooms: | 1 | Number of Bedrooms: | 2 | | Plumbing: | 7 | Roof Covering: | COMP SHINGLE |
|
| | Type | Description | Class CD | Sub Class CD | Year Built | Area |
| | MA | Main Area | 1 | 30 | 1890 | 918.0 |
| | SI1 | SITE IMPROVEMENT | 1 | 30 | 1890 | 1.0 |
| | BASE | BASEMENT | 1 | 30 | 1890 | 400.0 |
| | RCD | WOOD DECK W/ROOF, CEILED | 1 | 30 | 1890 | 50.0 |
| | WDR | WOOD DECK W/ROOF | 1 | 30 | 1890 | 180.0 |
| | DTG | Detached Garage | 1 | 30 | 1890 | 500.0 |
Sketch
Property Image
Land
| 1 | RES 1 | Converted: Residential | 0.1377 | 6000.00 | 0.00 | 0.00 | 1.00 | $70,000 | $0 |
Roll Value History
| 2026 | N/A | N/A | N/A | N/A | N/A |
| 2025 | $255,880 | $66,000 | $0 | $321,880 | $321,880 |
| 2024 | $276,160 | $70,000 | $0 | $346,160 | $346,160 |
| 2023 | $276,160 | $70,000 | $0 | $346,160 | $346,160 |
| 2022 | $230,130 | $55,000 | $0 | $285,130 | $285,130 |
| 2021 | $148,470 | $55,000 | $0 | $203,470 | $203,470 |
| 2020 | $114,210 | $55,000 | $0 | $169,210 | $169,210 |
| 2019 | $114,210 | $55,000 | $0 | $169,210 | $169,210 |
| 2018 | $121,720 | $36,000 | $0 | $157,720 | $157,720 |
| 2017 | $121,720 | $36,000 | $0 | $157,720 | $157,720 |
| 2016 | $105,840 | $36,000 | $0 | $141,840 | $141,840 |
| 2015 | $105,840 | $36,000 | $0 | $141,840 | $141,840 |
| 2014 | $75,600 | $36,000 | $0 | $111,600 | $111,600 |
| 2013 | $75,600 | $36,000 | $0 | $111,600 | $111,600 |
| 2012 | $75,600 | $36,000 | $0 | $0 | $0 |
| 2011 | $75,600 | $36,000 | $0 | $0 | $0 |
| 2010 | $70,300 | $36,000 | $0 | $0 | $0 |
| 2009 | $82,100 | $36,000 | $0 | $0 | $0 |
| 2008 | $82,100 | $36,000 | $0 | $0 | $0 |
| 2007 | $62,300 | $18,000 | $0 | $0 | $0 |
Deed and Sales History
| 1 | 07/01/2021 | SWD | STATUTORY WARRANTY DEED | JAMES LINDSEY CHRISTINE | THOMPSON DIAN S | | | $325,000.00 | 141950 | 2021-08024 |
| 2 | 08/06/2015 | SWD | STATUTORY WARRANTY DEED | TEAL CHRISTOPHER L | JAMES LINDSEY CHRISTINE | | | $150,000.00 | 128558 | 2015-06814 |
| 3 | 11/20/2006 | QCD | QUIT CLAIM DEED | TEAL, ALFRED LEE | TEAL, CHRISTOPHER L | | | | 111691 | 2006-13879 |
| 4 | 11/10/2005 | WARRANTY D | WARRANTY DEED | WELLS FARGO FINANCIAL WASHINGT | TEAL, ALFRED LEE | | | $95,500.00 | 108997 | 2005-14198 |
| 5 | 09/09/2005 | WARRANTY D | WARRANTY DEED | NORTHWEST TRUSTEE SERVICES INC | WELLS FARGO FINANCIAL WASHINGT | | | $117,717.00 | 108455 | 2005-11181 |
| 6 | 01/18/2002 | WARRANTY D | WARRANTY DEED | | | | | $79,900.00 | 98760 | 3270-200614 |
Payout Agreement
| No payout information available.. |