| 1 | 01/12/2018 | SWP | Special Warranty Deed | BHG WALLA WALLA LLC | THE IMPERIAL FIVE HUNDRED LLC | | 4-PARCELS | $3,550,000.00 | 133987 | 2018-00335 |
|   | |
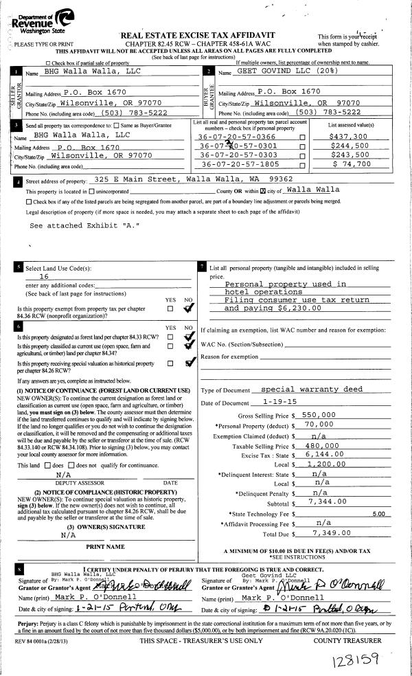
| 2 | 06/17/2015 | SWP | Special Warranty Deed | BHG WALLA WALLA LLC | BHG WALLA WALLA LLC | | 4-PARCELS | $480,000.00 | 128159 | 2015-05066 |
|   | |
| 3 | 10/01/2007 | WARRANTY D | WARRANTY DEED | STERLING SAVINGS BANK | BHG WALLA WALLA LLC | | | | 113803 | 2007-11447 |
| 4 | 01/12/2007 | WARRANTY D | WARRANTY DEED | "HUMPHREYS, J MICHAEL AS~SHERI | | | | | 112079 | 2007-00518 |
| 5 | 11/30/2006 | WARRANTY D | WARRANTY DEED | STOLLER TRUST | STERLING SAVINGS BANK | | | | 111774 | 2006-14328 |
| 6 | 12/22/2004 | WARRANTY D | WARRANTY DEED | "STOLLER, STEPHEN O" | | | | | 106471 | 2004-14727 |
| 7 | 12/22/2004 | WARRANTY D | WARRANTY DEED | "STOLLER, JOHN L" | | | | | 106472 | 2004-14728 |
| 8 | 12/22/2004 | WARRANTY D | WARRANTY DEED | "THOM, BARBARA" | | | | | 106475 | 2004-14731 |
| 9 | 12/22/2004 | WARRANTY D | WARRANTY DEED | "STOLLER, JAMES N" | | | | | 106474 | 2004-14730 |
| 10 | 12/22/2004 | WARRANTY D | WARRANTY DEED | "STOLLER, JERRY E" | STOLLER TRUST | | | | 106476 | 2004-14732 |
| 11 | 12/22/2004 | WARRANTY D | WARRANTY DEED | "STOLLER, BERNICE E" | | | | | 106473 | 2004-14729 |
| 12 | 11/15/1979 | QCD | QUIT CLAIM DEED | | | | | $0.00 | 0 | 1147-910655 |