Property
Account |
| Property ID: | 16782 | Abbreviated Legal Description: | CAINS LOTS 3, 4 AND 5 BLK 3 |
| Parcel Number: | 360720570303 | Agent Code: | |
| Type: | Real | | |
| Tax Area: | 1 - OL-140-F | Land Use Code | 16 |
| Open Space: | N | DFL | N |
| Historic Property: | N | Remodel Property: | N |
| Multi-Family Redevelopment: | N | | |
| Township: | 7 | Section: | 20 |
| Range: | 36 |
Location |
| Address: | 325 E MAIN ST BLDG E WALLA WALLA, WA 99362 | Mapsco: | |
| Neighborhood: | WW Downtown Core Area #2 | Map ID: | |
| Neighborhood CD: | 5342 |
Owner |
| Name: | THE IMPERIAL FIVE HUNDRED LLC | Owner ID: | 62394 |
| Mailing Address: | C/O COLUMBIA HOSPITALITY INC 2200 ALASKAN WAY STE 200 SEATTLE, WA 98121 | % Ownership: | 100.0000000000% |
| | | Exemptions: | |
Taxes and Assessment Details
Values
| (+) Improvement Homesite Value: | + | $0 | |
| (+) Improvement Non-Homesite Value: | + | $0 | |
| (+) Land Homesite Value: | + | $0 | |
| (+) Land Non-Homesite Value: | + | $429,300 | |
| (+) Curr Use (HS): | + | $0 | $0 |
| (+) Curr Use (NHS): | + | $0 | $0 |
| | | -------------------------- | |
| (=) Market Value: | = | $429,300 | |
| (–) Productivity Loss: | – | $0 | |
| | | -------------------------- | |
| (=) Subtotal: | = | $429,300 | |
| (+) Senior Appraised Value: | + | $0 | |
| (+) Non-Senior Appraised Value: | + | $429,300 | |
| | | -------------------------- | |
| (=) Total Appraised Value: | = | $429,300 | |
| (–) Senior Exemption Loss: | – | $0 | |
| (–) Exemption Loss: | – | $0 | |
| | | -------------------------- | |
| (=) Taxable Value: | = | $429,300 | |
Taxing Jurisdiction
| Owner: | THE IMPERIAL FIVE HUNDRED LLC | | |
| % Ownership: | 100.0000000000% | | |
| Total Value: | $429,300 | | |
| Tax Area: | 1 - OL-140-F |
| CERFD | CURRENT EXPENSE REFUND 010 | 0.0000000000 | $429,300 | $429,300 | $0.00 | | |
| CURREXP | CURRENT EXPENSE 010 | 1.0175366760 | $429,300 | $429,300 | $436.83 | | |
| HUMNSERV | HUMAN SERVICES 119 | 0.0250000000 | $429,300 | $429,300 | $10.73 | | |
| SLDREL | SOLDIERS RELIEF 121 | 0.0155990005 | $429,300 | $429,300 | $6.70 | | |
| EMERGSER | EMS 147 | 0.3792580840 | $429,300 | $429,300 | $162.82 | | |
| EMSRFD | EMS REFUND 147 | 0.0000000000 | $429,300 | $429,300 | $0.00 | | |
| PORTRFD | PORT REFUND 640 | 0.0000000000 | $429,300 | $429,300 | $0.00 | | |
| PORTWWGEN | PORT OF WW 640 | 0.2460186015 | $429,300 | $429,300 | $105.62 | | |
| SD140BOND | SD #140 BOND 764 | 0.8342371393 | $429,300 | $429,300 | $358.14 | | |
| SD140GEN | SD #140 GENERAL 760 | 2.0646500647 | $429,300 | $429,300 | $886.35 | | |
| ST2 | STATE SCHOOL PART 2 600 | 0.8131451643 | $429,300 | $429,300 | $349.08 | | |
| STATESCHL | STATE SCHOOL 600 | 1.5158548041 | $429,300 | $429,300 | $650.76 | | |
| STREFUND | STATE REFUND LEVY 603 | 0.0000000000 | $429,300 | $429,300 | $0.00 | | |
| CWWBOND | C OF WW BOND 643 | 0.2760494372 | $429,300 | $429,300 | $118.51 | | |
| CWWGEN | CITY OF WW 631 | 1.6100204973 | $429,300 | $429,300 | $691.18 | | |
| CWWRFD | CITY OF WALLA WALLA REFUND 631 | 0.0000000000 | $429,300 | $429,300 | $0.00 | | |
| | Total Tax Rate: | 8.7973694689 | | | | | |
| | | | | Taxes w/Current Exemptions: | $3,776.72 | | |
| | | | | Taxes w/o Exemptions: | $3,776.72 | | |
Improvement / Building
Sketch
| No sketches available for this property. |
Property Image
Land
| 1 | COM 1 | Converted: Commercial | 0.5133 | 22361.00 | 0.00 | 0.00 | 1.00 | $429,300 | $0 |
Roll Value History
| 2026 | N/A | N/A | N/A | N/A | N/A |
| 2025 | $0 | $447,200 | $0 | $447,200 | $447,200 |
| 2024 | $0 | $447,200 | $0 | $447,200 | $447,200 |
| 2023 | $0 | $429,300 | $0 | $429,300 | $429,300 |
| 2022 | $0 | $429,300 | $0 | $429,300 | $429,300 |
| 2021 | $0 | $429,300 | $0 | $429,300 | $429,300 |
| 2020 | $0 | $429,300 | $0 | $429,300 | $429,300 |
| 2019 | $0 | $429,300 | $0 | $429,300 | $429,300 |
| 2018 | $0 | $429,300 | $0 | $429,300 | $429,300 |
| 2017 | $0 | $243,500 | $0 | $243,500 | $243,500 |
| 2016 | $0 | $243,500 | $0 | $243,500 | $243,500 |
| 2015 | $0 | $243,500 | $0 | $243,500 | $243,500 |
| 2014 | $0 | $243,500 | $0 | $243,500 | $243,500 |
| 2013 | $0 | $243,500 | $0 | $243,500 | $243,500 |
| 2012 | $0 | $134,200 | $0 | $0 | $0 |
| 2011 | $0 | $134,200 | $0 | $0 | $0 |
| 2010 | $0 | $134,200 | $0 | $0 | $0 |
| 2009 | $0 | $134,200 | $0 | $0 | $0 |
| 2008 | $0 | $134,200 | $0 | $0 | $0 |
| 2007 | $0 | $134,200 | $0 | $0 | $0 |
Deed and Sales History
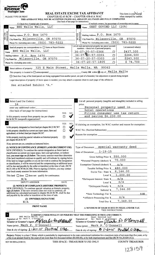
| 1 | 01/12/2018 | SWP | Special Warranty Deed | BHG WALLA WALLA LLC | THE IMPERIAL FIVE HUNDRED LLC | | 4-PARCELS | $3,550,000.00 | 133987 | 2018-00335 |
|   | |
| 2 | 06/17/2015 | SWP | Special Warranty Deed | BHG WALLA WALLA LLC | BHG WALLA WALLA LLC | | 4-PARCELS | $480,000.00 | 128159 | 2015-05066 |
|   | |
| 3 | 10/01/2007 | WARRANTY D | WARRANTY DEED | STERLING SAVINGS BANK | BHG WALLA WALLA LLC | | | | 113803 | 2007-11447 |
| 4 | 01/12/2007 | WARRANTY D | WARRANTY DEED | "HUMPHREYS, J MICHAEL AS~SHERI | | | | | 112079 | 2007-00518 |
| 5 | 11/30/2006 | WARRANTY D | WARRANTY DEED | STOLLER TRUST | STERLING SAVINGS BANK | | | | 111774 | 2006-14328 |
| 6 | 12/22/2004 | WARRANTY D | WARRANTY DEED | "STOLLER, BERNICE E" | | | | | 106473 | 2004-14729 |
| 7 | 12/22/2004 | WARRANTY D | WARRANTY DEED | "STOLLER, JOHN L" | | | | | 106472 | 2004-14728 |
| 8 | 12/22/2004 | WARRANTY D | WARRANTY DEED | "STOLLER, JAMES N" | | | | | 106474 | 2004-14730 |
| 9 | 12/22/2004 | WARRANTY D | WARRANTY DEED | "THOM, BARBARA" | | | | | 106475 | 2004-14731 |
| 10 | 12/22/2004 | WARRANTY D | WARRANTY DEED | "STOLLER, STEPHEN O" | | | | | 106471 | 2004-14727 |
| 11 | 12/22/2004 | WARRANTY D | WARRANTY DEED | "STOLLER, JERRY E" | STOLLER TRUST | | | | 106476 | 2004-14732 |
| 12 | 11/15/1979 | QCD | QUIT CLAIM DEED | | | | | $0.00 | 0 | 1147-910655 |
Payout Agreement
| No payout information available.. |