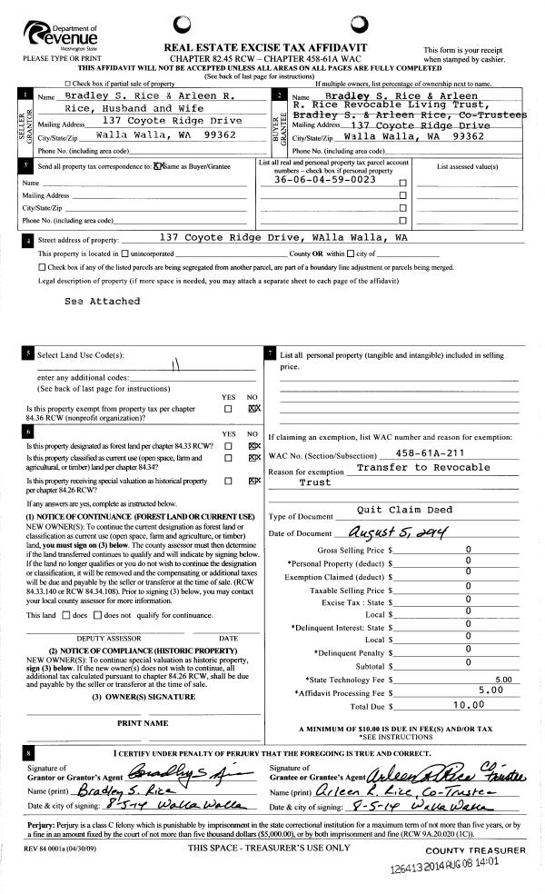
Property
Account |
| Property ID: | 16780 | Abbreviated Legal Description: | TABLEROCK SUBDIVISION II LOT 23 |
| Parcel Number: | 360604590023 | Agent Code: | |
| Type: | Real | | |
| Tax Area: | 5 - OL-140 | Land Use Code | 11 |
| Open Space: | N | DFL | N |
| Historic Property: | N | Remodel Property: | N |
| Multi-Family Redevelopment: | N | | |
| Township: | 6 | Section: | 4 |
| Range: | 36 |
Location |
| Address: | 137 COYOTE RIDGE DR WA 99362 | Mapsco: | |
| Neighborhood: | VG Res Rural/City Inf | Map ID: | |
| Neighborhood CD: | 615012 |
Owner |
| Name: | THE BRADLEY S RICE & ARLEEN R RICE REVOCABLE LVG TRST | Owner ID: | 55390 |
| Mailing Address: | BRADLEY S RICE & ARLEEN R RICE CO-TRUSTEES 137 COYOTE RIDGE RD WALLA WALLA, WA 99362 | % Ownership: | 100.0000000000% |
| | | Exemptions: | |
Taxes and Assessment Details
Values
| (+) Improvement Homesite Value: | + | $0 | |
| (+) Improvement Non-Homesite Value: | + | $497,910 | |
| (+) Land Homesite Value: | + | $0 | |
| (+) Land Non-Homesite Value: | + | $135,000 | |
| (+) Curr Use (HS): | + | $0 | $0 |
| (+) Curr Use (NHS): | + | $0 | $0 |
| | | -------------------------- | |
| (=) Market Value: | = | $632,910 | |
| (–) Productivity Loss: | – | $0 | |
| | | -------------------------- | |
| (=) Subtotal: | = | $632,910 | |
| (+) Senior Appraised Value: | + | $0 | |
| (+) Non-Senior Appraised Value: | + | $632,910 | |
| | | -------------------------- | |
| (=) Total Appraised Value: | = | $632,910 | |
| (–) Senior Exemption Loss: | – | $0 | |
| (–) Exemption Loss: | – | $0 | |
| | | -------------------------- | |
| (=) Taxable Value: | = | $632,910 | |
Taxing Jurisdiction
| Owner: | THE BRADLEY S RICE & ARLEEN R RICE REVOCABLE LVG TRST | | |
| % Ownership: | 100.0000000000% | | |
| Total Value: | $632,910 | | |
| Tax Area: | 5 - OL-140 |
| CERFD | CURRENT EXPENSE REFUND 010 | 0.0000000000 | $632,910 | $632,910 | $0.00 | | |
| CURREXP | CURRENT EXPENSE 010 | 1.0175366760 | $632,910 | $632,910 | $644.01 | | |
| HUMNSERV | HUMAN SERVICES 119 | 0.0250000000 | $632,910 | $632,910 | $15.82 | | |
| SLDREL | SOLDIERS RELIEF 121 | 0.0155990005 | $632,910 | $632,910 | $9.87 | | |
| EMERGSER | EMS 147 | 0.3792580840 | $632,910 | $632,910 | $240.04 | | |
| EMSRFD | EMS REFUND 147 | 0.0000000000 | $632,910 | $632,910 | $0.00 | | |
| PORTRFD | PORT REFUND 640 | 0.0000000000 | $632,910 | $632,910 | $0.00 | | |
| PORTWWGEN | PORT OF WW 640 | 0.2460186015 | $632,910 | $632,910 | $155.71 | | |
| SD140BOND | SD #140 BOND 764 | 0.8342371393 | $632,910 | $632,910 | $528.00 | | |
| SD140GEN | SD #140 GENERAL 760 | 2.0646500647 | $632,910 | $632,910 | $1,306.74 | | |
| ST2 | STATE SCHOOL PART 2 600 | 0.8131451643 | $632,910 | $632,910 | $514.65 | | |
| STATESCHL | STATE SCHOOL 600 | 1.5158548041 | $632,910 | $632,910 | $959.40 | | |
| STREFUND | STATE REFUND LEVY 603 | 0.0000000000 | $632,910 | $632,910 | $0.00 | | |
| CWWBOND | C OF WW BOND 643 | 0.2760494372 | $632,910 | $632,910 | $174.71 | | |
| CWWGEN | CITY OF WW 631 | 1.6100204973 | $632,910 | $632,910 | $1,019.00 | | |
| CWWRFD | CITY OF WALLA WALLA REFUND 631 | 0.0000000000 | $632,910 | $632,910 | $0.00 | | |
| | Total Tax Rate: | 8.7973694689 | | | | | |
| | | | | Taxes w/Current Exemptions: | $5,567.95 | | |
| | | | | Taxes w/o Exemptions: | $5,567.95 | | |
Improvement / Building
| Improvement #1: | RESIDENTIAL | State Code: | 11 | 1726.0 sqft | Value: | $497,910 |
| Exterior Wall: | PLYWOOD | Heating/Cooling: | WARM & COOLED AIR | | Number of Bathrooms: | 2.5 | Number of Bedrooms: | 3 | | Plumbing: | 12 | Roof Covering: | COMP SHINGLE |
|
| | Type | Description | Class CD | Sub Class CD | Year Built | Area |
| | MA | Main Area | 1 | 40 | 2007 | 1726.0 |
| | SI1 | SITE IMPROVEMENT | 1 | 40 | 2007 | 4.0 |
| | BASE | BASEMENT | 1 | 40 | 2007 | 2166.0 |
| | BPF | BASEMENT -PARTITIONED FINISH | 1 | 40 | 2007 | 1706.0 |
| | ATG | Attached Garage | 1 | 40 | 2007 | 460.0 |
| | GFP | GAS FIREPLACE | 1 | 40 | 2007 | 2.0 |
| | BLW | WOOD BALCONIES | 1 | 40 | 2007 | 808.0 |
| | PRC | PORCH W STEPS, ROOF,CEILED | 1 | 40 | 2007 | 105.0 |
Sketch
Property Image
Land
| 1 | RES 1 | Converted: Residential | 0.2725 | 11869.00 | 0.00 | 0.00 | 1.00 | $135,000 | $0 |
Roll Value History
| 2026 | N/A | N/A | N/A | N/A | N/A |
| 2025 | $499,210 | $180,000 | $0 | $679,210 | $679,210 |
| 2024 | $497,910 | $135,000 | $0 | $632,910 | $632,910 |
| 2023 | $497,910 | $135,000 | $0 | $632,910 | $632,910 |
| 2022 | $474,200 | $115,000 | $0 | $589,200 | $589,200 |
| 2021 | $338,710 | $115,000 | $0 | $453,710 | $453,710 |
| 2020 | $307,920 | $115,000 | $0 | $422,920 | $422,920 |
| 2019 | $307,920 | $115,000 | $0 | $422,920 | $422,920 |
| 2018 | $287,700 | $65,000 | $0 | $352,700 | $352,700 |
| 2017 | $274,000 | $65,000 | $0 | $339,000 | $339,000 |
| 2016 | $274,000 | $65,000 | $0 | $339,000 | $339,000 |
| 2015 | $274,000 | $65,000 | $0 | $339,000 | $339,000 |
| 2014 | $274,000 | $65,000 | $0 | $339,000 | $339,000 |
| 2013 | $274,000 | $65,000 | $0 | $339,000 | $339,000 |
| 2012 | $269,500 | $65,000 | $0 | $0 | $0 |
| 2011 | $277,700 | $94,000 | $0 | $0 | $0 |
| 2010 | $277,700 | $94,000 | $0 | $0 | $0 |
| 2009 | $291,700 | $94,000 | $0 | $0 | $0 |
| 2008 | $108,500 | $94,000 | $0 | $0 | $0 |
| 2007 | $0 | $500 | $0 | $0 | $0 |
Deed and Sales History
| 1 | 08/05/2014 | QCD | QUIT CLAIM DEED | RICE BRADLEY S & ARLEEN R | THE BRADLEY S RICE & ARLEEN R RICE REVOCABLE LVG TRST | | | | 126413 | 2014-05694 |
| 2 | 11/29/2006 | WARRANTY D | WARRANTY DEED | GATEWOOD, W PAUL & CAROL | RICE, BRADLEY S & ARLEEN R | | | $82,000.00 | 111753 | 2006-14266 |
Payout Agreement
| No payout information available.. |