Property
Account |
| Property ID: | 16742 | Abbreviated Legal Description: | MEADOW VIEW LOT 2 BLK 6 LESS N 6' |
| Parcel Number: | 360732550602 | Agent Code: | |
| Type: | Real | | |
| Tax Area: | 1 - OL-140-F | Land Use Code | 11 |
| Open Space: | N | DFL | N |
| Historic Property: | N | Remodel Property: | N |
| Multi-Family Redevelopment: | N | | |
| Township: | 7 | Section: | 32 |
| Range: | 36 |
Location |
| Address: | 1817 LEONARD DR WA 99362 | Mapsco: | |
| Neighborhood: | A Res | Map ID: | |
| Neighborhood CD: | 613011 |
Owner |
| Name: | BLANC TAYLOR & ALEXANDRA | Owner ID: | 71775 |
| Mailing Address: | 1817 LEONARD DR WALLA WALLA, WA 99362 | % Ownership: | 100.0000000000% |
| | | Exemptions: | |
Taxes and Assessment Details
Property Tax Information as of
02/21/2026
Click on "Statement Details" to expand or collapse a tax statement.
* Please enter a valid date ** Please enter a valid date *
Statement Details |
| | TOTAL: | $0.00 | $0.00 | $0.00 | $0.00 | $0.00 | $0.00 |
|
| | $0.00 | $0.00 | $0.00 | $0.00 | $0.00 | $0.00 |
Values
| (+) Improvement Homesite Value: | + | $0 | |
| (+) Improvement Non-Homesite Value: | + | $296,890 | |
| (+) Land Homesite Value: | + | $0 | |
| (+) Land Non-Homesite Value: | + | $90,000 | |
| (+) Curr Use (HS): | + | $0 | $0 |
| (+) Curr Use (NHS): | + | $0 | $0 |
| | | -------------------------- | |
| (=) Market Value: | = | $386,890 | |
| (–) Productivity Loss: | – | $0 | |
| | | -------------------------- | |
| (=) Subtotal: | = | $386,890 | |
| (+) Senior Appraised Value: | + | $0 | |
| (+) Non-Senior Appraised Value: | + | $386,890 | |
| | | -------------------------- | |
| (=) Total Appraised Value: | = | $386,890 | |
| (–) Senior Exemption Loss: | – | $0 | |
| (–) Exemption Loss: | – | $0 | |
| | | -------------------------- | |
| (=) Taxable Value: | = | $386,890 | |
Taxing Jurisdiction
| Owner: | BLANC TAYLOR & ALEXANDRA | | |
| % Ownership: | 100.0000000000% | | |
| Total Value: | $386,890 | | |
| Tax Area: | 1 - OL-140-F |
| CERFD | CURRENT EXPENSE REFUND 010 | 0.0000000000 | $386,890 | $386,890 | $0.00 | | |
| CURREXP | CURRENT EXPENSE 010 | 1.0175366760 | $386,890 | $386,890 | $393.67 | | |
| HUMNSERV | HUMAN SERVICES 119 | 0.0250000000 | $386,890 | $386,890 | $9.67 | | |
| SLDREL | SOLDIERS RELIEF 121 | 0.0155990005 | $386,890 | $386,890 | $6.04 | | |
| EMERGSER | EMS 147 | 0.3792580840 | $386,890 | $386,890 | $146.73 | | |
| EMSRFD | EMS REFUND 147 | 0.0000000000 | $386,890 | $386,890 | $0.00 | | |
| PORTRFD | PORT REFUND 640 | 0.0000000000 | $386,890 | $386,890 | $0.00 | | |
| PORTWWGEN | PORT OF WW 640 | 0.2460186015 | $386,890 | $386,890 | $95.18 | | |
| SD140BOND | SD #140 BOND 764 | 0.8342371393 | $386,890 | $386,890 | $322.76 | | |
| SD140GEN | SD #140 GENERAL 760 | 2.0646500647 | $386,890 | $386,890 | $798.79 | | |
| ST2 | STATE SCHOOL PART 2 600 | 0.8131451643 | $386,890 | $386,890 | $314.60 | | |
| STATESCHL | STATE SCHOOL 600 | 1.5158548041 | $386,890 | $386,890 | $586.47 | | |
| STREFUND | STATE REFUND LEVY 603 | 0.0000000000 | $386,890 | $386,890 | $0.00 | | |
| CWWBOND | C OF WW BOND 643 | 0.2760494372 | $386,890 | $386,890 | $106.80 | | |
| CWWGEN | CITY OF WW 631 | 1.6100204973 | $386,890 | $386,890 | $622.90 | | |
| CWWRFD | CITY OF WALLA WALLA REFUND 631 | 0.0000000000 | $386,890 | $386,890 | $0.00 | | |
| | Total Tax Rate: | 8.7973694689 | | | | | |
| | | | | Taxes w/Current Exemptions: | $3,403.61 | | |
| | | | | Taxes w/o Exemptions: | $3,403.61 | | |
Improvement / Building
| Improvement #1: | RESIDENTIAL | State Code: | 11 | 1670.0 sqft | Value: | $296,890 |
| Exterior Wall: | SIDING | Heating/Cooling: | FORCED AIR | | Number of Bathrooms: | 2 | Number of Bedrooms: | 3 | | Plumbing: | 9 | Roof Covering: | COMP SHINGLE |
|
| | Type | Description | Class CD | Sub Class CD | Year Built | Area |
| | MA | Main Area | 1 | 30 | 1958 | 1670.0 |
| | SI1 | SITE IMPROVEMENT | 1 | 30 | 1958 | 1.5 |
| | S1F | Single One Story Fireplace | 1 | 30 | 1958 | 1.0 |
| | CPC | COVERED CARPORT/PATIO | 1 | 30 | 1958 | 288.0 |
| | CPCS | CARPORT/SHED OR FLAT ROOF | 1 | 30 | 1958 | 400.0 |
Sketch
Property Image
Land
| 1 | RES 1 | Converted: Residential | 0.2296 | 10000.00 | 0.00 | 0.00 | 1.00 | $90,000 | $0 |
Roll Value History
| 2026 | N/A | N/A | N/A | N/A | N/A |
| 2025 | $276,010 | $110,000 | $0 | $386,010 | $386,010 |
| 2024 | $296,890 | $90,000 | $0 | $386,890 | $386,890 |
| 2023 | $296,890 | $90,000 | $0 | $386,890 | $386,890 |
| 2022 | $282,750 | $72,500 | $0 | $355,250 | $355,250 |
| 2021 | $226,200 | $72,500 | $0 | $298,700 | $298,700 |
| 2020 | $174,000 | $72,500 | $0 | $246,500 | $246,500 |
| 2019 | $174,000 | $72,500 | $0 | $246,500 | $246,500 |
| 2018 | $150,770 | $47,100 | $0 | $197,870 | $197,870 |
| 2017 | $150,770 | $47,100 | $0 | $197,870 | $197,870 |
| 2016 | $131,100 | $47,100 | $0 | $178,200 | $178,200 |
| 2015 | $114,000 | $47,100 | $0 | $161,100 | $161,100 |
| 2014 | $114,000 | $47,100 | $0 | $161,100 | $161,100 |
| 2013 | $114,000 | $47,100 | $0 | $161,100 | $161,100 |
| 2012 | $105,500 | $47,100 | $0 | $0 | $0 |
| 2011 | $105,500 | $47,100 | $0 | $0 | $0 |
| 2010 | $105,500 | $47,100 | $0 | $0 | $0 |
| 2009 | $122,400 | $47,100 | $0 | $0 | $0 |
| 2008 | $122,400 | $47,100 | $0 | $0 | $0 |
| 2007 | $95,000 | $24,600 | $0 | $0 | $0 |
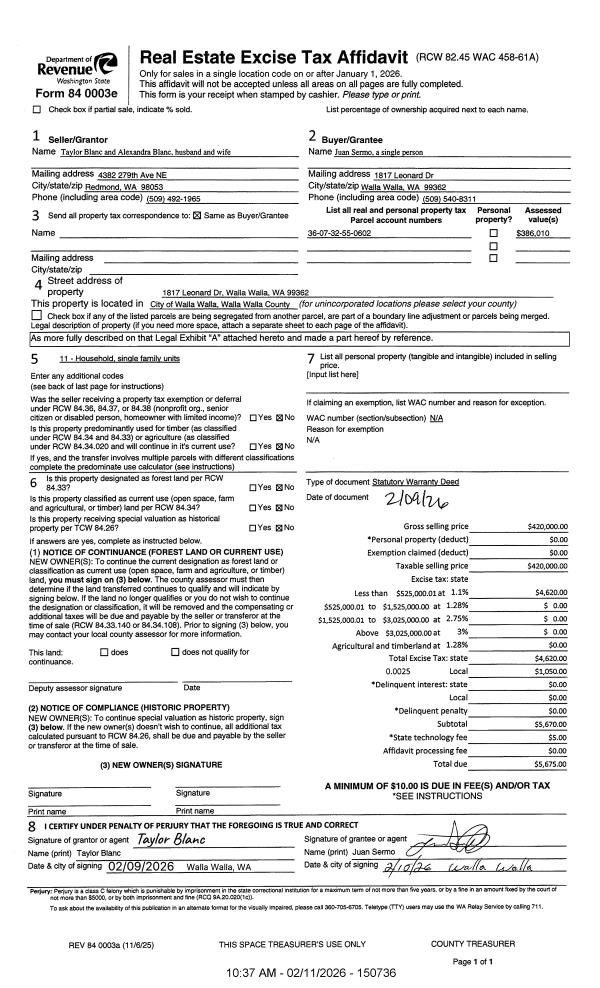
Deed and Sales History
| 1 | 06/02/2022 | SWD | STATUTORY WARRANTY DEED | POYNOR JORDON E & DOROTHY MORGAN JO | BLANC TAYLOR & ALEXANDRA | | | $389,000.00 | 144077 | 2022-04738 |
| 2 | 08/31/2015 | SWD | STATUTORY WARRANTY DEED | HAYS KENNETH M | POYNOR JORDON E & DOROTHY MORGAN JO | | | $182,500.00 | 128731 | 2015-07639 |
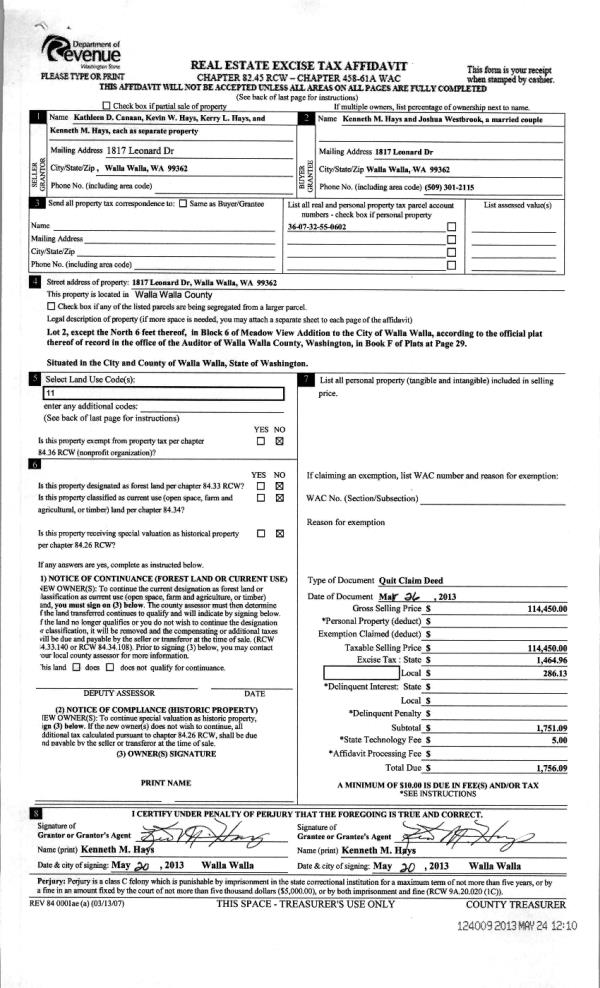
| 3 | 05/24/2013 | QCD | QUIT CLAIM DEED | HAYS, KEVIN W ET AL | HAYS, KENNETH M | | | $114,450.00 | 124009 | 2013-05245 |
| 4 | 11/08/2006 | AFFIDAVIT | AFFIDAVIT | HAYS, MAUREEN OLIVE (ESTATE) | HAYS, KEVIN W | | | | 0 | 2006-13477 |
| 5 | 09/19/1990 | WARRANTY D | WARRANTY DEED | | | | | $54,900.00 | 0 | 1859-006552 |
Payout Agreement
| No payout information available.. |