Property
Account |
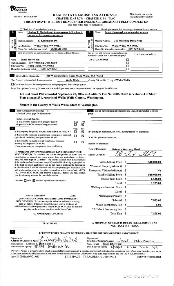
| Property ID: | 16741 | Abbreviated Legal Description: | 33-7-36 LOT 3 OF SHORT PLAT (PTN IN NE1/4SE1/4SW1/4) |
| Parcel Number: | 360733340025 | Agent Code: | |
| Type: | Real | | |
| Tax Area: | 5 - OL-140 | Land Use Code | 11 |
| Open Space: | N | DFL | N |
| Historic Property: | N | Remodel Property: | N |
| Multi-Family Redevelopment: | N | | |
| Township: | 7 | Section: | 33 |
| Range: | 36 |
Location |
| Address: | 310 WHISTLING DUCK RD WA 99362 | Mapsco: | |
| Neighborhood: | G Res Rural/City Inf | Map ID: | |
| Neighborhood CD: | 614012 |
Owner |
| Name: | ISHERWOOD JANET | Owner ID: | 66495 |
| Mailing Address: | TIMOTHY & MARION RUYBALID 310 WHISTLING DUCK RD WALLA WALLA, WA 99362 | % Ownership: | 100.0000000000% |
| | | Exemptions: | |
Taxes and Assessment Details
Values
| (+) Improvement Homesite Value: | + | $0 | |
| (+) Improvement Non-Homesite Value: | + | $590,700 | |
| (+) Land Homesite Value: | + | $0 | |
| (+) Land Non-Homesite Value: | + | $100,000 | |
| (+) Curr Use (HS): | + | $0 | $0 |
| (+) Curr Use (NHS): | + | $0 | $0 |
| | | -------------------------- | |
| (=) Market Value: | = | $690,700 | |
| (–) Productivity Loss: | – | $0 | |
| | | -------------------------- | |
| (=) Subtotal: | = | $690,700 | |
| (+) Senior Appraised Value: | + | $0 | |
| (+) Non-Senior Appraised Value: | + | $690,700 | |
| | | -------------------------- | |
| (=) Total Appraised Value: | = | $690,700 | |
| (–) Senior Exemption Loss: | – | $0 | |
| (–) Exemption Loss: | – | $0 | |
| | | -------------------------- | |
| (=) Taxable Value: | = | $690,700 | |
Taxing Jurisdiction
| Owner: | ISHERWOOD JANET | | |
| % Ownership: | 100.0000000000% | | |
| Total Value: | $690,700 | | |
| Tax Area: | 5 - OL-140 |
| CERFD | CURRENT EXPENSE REFUND 010 | 0.0000000000 | $690,700 | $690,700 | $0.00 | | |
| CURREXP | CURRENT EXPENSE 010 | 1.0175366760 | $690,700 | $690,700 | $702.81 | | |
| HUMNSERV | HUMAN SERVICES 119 | 0.0250000000 | $690,700 | $690,700 | $17.27 | | |
| SLDREL | SOLDIERS RELIEF 121 | 0.0155990005 | $690,700 | $690,700 | $10.77 | | |
| EMERGSER | EMS 147 | 0.3792580840 | $690,700 | $690,700 | $261.95 | | |
| EMSRFD | EMS REFUND 147 | 0.0000000000 | $690,700 | $690,700 | $0.00 | | |
| PORTRFD | PORT REFUND 640 | 0.0000000000 | $690,700 | $690,700 | $0.00 | | |
| PORTWWGEN | PORT OF WW 640 | 0.2460186015 | $690,700 | $690,700 | $169.93 | | |
| SD140BOND | SD #140 BOND 764 | 0.8342371393 | $690,700 | $690,700 | $576.21 | | |
| SD140GEN | SD #140 GENERAL 760 | 2.0646500647 | $690,700 | $690,700 | $1,426.05 | | |
| ST2 | STATE SCHOOL PART 2 600 | 0.8131451643 | $690,700 | $690,700 | $561.64 | | |
| STATESCHL | STATE SCHOOL 600 | 1.5158548041 | $690,700 | $690,700 | $1,047.00 | | |
| STREFUND | STATE REFUND LEVY 603 | 0.0000000000 | $690,700 | $690,700 | $0.00 | | |
| CWWBOND | C OF WW BOND 643 | 0.2760494372 | $690,700 | $690,700 | $190.67 | | |
| CWWGEN | CITY OF WW 631 | 1.6100204973 | $690,700 | $690,700 | $1,112.04 | | |
| CWWRFD | CITY OF WALLA WALLA REFUND 631 | 0.0000000000 | $690,700 | $690,700 | $0.00 | | |
| | Total Tax Rate: | 8.7973694689 | | | | | |
| | | | | Taxes w/Current Exemptions: | $6,076.34 | | |
| | | | | Taxes w/o Exemptions: | $6,076.34 | | |
Improvement / Building
| Improvement #1: | RESIDENTIAL | State Code: | 11 | 2501.0 sqft | Value: | $590,700 |
| Exterior Wall: | PLYWOOD | Heating/Cooling: | WARM & COOLED AIR | | Number of Bathrooms: | 2.5 | Number of Bedrooms: | 4 | | Plumbing: | 13 | Roof Covering: | COMP SHINGLE |
|
| | Type | Description | Class CD | Sub Class CD | Year Built | Area |
| | MA | Main Area | 2 | 40 | 2007 | 2501.0 |
| | SI1 | SITE IMPROVEMENT | 2 | 40 | 2007 | 4.0 |
| | BASE | BASEMENT | 2 | 40 | 2007 | 1025.0 |
| | UPFL | Upper Floor (included in main area) | 2 | 40 | 2007 | 1476.0 |
| | ATG | Attached Garage | 2 | 40 | 2007 | 473.0 |
| | RPO | OPEN PORCH W/ROOF | 2 | 40 | 2007 | 66.0 |
| | BLW | WOOD BALCONIES | 2 | 40 | 2007 | 294.0 |
| | GFP | GAS FIREPLACE | 2 | 40 | 2007 | 1.0 |
| | BPF | BASEMENT -PARTITIONED FINISH | 2 | 40 | 2007 | 983.0 |
Sketch
Property Image
Land
| 1 | RES 1 | Converted: Residential | 0.3127 | 13622.00 | 0.00 | 0.00 | 1.00 | $100,000 | $0 |
Roll Value History
| 2026 | N/A | N/A | N/A | N/A | N/A |
| 2025 | $614,460 | $125,000 | $0 | $739,460 | $739,460 |
| 2024 | $590,700 | $100,000 | $0 | $690,700 | $690,700 |
| 2023 | $590,700 | $100,000 | $0 | $690,700 | $690,700 |
| 2022 | $590,700 | $85,000 | $0 | $675,700 | $675,700 |
| 2021 | $421,930 | $85,000 | $0 | $506,930 | $506,930 |
| 2020 | $324,560 | $85,000 | $0 | $409,560 | $409,560 |
| 2019 | $324,560 | $85,000 | $0 | $409,560 | $409,560 |
| 2018 | $255,480 | $55,000 | $0 | $310,480 | $310,480 |
| 2017 | $255,480 | $55,000 | $0 | $310,480 | $310,480 |
| 2016 | $238,770 | $55,000 | $0 | $293,770 | $293,770 |
| 2015 | $238,770 | $55,000 | $0 | $293,770 | $293,770 |
| 2014 | $265,300 | $55,000 | $0 | $320,300 | $320,300 |
| 2013 | $265,300 | $55,000 | $0 | $320,300 | $320,300 |
| 2012 | $265,300 | $55,000 | $0 | $0 | $0 |
| 2011 | $265,300 | $55,000 | $0 | $0 | $0 |
| 2010 | $265,300 | $55,000 | $0 | $0 | $0 |
| 2009 | $311,800 | $65,000 | $0 | $0 | $0 |
| 2008 | $311,800 | $65,000 | $0 | $0 | $0 |
| 2007 | $0 | $5,200 | $0 | $0 | $0 |
Deed and Sales History
| 1 | 01/08/2020 | QCD | QUIT CLAIM DEED | ISHERWOOD JANET | ISHERWOOD JANET | | | $0.00 | 138388 | 2020-00169 |
| 2 | 09/03/2019 | SWD | STATUTORY WARRANTY DEED | MULHOLLAND LINDSAY E | ISHERWOOD JANET | | | $510,000.00 | 137614 | 2019-06788 |
| 3 | 01/25/2017 | SWD | STATUTORY WARRANTY DEED | HOLM GREG & MICHELLE | MULHOLLAND LINDSAY E | | | $315,000.00 | 131810 | 2017-00649 |
| 4 | 09/10/2014 | SWD | STATUTORY WARRANTY DEED | FIELDING INVESTMENTS INCORPORATED | HOLM GREG & MICHELLE | | | $276,000.00 | 126626 | 2014-06673 |
| 5 | 08/01/2014 | TRUSTEES D | TRUSTEE'S DEED | LE CLAIR TRENT & DARBY | FIELDING INVESTMENTS INCORPORATED | | | $197,000.00 | 126369 | 2014-05486 |
| 6 | 02/15/2008 | WARRANTY D | WARRANTY DEED | MAJERUS CONSTRUCTION INC | LE CLAIR, TRENT & DARBY | | | $379,900.00 | 114535 | 2008-01428 |
| 7 | 10/13/2006 | WARRANTY D | WARRANTY DEED | "MAJERUS, DOUGLAS" | MAJERUS CONSTRUCTION INC | | | | 111445 | 2006-12404 |
Payout Agreement
| No payout information available.. |