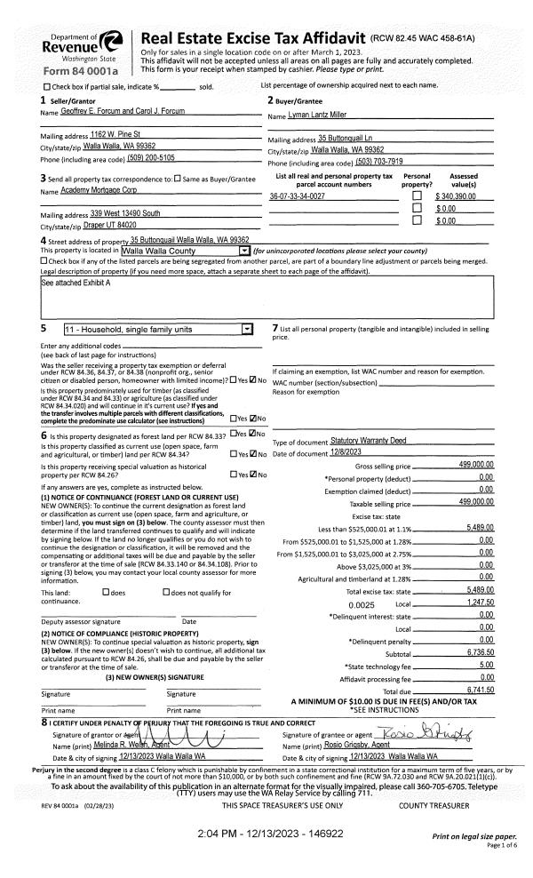
Property
Account |
| Property ID: | 16740 | Abbreviated Legal Description: | 33-7-36 LOT 5 OF SHORT PLAT (PTN IN NE1/4SE1/4SW1/4) |
| Parcel Number: | 360733340027 | Agent Code: | |
| Type: | Real | | |
| Tax Area: | 5 - OL-140 | Land Use Code | 11 |
| Open Space: | N | DFL | N |
| Historic Property: | N | Remodel Property: | N |
| Multi-Family Redevelopment: | N | | |
| Township: | 7 | Section: | 33 |
| Range: | 36 |
Location |
| Address: | 35 BUTTONQUAIL LN WA 99362 | Mapsco: | |
| Neighborhood: | G Res Rural/City Inf | Map ID: | |
| Neighborhood CD: | 614012 |
Owner |
| Name: | FORCUM GEOFFREY E & CAROL J | Owner ID: | 72187 |
| Mailing Address: | 35 BUTTONQUAIL LN WALLA WALLA, WA 99362 | % Ownership: | 100.0000000000% |
| | | Exemptions: | |
Taxes and Assessment Details
Property Tax Information as of
02/21/2026
Click on "Statement Details" to expand or collapse a tax statement.
* Please enter a valid date ** Please enter a valid date *
Statement Details |
| | TOTAL: | $0.00 | $0.00 | $0.00 | $0.00 | $0.00 | $0.00 |
|
| | $0.00 | $0.00 | $0.00 | $0.00 | $0.00 | $0.00 |
Values
| (+) Improvement Homesite Value: | + | $0 | |
| (+) Improvement Non-Homesite Value: | + | $240,390 | |
| (+) Land Homesite Value: | + | $0 | |
| (+) Land Non-Homesite Value: | + | $100,000 | |
| (+) Curr Use (HS): | + | $0 | $0 |
| (+) Curr Use (NHS): | + | $0 | $0 |
| | | -------------------------- | |
| (=) Market Value: | = | $340,390 | |
| (–) Productivity Loss: | – | $0 | |
| | | -------------------------- | |
| (=) Subtotal: | = | $340,390 | |
| (+) Senior Appraised Value: | + | $0 | |
| (+) Non-Senior Appraised Value: | + | $340,390 | |
| | | -------------------------- | |
| (=) Total Appraised Value: | = | $340,390 | |
| (–) Senior Exemption Loss: | – | $0 | |
| (–) Exemption Loss: | – | $0 | |
| | | -------------------------- | |
| (=) Taxable Value: | = | $340,390 | |
Taxing Jurisdiction
| Owner: | FORCUM GEOFFREY E & CAROL J | | |
| % Ownership: | 100.0000000000% | | |
| Total Value: | $340,390 | | |
| Tax Area: | 5 - OL-140 |
| CERFD | CURRENT EXPENSE REFUND 010 | 0.0000000000 | $340,390 | $340,390 | $0.00 | | |
| CURREXP | CURRENT EXPENSE 010 | 1.0175366760 | $340,390 | $340,390 | $346.36 | | |
| HUMNSERV | HUMAN SERVICES 119 | 0.0250000000 | $340,390 | $340,390 | $8.51 | | |
| SLDREL | SOLDIERS RELIEF 121 | 0.0155990005 | $340,390 | $340,390 | $5.31 | | |
| EMERGSER | EMS 147 | 0.3792580840 | $340,390 | $340,390 | $129.10 | | |
| EMSRFD | EMS REFUND 147 | 0.0000000000 | $340,390 | $340,390 | $0.00 | | |
| PORTRFD | PORT REFUND 640 | 0.0000000000 | $340,390 | $340,390 | $0.00 | | |
| PORTWWGEN | PORT OF WW 640 | 0.2460186015 | $340,390 | $340,390 | $83.74 | | |
| SD140BOND | SD #140 BOND 764 | 0.8342371393 | $340,390 | $340,390 | $283.97 | | |
| SD140GEN | SD #140 GENERAL 760 | 2.0646500647 | $340,390 | $340,390 | $702.79 | | |
| ST2 | STATE SCHOOL PART 2 600 | 0.8131451643 | $340,390 | $340,390 | $276.79 | | |
| STATESCHL | STATE SCHOOL 600 | 1.5158548041 | $340,390 | $340,390 | $515.98 | | |
| STREFUND | STATE REFUND LEVY 603 | 0.0000000000 | $340,390 | $340,390 | $0.00 | | |
| CWWBOND | C OF WW BOND 643 | 0.2760494372 | $340,390 | $340,390 | $93.96 | | |
| CWWGEN | CITY OF WW 631 | 1.6100204973 | $340,390 | $340,390 | $548.03 | | |
| CWWRFD | CITY OF WALLA WALLA REFUND 631 | 0.0000000000 | $340,390 | $340,390 | $0.00 | | |
| | Total Tax Rate: | 8.7973694689 | | | | | |
| | | | | Taxes w/Current Exemptions: | $2,994.54 | | |
| | | | | Taxes w/o Exemptions: | $2,994.54 | | |
Improvement / Building
| Improvement #1: | RESIDENTIAL | State Code: | 11 | 1204.0 sqft | Value: | $240,390 |
| Exterior Wall: | PLYWOOD | Heating/Cooling: | WARM & COOLED AIR | | Number of Bathrooms: | 1 | Number of Bedrooms: | 2 | | Plumbing: | 7 | Roof Covering: | COMP SHINGLE |
|
| | Type | Description | Class CD | Sub Class CD | Year Built | Area |
| | MA | Main Area | 4 | 35 | 2009 | 1204.0 |
| | GFP | GAS FIREPLACE | 4 | 35 | 2009 | 1.0 |
| | SI1 | SITE IMPROVEMENT | 4 | 35 | 2009 | 3.0 |
| | BIG | Built In Garage | 4 | 35 | 2009 | 900.0 |
| | RPO | OPEN PORCH W/ROOF | 4 | 35 | 2009 | 48.0 |
| | BARN | BARN-AVE | 1 | 30 | 1960 | 1152.0 |
| | UPFL | Upper Floor (included in main area) | 4 | 35 | 2009 | 304.0 |
Sketch
Property Image
Land
| 1 | RES 1 | Converted: Residential | 0.3797 | 16540.00 | 0.00 | 0.00 | 1.00 | $100,000 | $0 |
Roll Value History
| 2026 | N/A | N/A | N/A | N/A | N/A |
| 2025 | $360,940 | $125,000 | $0 | $485,940 | $485,940 |
| 2024 | $360,590 | $100,000 | $0 | $460,590 | $460,590 |
| 2023 | $240,390 | $100,000 | $0 | $340,390 | $340,390 |
| 2022 | $240,390 | $85,000 | $0 | $325,390 | $325,390 |
| 2021 | $171,710 | $85,000 | $0 | $256,710 | $256,710 |
| 2020 | $143,090 | $85,000 | $0 | $228,090 | $228,090 |
| 2019 | $143,090 | $85,000 | $0 | $228,090 | $228,090 |
| 2018 | $127,270 | $55,000 | $0 | $182,270 | $182,270 |
| 2017 | $97,900 | $55,000 | $0 | $152,900 | $152,900 |
| 2016 | $97,900 | $55,000 | $0 | $152,900 | $152,900 |
| 2015 | $97,900 | $55,000 | $0 | $152,900 | $152,900 |
| 2014 | $97,900 | $55,000 | $0 | $152,900 | $152,900 |
| 2013 | $97,900 | $55,000 | $0 | $152,900 | $152,900 |
| 2012 | $97,900 | $55,000 | $0 | $0 | $0 |
| 2011 | $63,300 | $55,000 | $0 | $0 | $0 |
| 2010 | $65,700 | $55,000 | $0 | $0 | $0 |
| 2009 | $22,100 | $65,000 | $0 | $0 | $0 |
| 2008 | $22,100 | $65,000 | $0 | $0 | $0 |
| 2007 | $22,100 | $6,400 | $0 | $0 | $0 |
Deed and Sales History
| 1 | 12/13/2023 | SWD | STATUTORY WARRANTY DEED | FORCUM GEOFFREY E & CAROL J | MILLER LYMAN LANTZ | | | $499,000.00 | 146922 | 2023-07243 |
| 2 | 08/10/2022 | QCD | QUIT CLAIM DEED | FORCUM RICHARD E | FORCUM GEOFFREY E & CAROL J | | | $0.00 | 144500 | 2022-06787 |
| 3 | 11/06/2009 | WARRANTY D | WARRANTY DEED | FORCUM, GEOFF & CAROL | FORCUM, RICHARD E | | | | 117639 | 2009-10992 |
| 4 | 03/28/2008 | WARRANTY D | WARRANTY DEED | AGRESTI, RONALD J & RUTH E | FORCUM, GEOFF & CAROL | | | $134,000.00 | 114754 | 2008-03025 |
| 5 | 10/12/2006 | WARRANTY D | WARRANTY DEED | MAJERUS, DOUGLAS | AGRESTI, RONALD J & RUTH E | | | | 111437 | 2006-12361 |
Payout Agreement
| No payout information available.. |