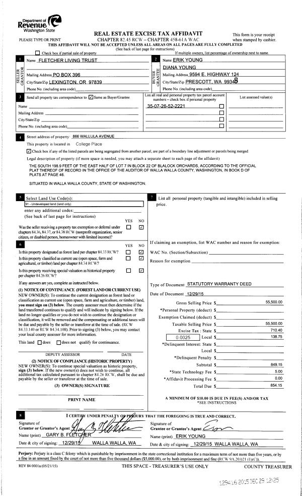
Property
Account |
| Property ID: | 16722 | Abbreviated Legal Description: | BLALOCK ORCHARDS S 198.9' OF E1/2 OF LOT 7 BLK 22 |
| Parcel Number: | 350726522221 | Agent Code: | |
| Type: | Real | | |
| Tax Area: | 311 - 250-4 | Land Use Code | 64 |
| Open Space: | N | DFL | N |
| Historic Property: | N | Remodel Property: | N |
| Multi-Family Redevelopment: | N | | |
| Township: | 7 | Section: | 26 |
| Range: | 35 |
Location |
| Address: | 866 WALLULA AVE WA 99362 | Mapsco: | |
| Neighborhood: | COMMERCIAL | Map ID: | |
| Neighborhood CD: | 3302 |
Owner |
| Name: | YOUNG ERIK A & DIANA | Owner ID: | 56128 |
| Mailing Address: | 9594 E HWY 124 PRESCOTT, WA 99348 | % Ownership: | 100.0000000000% |
| | | Exemptions: | |
Taxes and Assessment Details
Values
| (+) Improvement Homesite Value: | + | $0 | |
| (+) Improvement Non-Homesite Value: | + | $68,700 | |
| (+) Land Homesite Value: | + | $0 | |
| (+) Land Non-Homesite Value: | + | $53,600 | |
| (+) Curr Use (HS): | + | $0 | $0 |
| (+) Curr Use (NHS): | + | $0 | $0 |
| | | -------------------------- | |
| (=) Market Value: | = | $122,300 | |
| (–) Productivity Loss: | – | $0 | |
| | | -------------------------- | |
| (=) Subtotal: | = | $122,300 | |
| (+) Senior Appraised Value: | + | $0 | |
| (+) Non-Senior Appraised Value: | + | $122,300 | |
| | | -------------------------- | |
| (=) Total Appraised Value: | = | $122,300 | |
| (–) Senior Exemption Loss: | – | $0 | |
| (–) Exemption Loss: | – | $0 | |
| | | -------------------------- | |
| (=) Taxable Value: | = | $122,300 | |
Taxing Jurisdiction
| Owner: | YOUNG ERIK A & DIANA | | |
| % Ownership: | 100.0000000000% | | |
| Total Value: | $122,300 | | |
| Tax Area: | 311 - 250-4 |
| CERFD | CURRENT EXPENSE REFUND 010 | 0.0000000000 | $122,300 | $122,300 | $0.00 | | |
| CURREXP | CURRENT EXPENSE 010 | 1.0175366760 | $122,300 | $122,300 | $124.44 | | |
| HUMNSERV | HUMAN SERVICES 119 | 0.0250000000 | $122,300 | $122,300 | $3.06 | | |
| SLDREL | SOLDIERS RELIEF 121 | 0.0155990005 | $122,300 | $122,300 | $1.91 | | |
| EMERGSER | EMS 147 | 0.3792580840 | $122,300 | $122,300 | $46.38 | | |
| EMSRFD | EMS REFUND 147 | 0.0000000000 | $122,300 | $122,300 | $0.00 | | |
| FD4EXP | FD #4 EXPENSE 686 | 0.8836993059 | $122,300 | $122,300 | $108.08 | | |
| RLBRFD | RURAL LIBRARY REFUND 623 | 0.0000000000 | $122,300 | $122,300 | $0.00 | | |
| RURALLIB | RURAL LIBRARY 623 | 0.3710609029 | $122,300 | $122,300 | $45.38 | | |
| PORTRFD | PORT REFUND 640 | 0.0000000000 | $122,300 | $122,300 | $0.00 | | |
| PORTWWGEN | PORT OF WW 640 | 0.2460186015 | $122,300 | $122,300 | $30.09 | | |
| SD250BOND | SD #250 BOND 773 | 1.4560608159 | $122,300 | $122,300 | $178.08 | | |
| SD250GEN | SD #250 GENERAL 770 | 2.3880724087 | $122,300 | $122,300 | $292.06 | | |
| ST2 | STATE SCHOOL PART 2 600 | 0.8131451643 | $122,300 | $122,300 | $99.45 | | |
| STATESCHL | STATE SCHOOL 600 | 1.5158548041 | $122,300 | $122,300 | $185.39 | | |
| STREFUND | STATE REFUND LEVY 603 | 0.0000000000 | $122,300 | $122,300 | $0.00 | | |
| COROAD | COUNTY ROAD 115 | 1.6549953990 | $122,300 | $122,300 | $202.41 | | |
| CRPRD | COUNTY ROAD REFUND 115 | 0.0000000000 | $122,300 | $122,300 | $0.00 | | |
| | Total Tax Rate: | 10.7663011628 | | | | | |
| | | | | Taxes w/Current Exemptions: | $1,316.73 | | |
| | | | | Taxes w/o Exemptions: | $1,316.73 | | |
Improvement / Building
| Improvement #1: | COMMERCIAL | State Code: | 64 | 2880.0 sqft | Value: | $68,700 |
| | Type | Description | Class CD | Sub Class CD | Year Built | Area |
| | MA | Main Area | D | * | 2016 | 2880.0 |
| | SI1 | SITE IMPROVEMENT | D | * | 2016 | 1.0 |
Sketch
Property Image
Land
| 1 | RES 1 | Converted: Residential | 0.5700 | 24829.00 | 0.00 | 0.00 | 1.00 | $53,600 | $0 |
Roll Value History
| 2026 | N/A | N/A | N/A | N/A | N/A |
| 2025 | $68,700 | $62,100 | $0 | $130,800 | $130,800 |
| 2024 | $68,700 | $53,600 | $0 | $122,300 | $122,300 |
| 2023 | $68,700 | $53,600 | $0 | $122,300 | $122,300 |
| 2022 | $68,700 | $53,600 | $0 | $122,300 | $122,300 |
| 2021 | $62,200 | $57,000 | $0 | $119,200 | $119,200 |
| 2020 | $62,200 | $57,000 | $0 | $119,200 | $119,200 |
| 2019 | $62,200 | $57,000 | $0 | $119,200 | $119,200 |
| 2018 | $62,200 | $57,000 | $0 | $119,200 | $119,200 |
| 2017 | $62,200 | $57,000 | $0 | $119,200 | $119,200 |
| 2016 | $62,200 | $57,000 | $0 | $119,200 | $119,200 |
| 2015 | $0 | $59,700 | $0 | $59,700 | $59,700 |
| 2014 | $0 | $59,700 | $0 | $59,700 | $59,700 |
| 2013 | $0 | $59,700 | $0 | $59,700 | $59,700 |
| 2012 | $0 | $59,700 | $0 | $0 | $0 |
| 2011 | $0 | $59,700 | $0 | $0 | $0 |
| 2010 | $0 | $59,700 | $0 | $0 | $0 |
| 2009 | $0 | $37,900 | $0 | $0 | $0 |
| 2008 | $0 | $37,900 | $0 | $0 | $0 |
| 2007 | $0 | $37,900 | $0 | $0 | $0 |
Deed and Sales History
| 1 | 12/29/2015 | SWD | STATUTORY WARRANTY DEED | FLETCHER LIVING TRUST | YOUNG ERIK A & DIANA | | | $55,500.00 | 129416 | 2015-11116 |
| 2 | 06/28/2011 | QCD | QUIT CLAIM DEED | FLETCHER, GARY B & JEAN L | FLETCHER LIVING TRUST | | | | 120317 | 2011-04986 |
| 3 | 11/02/2006 | WARRANTY D | WARRANTY DEED | BLACK, ROBERT D | FLETCHER, GARY B & JEAN L | | | $61,500.00 | 111577 | 2006-13198 |
| 4 | 12/21/1979 | QCD | QUIT CLAIM DEED | | | | | $0.00 | 26933 | 1167-911620 |
Payout Agreement
| No payout information available.. |