Property
Account |
| Property ID: | 16720 | Abbreviated Legal Description: | 29-7-35 PARCEL 1 OF S/P (WLY PTN SW1/4SE1/4 LY S OF HWY)(LESS RD) |
| Parcel Number: | 350729430007 | Agent Code: | |
| Type: | Real | | |
| Tax Area: | 101 - 140-4 | Land Use Code | 83 |
| Open Space: | Y | DFL | N |
| Historic Property: | N | Remodel Property: | N |
| Multi-Family Redevelopment: | N | | |
| Township: | 7 | Section: | 29 |
| Range: | 35 |
Location |
| Address: | 5913 OLD HWY 12 WA 99362 | Mapsco: | |
| Neighborhood: | 0 Farm | Map ID: | |
| Neighborhood CD: | 3230 |
Owner |
| Name: | REH PHILIP J | Owner ID: | 64278 |
| Mailing Address: | 5913 OLD HWY 12 WALLA WALLA, WA 99362 | % Ownership: | 100.0000000000% |
| | | Exemptions: | |
Taxes and Assessment Details
Property Tax Information as of
02/21/2026
Click on "Statement Details" to expand or collapse a tax statement.
* Please enter a valid date ** Please enter a valid date *
Statement Details |
| | TOTAL: | $0.00 | $0.00 | $0.00 | $0.00 | $0.00 | $0.00 |
|
| | $0.00 | $0.00 | $0.00 | $0.00 | $0.00 | $0.00 |
Values
| (+) Improvement Homesite Value: | + | $0 | |
| (+) Improvement Non-Homesite Value: | + | $170,150 | |
| (+) Land Homesite Value: | + | $120,000 | |
| (+) Land Non-Homesite Value: | + | $0 | |
| (+) Curr Use (HS): | + | $0 | $0 |
| (+) Curr Use (NHS): | + | $100,000 | $15,750 |
| | | -------------------------- | |
| (=) Market Value: | = | $390,150 | |
| (–) Productivity Loss: | – | $84,250 | |
| | | -------------------------- | |
| (=) Subtotal: | = | $305,900 | |
| (+) Senior Appraised Value: | + | $0 | |
| (+) Non-Senior Appraised Value: | + | $305,900 | |
| | | -------------------------- | |
| (=) Total Appraised Value: | = | $305,900 | |
| (–) Senior Exemption Loss: | – | $0 | |
| (–) Exemption Loss: | – | $0 | |
| | | -------------------------- | |
| (=) Taxable Value: | = | $305,900 | |
Taxing Jurisdiction
| Owner: | REH PHILIP J | | |
| % Ownership: | 100.0000000000% | | |
| Total Value: | $390,150 | | |
| Tax Area: | 101 - 140-4 |
| CERFD | CURRENT EXPENSE REFUND 010 | 0.0000000000 | $305,900 | $305,900 | $0.00 | | |
| CURREXP | CURRENT EXPENSE 010 | 1.0175366760 | $305,900 | $305,900 | $311.26 | | |
| HUMNSERV | HUMAN SERVICES 119 | 0.0250000000 | $305,900 | $305,900 | $7.65 | | |
| SLDREL | SOLDIERS RELIEF 121 | 0.0155990005 | $305,900 | $305,900 | $4.77 | | |
| EMERGSER | EMS 147 | 0.3792580840 | $305,900 | $305,900 | $116.02 | | |
| EMSRFD | EMS REFUND 147 | 0.0000000000 | $305,900 | $305,900 | $0.00 | | |
| FD4EXP | FD #4 EXPENSE 686 | 0.8836993059 | $305,900 | $305,900 | $270.32 | | |
| RLBRFD | RURAL LIBRARY REFUND 623 | 0.0000000000 | $305,900 | $305,900 | $0.00 | | |
| RURALLIB | RURAL LIBRARY 623 | 0.3710609029 | $305,900 | $305,900 | $113.51 | | |
| PORTRFD | PORT REFUND 640 | 0.0000000000 | $305,900 | $305,900 | $0.00 | | |
| PORTWWGEN | PORT OF WW 640 | 0.2460186015 | $305,900 | $305,900 | $75.26 | | |
| SD140BOND | SD #140 BOND 764 | 0.8342371393 | $305,900 | $305,900 | $255.19 | | |
| SD140GEN | SD #140 GENERAL 760 | 2.0646500647 | $305,900 | $305,900 | $631.58 | | |
| ST2 | STATE SCHOOL PART 2 600 | 0.8131451643 | $305,900 | $305,900 | $248.74 | | |
| STATESCHL | STATE SCHOOL 600 | 1.5158548041 | $305,900 | $305,900 | $463.70 | | |
| STREFUND | STATE REFUND LEVY 603 | 0.0000000000 | $305,900 | $305,900 | $0.00 | | |
| COROAD | COUNTY ROAD 115 | 1.6549953990 | $305,900 | $305,900 | $506.26 | | |
| CRPRD | COUNTY ROAD REFUND 115 | 0.0000000000 | $305,900 | $305,900 | $0.00 | | |
| | Total Tax Rate: | 9.8210551422 | | | | | |
| | | | | Taxes w/Current Exemptions: | $3,004.26 | | |
| | | | | Taxes w/o Exemptions: | $3,004.26 | | |
Improvement / Building
| Improvement #1: | RESIDENTIAL | State Code: | 83 | 1708.0 sqft | Value: | $170,150 |
| Exterior Wall: | SIDING | Heating/Cooling: | WARM & COOLED AIR | | Number of Bathrooms: | 1 | Number of Bedrooms: | 3 | | Plumbing: | 6 | Roof Covering: | COMP SHINGLE |
|
| | Type | Description | Class CD | Sub Class CD | Year Built | Area |
| | MA | Main Area | 4 | 30 | 1933 | 1708.0 |
| | POL3 | POLE BUILDING-CON,ELEC,INSU | 1 | 30 | 1990 | 1280.0 |
| | SI1 | SITE IMPROVEMENT | 4 | 30 | 1933 | 2.0 |
| | BASE | BASEMENT | 4 | 30 | 1933 | 768.0 |
| | WDR | WOOD DECK W/ROOF | 4 | 30 | 1933 | 260.0 |
| | BARN | BARN-AVE | 1 | 30 | 1940 | 2320.0 |
| | UTILITY | UTILITY BUILDING | 1 | 30 | 1950 | 720.0 |
| | UPFL | Upper Floor (included in main area) | 4 | 30 | 1933 | 432.0 |
Sketch
Property Image
Land
| 1 | 8000-C1-I | Class 1 irrigated | 12.5000 | 544500.00 | 0.00 | 0.00 | 1.00 | $100,000 | $15,750 |
| 2 | HS-120,000 | Homesite 120,000 | 1.0000 | 0.00 | 0.00 | 0.00 | 1.00 | $120,000 | $0 |
Roll Value History
| 2026 | N/A | N/A | N/A | N/A | N/A |
| 2025 | $170,150 | $220,000 | $15,540 | $305,690 | $305,690 |
| 2024 | $170,150 | $220,000 | $15,830 | $305,980 | $305,980 |
| 2023 | $170,150 | $220,000 | $15,750 | $305,900 | $305,900 |
| 2022 | $170,150 | $220,000 | $15,490 | $305,640 | $305,640 |
| 2021 | $170,150 | $175,000 | $15,490 | $260,640 | $260,640 |
| 2020 | $170,150 | $175,000 | $15,810 | $260,960 | $260,960 |
| 2019 | $170,150 | $175,000 | $16,300 | $261,450 | $261,450 |
| 2018 | $122,300 | $131,900 | $16,610 | $213,910 | $213,910 |
| 2017 | $122,300 | $131,900 | $17,140 | $214,440 | $214,440 |
| 2016 | $122,300 | $131,900 | $17,200 | $214,500 | $214,500 |
| 2015 | $98,000 | $130,500 | $15,670 | $188,670 | $188,670 |
| 2014 | $98,000 | $130,500 | $15,670 | $188,670 | $188,670 |
| 2013 | $98,000 | $130,200 | $13,366 | $186,400 | $186,400 |
| 2012 | $95,500 | $85,700 | $0 | $0 | $0 |
| 2011 | $96,000 | $85,300 | $0 | $0 | $0 |
| 2010 | $107,100 | $85,600 | $0 | $0 | $0 |
| 2009 | $111,400 | $85,400 | $0 | $0 | $0 |
| 2008 | $111,400 | $87,600 | $0 | $0 | $0 |
| 2007 | $85,100 | $43,800 | $0 | $0 | $0 |
Deed and Sales History
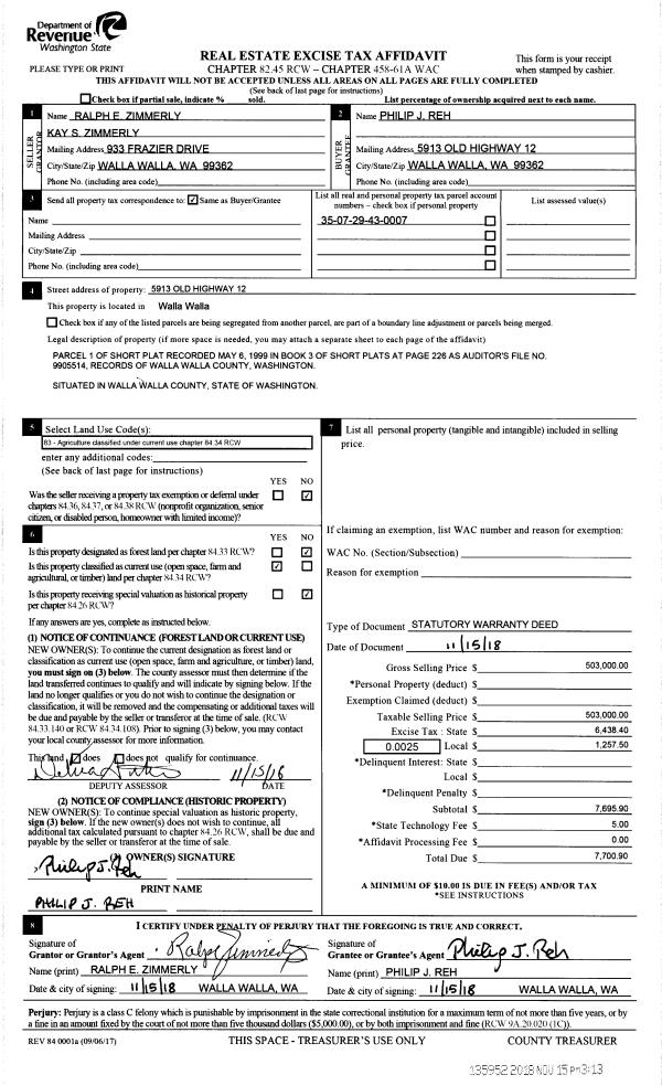
| 1 | 11/15/2018 | SWD | STATUTORY WARRANTY DEED | ZIMMERLY RALPH E & KAY S | REH PHILIP J | | | $503,000.00 | 135952 | 2018-09490 |
Payout Agreement
| No payout information available.. |