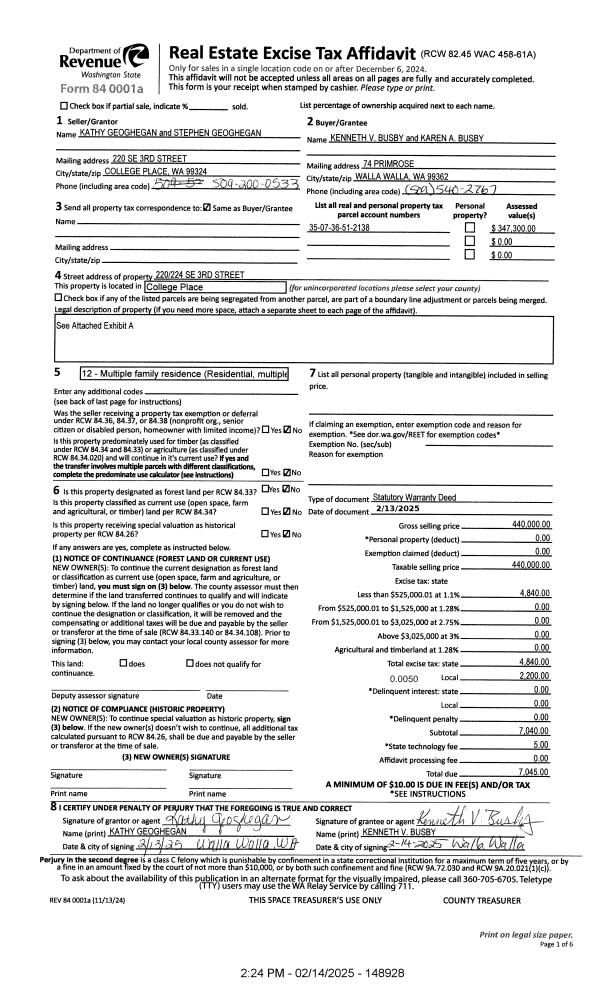
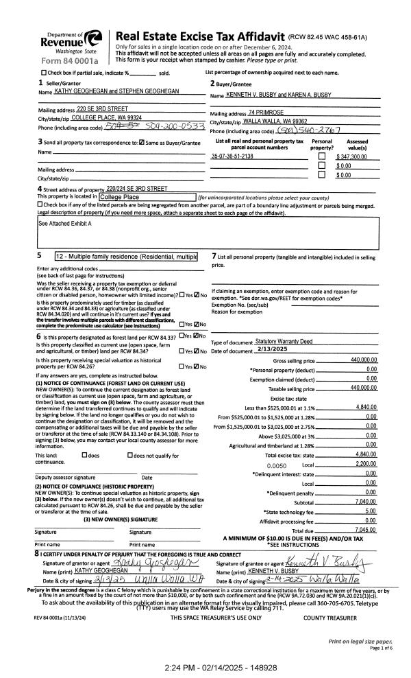
Property
Account |
| Property ID: | 16615 | Abbreviated Legal Description: | CP #1 TAX 19; W 25' TAX 20 BLOCK 21 |
| Parcel Number: | 350736512138 | Agent Code: | |
| Type: | Real | | |
| Tax Area: | 75 - CP 250 | Land Use Code | 12 |
| Open Space: | N | DFL | N |
| Historic Property: | N | Remodel Property: | N |
| Multi-Family Redevelopment: | N | | |
| Township: | 7 | Section: | 36 |
| Range: | 35 |
Location |
| Address: | 220 SE 3RD ST WA 99324 | Mapsco: | |
| Neighborhood: | A Duplex | Map ID: | |
| Neighborhood CD: | 113031 |
Owner |
| Name: | GEOGHEGAN STEPHEN & KATHY | Owner ID: | 41266 |
| Mailing Address: | 220 SE 3RD ST COLLEGE PLACE, WA 99324 | % Ownership: | 100.0000000000% |
| | | Exemptions: | |
Taxes and Assessment Details
Property Tax Information as of
02/21/2026
Click on "Statement Details" to expand or collapse a tax statement.
* Please enter a valid date ** Please enter a valid date *
Statement Details |
| | TOTAL: | $0.00 | $0.00 | $0.00 | $0.00 | $0.00 | $0.00 |
|
| | $0.00 | $0.00 | $0.00 | $0.00 | $0.00 | $0.00 |
Values
| (+) Improvement Homesite Value: | + | $0 | |
| (+) Improvement Non-Homesite Value: | + | $418,040 | |
| (+) Land Homesite Value: | + | $0 | |
| (+) Land Non-Homesite Value: | + | $61,730 | |
| (+) Curr Use (HS): | + | $0 | $0 |
| (+) Curr Use (NHS): | + | $0 | $0 |
| | | -------------------------- | |
| (=) Market Value: | = | $479,770 | |
| (–) Productivity Loss: | – | $0 | |
| | | -------------------------- | |
| (=) Subtotal: | = | $479,770 | |
| (+) Senior Appraised Value: | + | $0 | |
| (+) Non-Senior Appraised Value: | + | $479,770 | |
| | | -------------------------- | |
| (=) Total Appraised Value: | = | $479,770 | |
| (–) Senior Exemption Loss: | – | $0 | |
| (–) Exemption Loss: | – | $0 | |
| | | -------------------------- | |
| (=) Taxable Value: | = | $479,770 | |
Taxing Jurisdiction
| Owner: | GEOGHEGAN STEPHEN & KATHY | | |
| % Ownership: | 100.0000000000% | | |
| Total Value: | $479,770 | | |
| Tax Area: | 75 - CP 250 |
| CERFD | CURRENT EXPENSE REFUND 010 | 0.0000000000 | $479,770 | $479,770 | $0.00 | | |
| CURREXP | CURRENT EXPENSE 010 | 1.0175366760 | $479,770 | $479,770 | $488.18 | | |
| HUMNSERV | HUMAN SERVICES 119 | 0.0250000000 | $479,770 | $479,770 | $11.99 | | |
| SLDREL | SOLDIERS RELIEF 121 | 0.0155990005 | $479,770 | $479,770 | $7.48 | | |
| COLLPLBOND | C OF CP BOND 644 | 0.4374241808 | $479,770 | $479,770 | $209.86 | | |
| COLLPLGEN | CITY OF CP 632 | 1.4453819216 | $479,770 | $479,770 | $693.45 | | |
| EMERGSER | EMS 147 | 0.3792580840 | $479,770 | $479,770 | $181.96 | | |
| EMSRFD | EMS REFUND 147 | 0.0000000000 | $479,770 | $479,770 | $0.00 | | |
| RURALLIB | RURAL LIBRARY 623 | 0.3710609029 | $479,770 | $479,770 | $178.02 | | |
| PORTRFD | PORT REFUND 640 | 0.0000000000 | $479,770 | $479,770 | $0.00 | | |
| PORTWWGEN | PORT OF WW 640 | 0.2460186015 | $479,770 | $479,770 | $118.03 | | |
| SD250BOND | SD #250 BOND 773 | 1.4560608159 | $479,770 | $479,770 | $698.57 | | |
| SD250GEN | SD #250 GENERAL 770 | 2.3880724087 | $479,770 | $479,770 | $1,145.73 | | |
| ST2 | STATE SCHOOL PART 2 600 | 0.8131451643 | $479,770 | $479,770 | $390.12 | | |
| STATESCHL | STATE SCHOOL 600 | 1.5158548041 | $479,770 | $479,770 | $727.26 | | |
| STREFUND | STATE REFUND LEVY 603 | 0.0000000000 | $479,770 | $479,770 | $0.00 | | |
| | Total Tax Rate: | 10.1104125603 | | | | | |
| | | | | Taxes w/Current Exemptions: | $4,850.65 | | |
| | | | | Taxes w/o Exemptions: | $4,850.65 | | |
Improvement / Building
| Improvement #1: | RESIDENTIAL | State Code: | 12 | 2112.0 sqft | Value: | $418,040 |
| Exterior Wall: | VINYL | Heating/Cooling: | WARM & COOLED AIR | | Number of Bathrooms: | 4 | Number of Bedrooms: | 4 | | Plumbing: | 18 | Roof Covering: | COMP SHINGLE |
|
| | Type | Description | Class CD | Sub Class CD | Year Built | Area |
| | MA | Main Area | 1 | 40 | 2005 | 2112.0 |
| | SI1 | SITE IMPROVEMENT | 1 | 40 | 2005 | 2.0 |
| | ATG | Attached Garage | 1 | 40 | 2005 | 624.0 |
Sketch
Property Image
Land
| 1 | RES 1 | Converted: Residential | 0.2439 | 10625.00 | 0.00 | 0.00 | 1.00 | $61,730 | $0 |
Roll Value History
| 2026 | N/A | N/A | N/A | N/A | N/A |
| 2025 | $328,440 | $91,910 | $0 | $420,350 | $420,350 |
| 2024 | $285,600 | $61,700 | $0 | $347,300 | $347,300 |
| 2023 | $418,040 | $61,730 | $0 | $479,770 | $479,770 |
| 2022 | $278,700 | $61,730 | $0 | $340,430 | $340,430 |
| 2021 | $232,250 | $61,730 | $0 | $293,980 | $293,980 |
| 2020 | $160,170 | $61,730 | $0 | $221,900 | $221,900 |
| 2019 | $174,200 | $47,700 | $0 | $221,900 | $221,900 |
| 2018 | $174,200 | $47,700 | $0 | $221,900 | $221,900 |
| 2017 | $174,200 | $47,700 | $0 | $221,900 | $221,900 |
| 2016 | $174,200 | $47,700 | $0 | $221,900 | $221,900 |
| 2015 | $174,200 | $47,700 | $0 | $221,900 | $221,900 |
| 2014 | $174,200 | $47,700 | $0 | $221,900 | $221,900 |
| 2013 | $174,200 | $47,700 | $0 | $221,900 | $221,900 |
| 2012 | $174,200 | $47,700 | $0 | $0 | $0 |
| 2011 | $174,200 | $47,700 | $0 | $0 | $0 |
| 2010 | $174,200 | $47,700 | $0 | $0 | $0 |
| 2009 | $185,900 | $47,700 | $0 | $0 | $0 |
| 2008 | $194,800 | $25,200 | $0 | $0 | $0 |
| 2007 | $194,800 | $25,200 | $0 | $0 | $0 |
Deed and Sales History
| 1 | 02/14/2025 | SWD | STATUTORY WARRANTY DEED | GEOGHEGAN STEPHEN & KATHY | BUSBY KENNETH V & KAREN A | | | $440,000.00 | 148928 | 2025-00794 |
| 2 | 10/03/2005 | WARRANTY D | WARRANTY DEED | SERL, LARRY & CONNIE | GEOGHEGAN, STEPHEN & KATHY | | | $238,700.00 | 108653 | 2005-12231 |
Payout Agreement
| No payout information available.. |