Property
Account |
| Property ID: | 16600 | Abbreviated Legal Description: | YELLOWHAWK CREEK SUBD, PHASE 2 LOT 35 BLK 2 |
| Parcel Number: | 360722620204 | Agent Code: | |
| Type: | Real | | |
| Tax Area: | 1 - OL-140-F | Land Use Code | 11 |
| Open Space: | N | DFL | N |
| Historic Property: | N | Remodel Property: | N |
| Multi-Family Redevelopment: | N | | |
| Township: | 7 | Section: | 22 |
| Range: | 36 |
Location |
| Address: | 42 TALON LOOP WA 99362 | Mapsco: | |
| Neighborhood: | A-Superior SFR | Map ID: | |
| Neighborhood CD: | 413211 |
Owner |
| Name: | JUBENVILLE ALAN & SHARON | Owner ID: | 72760 |
| Mailing Address: | 42 TALON LOOP WALLA WALLA, WA 99362 | % Ownership: | 100.0000000000% |
| | | Exemptions: | |
Taxes and Assessment Details
Property Tax Information as of
02/21/2026
Click on "Statement Details" to expand or collapse a tax statement.
* Please enter a valid date ** Please enter a valid date *
Statement Details |
| | TOTAL: | $0.00 | $0.00 | $0.00 | $0.00 | $0.00 | $0.00 |
|
| | $0.00 | $0.00 | $0.00 | $0.00 | $0.00 | $0.00 |
Values
| (+) Improvement Homesite Value: | + | $0 | |
| (+) Improvement Non-Homesite Value: | + | $287,410 | |
| (+) Land Homesite Value: | + | $0 | |
| (+) Land Non-Homesite Value: | + | $80,000 | |
| (+) Curr Use (HS): | + | $0 | $0 |
| (+) Curr Use (NHS): | + | $0 | $0 |
| | | -------------------------- | |
| (=) Market Value: | = | $367,410 | |
| (–) Productivity Loss: | – | $0 | |
| | | -------------------------- | |
| (=) Subtotal: | = | $367,410 | |
| (+) Senior Appraised Value: | + | $0 | |
| (+) Non-Senior Appraised Value: | + | $367,410 | |
| | | -------------------------- | |
| (=) Total Appraised Value: | = | $367,410 | |
| (–) Senior Exemption Loss: | – | $0 | |
| (–) Exemption Loss: | – | $0 | |
| | | -------------------------- | |
| (=) Taxable Value: | = | $367,410 | |
Taxing Jurisdiction
| Owner: | JUBENVILLE ALAN & SHARON | | |
| % Ownership: | 100.0000000000% | | |
| Total Value: | $367,410 | | |
| Tax Area: | 1 - OL-140-F |
| CERFD | CURRENT EXPENSE REFUND 010 | 0.0000000000 | $367,410 | $367,410 | $0.00 | | |
| CURREXP | CURRENT EXPENSE 010 | 1.0175366760 | $367,410 | $367,410 | $373.85 | | |
| HUMNSERV | HUMAN SERVICES 119 | 0.0250000000 | $367,410 | $367,410 | $9.19 | | |
| SLDREL | SOLDIERS RELIEF 121 | 0.0155990005 | $367,410 | $367,410 | $5.73 | | |
| EMERGSER | EMS 147 | 0.3792580840 | $367,410 | $367,410 | $139.34 | | |
| EMSRFD | EMS REFUND 147 | 0.0000000000 | $367,410 | $367,410 | $0.00 | | |
| PORTRFD | PORT REFUND 640 | 0.0000000000 | $367,410 | $367,410 | $0.00 | | |
| PORTWWGEN | PORT OF WW 640 | 0.2460186015 | $367,410 | $367,410 | $90.39 | | |
| SD140BOND | SD #140 BOND 764 | 0.8342371393 | $367,410 | $367,410 | $306.51 | | |
| SD140GEN | SD #140 GENERAL 760 | 2.0646500647 | $367,410 | $367,410 | $758.57 | | |
| ST2 | STATE SCHOOL PART 2 600 | 0.8131451643 | $367,410 | $367,410 | $298.76 | | |
| STATESCHL | STATE SCHOOL 600 | 1.5158548041 | $367,410 | $367,410 | $556.94 | | |
| STREFUND | STATE REFUND LEVY 603 | 0.0000000000 | $367,410 | $367,410 | $0.00 | | |
| CWWBOND | C OF WW BOND 643 | 0.2760494372 | $367,410 | $367,410 | $101.42 | | |
| CWWGEN | CITY OF WW 631 | 1.6100204973 | $367,410 | $367,410 | $591.54 | | |
| CWWRFD | CITY OF WALLA WALLA REFUND 631 | 0.0000000000 | $367,410 | $367,410 | $0.00 | | |
| | Total Tax Rate: | 8.7973694689 | | | | | |
| | | | | Taxes w/Current Exemptions: | $3,232.24 | | |
| | | | | Taxes w/o Exemptions: | $3,232.24 | | |
Improvement / Building
| Improvement #1: | RESIDENTIAL | State Code: | 11 | 1575.0 sqft | Value: | $287,410 |
| Exterior Wall: | HARDBOARD | Heating/Cooling: | WARM & COOLED AIR | | Number of Bathrooms: | 2 | Number of Bedrooms: | 3 | | Plumbing: | 9 | Roof Covering: | COMP SHINGLE |
|
| | Type | Description | Class CD | Sub Class CD | Year Built | Area |
| | MA | Main Area | 1 | 35 | 2003 | 1575.0 |
| | CPC | COVERED CARPORT/PATIO | 1 | 35 | 0 | 60.0 |
| | SI1 | SITE IMPROVEMENT | 1 | 35 | 0 | 4.0 |
| | ATG | Attached Garage | 1 | 35 | 2003 | 440.0 |
| | RPS | PORCH W/STEPS,ROOF | 1 | 35 | 2003 | 92.0 |
Sketch
Property Image
Land
| 1 | RES 1 | Converted: Residential | 0.1675 | 7295.00 | 0.00 | 0.00 | 1.00 | $80,000 | $0 |
Roll Value History
| 2026 | N/A | N/A | N/A | N/A | N/A |
| 2025 | $331,960 | $80,000 | $0 | $411,960 | $411,960 |
| 2024 | $316,150 | $80,000 | $0 | $396,150 | $396,150 |
| 2023 | $287,410 | $80,000 | $0 | $367,410 | $367,410 |
| 2022 | $260,660 | $50,000 | $0 | $310,660 | $310,660 |
| 2021 | $208,530 | $50,000 | $0 | $258,530 | $258,530 |
| 2020 | $181,330 | $50,000 | $0 | $231,330 | $231,330 |
| 2019 | $181,330 | $50,000 | $0 | $231,330 | $231,330 |
| 2018 | $169,470 | $50,000 | $0 | $219,470 | $219,470 |
| 2017 | $161,400 | $50,000 | $0 | $211,400 | $211,400 |
| 2016 | $161,400 | $40,000 | $0 | $201,400 | $201,400 |
| 2015 | $153,710 | $40,000 | $0 | $193,710 | $193,710 |
| 2014 | $161,800 | $40,000 | $0 | $201,800 | $201,800 |
| 2013 | $161,800 | $40,000 | $0 | $201,800 | $201,800 |
| 2012 | $161,800 | $40,000 | $0 | $0 | $0 |
| 2011 | $162,200 | $40,000 | $0 | $0 | $0 |
| 2010 | $152,600 | $40,000 | $0 | $0 | $0 |
| 2009 | $174,000 | $40,000 | $0 | $0 | $0 |
| 2008 | $146,100 | $40,000 | $0 | $0 | $0 |
| 2007 | $146,100 | $40,000 | $0 | $0 | $0 |
Deed and Sales History
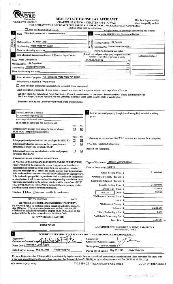
| 1 | 10/31/2022 | SWD | STATUTORY WARRANTY DEED | NETTLES JERRY W & REBECCA A | JUBENVILLE ALAN & SHARON | | | $415,000.00 | 144930 | 2022-08808 |
| 2 | 05/24/2016 | SWD | STATUTORY WARRANTY DEED | GOODWIN WILLIS D & J PAULETTE | NETTLES JERRY W & REBECCA A | | | $213,000.00 | 130274 | 2016-03902 |
| 3 | 09/28/2006 | WARRANTY D | WARRANTY DEED | JOHNSON, JOSHUA L | GOODWIN, WILLIS D & J PAULETTE | | | $217,500.00 | 111326 | 2006-11695 |
| 4 | 05/16/2003 | WARRANTY D | WARRANTY DEED | WASSER, PHILIP C | JOHNSON, JOSHUA L | | | $134,900.00 | 102098 | 2003-07213 |
| 5 | 05/16/2003 | WARRANTY D | WARRANTY DEED | MAJERUS, DOUGLAS | WASSER, PHILIP C | | | | 102097 | 2003-07212 |
Payout Agreement
| No payout information available.. |