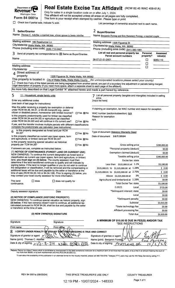
Property
Account |
| Property ID: | 16594 | Abbreviated Legal Description: | GREEN PARK TAX 1 LOT 1 BLK 24 |
| Parcel Number: | 360721512401 | Agent Code: | |
| Type: | Real | | |
| Tax Area: | 1 - OL-140-F | Land Use Code | 11 |
| Open Space: | N | DFL | N |
| Historic Property: | N | Remodel Property: | N |
| Multi-Family Redevelopment: | N | | |
| Township: | 7 | Section: | 21 |
| Range: | 36 |
Location |
| Address: | 1328 FIGUEROA ST WA 99362 | Mapsco: | |
| Neighborhood: | G-SFR | Map ID: | |
| Neighborhood CD: | 514011 |
Owner |
| Name: | ADOLFAE THOMAS C | Owner ID: | 63746 |
| Mailing Address: | 1328 FIGUEROA ST WALLA WALLA, WA 99362 | % Ownership: | 100.0000000000% |
| | | Exemptions: | |
Taxes and Assessment Details
Property Tax Information as of
02/21/2026
Click on "Statement Details" to expand or collapse a tax statement.
* Please enter a valid date ** Please enter a valid date *
Statement Details |
| | TOTAL: | $0.00 | $0.00 | $0.00 | $0.00 | $0.00 | $0.00 |
|
| | $0.00 | $0.00 | $0.00 | $0.00 | $0.00 | $0.00 |
Values
| (+) Improvement Homesite Value: | + | $0 | |
| (+) Improvement Non-Homesite Value: | + | $250,970 | |
| (+) Land Homesite Value: | + | $0 | |
| (+) Land Non-Homesite Value: | + | $42,140 | |
| (+) Curr Use (HS): | + | $0 | $0 |
| (+) Curr Use (NHS): | + | $0 | $0 |
| | | -------------------------- | |
| (=) Market Value: | = | $293,110 | |
| (–) Productivity Loss: | – | $0 | |
| | | -------------------------- | |
| (=) Subtotal: | = | $293,110 | |
| (+) Senior Appraised Value: | + | $0 | |
| (+) Non-Senior Appraised Value: | + | $293,110 | |
| | | -------------------------- | |
| (=) Total Appraised Value: | = | $293,110 | |
| (–) Senior Exemption Loss: | – | $0 | |
| (–) Exemption Loss: | – | $0 | |
| | | -------------------------- | |
| (=) Taxable Value: | = | $293,110 | |
Taxing Jurisdiction
| Owner: | ADOLFAE THOMAS C | | |
| % Ownership: | 100.0000000000% | | |
| Total Value: | $293,110 | | |
| Tax Area: | 1 - OL-140-F |
| CERFD | CURRENT EXPENSE REFUND 010 | 0.0000000000 | $293,110 | $293,110 | $0.00 | | |
| CURREXP | CURRENT EXPENSE 010 | 1.0175366760 | $293,110 | $293,110 | $298.25 | | |
| HUMNSERV | HUMAN SERVICES 119 | 0.0250000000 | $293,110 | $293,110 | $7.33 | | |
| SLDREL | SOLDIERS RELIEF 121 | 0.0155990005 | $293,110 | $293,110 | $4.57 | | |
| EMERGSER | EMS 147 | 0.3792580840 | $293,110 | $293,110 | $111.16 | | |
| EMSRFD | EMS REFUND 147 | 0.0000000000 | $293,110 | $293,110 | $0.00 | | |
| PORTRFD | PORT REFUND 640 | 0.0000000000 | $293,110 | $293,110 | $0.00 | | |
| PORTWWGEN | PORT OF WW 640 | 0.2460186015 | $293,110 | $293,110 | $72.11 | | |
| SD140BOND | SD #140 BOND 764 | 0.8342371393 | $293,110 | $293,110 | $244.52 | | |
| SD140GEN | SD #140 GENERAL 760 | 2.0646500647 | $293,110 | $293,110 | $605.17 | | |
| ST2 | STATE SCHOOL PART 2 600 | 0.8131451643 | $293,110 | $293,110 | $238.34 | | |
| STATESCHL | STATE SCHOOL 600 | 1.5158548041 | $293,110 | $293,110 | $444.31 | | |
| STREFUND | STATE REFUND LEVY 603 | 0.0000000000 | $293,110 | $293,110 | $0.00 | | |
| CWWBOND | C OF WW BOND 643 | 0.2760494372 | $293,110 | $293,110 | $80.91 | | |
| CWWGEN | CITY OF WW 631 | 1.6100204973 | $293,110 | $293,110 | $471.91 | | |
| CWWRFD | CITY OF WALLA WALLA REFUND 631 | 0.0000000000 | $293,110 | $293,110 | $0.00 | | |
| | Total Tax Rate: | 8.7973694689 | | | | | |
| | | | | Taxes w/Current Exemptions: | $2,578.58 | | |
| | | | | Taxes w/o Exemptions: | $2,578.58 | | |
Improvement / Building
| Improvement #1: | RESIDENTIAL | State Code: | 11 | 916.0 sqft | Value: | $250,970 |
| Exterior Wall: | SIDING | Heating/Cooling: | FORCED AIR | | Number of Bathrooms: | 2 | Number of Bedrooms: | 2 | | Plumbing: | 10 | Roof Covering: | COMP SHINGLE |
|
| | Type | Description | Class CD | Sub Class CD | Year Built | Area |
| | MA | Main Area | 1 | 30 | 1939 | 916.0 |
| | SI1 | SITE IMPROVEMENT | 1 | 30 | 1939 | 1.5 |
| | BASE | BASEMENT | 1 | 30 | 1939 | 832.0 |
| | BRF | BASEMENT - REC FINISH | 1 | 30 | 1939 | 250.0 |
| | RPS | PORCH W/STEPS,ROOF | 1 | 30 | 1939 | 52.0 |
| | S1F | Single One Story Fireplace | 1 | 30 | 1939 | 1.0 |
| | GSTO | GARAGE STORAGE-NO VALUE | 1 | 30 | 1939 | 198.0 |
Sketch
Property Image
Land
| 1 | RES 1 | Converted: Residential | 0.1334 | 5812.00 | 0.00 | 0.00 | 1.00 | $42,140 | $0 |
Roll Value History
| 2026 | N/A | N/A | N/A | N/A | N/A |
| 2025 | $247,560 | $63,930 | $0 | $311,490 | $311,490 |
| 2024 | $247,560 | $63,930 | $0 | $311,490 | $311,490 |
| 2023 | $250,970 | $42,140 | $0 | $293,110 | $293,110 |
| 2022 | $228,160 | $42,140 | $0 | $270,300 | $270,300 |
| 2021 | $175,500 | $42,140 | $0 | $217,640 | $217,640 |
| 2020 | $125,360 | $42,140 | $0 | $167,500 | $167,500 |
| 2019 | $125,360 | $42,140 | $0 | $167,500 | $167,500 |
| 2018 | $125,360 | $42,140 | $0 | $167,500 | $167,500 |
| 2017 | $172,090 | $26,200 | $0 | $198,290 | $198,290 |
| 2016 | $156,440 | $26,200 | $0 | $182,640 | $182,640 |
| 2015 | $142,220 | $26,200 | $0 | $168,420 | $168,420 |
| 2014 | $109,400 | $26,200 | $0 | $135,600 | $135,600 |
| 2013 | $109,400 | $26,200 | $0 | $135,600 | $135,600 |
| 2012 | $109,400 | $26,200 | $0 | $0 | $0 |
| 2011 | $109,400 | $26,200 | $0 | $0 | $0 |
| 2010 | $102,900 | $26,200 | $0 | $0 | $0 |
| 2009 | $117,200 | $26,200 | $0 | $0 | $0 |
| 2008 | $88,500 | $26,200 | $0 | $0 | $0 |
| 2007 | $88,500 | $26,200 | $0 | $0 | $0 |
Deed and Sales History
| 1 | 10/07/2024 | SWD | STATUTORY WARRANTY DEED | ADOLFAE THOMAS C | FORSTAG BENJAMIN & ERIN HAMMERS | | | $290,000.00 | 148333 | 2024-05816 |
| 2 | 08/17/2018 | SWD | STATUTORY WARRANTY DEED | ENGLEHARDT DAVID M & BETHANY N | ADOLFAE THOMAS C | | | $169,000.00 | 135345 | 2018-06749 |
| 3 | 10/04/2006 | WARRANTY D | WARRANTY DEED | JOHNSON, JOSHUA L | ENGLEHARDT, DAVID M & BETHANY | | | $147,500.00 | 111379 | 2006-11996 |
| 4 | 11/30/1999 | WARRANTY D | WARRANTY DEED | | | | | $75,500.00 | 94093 | 2929-913498 |
Payout Agreement
| No payout information available.. |