Property
Account |
| Property ID: | 16537 | Abbreviated Legal Description: | VINEYARD HILL ESTATES LT 7 |
| Parcel Number: | 360727660007 | Agent Code: | |
| Type: | Real | | |
| Tax Area: | 101 - 140-4 | Land Use Code | 11 |
| Open Space: | N | DFL | N |
| Historic Property: | N | Remodel Property: | N |
| Multi-Family Redevelopment: | N | | |
| Township: | 7 | Section: | 27 |
| Range: | 36 |
Location |
| Address: | 44 VINEHILL DR WA 99362 | Mapsco: | |
| Neighborhood: | CYCLE 4 EXCELLENT (A) | Map ID: | |
| Neighborhood CD: | 416012 |
Owner |
| Name: | DAI JUN | Owner ID: | 59686 |
| Mailing Address: | JIAN LIU 1244 FORREST LN WALLA WALLA, WA 99362 | % Ownership: | 100.0000000000% |
| | | Exemptions: | |
Taxes and Assessment Details
Values
| (+) Improvement Homesite Value: | + | $0 | |
| (+) Improvement Non-Homesite Value: | + | $1,042,780 | |
| (+) Land Homesite Value: | + | $0 | |
| (+) Land Non-Homesite Value: | + | $204,690 | |
| (+) Curr Use (HS): | + | $0 | $0 |
| (+) Curr Use (NHS): | + | $0 | $0 |
| | | -------------------------- | |
| (=) Market Value: | = | $1,247,470 | |
| (–) Productivity Loss: | – | $0 | |
| | | -------------------------- | |
| (=) Subtotal: | = | $1,247,470 | |
| (+) Senior Appraised Value: | + | $0 | |
| (+) Non-Senior Appraised Value: | + | $1,247,470 | |
| | | -------------------------- | |
| (=) Total Appraised Value: | = | $1,247,470 | |
| (–) Senior Exemption Loss: | – | $0 | |
| (–) Exemption Loss: | – | $0 | |
| | | -------------------------- | |
| (=) Taxable Value: | = | $1,247,470 | |
Taxing Jurisdiction
| Owner: | DAI JUN | | |
| % Ownership: | 100.0000000000% | | |
| Total Value: | $1,247,470 | | |
| Tax Area: | 101 - 140-4 |
| CERFD | CURRENT EXPENSE REFUND 010 | 0.0000000000 | $1,247,470 | $1,247,470 | $0.00 | | |
| CURREXP | CURRENT EXPENSE 010 | 1.0175366760 | $1,247,470 | $1,247,470 | $1,269.35 | | |
| HUMNSERV | HUMAN SERVICES 119 | 0.0250000000 | $1,247,470 | $1,247,470 | $31.19 | | |
| SLDREL | SOLDIERS RELIEF 121 | 0.0155990005 | $1,247,470 | $1,247,470 | $19.46 | | |
| EMERGSER | EMS 147 | 0.3792580840 | $1,247,470 | $1,247,470 | $473.11 | | |
| EMSRFD | EMS REFUND 147 | 0.0000000000 | $1,247,470 | $1,247,470 | $0.00 | | |
| FD4EXP | FD #4 EXPENSE 686 | 0.8836993059 | $1,247,470 | $1,247,470 | $1,102.39 | | |
| RLBRFD | RURAL LIBRARY REFUND 623 | 0.0000000000 | $1,247,470 | $1,247,470 | $0.00 | | |
| RURALLIB | RURAL LIBRARY 623 | 0.3710609029 | $1,247,470 | $1,247,470 | $462.89 | | |
| PORTRFD | PORT REFUND 640 | 0.0000000000 | $1,247,470 | $1,247,470 | $0.00 | | |
| PORTWWGEN | PORT OF WW 640 | 0.2460186015 | $1,247,470 | $1,247,470 | $306.90 | | |
| SD140BOND | SD #140 BOND 764 | 0.8342371393 | $1,247,470 | $1,247,470 | $1,040.69 | | |
| SD140GEN | SD #140 GENERAL 760 | 2.0646500647 | $1,247,470 | $1,247,470 | $2,575.59 | | |
| ST2 | STATE SCHOOL PART 2 600 | 0.8131451643 | $1,247,470 | $1,247,470 | $1,014.37 | | |
| STATESCHL | STATE SCHOOL 600 | 1.5158548041 | $1,247,470 | $1,247,470 | $1,890.98 | | |
| STREFUND | STATE REFUND LEVY 603 | 0.0000000000 | $1,247,470 | $1,247,470 | $0.00 | | |
| COROAD | COUNTY ROAD 115 | 1.6549953990 | $1,247,470 | $1,247,470 | $2,064.56 | | |
| CRPRD | COUNTY ROAD REFUND 115 | 0.0000000000 | $1,247,470 | $1,247,470 | $0.00 | | |
| | Total Tax Rate: | 9.8210551422 | | | | | |
| | | | | Taxes w/Current Exemptions: | $12,251.48 | | |
| | | | | Taxes w/o Exemptions: | $12,251.48 | | |
Improvement / Building
| Improvement #1: | RESIDENTIAL | State Code: | 11 | 4436.0 sqft | Value: | $1,042,780 |
| Exterior Wall: | STUCCO | Heating/Cooling: | WARM & COOLED AIR | | Number of Bathrooms: | 4.5 | Number of Bedrooms: | 4 | | Plumbing: | 17 | Roof Covering: | CLAY TILE |
|
| | Type | Description | Class CD | Sub Class CD | Year Built | Area |
| | MA | Main Area | 4 | 60 | 2005 | 4436.0 |
| | GFP | GAS FIREPLACE | 4 | 60 | 2005 | 4.0 |
| | SI1 | SITE IMPROVEMENT | 4 | 60 | 2005 | 10.0 |
| | ATG | Attached Garage | 4 | 60 | 2005 | 980.0 |
| | RPO | OPEN PORCH W/ROOF | 4 | 60 | 2005 | 362.0 |
| | BLW | WOOD BALCONIES | 4 | 60 | 2005 | 96.0 |
| | UPFL | Upper Floor (included in main area) | 4 | 60 | 2005 | 1525.0 |
| | PRC | PORCH W STEPS, ROOF,CEILED | 4 | 60 | 2005 | 115.0 |
| | BLW | WOOD BALCONIES | 4 | 60 | 2005 | 456.0 |
Sketch
Property Image
Land
| 1 | RES 1 | Converted: Residential | 1.4400 | 0.00 | 0.00 | 0.00 | 1.00 | $204,690 | $0 |
Roll Value History
| 2026 | N/A | N/A | N/A | N/A | N/A |
| 2025 | $1,147,050 | $204,690 | $0 | $1,351,740 | $1,351,740 |
| 2024 | $1,147,050 | $204,690 | $0 | $1,351,740 | $1,351,740 |
| 2023 | $1,042,780 | $204,690 | $0 | $1,247,470 | $1,247,470 |
| 2022 | $993,120 | $153,500 | $0 | $1,146,620 | $1,146,620 |
| 2021 | $709,370 | $153,500 | $0 | $862,870 | $862,870 |
| 2020 | $644,880 | $153,500 | $0 | $798,380 | $798,380 |
| 2019 | $644,880 | $153,500 | $0 | $798,380 | $798,380 |
| 2018 | $644,880 | $153,500 | $0 | $798,380 | $798,380 |
| 2017 | $644,880 | $153,500 | $0 | $798,380 | $798,380 |
| 2016 | $644,880 | $153,500 | $0 | $798,380 | $798,380 |
| 2015 | $644,880 | $153,500 | $0 | $798,380 | $798,380 |
| 2014 | $537,400 | $153,500 | $0 | $690,900 | $690,900 |
| 2013 | $537,400 | $153,500 | $0 | $690,900 | $690,900 |
| 2012 | $537,500 | $153,500 | $0 | $0 | $0 |
| 2011 | $538,600 | $153,500 | $0 | $0 | $0 |
| 2010 | $538,600 | $153,500 | $0 | $0 | $0 |
| 2009 | $578,800 | $153,500 | $0 | $0 | $0 |
| 2008 | $578,800 | $153,500 | $0 | $0 | $0 |
| 2007 | $524,900 | $100,600 | $0 | $0 | $0 |
Deed and Sales History
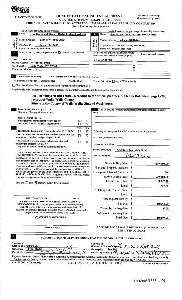
| 1 | 09/22/2016 | SWD | STATUTORY WARRANTY DEED | HECHT EVAN & TIARA L | DAI JUN | | | $699,000.00 | 131089 | 2016-07754 |
| 2 | 09/09/2008 | WARRANTY D | WARRANTY DEED | MILLER, CRAIG TJ & MELINDA C | HECHT, EVAN & TIARA L | | | $855,000.00 | 115618 | 2008-09311 |
| 3 | 04/29/2005 | WARRANTY D | WARRANTY DEED | FLUD, DANNY & DENISE L | MILLER, CRAIG TJ & MELINDA C | | | $700,000.00 | 107373 | 2005-04972 |
| 4 | 03/02/2004 | WARRANTY D | WARRANTY DEED | MORASCH, ROBERT G DR. | FLUD, DANNY & DENISE L | | | $121,000.00 | 104162 | 2004-02195 |
| 5 | 08/23/2002 | WARRANTY D | WARRANTY DEED | BELLA TERRA LLC | MORASCH, ROBERT G | | | $102,600.00 | 100214 | 2002-09494 |
Payout Agreement
| No payout information available.. |