Property
Account |
| Property ID: | 16490 | Abbreviated Legal Description: | GARDENA 1ST TRACT 174 |
| Parcel Number: | 330609510185 | Agent Code: | |
| Type: | Real | | |
| Tax Area: | 318 - 300-6-TM | Land Use Code | 11 |
| Open Space: | N | DFL | N |
| Historic Property: | N | Remodel Property: | N |
| Multi-Family Redevelopment: | N | | |
| Township: | 6 | Section: | 9 |
| Range: | 33 |
Location |
| Address: | 143 MARKHAM RD WA 99360 | Mapsco: | |
| Neighborhood: | A Touchet/Lowden MH Rural | Map ID: | |
| Neighborhood CD: | 213663 |
Owner |
| Name: | MORGAN NICHOLAS L | Owner ID: | 73118 |
| Mailing Address: | JENNIFER L MORGAN 143 MARKHAM RD TOUCHET, WA 99360 | % Ownership: | 100.0000000000% |
| | | Exemptions: | |
Taxes and Assessment Details
Property Tax Information as of
02/21/2026
Click on "Statement Details" to expand or collapse a tax statement.
* Please enter a valid date ** Please enter a valid date *
Statement Details |
| | TOTAL: | $0.00 | $0.00 | $0.00 | $0.00 | $0.00 | $0.00 |
|
| | $0.00 | $0.00 | $0.00 | $0.00 | $0.00 | $0.00 |
Values
| (+) Improvement Homesite Value: | + | $0 | |
| (+) Improvement Non-Homesite Value: | + | $400,360 | |
| (+) Land Homesite Value: | + | $0 | |
| (+) Land Non-Homesite Value: | + | $81,150 | |
| (+) Curr Use (HS): | + | $0 | $0 |
| (+) Curr Use (NHS): | + | $0 | $0 |
| | | -------------------------- | |
| (=) Market Value: | = | $481,510 | |
| (–) Productivity Loss: | – | $0 | |
| | | -------------------------- | |
| (=) Subtotal: | = | $481,510 | |
| (+) Senior Appraised Value: | + | $0 | |
| (+) Non-Senior Appraised Value: | + | $481,510 | |
| | | -------------------------- | |
| (=) Total Appraised Value: | = | $481,510 | |
| (–) Senior Exemption Loss: | – | $0 | |
| (–) Exemption Loss: | – | $0 | |
| | | -------------------------- | |
| (=) Taxable Value: | = | $481,510 | |
Taxing Jurisdiction
| Owner: | MORGAN NICHOLAS L | | |
| % Ownership: | 100.0000000000% | | |
| Total Value: | $481,510 | | |
| Tax Area: | 318 - 300-6-TM |
| CERFD | CURRENT EXPENSE REFUND 010 | 0.0000000000 | $481,510 | $481,510 | $0.00 | | |
| CURREXP | CURRENT EXPENSE 010 | 1.0175366760 | $481,510 | $481,510 | $489.95 | | |
| HUMNSERV | HUMAN SERVICES 119 | 0.0250000000 | $481,510 | $481,510 | $12.04 | | |
| SLDREL | SOLDIERS RELIEF 121 | 0.0155990005 | $481,510 | $481,510 | $7.51 | | |
| EMERGSER | EMS 147 | 0.3792580840 | $481,510 | $481,510 | $182.62 | | |
| EMSRFD | EMS REFUND 147 | 0.0000000000 | $481,510 | $481,510 | $0.00 | | |
| FD6EXP | FD #6 EXPENSE 693 | 0.6692985746 | $481,510 | $481,510 | $322.27 | | |
| RLBRFD | RURAL LIBRARY REFUND 623 | 0.0000000000 | $481,510 | $481,510 | $0.00 | | |
| RURALLIB | RURAL LIBRARY 623 | 0.3710609029 | $481,510 | $481,510 | $178.67 | | |
| PORTRFD | PORT REFUND 640 | 0.0000000000 | $481,510 | $481,510 | $0.00 | | |
| PORTWWGEN | PORT OF WW 640 | 0.2460186015 | $481,510 | $481,510 | $118.46 | | |
| SD300BOND | SD #300 BOND 783 | 1.8964951620 | $481,510 | $481,510 | $913.18 | | |
| SD300GEN | SD #300 GENERAL 780 | 2.1198322866 | $481,510 | $481,510 | $1,020.72 | | |
| ST2 | STATE SCHOOL PART 2 600 | 0.8131451643 | $481,510 | $481,510 | $391.54 | | |
| STATESCHL | STATE SCHOOL 600 | 1.5158548041 | $481,510 | $481,510 | $729.90 | | |
| STREFUND | STATE REFUND LEVY 603 | 0.0000000000 | $481,510 | $481,510 | $0.00 | | |
| COROAD | COUNTY ROAD 115 | 1.6549953990 | $481,510 | $481,510 | $796.90 | | |
| CRPRD | COUNTY ROAD REFUND 115 | 0.0000000000 | $481,510 | $481,510 | $0.00 | | |
| | Total Tax Rate: | 10.7240946555 | | | | | |
| | | | | Taxes w/Current Exemptions: | $5,163.76 | | |
| | | | | Taxes w/o Exemptions: | $5,163.76 | | |
Improvement / Building
| Improvement #1: | MANUFACTURED HOME | State Code: | 11 | 2100.0 sqft | Value: | $400,360 |
| Exterior Wall: | HARDBOARD | Heating/Cooling: | WARM & COOLED AIR | | Number of Bathrooms: | 2 | Number of Bedrooms: | 5 | | Plumbing: | 10 | Roof Covering: | COMP SHINGLE |
|
| | Type | Description | Class CD | Sub Class CD | Year Built | Area |
| | MOBHOME | MANUFACTURD HOMES | 1 | 30 | 2006 | 2100.0 |
| | CPC | COVERED CARPORT/PATIO | 1 | 30 | 2012 | 420.0 |
| | MI1 | MH SET-UP COSTS | 1 | 30 | 2006 | 2.0 |
| | POL3 | POLE BUILDING-CON,ELEC,INSU | 1 | 30 | 2007 | 1080.0 |
Sketch
Property Image
Land
| 1 | RES 1 | Converted: Residential | 7.0400 | 0.00 | 0.00 | 0.00 | 1.00 | $81,150 | $0 |
Roll Value History
| 2026 | N/A | N/A | N/A | N/A | N/A |
| 2025 | $400,360 | $81,150 | $0 | $481,510 | $481,510 |
| 2024 | $400,360 | $81,150 | $0 | $481,510 | $481,510 |
| 2023 | $400,360 | $81,150 | $0 | $481,510 | $481,510 |
| 2022 | $307,970 | $81,150 | $0 | $389,120 | $389,120 |
| 2021 | $256,640 | $81,150 | $0 | $337,790 | $337,790 |
| 2020 | $207,200 | $66,100 | $0 | $273,300 | $273,300 |
| 2019 | $207,200 | $66,100 | $0 | $273,300 | $273,300 |
| 2018 | $188,360 | $66,100 | $0 | $254,460 | $254,460 |
| 2017 | $188,360 | $66,100 | $0 | $254,460 | $254,460 |
| 2016 | $188,360 | $66,100 | $0 | $254,460 | $254,460 |
| 2015 | $171,240 | $66,100 | $0 | $237,340 | $237,340 |
| 2014 | $148,900 | $66,100 | $0 | $215,000 | $215,000 |
| 2013 | $148,900 | $66,100 | $0 | $215,000 | $215,000 |
| 2012 | $142,900 | $66,100 | $0 | $0 | $0 |
| 2011 | $142,900 | $66,100 | $0 | $0 | $0 |
| 2010 | $142,900 | $66,100 | $0 | $0 | $0 |
| 2009 | $149,400 | $48,900 | $0 | $0 | $0 |
| 2008 | $123,500 | $48,900 | $0 | $0 | $0 |
| 2007 | $0 | $12,600 | $0 | $0 | $0 |
Deed and Sales History
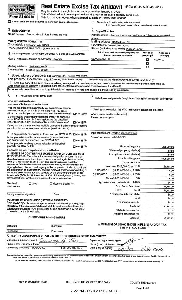
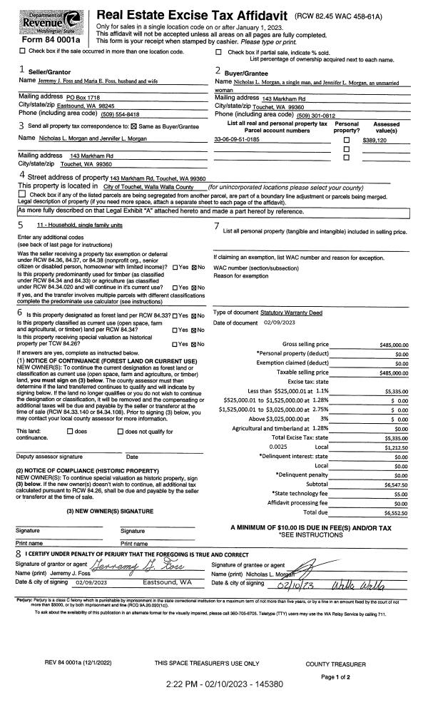
| 1 | 02/10/2023 | SWD | STATUTORY WARRANTY DEED | FOSS JERREMY J & MARIA E | MORGAN NICHOLAS L | | | $485,000.00 | 145380 | 2023-00685 |
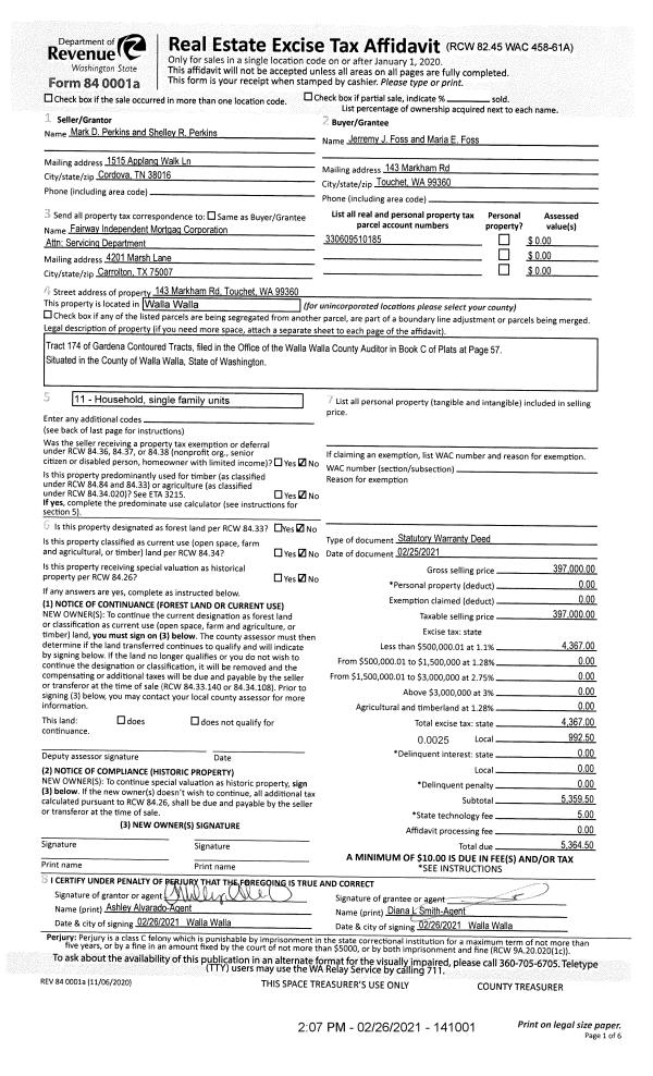
| 2 | 02/26/2021 | SWD | STATUTORY WARRANTY DEED | PERKINS MARK & SHELLEY | FOSS JERREMY J & MARIA E | | | $397,000.00 | 141001 | 2021-02272 |
| 3 | 08/16/2006 | WARRANTY D | WARRANTY DEED | WEAVER RESOURCES LLC | PERKINS, MARK & SHELLEY | | | $65,000.00 | 110972 | 2006-09842 |
Payout Agreement
| No payout information available.. |