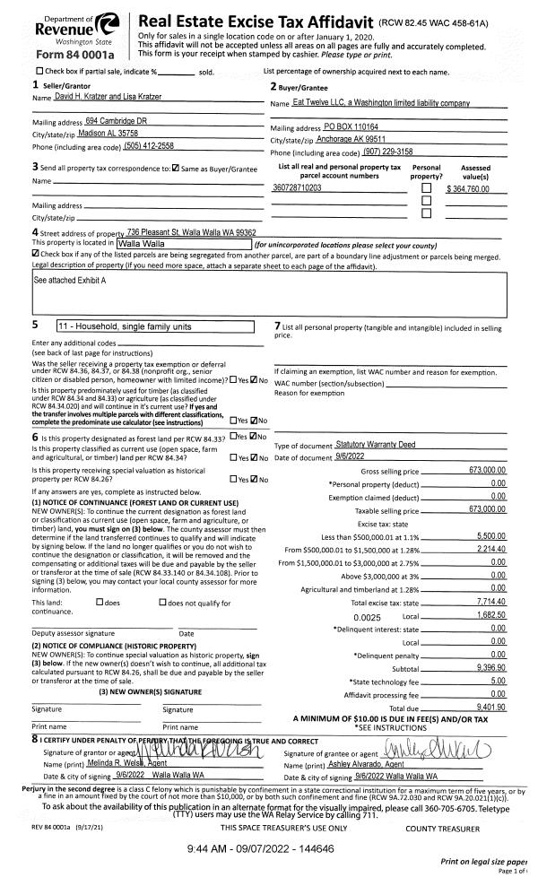
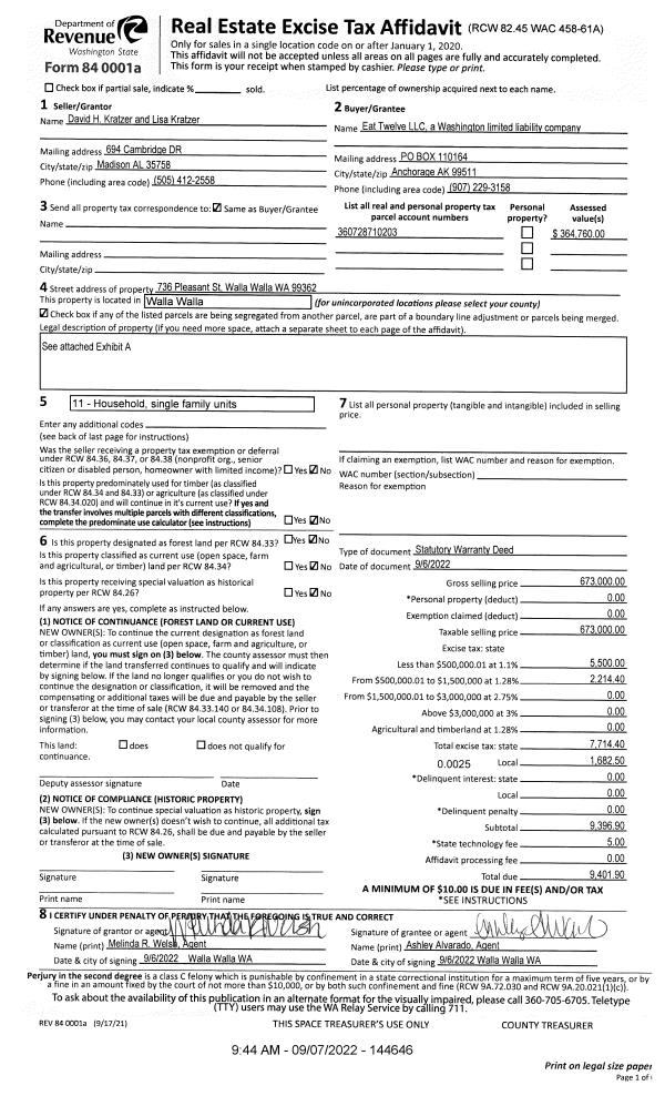
Property
Account |
| Property ID: | 16488 | Abbreviated Legal Description: | SPRING GROVE #1 TAX 2 BLK 2 |
| Parcel Number: | 360728710203 | Agent Code: | |
| Type: | Real | | |
| Tax Area: | 1 - OL-140-F | Land Use Code | 11 |
| Open Space: | N | DFL | N |
| Historic Property: | N | Remodel Property: | N |
| Multi-Family Redevelopment: | N | | |
| Township: | 7 | Section: | 28 |
| Range: | 36 |
Location |
| Address: | 736 PLEASANT ST WA 99362 | Mapsco: | |
| Neighborhood: | A Res | Map ID: | |
| Neighborhood CD: | 613011 |
Owner |
| Name: | SIMANDEZ INVESTMENTS LLC | Owner ID: | 72581 |
| Mailing Address: | 736 PLEASANT ST WALLA WALLA, WA 99362 | % Ownership: | 100.0000000000% |
| | | Exemptions: | |
Taxes and Assessment Details
Property Tax Information as of
02/21/2026
Click on "Statement Details" to expand or collapse a tax statement.
* Please enter a valid date ** Please enter a valid date *
Statement Details |
| | TOTAL: | $0.00 | $0.00 | $0.00 | $0.00 | $0.00 | $0.00 |
|
| | $0.00 | $0.00 | $0.00 | $0.00 | $0.00 | $0.00 |
Values
| (+) Improvement Homesite Value: | + | $0 | |
| (+) Improvement Non-Homesite Value: | + | $503,810 | |
| (+) Land Homesite Value: | + | $0 | |
| (+) Land Non-Homesite Value: | + | $93,790 | |
| (+) Curr Use (HS): | + | $0 | $0 |
| (+) Curr Use (NHS): | + | $0 | $0 |
| | | -------------------------- | |
| (=) Market Value: | = | $597,600 | |
| (–) Productivity Loss: | – | $0 | |
| | | -------------------------- | |
| (=) Subtotal: | = | $597,600 | |
| (+) Senior Appraised Value: | + | $0 | |
| (+) Non-Senior Appraised Value: | + | $597,600 | |
| | | -------------------------- | |
| (=) Total Appraised Value: | = | $597,600 | |
| (–) Senior Exemption Loss: | – | $0 | |
| (–) Exemption Loss: | – | $0 | |
| | | -------------------------- | |
| (=) Taxable Value: | = | $597,600 | |
Taxing Jurisdiction
| Owner: | SIMANDEZ INVESTMENTS LLC | | |
| % Ownership: | 100.0000000000% | | |
| Total Value: | $597,600 | | |
| Tax Area: | 1 - OL-140-F |
| CERFD | CURRENT EXPENSE REFUND 010 | 0.0000000000 | $597,600 | $597,600 | $0.00 | | |
| CURREXP | CURRENT EXPENSE 010 | 1.0175366760 | $597,600 | $597,600 | $608.08 | | |
| HUMNSERV | HUMAN SERVICES 119 | 0.0250000000 | $597,600 | $597,600 | $14.94 | | |
| SLDREL | SOLDIERS RELIEF 121 | 0.0155990005 | $597,600 | $597,600 | $9.32 | | |
| EMERGSER | EMS 147 | 0.3792580840 | $597,600 | $597,600 | $226.64 | | |
| EMSRFD | EMS REFUND 147 | 0.0000000000 | $597,600 | $597,600 | $0.00 | | |
| PORTRFD | PORT REFUND 640 | 0.0000000000 | $597,600 | $597,600 | $0.00 | | |
| PORTWWGEN | PORT OF WW 640 | 0.2460186015 | $597,600 | $597,600 | $147.02 | | |
| SD140BOND | SD #140 BOND 764 | 0.8342371393 | $597,600 | $597,600 | $498.54 | | |
| SD140GEN | SD #140 GENERAL 760 | 2.0646500647 | $597,600 | $597,600 | $1,233.83 | | |
| ST2 | STATE SCHOOL PART 2 600 | 0.8131451643 | $597,600 | $597,600 | $485.94 | | |
| STATESCHL | STATE SCHOOL 600 | 1.5158548041 | $597,600 | $597,600 | $905.87 | | |
| STREFUND | STATE REFUND LEVY 603 | 0.0000000000 | $597,600 | $597,600 | $0.00 | | |
| CWWBOND | C OF WW BOND 643 | 0.2760494372 | $597,600 | $597,600 | $164.97 | | |
| CWWGEN | CITY OF WW 631 | 1.6100204973 | $597,600 | $597,600 | $962.15 | | |
| CWWRFD | CITY OF WALLA WALLA REFUND 631 | 0.0000000000 | $597,600 | $597,600 | $0.00 | | |
| | Total Tax Rate: | 8.7973694689 | | | | | |
| | | | | Taxes w/Current Exemptions: | $5,257.30 | | |
| | | | | Taxes w/o Exemptions: | $5,257.30 | | |
Improvement / Building
| Improvement #1: | RESIDENTIAL | State Code: | 11 | 2120.0 sqft | Value: | $503,810 |
| Exterior Wall: | SIDING | Heating/Cooling: | WARM & COOLED AIR | | Number of Bathrooms: | 2 | Number of Bedrooms: | 3 | | Plumbing: | 9 | Roof Covering: | COMP SHINGLE |
|
| | Type | Description | Class CD | Sub Class CD | Year Built | Area |
| | MA | Main Area | 4 | 40 | 1898 | 2120.0 |
| | UPFL | Upper Floor (included in main area) | 4 | 40 | 1898 | 947.0 |
| | SI1 | SITE IMPROVEMENT | 4 | 40 | 1898 | 2.5 |
| | RCD | WOOD DECK W/ROOF, CEILED | 4 | 40 | 1898 | 133.0 |
| | TOOL | TOOL SHED | 4 | 40 | 1898 | 160.0 |
| | WOD | Wood Deck | 4 | 40 | 2019 | 370.0 |
| | DTG | Detached Garage | 4 | 40 | 1898 | 240.0 |
Sketch
Property Image
Land
| 1 | RES 1 | Converted: Residential | 0.3495 | 15225.00 | 0.00 | 0.00 | 1.00 | $93,790 | $0 |
Roll Value History
| 2026 | N/A | N/A | N/A | N/A | N/A |
| 2025 | $514,310 | $114,640 | $0 | $628,950 | $628,950 |
| 2024 | $503,810 | $93,790 | $0 | $597,600 | $597,600 |
| 2023 | $503,810 | $93,790 | $0 | $597,600 | $597,600 |
| 2022 | $347,460 | $75,210 | $0 | $422,670 | $422,670 |
| 2021 | $289,550 | $75,210 | $0 | $364,760 | $364,760 |
| 2020 | $241,290 | $75,210 | $0 | $316,500 | $316,500 |
| 2019 | $208,550 | $75,210 | $0 | $283,760 | $283,760 |
| 2018 | $242,160 | $51,600 | $0 | $293,760 | $293,760 |
| 2017 | $220,140 | $51,600 | $0 | $271,740 | $271,740 |
| 2016 | $220,140 | $51,600 | $0 | $271,740 | $271,740 |
| 2015 | $200,130 | $51,600 | $0 | $251,730 | $251,730 |
| 2014 | $190,600 | $51,600 | $0 | $242,200 | $242,200 |
| 2013 | $190,600 | $51,600 | $0 | $242,200 | $242,200 |
| 2012 | $190,600 | $51,600 | $0 | $0 | $0 |
| 2011 | $190,600 | $51,600 | $0 | $0 | $0 |
| 2010 | $190,600 | $51,600 | $0 | $0 | $0 |
| 2009 | $217,500 | $51,600 | $0 | $0 | $0 |
| 2008 | $217,500 | $51,600 | $0 | $0 | $0 |
| 2007 | $115,200 | $29,100 | $0 | $0 | $0 |
Deed and Sales History
| 1 | 10/06/2022 | QCD | QUIT CLAIM DEED | EAT TWELVE LLC | SIMANDEZ INVESTMENTS LLC | | | $0.00 | 144823 | 2022-08275 |
| 2 | 09/07/2022 | SWD | STATUTORY WARRANTY DEED | KRATZER DAVID H & LISA | EAT TWELVE LLC | | | $673,000.00 | 144646 | 2022-07479 |
| 3 | 07/02/2018 | SWD | STATUTORY WARRANTY DEED | SHAW MATTHEW I | KRATZER DAVID H & LISA | | | $300,000.00 | 135043 | 2018-05303 |
| 4 | 06/15/2007 | WARRANTY D | WARRANTY DEED | KLASSEN, RANDOLPH J & JOYCE M | SHAW, MATTHEW I | | | $279,000.00 | 113066 | 2007-06897 |
| 5 | 08/02/2005 | WARRANTY D | WARRANTY DEED | MISIAG, THOMAS G & JOYCE | KLASSEN, RANDOLPH J & JOYCE M | | | $199,000.00 | 108124 | 2005-09515 |
| 6 | 08/02/2001 | WARRANTY D | WARRANTY DEED | | | | | $148,000.00 | 97750 | 3170-108334 |
Payout Agreement
| No payout information available.. |