Property
Account |
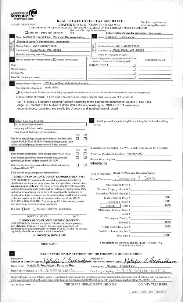
| Property ID: | 16475 | Abbreviated Legal Description: | STODDARDS 2ND ADDITION PARCEL #11 BLK 2 |
| Parcel Number: | 360731570211 | Agent Code: | |
| Type: | Real | | |
| Tax Area: | 5 - OL-140 | Land Use Code | 11 |
| Open Space: | N | DFL | N |
| Historic Property: | N | Remodel Property: | N |
| Multi-Family Redevelopment: | N | | |
| Township: | 7 | Section: | 31 |
| Range: | 36 |
Location |
| Address: | 2557 LANCER PL WA 99362 | Mapsco: | |
| Neighborhood: | VG SFR | Map ID: | |
| Neighborhood CD: | 115011 |
Owner |
| Name: | FREDRICKSON MICHAEL E & RACHAEL A | Owner ID: | 68462 |
| Mailing Address: | 2 W MAIN ST WALLA WALLA, WA 99362 | % Ownership: | 100.0000000000% |
| | | Exemptions: | |
Taxes and Assessment Details
Values
| (+) Improvement Homesite Value: | + | $0 | |
| (+) Improvement Non-Homesite Value: | + | $479,680 | |
| (+) Land Homesite Value: | + | $0 | |
| (+) Land Non-Homesite Value: | + | $100,000 | |
| (+) Curr Use (HS): | + | $0 | $0 |
| (+) Curr Use (NHS): | + | $0 | $0 |
| | | -------------------------- | |
| (=) Market Value: | = | $579,680 | |
| (–) Productivity Loss: | – | $0 | |
| | | -------------------------- | |
| (=) Subtotal: | = | $579,680 | |
| (+) Senior Appraised Value: | + | $0 | |
| (+) Non-Senior Appraised Value: | + | $579,680 | |
| | | -------------------------- | |
| (=) Total Appraised Value: | = | $579,680 | |
| (–) Senior Exemption Loss: | – | $0 | |
| (–) Exemption Loss: | – | $0 | |
| | | -------------------------- | |
| (=) Taxable Value: | = | $579,680 | |
Taxing Jurisdiction
| Owner: | FREDRICKSON MICHAEL E & RACHAEL A | | |
| % Ownership: | 100.0000000000% | | |
| Total Value: | $579,680 | | |
| Tax Area: | 5 - OL-140 |
| CERFD | CURRENT EXPENSE REFUND 010 | 0.0000000000 | $579,680 | $579,680 | $0.00 | | |
| CURREXP | CURRENT EXPENSE 010 | 1.0175366760 | $579,680 | $579,680 | $589.85 | | |
| HUMNSERV | HUMAN SERVICES 119 | 0.0250000000 | $579,680 | $579,680 | $14.49 | | |
| SLDREL | SOLDIERS RELIEF 121 | 0.0155990005 | $579,680 | $579,680 | $9.04 | | |
| EMERGSER | EMS 147 | 0.3792580840 | $579,680 | $579,680 | $219.85 | | |
| EMSRFD | EMS REFUND 147 | 0.0000000000 | $579,680 | $579,680 | $0.00 | | |
| PORTRFD | PORT REFUND 640 | 0.0000000000 | $579,680 | $579,680 | $0.00 | | |
| PORTWWGEN | PORT OF WW 640 | 0.2460186015 | $579,680 | $579,680 | $142.61 | | |
| SD140BOND | SD #140 BOND 764 | 0.8342371393 | $579,680 | $579,680 | $483.59 | | |
| SD140GEN | SD #140 GENERAL 760 | 2.0646500647 | $579,680 | $579,680 | $1,196.84 | | |
| ST2 | STATE SCHOOL PART 2 600 | 0.8131451643 | $579,680 | $579,680 | $471.36 | | |
| STATESCHL | STATE SCHOOL 600 | 1.5158548041 | $579,680 | $579,680 | $878.71 | | |
| STREFUND | STATE REFUND LEVY 603 | 0.0000000000 | $579,680 | $579,680 | $0.00 | | |
| CWWBOND | C OF WW BOND 643 | 0.2760494372 | $579,680 | $579,680 | $160.02 | | |
| CWWGEN | CITY OF WW 631 | 1.6100204973 | $579,680 | $579,680 | $933.30 | | |
| CWWRFD | CITY OF WALLA WALLA REFUND 631 | 0.0000000000 | $579,680 | $579,680 | $0.00 | | |
| | Total Tax Rate: | 8.7973694689 | | | | | |
| | | | | Taxes w/Current Exemptions: | $5,099.66 | | |
| | | | | Taxes w/o Exemptions: | $5,099.66 | | |
Improvement / Building
| Improvement #1: | RESIDENTIAL | State Code: | 11 | 2380.0 sqft | Value: | $479,680 |
| Exterior Wall: | SIDING | Heating/Cooling: | WARM & COOLED AIR | | Number of Bathrooms: | 3 | Number of Bedrooms: | 4 | | Plumbing: | 16 | Roof Covering: | COMP SHINGLE |
|
| | Type | Description | Class CD | Sub Class CD | Year Built | Area |
| | MA | Main Area | 1 | 45 | 1986 | 2380.0 |
| | SI1 | SITE IMPROVEMENT | 1 | 45 | 1986 | 3.5 |
| | BASE | BASEMENT | 1 | 45 | 1986 | 924.0 |
| | BPF | BASEMENT -PARTITIONED FINISH | 1 | 45 | 1986 | 858.0 |
| | ATG | Attached Garage | 1 | 45 | 1986 | 820.0 |
| | SWP | Solid Wall Porch | 1 | 45 | 1986 | 180.0 |
| | PRC | PORCH W STEPS, ROOF,CEILED | 1 | 45 | 1986 | 40.0 |
| | S1F | Single One Story Fireplace | 1 | 45 | 1986 | 1.0 |
| | WOD | Wood Deck | 1 | 45 | 1986 | 254.0 |
Sketch
Property Image
Land
| 1 | RES 1 | Converted: Residential | 0.3300 | 14374.00 | 0.00 | 0.00 | 1.00 | $100,000 | $0 |
Roll Value History
| 2026 | N/A | N/A | N/A | N/A | N/A |
| 2025 | $429,680 | $150,000 | $0 | $579,680 | $579,680 |
| 2024 | $479,680 | $100,000 | $0 | $579,680 | $579,680 |
| 2023 | $479,680 | $100,000 | $0 | $579,680 | $579,680 |
| 2022 | $456,840 | $100,000 | $0 | $556,840 | $556,840 |
| 2021 | $397,250 | $100,000 | $0 | $497,250 | $497,250 |
| 2020 | $361,140 | $100,000 | $0 | $461,140 | $461,140 |
| 2019 | $371,140 | $90,000 | $0 | $461,140 | $461,140 |
| 2018 | $265,100 | $90,000 | $0 | $355,100 | $355,100 |
| 2017 | $265,100 | $90,000 | $0 | $355,100 | $355,100 |
| 2016 | $265,100 | $90,000 | $0 | $355,100 | $355,100 |
| 2015 | $265,100 | $90,000 | $0 | $355,100 | $355,100 |
| 2014 | $265,100 | $90,000 | $0 | $355,100 | $355,100 |
| 2013 | $265,100 | $90,000 | $0 | $355,100 | $355,100 |
| 2012 | $283,800 | $90,000 | $0 | $0 | $0 |
| 2011 | $283,800 | $90,000 | $0 | $0 | $0 |
| 2010 | $283,800 | $90,000 | $0 | $0 | $0 |
| 2009 | $303,500 | $90,000 | $0 | $0 | $0 |
| 2008 | $221,400 | $45,000 | $0 | $0 | $0 |
| 2007 | $221,400 | $45,000 | $0 | $0 | $0 |
Deed and Sales History
| 1 | 11/24/2020 | QCD | QUIT CLAIM DEED | FREDRICKSON MICHAEL E | FREDRICKSON MICHAEL E & RACHAEL A | | | $0.00 | 140422 | 2020-12472 |
| 2 | 11/24/2020 | QCD | QUIT CLAIM DEED | FREDRICKSON MICHAEL E ETAL | FREDRICKSON MICHAEL E | | | $300,000.00 | 140421 | 2020-12471 |
| 3 | 05/06/2020 | DPR | DEED OF PERSONAL REPRESENTATIVE | FREDRICKSON NATALIE S | FREDRICKSON MICHAEL E ETAL | | | $0.00 | 139073 | 2020-04035 |
| 4 | 01/09/2018 | DPR | DEED OF PERSONAL REPRESENTATIVE | FREDRICKSON JOHN & NATALIE | FREDRICKSON NATALIE S | | | $0.00 | 134017 | 2018-00545 |
| 5 | 03/25/1986 | WARRANTY D | WARRANTY DEED | | | | | $30,000.00 | 0 | 1558-602007 |
Payout Agreement
| No payout information available.. |