Property
Account |
| Property ID: | 16469 | Abbreviated Legal Description: | 21-7-36 TAX 63B |
| Parcel Number: | 360721240021 | Agent Code: | |
| Type: | Real | | |
| Tax Area: | 1 - OL-140-F | Land Use Code | 11 |
| Open Space: | N | DFL | N |
| Historic Property: | N | Remodel Property: | N |
| Multi-Family Redevelopment: | N | | |
| Township: | 7 | Section: | 21 |
| Range: | 36 |
Location |
| Address: | 1006 WAVERLY ST WA 99362 | Mapsco: | |
| Neighborhood: | A-SFR | Map ID: | |
| Neighborhood CD: | 513011 |
Owner |
| Name: | BRAUHN DAVID MICHAEL | Owner ID: | 70987 |
| Mailing Address: | 412 N 59TH ST SEATTLE, WA 98103-5835 | % Ownership: | 100.0000000000% |
| | | Exemptions: | |
Taxes and Assessment Details
Property Tax Information as of
02/21/2026
Click on "Statement Details" to expand or collapse a tax statement.
* Please enter a valid date ** Please enter a valid date *
Statement Details |
| | TOTAL: | $0.00 | $0.00 | $0.00 | $0.00 | $0.00 | $0.00 |
|
| | $0.00 | $0.00 | $0.00 | $0.00 | $0.00 | $0.00 |
Values
| (+) Improvement Homesite Value: | + | $0 | |
| (+) Improvement Non-Homesite Value: | + | $323,080 | |
| (+) Land Homesite Value: | + | $0 | |
| (+) Land Non-Homesite Value: | + | $32,670 | |
| (+) Curr Use (HS): | + | $0 | $0 |
| (+) Curr Use (NHS): | + | $0 | $0 |
| | | -------------------------- | |
| (=) Market Value: | = | $355,750 | |
| (–) Productivity Loss: | – | $0 | |
| | | -------------------------- | |
| (=) Subtotal: | = | $355,750 | |
| (+) Senior Appraised Value: | + | $0 | |
| (+) Non-Senior Appraised Value: | + | $355,750 | |
| | | -------------------------- | |
| (=) Total Appraised Value: | = | $355,750 | |
| (–) Senior Exemption Loss: | – | $0 | |
| (–) Exemption Loss: | – | $0 | |
| | | -------------------------- | |
| (=) Taxable Value: | = | $355,750 | |
Taxing Jurisdiction
| Owner: | BRAUHN DAVID MICHAEL | | |
| % Ownership: | 100.0000000000% | | |
| Total Value: | $355,750 | | |
| Tax Area: | 1 - OL-140-F |
| CERFD | CURRENT EXPENSE REFUND 010 | 0.0000000000 | $355,750 | $355,750 | $0.00 | | |
| CURREXP | CURRENT EXPENSE 010 | 1.0175366760 | $355,750 | $355,750 | $361.99 | | |
| HUMNSERV | HUMAN SERVICES 119 | 0.0250000000 | $355,750 | $355,750 | $8.89 | | |
| SLDREL | SOLDIERS RELIEF 121 | 0.0155990005 | $355,750 | $355,750 | $5.55 | | |
| EMERGSER | EMS 147 | 0.3792580840 | $355,750 | $355,750 | $134.92 | | |
| EMSRFD | EMS REFUND 147 | 0.0000000000 | $355,750 | $355,750 | $0.00 | | |
| PORTRFD | PORT REFUND 640 | 0.0000000000 | $355,750 | $355,750 | $0.00 | | |
| PORTWWGEN | PORT OF WW 640 | 0.2460186015 | $355,750 | $355,750 | $87.52 | | |
| SD140BOND | SD #140 BOND 764 | 0.8342371393 | $355,750 | $355,750 | $296.78 | | |
| SD140GEN | SD #140 GENERAL 760 | 2.0646500647 | $355,750 | $355,750 | $734.50 | | |
| ST2 | STATE SCHOOL PART 2 600 | 0.8131451643 | $355,750 | $355,750 | $289.28 | | |
| STATESCHL | STATE SCHOOL 600 | 1.5158548041 | $355,750 | $355,750 | $539.27 | | |
| STREFUND | STATE REFUND LEVY 603 | 0.0000000000 | $355,750 | $355,750 | $0.00 | | |
| CWWBOND | C OF WW BOND 643 | 0.2760494372 | $355,750 | $355,750 | $98.20 | | |
| CWWGEN | CITY OF WW 631 | 1.6100204973 | $355,750 | $355,750 | $572.76 | | |
| CWWRFD | CITY OF WALLA WALLA REFUND 631 | 0.0000000000 | $355,750 | $355,750 | $0.00 | | |
| | Total Tax Rate: | 8.7973694689 | | | | | |
| | | | | Taxes w/Current Exemptions: | $3,129.66 | | |
| | | | | Taxes w/o Exemptions: | $3,129.66 | | |
Improvement / Building
| Improvement #1: | RESIDENTIAL | State Code: | 11 | 1772.0 sqft | Value: | $323,080 |
| Exterior Wall: | SIDING | Heating/Cooling: | WARM & COOLED AIR | | Number of Bathrooms: | 1.5 | Number of Bedrooms: | 2 | | Plumbing: | 7 | Roof Covering: | COMP SHINGLE |
|
| | Type | Description | Class CD | Sub Class CD | Year Built | Area |
| | MA | Main Area | 1 | 30 | 1946 | 1772.0 |
| | SI1 | SITE IMPROVEMENT | 1 | 30 | 1946 | 3.0 |
| | BASE | BASEMENT | 1 | 30 | 1946 | 500.0 |
| | BPF | BASEMENT -PARTITIONED FINISH | 1 | 30 | 1946 | 500.0 |
| | RPO | OPEN PORCH W/ROOF | 1 | 30 | 1946 | 74.0 |
| | S1F | Single One Story Fireplace | 1 | 30 | 1946 | 1.0 |
| | CPC | COVERED CARPORT/PATIO | 1 | 30 | 1946 | 400.0 |
Sketch
Property Image
Land
| 1 | RES 1 | Converted: Residential | 0.1200 | 5227.00 | 0.00 | 0.00 | 1.00 | $32,670 | $0 |
Roll Value History
| 2026 | N/A | N/A | N/A | N/A | N/A |
| 2025 | $385,510 | $52,270 | $0 | $437,780 | $437,780 |
| 2024 | $308,410 | $52,270 | $0 | $360,680 | $360,680 |
| 2023 | $323,080 | $32,670 | $0 | $355,750 | $355,750 |
| 2022 | $307,690 | $32,670 | $0 | $340,360 | $340,360 |
| 2021 | $219,780 | $32,670 | $0 | $252,450 | $252,450 |
| 2020 | $183,150 | $32,670 | $0 | $215,820 | $215,820 |
| 2019 | $183,150 | $32,670 | $0 | $215,820 | $215,820 |
| 2018 | $166,500 | $32,670 | $0 | $199,170 | $199,170 |
| 2017 | $165,380 | $20,900 | $0 | $186,280 | $186,280 |
| 2016 | $157,500 | $20,900 | $0 | $178,400 | $178,400 |
| 2015 | $157,500 | $20,900 | $0 | $178,400 | $178,400 |
| 2014 | $150,000 | $20,900 | $0 | $170,900 | $170,900 |
| 2013 | $150,000 | $20,900 | $0 | $170,900 | $170,900 |
| 2012 | $139,300 | $20,900 | $0 | $0 | $0 |
| 2011 | $139,300 | $20,900 | $0 | $0 | $0 |
| 2010 | $131,700 | $20,900 | $0 | $0 | $0 |
| 2009 | $148,700 | $20,900 | $0 | $0 | $0 |
| 2008 | $114,800 | $20,900 | $0 | $0 | $0 |
| 2007 | $114,800 | $20,900 | $0 | $0 | $0 |
Deed and Sales History
| 1 | 10/15/2024 | SWD | STATUTORY WARRANTY DEED | BRAUHN DAVID MICHAEL | CAMPA JARED MATHEW | | | $455,000.00 | 148374 | 2024-05986 |
| 2 | 07/19/2021 | QCD | QUIT CLAIM DEED | BRAUHN DAVID M | BRAUHN DAVID MICHAEL | | | $0.00 | 143233 | 2022-00505 |
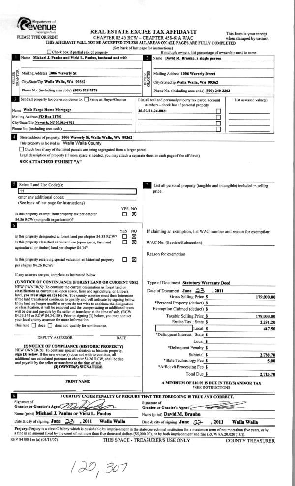
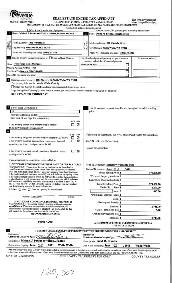
| 3 | 06/24/2011 | WARRANTY D | WARRANTY DEED | PAULUS, MICHAEL J & VICKI L | BRAUHN, DAVID M | | | $179,000.00 | 120307 | 2011-04928 |
| 4 | 08/28/2006 | WARRANTY D | WARRANTY DEED | WATTS, ALBERT L | PAULUS, MICHAEL J & VICKI L | | | $159,900.00 | 111067 | 2006-10369 |
| 5 | 01/01/1946 | WARRANTY D | WARRANTY DEED | | | | | $0.00 | 0 | 2220-289923 |
Payout Agreement
| No payout information available.. |