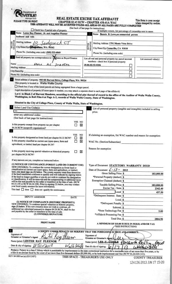
Property
Account |
| Property ID: | 16464 | Abbreviated Legal Description: | ROLLING HILLS ESTATES #1 LOT A BLK 2 (ALSO SAYS LOT 6 ) |
| Parcel Number: | 350602520206 | Agent Code: | |
| Type: | Real | | |
| Tax Area: | 311 - 250-4 | Land Use Code | 11 |
| Open Space: | N | DFL | N |
| Historic Property: | N | Remodel Property: | N |
| Multi-Family Redevelopment: | N | | |
| Township: | 6 | Section: | 2 |
| Range: | 35 |
Location |
| Address: | 61 QUAIL LN WA 99324 | Mapsco: | |
| Neighborhood: | VG SFR RURAL | Map ID: | |
| Neighborhood CD: | 215013 |
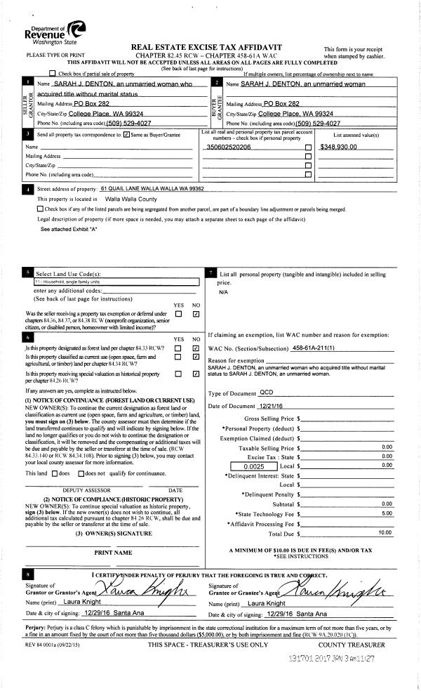
Owner |
| Name: | DENTON SARAH J | Owner ID: | 60207 |
| Mailing Address: | PO BOX 282 COLLEGE PLACE, WA 99324 | % Ownership: | 100.0000000000% |
| | | Exemptions: | |
Taxes and Assessment Details
Property Tax Information as of
02/21/2026
Click on "Statement Details" to expand or collapse a tax statement.
* Please enter a valid date ** Please enter a valid date *
Statement Details |
| | TOTAL: | $0.00 | $0.00 | $0.00 | $0.00 | $0.00 | $0.00 |
|
| | $0.00 | $0.00 | $0.00 | $0.00 | $0.00 | $0.00 |
Values
| (+) Improvement Homesite Value: | + | $0 | |
| (+) Improvement Non-Homesite Value: | + | $369,860 | |
| (+) Land Homesite Value: | + | $0 | |
| (+) Land Non-Homesite Value: | + | $157,910 | |
| (+) Curr Use (HS): | + | $0 | $0 |
| (+) Curr Use (NHS): | + | $0 | $0 |
| | | -------------------------- | |
| (=) Market Value: | = | $527,770 | |
| (–) Productivity Loss: | – | $0 | |
| | | -------------------------- | |
| (=) Subtotal: | = | $527,770 | |
| (+) Senior Appraised Value: | + | $0 | |
| (+) Non-Senior Appraised Value: | + | $527,770 | |
| | | -------------------------- | |
| (=) Total Appraised Value: | = | $527,770 | |
| (–) Senior Exemption Loss: | – | $0 | |
| (–) Exemption Loss: | – | $0 | |
| | | -------------------------- | |
| (=) Taxable Value: | = | $527,770 | |
Taxing Jurisdiction
| Owner: | DENTON SARAH J | | |
| % Ownership: | 100.0000000000% | | |
| Total Value: | $527,770 | | |
| Tax Area: | 311 - 250-4 |
| CERFD | CURRENT EXPENSE REFUND 010 | 0.0000000000 | $527,770 | $527,770 | $0.00 | | |
| CURREXP | CURRENT EXPENSE 010 | 1.0175366760 | $527,770 | $527,770 | $537.03 | | |
| HUMNSERV | HUMAN SERVICES 119 | 0.0250000000 | $527,770 | $527,770 | $13.19 | | |
| SLDREL | SOLDIERS RELIEF 121 | 0.0155990005 | $527,770 | $527,770 | $8.23 | | |
| EMERGSER | EMS 147 | 0.3792580840 | $527,770 | $527,770 | $200.16 | | |
| EMSRFD | EMS REFUND 147 | 0.0000000000 | $527,770 | $527,770 | $0.00 | | |
| FD4EXP | FD #4 EXPENSE 686 | 0.8836993059 | $527,770 | $527,770 | $466.39 | | |
| RLBRFD | RURAL LIBRARY REFUND 623 | 0.0000000000 | $527,770 | $527,770 | $0.00 | | |
| RURALLIB | RURAL LIBRARY 623 | 0.3710609029 | $527,770 | $527,770 | $195.83 | | |
| PORTRFD | PORT REFUND 640 | 0.0000000000 | $527,770 | $527,770 | $0.00 | | |
| PORTWWGEN | PORT OF WW 640 | 0.2460186015 | $527,770 | $527,770 | $129.84 | | |
| SD250BOND | SD #250 BOND 773 | 1.4560608159 | $527,770 | $527,770 | $768.47 | | |
| SD250GEN | SD #250 GENERAL 770 | 2.3880724087 | $527,770 | $527,770 | $1,260.35 | | |
| ST2 | STATE SCHOOL PART 2 600 | 0.8131451643 | $527,770 | $527,770 | $429.15 | | |
| STATESCHL | STATE SCHOOL 600 | 1.5158548041 | $527,770 | $527,770 | $800.02 | | |
| STREFUND | STATE REFUND LEVY 603 | 0.0000000000 | $527,770 | $527,770 | $0.00 | | |
| COROAD | COUNTY ROAD 115 | 1.6549953990 | $527,770 | $527,770 | $873.46 | | |
| CRPRD | COUNTY ROAD REFUND 115 | 0.0000000000 | $527,770 | $527,770 | $0.00 | | |
| | Total Tax Rate: | 10.7663011628 | | | | | |
| | | | | Taxes w/Current Exemptions: | $5,682.12 | | |
| | | | | Taxes w/o Exemptions: | $5,682.12 | | |
Improvement / Building
| Improvement #1: | RESIDENTIAL | State Code: | 11 | 2142.0 sqft | Value: | $369,860 |
| Exterior Wall: | VINYL | Foundation: | SLAB FOUNDATION | | Heating/Cooling: | REV-HEAT-PUMP-W/DUCT | Number of Bathrooms: | 3 | | Number of Bedrooms: | 3 | Plumbing: | 12 | | Roof Covering: | COMP SHINGLE |   |   |
|
| | Type | Description | Class CD | Sub Class CD | Year Built | Area |
| | MA | Main Area | 3 | 40 | 1976 | 2142.0 |
| | DTG | Detached Garage | 3 | 40 | 2008 | 240.0 |
| | POL2 | POLE BUILDING-CONCRETE | 3 | 40 | 1976 | 576.0 |
| | SI1 | SITE IMPROVEMENT | 3 | 40 | 1976 | 2.0 |
| | S1F | Single One Story Fireplace | 3 | 40 | 1976 | 1.0 |
| | WOD | Wood Deck | 3 | 40 | 1976 | 103.0 |
| | ATG | Attached Garage | 3 | 40 | 1976 | 572.0 |
Sketch
Property Image
Land
| 1 | RES 1 | Converted: Residential | 1.9200 | 0.00 | 0.00 | 0.00 | 1.00 | $157,910 | $0 |
Roll Value History
| 2026 | N/A | N/A | N/A | N/A | N/A |
| 2025 | $480,820 | $157,910 | $0 | $638,730 | $638,730 |
| 2024 | $480,820 | $157,910 | $0 | $638,730 | $638,730 |
| 2023 | $369,860 | $157,910 | $0 | $527,770 | $527,770 |
| 2022 | $369,860 | $157,910 | $0 | $527,770 | $527,770 |
| 2021 | $284,510 | $157,910 | $0 | $442,420 | $442,420 |
| 2020 | $306,280 | $93,700 | $0 | $399,980 | $399,980 |
| 2019 | $306,280 | $93,700 | $0 | $399,980 | $399,980 |
| 2018 | $306,280 | $93,700 | $0 | $399,980 | $399,980 |
| 2017 | $306,280 | $93,700 | $0 | $399,980 | $399,980 |
| 2016 | $255,230 | $93,700 | $0 | $348,930 | $348,930 |
| 2015 | $243,080 | $93,700 | $0 | $336,780 | $336,780 |
| 2014 | $231,500 | $93,700 | $0 | $325,200 | $325,200 |
| 2013 | $231,500 | $93,700 | $0 | $325,200 | $325,200 |
| 2012 | $231,500 | $93,700 | $0 | $0 | $0 |
| 2011 | $201,500 | $123,700 | $0 | $0 | $0 |
| 2010 | $201,500 | $123,700 | $0 | $0 | $0 |
| 2009 | $315,800 | $48,700 | $0 | $0 | $0 |
| 2008 | $202,700 | $48,700 | $0 | $0 | $0 |
| 2007 | $202,700 | $48,700 | $0 | $0 | $0 |
Deed and Sales History
| 1 | 12/29/2016 | QCD | QUIT CLAIM DEED | DENTON SARAH JANE | DENTON SARAH J | | | $0.00 | 131701 | 2017-00016 |
| 2 | 09/11/1975 | WARRANTY D | WARRANTY DEED | | | | | $0.00 | 0 | 3105-47760 |
Payout Agreement
| No payout information available.. |