Property
Account |
| Property ID: | 16411 | Abbreviated Legal Description: | TABLEROCK SUBDIVISION II LOT 27 |
| Parcel Number: | 360604590027 | Agent Code: | |
| Type: | Real | | |
| Tax Area: | 5 - OL-140 | Land Use Code | 11 |
| Open Space: | N | DFL | N |
| Historic Property: | N | Remodel Property: | N |
| Multi-Family Redevelopment: | N | | |
| Township: | 6 | Section: | 4 |
| Range: | 36 |
Location |
| Address: | 183 COYOTE RIDGE DR WA 99362 | Mapsco: | |
| Neighborhood: | VG Res Rural/City Inf | Map ID: | |
| Neighborhood CD: | 615012 |
Owner |
| Name: | COUNSELL RICHARD C & ANN BERNER | Owner ID: | 57490 |
| Mailing Address: | 183 COYOTE RIDGE DR WALLA WALLA, WA 99362 | % Ownership: | 100.0000000000% |
| | | Exemptions: | |
Taxes and Assessment Details
Property Tax Information as of
02/21/2026
Click on "Statement Details" to expand or collapse a tax statement.
* Please enter a valid date ** Please enter a valid date *
Statement Details |
| | TOTAL: | $0.00 | $0.00 | $0.00 | $0.00 | $0.00 | $0.00 |
|
| | $0.00 | $0.00 | $0.00 | $0.00 | $0.00 | $0.00 |
Values
| (+) Improvement Homesite Value: | + | $0 | |
| (+) Improvement Non-Homesite Value: | + | $522,590 | |
| (+) Land Homesite Value: | + | $0 | |
| (+) Land Non-Homesite Value: | + | $135,000 | |
| (+) Curr Use (HS): | + | $0 | $0 |
| (+) Curr Use (NHS): | + | $0 | $0 |
| | | -------------------------- | |
| (=) Market Value: | = | $657,590 | |
| (–) Productivity Loss: | – | $0 | |
| | | -------------------------- | |
| (=) Subtotal: | = | $657,590 | |
| (+) Senior Appraised Value: | + | $0 | |
| (+) Non-Senior Appraised Value: | + | $657,590 | |
| | | -------------------------- | |
| (=) Total Appraised Value: | = | $657,590 | |
| (–) Senior Exemption Loss: | – | $0 | |
| (–) Exemption Loss: | – | $0 | |
| | | -------------------------- | |
| (=) Taxable Value: | = | $657,590 | |
Taxing Jurisdiction
| Owner: | COUNSELL RICHARD C & ANN BERNER | | |
| % Ownership: | 100.0000000000% | | |
| Total Value: | $657,590 | | |
| Tax Area: | 5 - OL-140 |
| CERFD | CURRENT EXPENSE REFUND 010 | 0.0000000000 | $657,590 | $657,590 | $0.00 | | |
| CURREXP | CURRENT EXPENSE 010 | 1.0175366760 | $657,590 | $657,590 | $669.12 | | |
| HUMNSERV | HUMAN SERVICES 119 | 0.0250000000 | $657,590 | $657,590 | $16.44 | | |
| SLDREL | SOLDIERS RELIEF 121 | 0.0155990005 | $657,590 | $657,590 | $10.26 | | |
| EMERGSER | EMS 147 | 0.3792580840 | $657,590 | $657,590 | $249.40 | | |
| EMSRFD | EMS REFUND 147 | 0.0000000000 | $657,590 | $657,590 | $0.00 | | |
| PORTRFD | PORT REFUND 640 | 0.0000000000 | $657,590 | $657,590 | $0.00 | | |
| PORTWWGEN | PORT OF WW 640 | 0.2460186015 | $657,590 | $657,590 | $161.78 | | |
| SD140BOND | SD #140 BOND 764 | 0.8342371393 | $657,590 | $657,590 | $548.59 | | |
| SD140GEN | SD #140 GENERAL 760 | 2.0646500647 | $657,590 | $657,590 | $1,357.69 | | |
| ST2 | STATE SCHOOL PART 2 600 | 0.8131451643 | $657,590 | $657,590 | $534.72 | | |
| STATESCHL | STATE SCHOOL 600 | 1.5158548041 | $657,590 | $657,590 | $996.81 | | |
| STREFUND | STATE REFUND LEVY 603 | 0.0000000000 | $657,590 | $657,590 | $0.00 | | |
| CWWBOND | C OF WW BOND 643 | 0.2760494372 | $657,590 | $657,590 | $181.53 | | |
| CWWGEN | CITY OF WW 631 | 1.6100204973 | $657,590 | $657,590 | $1,058.73 | | |
| CWWRFD | CITY OF WALLA WALLA REFUND 631 | 0.0000000000 | $657,590 | $657,590 | $0.00 | | |
| | Total Tax Rate: | 8.7973694689 | | | | | |
| | | | | Taxes w/Current Exemptions: | $5,785.07 | | |
| | | | | Taxes w/o Exemptions: | $5,785.07 | | |
Improvement / Building
| Improvement #1: | RESIDENTIAL | State Code: | 11 | 2496.0 sqft | Value: | $522,590 |
| Exterior Wall: | HARDBOARD | Heating/Cooling: | HEAT PUMP | | Number of Bathrooms: | 3 | Number of Bedrooms: | 4 | | Plumbing: | 15 | Roof Covering: | COMP SHINGLE |
|
| | Type | Description | Class CD | Sub Class CD | Year Built | Area |
| | MA | Main Area | 1 | 45 | 2015 | 2496.0 |
| | ATG | Attached Garage | 1 | 45 | 2015 | 858.0 |
| | RPC | OPEN PORCH W/ROOF , CEILED | 1 | 45 | 2015 | 55.0 |
| | RPC | OPEN PORCH W/ROOF , CEILED | 1 | 45 | 2015 | 226.0 |
| | BON2 | BONUS RM ATT/REC OR APT FINISH | 1 | 45 | 2015 | 490.0 |
| | SI1 | SITE IMPROVEMENT | 1 | 45 | 2015 | 3.0 |
Sketch
Property Image
Land
| 1 | RES 1 | Converted: Residential | 0.3200 | 13939.00 | 0.00 | 0.00 | 1.00 | $135,000 | $0 |
Roll Value History
| 2026 | N/A | N/A | N/A | N/A | N/A |
| 2025 | $550,160 | $180,000 | $0 | $730,160 | $730,160 |
| 2024 | $522,590 | $135,000 | $0 | $657,590 | $657,590 |
| 2023 | $522,590 | $135,000 | $0 | $657,590 | $657,590 |
| 2022 | $454,430 | $115,000 | $0 | $569,430 | $569,430 |
| 2021 | $413,120 | $115,000 | $0 | $528,120 | $528,120 |
| 2020 | $375,560 | $115,000 | $0 | $490,560 | $490,560 |
| 2019 | $375,560 | $115,000 | $0 | $490,560 | $490,560 |
| 2018 | $371,390 | $94,000 | $0 | $465,390 | $465,390 |
| 2017 | $353,700 | $94,000 | $0 | $447,700 | $447,700 |
| 2016 | $353,700 | $94,000 | $0 | $447,700 | $447,700 |
| 2015 | $0 | $94,000 | $0 | $94,000 | $94,000 |
| 2014 | $0 | $94,000 | $0 | $94,000 | $94,000 |
| 2013 | $0 | $94,000 | $0 | $94,000 | $94,000 |
| 2012 | $0 | $94,000 | $0 | $0 | $0 |
| 2011 | $0 | $94,000 | $0 | $0 | $0 |
| 2010 | $0 | $94,000 | $0 | $0 | $0 |
| 2009 | $0 | $94,000 | $0 | $0 | $0 |
| 2008 | $0 | $94,000 | $0 | $0 | $0 |
| 2007 | $0 | $600 | $0 | $0 | $0 |
Deed and Sales History
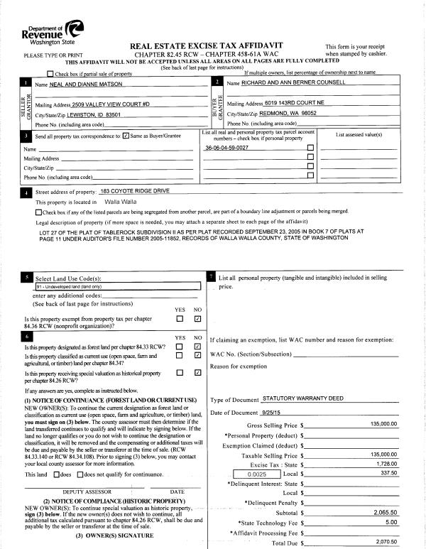
| 1 | 09/25/2015 | SWD | STATUTORY WARRANTY DEED | MATSON NEAL M & DIANNE L | COUNSELL RICHARD C & ANN BERNER | | | $135,000.00 | 128889 | 2015-08440 |
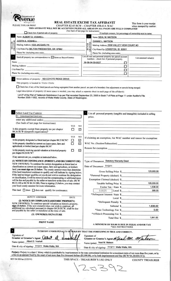
| 2 | 07/13/2011 | WARRANTY D | WARRANTY DEED | VOSHELL, ALBERT D & JUDITH A | MATSON, NEAL M & DIANNE L | | | $120,000.00 | 120392 | 2011-05353 |
| 3 | 09/13/2006 | WARRANTY D | WARRANTY DEED | MC LAIN, PAUL L & JOAN G | VOSHELL, ALBERT D & JUDITH A | | | $107,000.00 | 111191 | 2006-11023 |
| 4 | 03/02/2006 | WARRANTY D | WARRANTY DEED | GATEWOOD, W PAUL & CAROL | MC LAIN, PAUL L & JOAN G | | | $98,500.00 | 109755 | 2006-02342 |
Payout Agreement
| No payout information available.. |