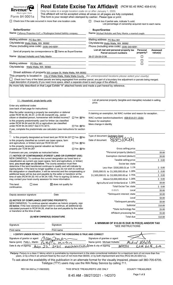
Property
Account |
| Property ID: | 16408 | Abbreviated Legal Description: | ELLIOTTS LOT 6 BLK 1 |
| Parcel Number: | 360729590106 | Agent Code: | |
| Type: | Real | | |
| Tax Area: | 1 - OL-140-F | Land Use Code | 11 |
| Open Space: | N | DFL | N |
| Historic Property: | N | Remodel Property: | N |
| Multi-Family Redevelopment: | N | | |
| Township: | 7 | Section: | 29 |
| Range: | 36 |
Location |
| Address: | 320 JUNIPER ST WA 99362 | Mapsco: | |
| Neighborhood: | G-SFR | Map ID: | |
| Neighborhood CD: | 514011 |
Owner |
| Name: | HOFEDITZ MICHAEL J & PATTY L MARTIN | Owner ID: | 70181 |
| Mailing Address: | PO BOX 991 WALLA WALLA, WA 99362 | % Ownership: | 100.0000000000% |
| | | Exemptions: | |
Taxes and Assessment Details
Property Tax Information as of
02/21/2026
Click on "Statement Details" to expand or collapse a tax statement.
* Please enter a valid date ** Please enter a valid date *
Statement Details |
| | TOTAL: | $0.00 | $0.00 | $0.00 | $0.00 | $0.00 | $0.00 |
|
| | $0.00 | $0.00 | $0.00 | $0.00 | $0.00 | $0.00 |
Values
| (+) Improvement Homesite Value: | + | $0 | |
| (+) Improvement Non-Homesite Value: | + | $515,720 | |
| (+) Land Homesite Value: | + | $0 | |
| (+) Land Non-Homesite Value: | + | $45,930 | |
| (+) Curr Use (HS): | + | $0 | $0 |
| (+) Curr Use (NHS): | + | $0 | $0 |
| | | -------------------------- | |
| (=) Market Value: | = | $561,650 | |
| (–) Productivity Loss: | – | $0 | |
| | | -------------------------- | |
| (=) Subtotal: | = | $561,650 | |
| (+) Senior Appraised Value: | + | $0 | |
| (+) Non-Senior Appraised Value: | + | $561,650 | |
| | | -------------------------- | |
| (=) Total Appraised Value: | = | $561,650 | |
| (–) Senior Exemption Loss: | – | $0 | |
| (–) Exemption Loss: | – | $0 | |
| | | -------------------------- | |
| (=) Taxable Value: | = | $561,650 | |
Taxing Jurisdiction
| Owner: | HOFEDITZ MICHAEL J & PATTY L MARTIN | | |
| % Ownership: | 100.0000000000% | | |
| Total Value: | $561,650 | | |
| Tax Area: | 1 - OL-140-F |
| CERFD | CURRENT EXPENSE REFUND 010 | 0.0000000000 | $561,650 | $561,650 | $0.00 | | |
| CURREXP | CURRENT EXPENSE 010 | 1.0175366760 | $561,650 | $561,650 | $571.50 | | |
| HUMNSERV | HUMAN SERVICES 119 | 0.0250000000 | $561,650 | $561,650 | $14.04 | | |
| SLDREL | SOLDIERS RELIEF 121 | 0.0155990005 | $561,650 | $561,650 | $8.76 | | |
| EMERGSER | EMS 147 | 0.3792580840 | $561,650 | $561,650 | $213.01 | | |
| EMSRFD | EMS REFUND 147 | 0.0000000000 | $561,650 | $561,650 | $0.00 | | |
| PORTRFD | PORT REFUND 640 | 0.0000000000 | $561,650 | $561,650 | $0.00 | | |
| PORTWWGEN | PORT OF WW 640 | 0.2460186015 | $561,650 | $561,650 | $138.18 | | |
| SD140BOND | SD #140 BOND 764 | 0.8342371393 | $561,650 | $561,650 | $468.55 | | |
| SD140GEN | SD #140 GENERAL 760 | 2.0646500647 | $561,650 | $561,650 | $1,159.61 | | |
| ST2 | STATE SCHOOL PART 2 600 | 0.8131451643 | $561,650 | $561,650 | $456.70 | | |
| STATESCHL | STATE SCHOOL 600 | 1.5158548041 | $561,650 | $561,650 | $851.38 | | |
| STREFUND | STATE REFUND LEVY 603 | 0.0000000000 | $561,650 | $561,650 | $0.00 | | |
| CWWBOND | C OF WW BOND 643 | 0.2760494372 | $561,650 | $561,650 | $155.04 | | |
| CWWGEN | CITY OF WW 631 | 1.6100204973 | $561,650 | $561,650 | $904.27 | | |
| CWWRFD | CITY OF WALLA WALLA REFUND 631 | 0.0000000000 | $561,650 | $561,650 | $0.00 | | |
| | Total Tax Rate: | 8.7973694689 | | | | | |
| | | | | Taxes w/Current Exemptions: | $4,941.04 | | |
| | | | | Taxes w/o Exemptions: | $4,941.04 | | |
Improvement / Building
| Improvement #1: | RESIDENTIAL | State Code: | 11 | 1836.0 sqft | Value: | $515,720 |
| Exterior Wall: | SIDING | Heating/Cooling: | FORCED AIR | | Number of Bathrooms: | 3 | Number of Bedrooms: | 4 | | Plumbing: | 12 | Roof Covering: | COMP SHINGLE |
|
| | Type | Description | Class CD | Sub Class CD | Year Built | Area |
| | MA | Main Area | 4 | 40 | 1909 | 1836.0 |
| | UPFL | Upper Floor (included in main area) | 4 | 40 | 1909 | 700.0 |
| | SI1 | SITE IMPROVEMENT | 4 | 40 | 1909 | 3.0 |
| | BASE | BASEMENT | 4 | 40 | 1909 | 1113.0 |
| | BPF | BASEMENT -PARTITIONED FINISH | 4 | 40 | 1909 | 1113.0 |
| | S1F | Single One Story Fireplace | 4 | 40 | 1909 | 1.0 |
| | SWP | Solid Wall Porch | 4 | 40 | 1909 | 42.0 |
| | WOD | Wood Deck | 4 | 40 | 1909 | 144.0 |
| | RCD | WOOD DECK W/ROOF, CEILED | 4 | 40 | 1909 | 196.0 |
| | DTG | Detached Garage | 4 | 40 | 1909 | 216.0 |
Sketch
Property Image
Land
| 1 | RES 1 | Converted: Residential | 0.1454 | 6335.00 | 0.00 | 0.00 | 1.00 | $45,930 | $0 |
Roll Value History
| 2026 | N/A | N/A | N/A | N/A | N/A |
| 2025 | $471,250 | $69,690 | $0 | $540,940 | $540,940 |
| 2024 | $471,250 | $69,690 | $0 | $540,940 | $540,940 |
| 2023 | $515,720 | $45,930 | $0 | $561,650 | $561,650 |
| 2022 | $468,830 | $45,930 | $0 | $514,760 | $514,760 |
| 2021 | $407,680 | $45,930 | $0 | $453,610 | $453,610 |
| 2020 | $313,600 | $45,930 | $0 | $359,530 | $359,530 |
| 2019 | $313,600 | $45,930 | $0 | $359,530 | $359,530 |
| 2018 | $313,600 | $45,930 | $0 | $359,530 | $359,530 |
| 2017 | $298,400 | $28,500 | $0 | $326,900 | $326,900 |
| 2016 | $298,400 | $28,500 | $0 | $326,900 | $326,900 |
| 2015 | $298,400 | $28,500 | $0 | $326,900 | $326,900 |
| 2014 | $298,400 | $28,500 | $0 | $326,900 | $326,900 |
| 2013 | $298,400 | $28,500 | $0 | $326,900 | $326,900 |
| 2012 | $317,300 | $28,500 | $0 | $0 | $0 |
| 2011 | $317,300 | $28,500 | $0 | $0 | $0 |
| 2010 | $300,800 | $28,500 | $0 | $0 | $0 |
| 2009 | $337,400 | $28,500 | $0 | $0 | $0 |
| 2008 | $327,900 | $38,000 | $0 | $0 | $0 |
| 2007 | $120,600 | $12,700 | $0 | $0 | $0 |
Deed and Sales History
| 1 | 08/27/2021 | QCD | QUIT CLAIM DEED | CALLAWAY PROPERTIES LLC | HOFEDITZ MICHAEL J & PATTY L MARTIN | | | $0.00 | 142370 | 2021-10553 |
| 2 | 02/26/2021 | SWD | STATUTORY WARRANTY DEED | HARRIS VINCENT M | CALLAWAY PROPERTIES LLC | | | $535,000.00 | 141000 | 2021-02258 |
| 3 | 09/08/2006 | WARRANTY D | WARRANTY DEED | HANSON, DONALD P & SHARI | HARRIS, VINCENT M | | | $369,000.00 | 111165 | 2006-10857 |
| 4 | 10/04/1977 | WARRANTY D | WARRANTY DEED | | | | | $42,000.00 | 0 | 6805-69328 |
Payout Agreement
| No payout information available.. |