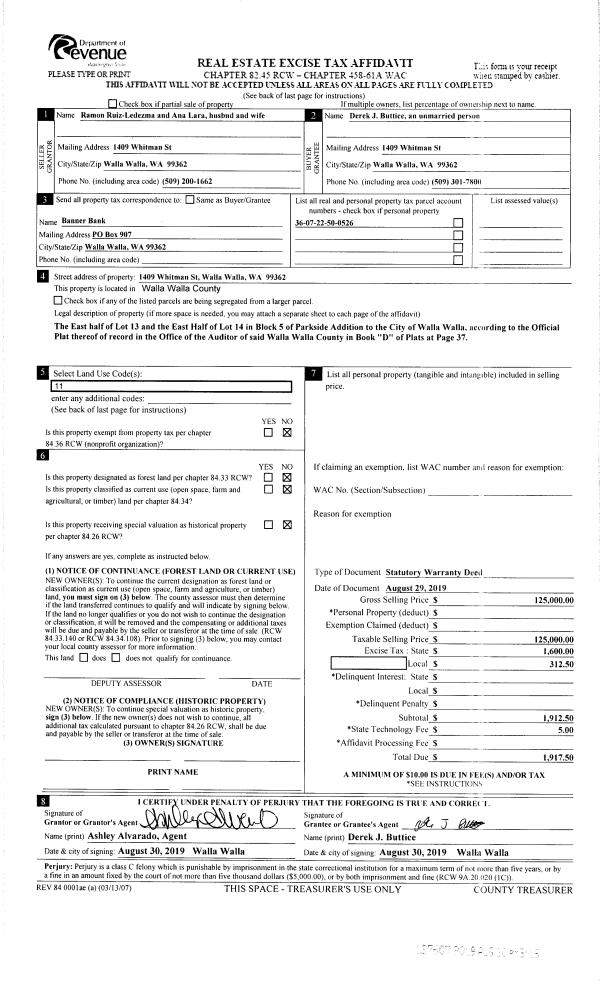
Property
Account |
| Property ID: | 16401 | Abbreviated Legal Description: | PARKSIDE E1/2 OF LOTS 13 & 14 BLK 5 |
| Parcel Number: | 360722500526 | Agent Code: | |
| Type: | Real | | |
| Tax Area: | 1 - OL-140-F | Land Use Code | 11 |
| Open Space: | N | DFL | N |
| Historic Property: | N | Remodel Property: | N |
| Multi-Family Redevelopment: | N | | |
| Township: | 7 | Section: | 22 |
| Range: | 36 |
Location |
| Address: | 1409 WHITMAN ST WA 99362 | Mapsco: | |
| Neighborhood: | A SFR | Map ID: | |
| Neighborhood CD: | 413011 |
Owner |
| Name: | BUTTICE DEREK J | Owner ID: | 65842 |
| Mailing Address: | 1409 WHITMAN ST WALLA WALLA, WA 99362 | % Ownership: | 100.0000000000% |
| | | Exemptions: | |
Taxes and Assessment Details
Values
| (+) Improvement Homesite Value: | + | $0 | |
| (+) Improvement Non-Homesite Value: | + | $259,200 | |
| (+) Land Homesite Value: | + | $0 | |
| (+) Land Non-Homesite Value: | + | $48,000 | |
| (+) Curr Use (HS): | + | $0 | $0 |
| (+) Curr Use (NHS): | + | $0 | $0 |
| | | -------------------------- | |
| (=) Market Value: | = | $307,200 | |
| (–) Productivity Loss: | – | $0 | |
| | | -------------------------- | |
| (=) Subtotal: | = | $307,200 | |
| (+) Senior Appraised Value: | + | $0 | |
| (+) Non-Senior Appraised Value: | + | $307,200 | |
| | | -------------------------- | |
| (=) Total Appraised Value: | = | $307,200 | |
| (–) Senior Exemption Loss: | – | $0 | |
| (–) Exemption Loss: | – | $0 | |
| | | -------------------------- | |
| (=) Taxable Value: | = | $307,200 | |
Taxing Jurisdiction
| Owner: | BUTTICE DEREK J | | |
| % Ownership: | 100.0000000000% | | |
| Total Value: | $307,200 | | |
| Tax Area: | 1 - OL-140-F |
| CERFD | CURRENT EXPENSE REFUND 010 | 0.0000000000 | $307,200 | $307,200 | $0.00 | | |
| CURREXP | CURRENT EXPENSE 010 | 1.0175366760 | $307,200 | $307,200 | $312.59 | | |
| HUMNSERV | HUMAN SERVICES 119 | 0.0250000000 | $307,200 | $307,200 | $7.68 | | |
| SLDREL | SOLDIERS RELIEF 121 | 0.0155990005 | $307,200 | $307,200 | $4.79 | | |
| EMERGSER | EMS 147 | 0.3792580840 | $307,200 | $307,200 | $116.51 | | |
| EMSRFD | EMS REFUND 147 | 0.0000000000 | $307,200 | $307,200 | $0.00 | | |
| PORTRFD | PORT REFUND 640 | 0.0000000000 | $307,200 | $307,200 | $0.00 | | |
| PORTWWGEN | PORT OF WW 640 | 0.2460186015 | $307,200 | $307,200 | $75.58 | | |
| SD140BOND | SD #140 BOND 764 | 0.8342371393 | $307,200 | $307,200 | $256.28 | | |
| SD140GEN | SD #140 GENERAL 760 | 2.0646500647 | $307,200 | $307,200 | $634.26 | | |
| ST2 | STATE SCHOOL PART 2 600 | 0.8131451643 | $307,200 | $307,200 | $249.80 | | |
| STATESCHL | STATE SCHOOL 600 | 1.5158548041 | $307,200 | $307,200 | $465.67 | | |
| STREFUND | STATE REFUND LEVY 603 | 0.0000000000 | $307,200 | $307,200 | $0.00 | | |
| CWWBOND | C OF WW BOND 643 | 0.2760494372 | $307,200 | $307,200 | $84.80 | | |
| CWWGEN | CITY OF WW 631 | 1.6100204973 | $307,200 | $307,200 | $494.60 | | |
| CWWRFD | CITY OF WALLA WALLA REFUND 631 | 0.0000000000 | $307,200 | $307,200 | $0.00 | | |
| | Total Tax Rate: | 8.7973694689 | | | | | |
| | | | | Taxes w/Current Exemptions: | $2,702.56 | | |
| | | | | Taxes w/o Exemptions: | $2,702.56 | | |
Improvement / Building
| Improvement #1: | RESIDENTIAL | State Code: | 11 | 1490.0 sqft | Value: | $259,200 |
| Exterior Wall: | SIDING | Foundation: | SLAB FOUNDATION | | Heating/Cooling: | BASEBOARD ELECTRIC | Number of Bathrooms: | 1 | | Number of Bedrooms: | 3 | Plumbing: | 6 | | Roof Covering: | COMP ROLL |   |   |
|
| | Type | Description | Class CD | Sub Class CD | Year Built | Area |
| | MA | Main Area | 1 | 30 | 1959 | 1490.0 |
| | BRW | BREEZEWAY | 1 | 30 | 0 | 268.0 |
| | SI1 | SITE IMPROVEMENT | 1 | 30 | 0 | 2.5 |
| | SWP | Solid Wall Porch | 1 | 30 | 1959 | 15.0 |
| | S1F | Single One Story Fireplace | 1 | 30 | 1959 | 1.0 |
Sketch
Property Image
Land
| 1 | RES 1 | Converted: Residential | 0.1377 | 6000.00 | 0.00 | 0.00 | 1.00 | $48,000 | $0 |
Roll Value History
| 2026 | N/A | N/A | N/A | N/A | N/A |
| 2025 | $272,160 | $48,000 | $0 | $320,160 | $320,160 |
| 2024 | $272,160 | $48,000 | $0 | $320,160 | $320,160 |
| 2023 | $259,200 | $48,000 | $0 | $307,200 | $307,200 |
| 2022 | $234,090 | $31,500 | $0 | $265,590 | $265,590 |
| 2021 | $167,210 | $31,500 | $0 | $198,710 | $198,710 |
| 2020 | $159,250 | $31,500 | $0 | $190,750 | $190,750 |
| 2019 | $159,250 | $31,500 | $0 | $190,750 | $190,750 |
| 2018 | $144,770 | $31,500 | $0 | $176,270 | $176,270 |
| 2017 | $120,640 | $31,500 | $0 | $152,140 | $152,140 |
| 2016 | $111,450 | $24,000 | $0 | $135,450 | $135,450 |
| 2015 | $111,450 | $24,000 | $0 | $135,450 | $135,450 |
| 2014 | $108,200 | $24,000 | $0 | $132,200 | $132,200 |
| 2013 | $108,200 | $24,000 | $0 | $132,200 | $132,200 |
| 2012 | $101,900 | $24,000 | $0 | $0 | $0 |
| 2011 | $81,300 | $24,000 | $0 | $0 | $0 |
| 2010 | $81,300 | $24,000 | $0 | $0 | $0 |
| 2009 | $93,000 | $24,000 | $0 | $0 | $0 |
| 2008 | $93,000 | $24,000 | $0 | $0 | $0 |
| 2007 | $93,000 | $24,000 | $0 | $0 | $0 |
Deed and Sales History
| 1 | 08/30/2019 | SWD | STATUTORY WARRANTY DEED | LEDEZMA RAMON RUIZ | BUTTICE DEREK J | | | $125,000.00 | 137607 | 2019-06758 |
| 2 | 01/24/2008 | QCD | QUIT CLAIM DEED | LEDEZMA, RAMON RUIZ | LEDEZMA, RAMON RUIZ | | | | 114431 | 2008-00685 |
| 3 | 08/31/2006 | WARRANTY D | WARRANTY DEED | HARSIN, PETER R | LEDEZMA, RAMON RUIZ | | | $145,000.00 | 111099 | 2006-10528 |
| 4 | 07/22/2004 | WARRANTY D | WARRANTY DEED | MARSHALL, JOHN | HARSIN, PETER R | | | $117,000.00 | 105305 | 2004-08283 |
| 5 | 10/01/1965 | WARRANTY D | WARRANTY DEED | | | | | $14,700.00 | 0 | 8478-05460 |
Payout Agreement
| No payout information available.. |