Property
Account |
| Property ID: | 16397 | Abbreviated Legal Description: | STONES LOT 10 BLK 7 |
| Parcel Number: | 360729830710 | Agent Code: | |
| Type: | Real | | |
| Tax Area: | 1 - OL-140-F | Land Use Code | 11 |
| Open Space: | N | DFL | N |
| Historic Property: | N | Remodel Property: | N |
| Multi-Family Redevelopment: | N | | |
| Township: | 7 | Section: | 29 |
| Range: | 36 |
Location |
| Address: | 1327 MODOC ST WA 99362 | Mapsco: | |
| Neighborhood: | A Res | Map ID: | |
| Neighborhood CD: | 613011 |
Owner |
| Name: | GILMORE GREGG | Owner ID: | 68508 |
| Mailing Address: | AKIKO SEKI-GILMORE 1327 MODOC ST WALLA WALLA, WA 99362 | % Ownership: | 100.0000000000% |
| | | Exemptions: | |
Taxes and Assessment Details
Property Tax Information as of
02/21/2026
Click on "Statement Details" to expand or collapse a tax statement.
* Please enter a valid date ** Please enter a valid date *
Statement Details |
| | TOTAL: | $0.00 | $0.00 | $0.00 | $0.00 | $0.00 | $0.00 |
|
| | $0.00 | $0.00 | $0.00 | $0.00 | $0.00 | $0.00 |
Values
| (+) Improvement Homesite Value: | + | $0 | |
| (+) Improvement Non-Homesite Value: | + | $356,820 | |
| (+) Land Homesite Value: | + | $0 | |
| (+) Land Non-Homesite Value: | + | $64,800 | |
| (+) Curr Use (HS): | + | $0 | $0 |
| (+) Curr Use (NHS): | + | $0 | $0 |
| | | -------------------------- | |
| (=) Market Value: | = | $421,620 | |
| (–) Productivity Loss: | – | $0 | |
| | | -------------------------- | |
| (=) Subtotal: | = | $421,620 | |
| (+) Senior Appraised Value: | + | $0 | |
| (+) Non-Senior Appraised Value: | + | $421,620 | |
| | | -------------------------- | |
| (=) Total Appraised Value: | = | $421,620 | |
| (–) Senior Exemption Loss: | – | $0 | |
| (–) Exemption Loss: | – | $0 | |
| | | -------------------------- | |
| (=) Taxable Value: | = | $421,620 | |
Taxing Jurisdiction
| Owner: | GILMORE GREGG | | |
| % Ownership: | 100.0000000000% | | |
| Total Value: | $421,620 | | |
| Tax Area: | 1 - OL-140-F |
| CERFD | CURRENT EXPENSE REFUND 010 | 0.0000000000 | $421,620 | $421,620 | $0.00 | | |
| CURREXP | CURRENT EXPENSE 010 | 1.0175366760 | $421,620 | $421,620 | $429.01 | | |
| HUMNSERV | HUMAN SERVICES 119 | 0.0250000000 | $421,620 | $421,620 | $10.54 | | |
| SLDREL | SOLDIERS RELIEF 121 | 0.0155990005 | $421,620 | $421,620 | $6.58 | | |
| EMERGSER | EMS 147 | 0.3792580840 | $421,620 | $421,620 | $159.90 | | |
| EMSRFD | EMS REFUND 147 | 0.0000000000 | $421,620 | $421,620 | $0.00 | | |
| PORTRFD | PORT REFUND 640 | 0.0000000000 | $421,620 | $421,620 | $0.00 | | |
| PORTWWGEN | PORT OF WW 640 | 0.2460186015 | $421,620 | $421,620 | $103.73 | | |
| SD140BOND | SD #140 BOND 764 | 0.8342371393 | $421,620 | $421,620 | $351.73 | | |
| SD140GEN | SD #140 GENERAL 760 | 2.0646500647 | $421,620 | $421,620 | $870.50 | | |
| ST2 | STATE SCHOOL PART 2 600 | 0.8131451643 | $421,620 | $421,620 | $342.84 | | |
| STATESCHL | STATE SCHOOL 600 | 1.5158548041 | $421,620 | $421,620 | $639.11 | | |
| STREFUND | STATE REFUND LEVY 603 | 0.0000000000 | $421,620 | $421,620 | $0.00 | | |
| CWWBOND | C OF WW BOND 643 | 0.2760494372 | $421,620 | $421,620 | $116.39 | | |
| CWWGEN | CITY OF WW 631 | 1.6100204973 | $421,620 | $421,620 | $678.82 | | |
| CWWRFD | CITY OF WALLA WALLA REFUND 631 | 0.0000000000 | $421,620 | $421,620 | $0.00 | | |
| | Total Tax Rate: | 8.7973694689 | | | | | |
| | | | | Taxes w/Current Exemptions: | $3,709.15 | | |
| | | | | Taxes w/o Exemptions: | $3,709.15 | | |
Improvement / Building
| Improvement #1: | RESIDENTIAL | State Code: | 11 | 1498.0 sqft | Value: | $356,820 |
| Exterior Wall: | METAL/STEEL | Heating/Cooling: | WARM & COOLED AIR | | Number of Bathrooms: | 3 | Number of Bedrooms: | 3 | | Plumbing: | 13 | Roof Covering: | COMP SHINGLE |
|
| | Type | Description | Class CD | Sub Class CD | Year Built | Area |
| | MA | Main Area | 1 | 30 | 1949 | 1498.0 |
| | SI1 | SITE IMPROVEMENT | 1 | 30 | 1949 | 2.0 |
| | BASE | BASEMENT | 1 | 30 | 1949 | 1008.0 |
| | BPF | BASEMENT -PARTITIONED FINISH | 1 | 30 | 1949 | 1008.0 |
| | DTG | Detached Garage | 1 | 30 | 1949 | 484.0 |
| | RPS | PORCH W/STEPS,ROOF | 1 | 30 | 1949 | 25.0 |
| | CPC | COVERED CARPORT/PATIO | 1 | 30 | 1949 | 234.0 |
Sketch
Property Image
Land
| 1 | RES 1 | Converted: Residential | 0.1653 | 7200.00 | 0.00 | 0.00 | 1.00 | $64,800 | $0 |
Roll Value History
| 2026 | N/A | N/A | N/A | N/A | N/A |
| 2025 | $362,270 | $79,200 | $0 | $441,470 | $441,470 |
| 2024 | $356,820 | $64,800 | $0 | $421,620 | $421,620 |
| 2023 | $356,820 | $64,800 | $0 | $421,620 | $421,620 |
| 2022 | $297,350 | $52,200 | $0 | $349,550 | $349,550 |
| 2021 | $270,320 | $52,200 | $0 | $322,520 | $322,520 |
| 2020 | $181,900 | $52,200 | $0 | $234,100 | $234,100 |
| 2019 | $181,900 | $52,200 | $0 | $234,100 | $234,100 |
| 2018 | $149,800 | $43,200 | $0 | $193,000 | $193,000 |
| 2017 | $149,800 | $43,200 | $0 | $193,000 | $193,000 |
| 2016 | $149,800 | $43,200 | $0 | $193,000 | $193,000 |
| 2015 | $149,800 | $43,200 | $0 | $193,000 | $193,000 |
| 2014 | $149,800 | $43,200 | $0 | $193,000 | $193,000 |
| 2013 | $149,800 | $43,200 | $0 | $193,000 | $193,000 |
| 2012 | $139,000 | $43,200 | $0 | $0 | $0 |
| 2011 | $139,000 | $43,200 | $0 | $0 | $0 |
| 2010 | $130,300 | $43,200 | $0 | $0 | $0 |
| 2009 | $149,600 | $43,200 | $0 | $0 | $0 |
| 2008 | $149,600 | $43,200 | $0 | $0 | $0 |
| 2007 | $97,600 | $21,600 | $0 | $0 | $0 |
Deed and Sales History
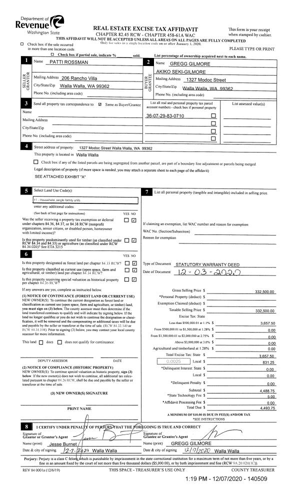
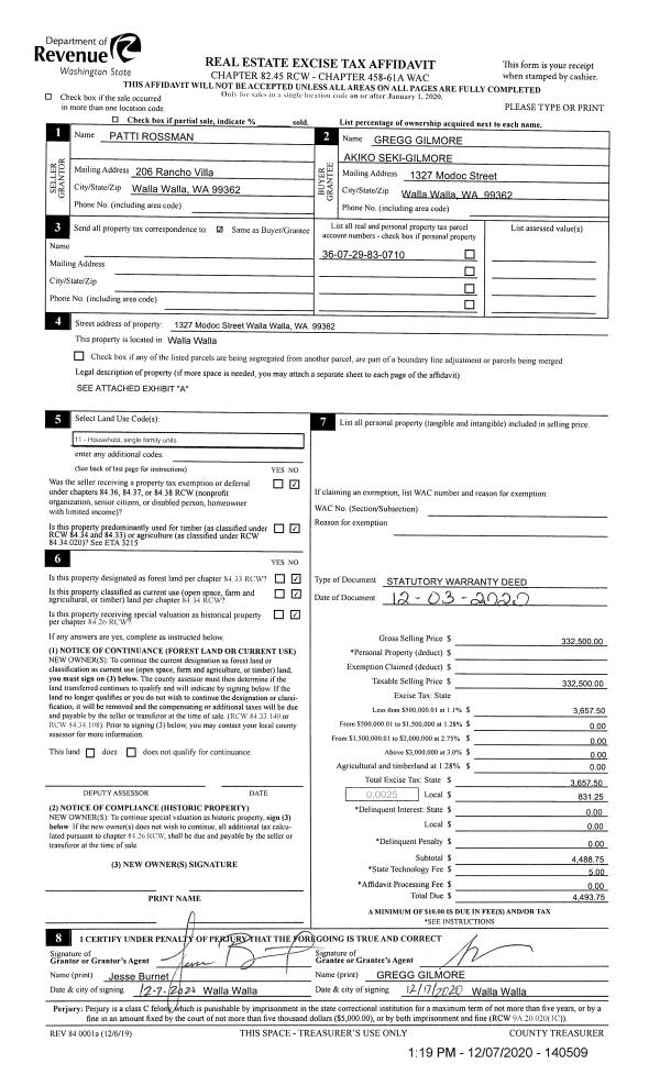
| 1 | 12/07/2020 | SWD | STATUTORY WARRANTY DEED | ROSSMAN PATTI A | GILMORE GREGG | | | $332,500.00 | 140509 | 2020-12964 |
| 2 | 06/25/2014 | SWD | STATUTORY WARRANTY DEED | FERRARO LUCAS J & MELANIE L | ROSSMAN PATTI A | | | $198,000.00 | 126127 | 2014-04362 |
| 3 | 08/28/2006 | WARRANTY D | WARRANTY DEED | CASE, BENJAMIN & JULIE | FERRARO, LUCAS J & MELANIE L | | | $192,400.00 | 111063 | 2006-10354 |
| 4 | 08/09/2005 | WARRANTY D | WARRANTY DEED | ALVAREZ, CHRISTINE | CASE, BENJAMIN & JULIE | | | $169,000.00 | 108186 | 2005-09819 |
| 5 | 01/14/2005 | WARRANTY D | WARRANTY DEED | WADSWORTH, DOREEN | ALVAREZ, CHRISTINE | | | $150,000.00 | 106597 | 2005-00541 |
| 6 | 07/09/2001 | WARRANTY D | WARRANTY DEED | | | | | $124,900.00 | 97543 | 3160-107198 |
Payout Agreement
| No payout information available.. |