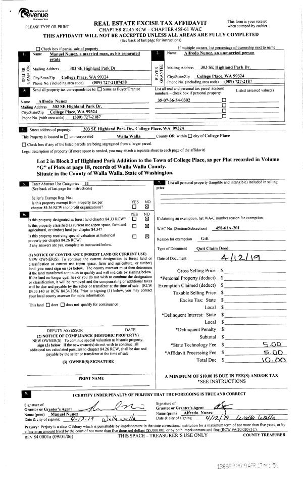
Property
Account |
| Property ID: | 16390 | Abbreviated Legal Description: | HIGHLAND PARK ADDN LT 2 BLK 3 |
| Parcel Number: | 350736540302 | Agent Code: | |
| Type: | Real | | |
| Tax Area: | 77 - CP-250-F | Land Use Code | 11 |
| Open Space: | N | DFL | N |
| Historic Property: | N | Remodel Property: | N |
| Multi-Family Redevelopment: | N | | |
| Township: | 7 | Section: | 36 |
| Range: | 35 |
Location |
| Address: | 303 SE HIGHLAND PARK DR WA 99324 | Mapsco: | |
| Neighborhood: | A Superior SFR | Map ID: | |
| Neighborhood CD: | 113211 |
Owner |
| Name: | NUNEZ ALFREDO | Owner ID: | 64993 |
| Mailing Address: | 303 SE HIGHLAND PARK DR COLLEGE PLACE, WA 99324 | % Ownership: | 100.0000000000% |
| | | Exemptions: | |
Taxes and Assessment Details
Property Tax Information as of
02/21/2026
Click on "Statement Details" to expand or collapse a tax statement.
* Please enter a valid date ** Please enter a valid date *
Statement Details |
| | TOTAL: | $0.00 | $0.00 | $0.00 | $0.00 | $0.00 | $0.00 |
|
| | $0.00 | $0.00 | $0.00 | $0.00 | $0.00 | $0.00 |
Values
| (+) Improvement Homesite Value: | + | $0 | |
| (+) Improvement Non-Homesite Value: | + | $288,140 | |
| (+) Land Homesite Value: | + | $0 | |
| (+) Land Non-Homesite Value: | + | $75,000 | |
| (+) Curr Use (HS): | + | $0 | $0 |
| (+) Curr Use (NHS): | + | $0 | $0 |
| | | -------------------------- | |
| (=) Market Value: | = | $363,140 | |
| (–) Productivity Loss: | – | $0 | |
| | | -------------------------- | |
| (=) Subtotal: | = | $363,140 | |
| (+) Senior Appraised Value: | + | $0 | |
| (+) Non-Senior Appraised Value: | + | $363,140 | |
| | | -------------------------- | |
| (=) Total Appraised Value: | = | $363,140 | |
| (–) Senior Exemption Loss: | – | $0 | |
| (–) Exemption Loss: | – | $0 | |
| | | -------------------------- | |
| (=) Taxable Value: | = | $363,140 | |
Taxing Jurisdiction
| Owner: | NUNEZ ALFREDO | | |
| % Ownership: | 100.0000000000% | | |
| Total Value: | $363,140 | | |
| Tax Area: | 77 - CP-250-F |
| CERFD | CURRENT EXPENSE REFUND 010 | 0.0000000000 | $363,140 | $363,140 | $0.00 | | |
| CURREXP | CURRENT EXPENSE 010 | 1.0175366760 | $363,140 | $363,140 | $369.51 | | |
| HUMNSERV | HUMAN SERVICES 119 | 0.0250000000 | $363,140 | $363,140 | $9.08 | | |
| SLDREL | SOLDIERS RELIEF 121 | 0.0155990005 | $363,140 | $363,140 | $5.66 | | |
| COLLPLBOND | C OF CP BOND 644 | 0.4374241808 | $363,140 | $363,140 | $158.85 | | |
| COLLPLGEN | CITY OF CP 632 | 1.4453819216 | $363,140 | $363,140 | $524.88 | | |
| EMERGSER | EMS 147 | 0.3792580840 | $363,140 | $363,140 | $137.72 | | |
| EMSRFD | EMS REFUND 147 | 0.0000000000 | $363,140 | $363,140 | $0.00 | | |
| RURALLIB | RURAL LIBRARY 623 | 0.3710609029 | $363,140 | $363,140 | $134.75 | | |
| PORTRFD | PORT REFUND 640 | 0.0000000000 | $363,140 | $363,140 | $0.00 | | |
| PORTWWGEN | PORT OF WW 640 | 0.2460186015 | $363,140 | $363,140 | $89.34 | | |
| SD250BOND | SD #250 BOND 773 | 1.4560608159 | $363,140 | $363,140 | $528.75 | | |
| SD250GEN | SD #250 GENERAL 770 | 2.3880724087 | $363,140 | $363,140 | $867.20 | | |
| ST2 | STATE SCHOOL PART 2 600 | 0.8131451643 | $363,140 | $363,140 | $295.29 | | |
| STATESCHL | STATE SCHOOL 600 | 1.5158548041 | $363,140 | $363,140 | $550.47 | | |
| STREFUND | STATE REFUND LEVY 603 | 0.0000000000 | $363,140 | $363,140 | $0.00 | | |
| | Total Tax Rate: | 10.1104125603 | | | | | |
| | | | | Taxes w/Current Exemptions: | $3,671.50 | | |
| | | | | Taxes w/o Exemptions: | $3,671.50 | | |
Improvement / Building
| Improvement #1: | RESIDENTIAL | State Code: | 11 | 1436.0 sqft | Value: | $288,140 |
| Exterior Wall: | PLYWOOD | Heating/Cooling: | WARM & COOLED AIR | | Number of Bathrooms: | 2 | Number of Bedrooms: | 3 | | Plumbing: | 9 | Roof Covering: | COMP SHINGLE |
|
| | Type | Description | Class CD | Sub Class CD | Year Built | Area |
| | MA | Main Area | 1 | 35 | 1969 | 1436.0 |
| | SI1 | SITE IMPROVEMENT | 1 | 35 | 1969 | 2.0 |
| | ATG | Attached Garage | 1 | 35 | 1969 | 624.0 |
| | S1F | Single One Story Fireplace | 1 | 35 | 1969 | 1.0 |
| | CPC | COVERED CARPORT/PATIO | 1 | 35 | 1969 | 247.0 |
| | RPC | OPEN PORCH W/ROOF , CEILED | 1 | 35 | 1969 | 25.0 |
Sketch
Property Image
Land
| 1 | RES 1 | Converted: Residential | 0.3168 | 13800.00 | 0.00 | 0.00 | 1.00 | $75,000 | $0 |
Roll Value History
| 2026 | N/A | N/A | N/A | N/A | N/A |
| 2025 | $230,510 | $140,000 | $0 | $370,510 | $370,510 |
| 2024 | $288,140 | $75,000 | $0 | $363,140 | $363,140 |
| 2023 | $288,140 | $75,000 | $0 | $363,140 | $363,140 |
| 2022 | $221,640 | $75,000 | $0 | $296,640 | $296,640 |
| 2021 | $184,700 | $75,000 | $0 | $259,700 | $259,700 |
| 2020 | $160,610 | $75,000 | $0 | $235,610 | $235,610 |
| 2019 | $175,610 | $60,000 | $0 | $235,610 | $235,610 |
| 2018 | $167,250 | $60,000 | $0 | $227,250 | $227,250 |
| 2017 | $159,290 | $60,000 | $0 | $219,290 | $219,290 |
| 2016 | $151,700 | $60,000 | $0 | $211,700 | $211,700 |
| 2015 | $151,700 | $60,000 | $0 | $211,700 | $211,700 |
| 2014 | $151,700 | $60,000 | $0 | $211,700 | $211,700 |
| 2013 | $151,700 | $60,000 | $0 | $211,700 | $211,700 |
| 2012 | $151,700 | $60,000 | $0 | $0 | $0 |
| 2011 | $151,700 | $60,000 | $0 | $0 | $0 |
| 2010 | $151,700 | $60,000 | $0 | $0 | $0 |
| 2009 | $162,800 | $60,000 | $0 | $0 | $0 |
| 2008 | $104,800 | $30,000 | $0 | $0 | $0 |
| 2007 | $104,800 | $30,000 | $0 | $0 | $0 |
Deed and Sales History
| 1 | 04/12/2019 | QCD | QUIT CLAIM DEED | NUNEZ MANUEL | NUNEZ ALFREDO | | | $0.00 | 136699 | 2019-02433 |
| 2 | 07/03/2018 | QCD | QUIT CLAIM DEED | NUNEZ MANUEL | NUNEZ MANUEL | | | $0.00 | 135092 | 2018-05575 |
| 3 | 05/10/2017 | QCD | QUIT CLAIM DEED | NUNEZ NAMUEL & CAMELIA | NUNEZ MANUEL | | | $0.00 | 132390 | 2017-03658 |
| 4 | 10/24/2014 | SWD | STATUTORY WARRANTY DEED | FINKBINER ROBERT GENE | NUNEZ NAMUEL & CAMELIA | | | $215,000.00 | 126830 | 2014-07795 |
| 5 | 08/23/2006 | QCD | QUIT CLAIM DEED | BECHTEL, KERRI R | FINKBINER, ROBERT GENE | | | | 111023 | 2006-10160 |
| 6 | 04/06/2005 | WARRANTY D | WARRANTY DEED | DE LONG, RALPH & PEARLENE | BECHTEL, KERRI R | | | $172,000.00 | 107157 | 2005-03922 |
| 7 | 02/25/2004 | QCD | QUIT CLAIM DEED | BURKE, DEBRA | DE LONG, RALPH & PEARLENE | | | | 104133 | 2004-01983 |
| 8 | 01/15/2003 | QCD | QUIT CLAIM DEED | DELONG, PEARLENE | BURKE, DEBRA | | | | 101207 | 2003-00646 |
| 9 | 10/16/1969 | WARRANTY D | WARRANTY DEED | | | | | $0.00 | 0 | 3330-504416 |
Payout Agreement
| No payout information available.. |