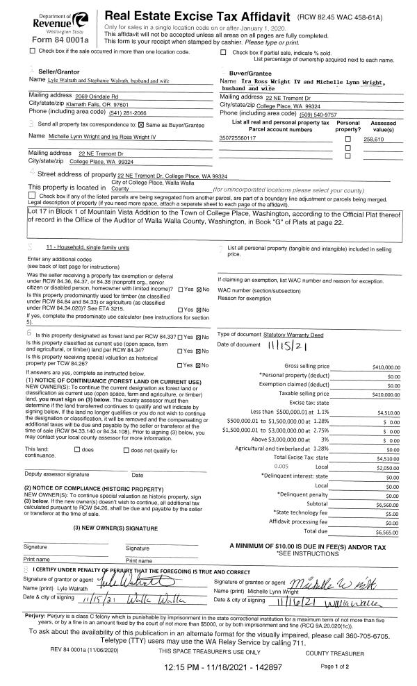
Property
Account |
| Property ID: | 16377 | Abbreviated Legal Description: | 26-7-35 PT TAX 5 (TRACT A)(LOT 1 OF SURVEY) |
| Parcel Number: | 350726230013 | Agent Code: | |
| Type: | Real | | |
| Tax Area: | 311 - 250-4 | Land Use Code | 11 |
| Open Space: | N | DFL | N |
| Historic Property: | N | Remodel Property: | N |
| Multi-Family Redevelopment: | N | | |
| Township: | 7 | Section: | 26 |
| Range: | 35 |
Location |
| Address: | 1532 WALLULA AVE WA 99324 | Mapsco: | |
| Neighborhood: | A SFR Rural/City Infl | Map ID: | |
| Neighborhood CD: | 313012 |
Owner |
| Name: | CHAMBERLAIN BILLY & PHYLLIS | Owner ID: | 2699 |
| Mailing Address: | 1532 WALLULA AVE WALLA WALLA, WA 99362 | % Ownership: | 100.0000000000% |
| | | Exemptions: | |
Taxes and Assessment Details
Values
| (+) Improvement Homesite Value: | + | $0 | |
| (+) Improvement Non-Homesite Value: | + | $349,610 | |
| (+) Land Homesite Value: | + | $0 | |
| (+) Land Non-Homesite Value: | + | $140,000 | |
| (+) Curr Use (HS): | + | $0 | $0 |
| (+) Curr Use (NHS): | + | $0 | $0 |
| | | -------------------------- | |
| (=) Market Value: | = | $489,610 | |
| (–) Productivity Loss: | – | $0 | |
| | | -------------------------- | |
| (=) Subtotal: | = | $489,610 | |
| (+) Senior Appraised Value: | + | $0 | |
| (+) Non-Senior Appraised Value: | + | $489,610 | |
| | | -------------------------- | |
| (=) Total Appraised Value: | = | $489,610 | |
| (–) Senior Exemption Loss: | – | $0 | |
| (–) Exemption Loss: | – | $0 | |
| | | -------------------------- | |
| (=) Taxable Value: | = | $489,610 | |
Taxing Jurisdiction
| Owner: | CHAMBERLAIN BILLY & PHYLLIS | | |
| % Ownership: | 100.0000000000% | | |
| Total Value: | $489,610 | | |
| Tax Area: | 311 - 250-4 |
| CERFD | CURRENT EXPENSE REFUND 010 | 0.0000000000 | $489,610 | $489,610 | $0.00 | | |
| CURREXP | CURRENT EXPENSE 010 | 1.0175366760 | $489,610 | $489,610 | $498.20 | | |
| HUMNSERV | HUMAN SERVICES 119 | 0.0250000000 | $489,610 | $489,610 | $12.24 | | |
| SLDREL | SOLDIERS RELIEF 121 | 0.0155990005 | $489,610 | $489,610 | $7.64 | | |
| EMERGSER | EMS 147 | 0.3792580840 | $489,610 | $489,610 | $185.69 | | |
| EMSRFD | EMS REFUND 147 | 0.0000000000 | $489,610 | $489,610 | $0.00 | | |
| FD4EXP | FD #4 EXPENSE 686 | 0.8836993059 | $489,610 | $489,610 | $432.67 | | |
| RLBRFD | RURAL LIBRARY REFUND 623 | 0.0000000000 | $489,610 | $489,610 | $0.00 | | |
| RURALLIB | RURAL LIBRARY 623 | 0.3710609029 | $489,610 | $489,610 | $181.68 | | |
| PORTRFD | PORT REFUND 640 | 0.0000000000 | $489,610 | $489,610 | $0.00 | | |
| PORTWWGEN | PORT OF WW 640 | 0.2460186015 | $489,610 | $489,610 | $120.45 | | |
| SD250BOND | SD #250 BOND 773 | 1.4560608159 | $489,610 | $489,610 | $712.90 | | |
| SD250GEN | SD #250 GENERAL 770 | 2.3880724087 | $489,610 | $489,610 | $1,169.22 | | |
| ST2 | STATE SCHOOL PART 2 600 | 0.8131451643 | $489,610 | $489,610 | $398.12 | | |
| STATESCHL | STATE SCHOOL 600 | 1.5158548041 | $489,610 | $489,610 | $742.18 | | |
| STREFUND | STATE REFUND LEVY 603 | 0.0000000000 | $489,610 | $489,610 | $0.00 | | |
| COROAD | COUNTY ROAD 115 | 1.6549953990 | $489,610 | $489,610 | $810.30 | | |
| CRPRD | COUNTY ROAD REFUND 115 | 0.0000000000 | $489,610 | $489,610 | $0.00 | | |
| | Total Tax Rate: | 10.7663011628 | | | | | |
| | | | | Taxes w/Current Exemptions: | $5,271.29 | | |
| | | | | Taxes w/o Exemptions: | $5,271.29 | | |
Improvement / Building
| Improvement #1: | RESIDENTIAL | State Code: | 11 | 1931.0 sqft | Value: | $349,610 |
| Exterior Wall: | CEMENT FIBER | Heating/Cooling: | HEAT PUMP | | Number of Bathrooms: | 3 | Number of Bedrooms: | 2 | | Plumbing: | 12 | Roof Covering: | COMP SHINGLE |
|
| | Type | Description | Class CD | Sub Class CD | Year Built | Area |
| | MA | Main Area | 1 | 35 | 2018 | 1931.0 |
| | SI1 | SITE IMPROVEMENT | 1 | 35 | 2018 | 4.0 |
| | POL3 | POLE BUILDING-CON,ELEC,INSU | 1 | 35 | 2017 | 900.0 |
| | POL2 | POLE BUILDING-CONCRETE | 1 | 35 | 2017 | 1656.0 |
| | FBAT | FULL BATH | 1 | 35 | 2018 | 1.0 |
| | WOD | Wood Deck | 1 | 35 | 2018 | 1.0 |
| | RCD | WOOD DECK W/ROOF, CEILED | 1 | 35 | 2018 | 1.0 |
| | ATG | Attached Garage | 1 | 35 | 2018 | 600.0 |
Sketch
Property Image
Land
| 1 | RES 1 | Converted: Residential | 3.0000 | 0.00 | 0.00 | 0.00 | 1.00 | $140,000 | $0 |
Roll Value History
| 2026 | N/A | N/A | N/A | N/A | N/A |
| 2025 | $454,490 | $140,000 | $0 | $594,490 | $594,490 |
| 2024 | $349,610 | $140,000 | $0 | $489,610 | $489,610 |
| 2023 | $349,610 | $140,000 | $0 | $489,610 | $489,610 |
| 2022 | $332,960 | $140,000 | $0 | $472,960 | $472,960 |
| 2021 | $381,960 | $91,000 | $0 | $472,960 | $472,960 |
| 2020 | $318,300 | $91,000 | $0 | $409,300 | $409,300 |
| 2019 | $318,300 | $91,000 | $0 | $409,300 | $409,300 |
| 2018 | $79,100 | $91,000 | $0 | $170,100 | $170,100 |
| 2017 | $0 | $91,000 | $0 | $91,000 | $91,000 |
| 2016 | $0 | $91,000 | $0 | $91,000 | $91,000 |
| 2015 | $0 | $91,000 | $0 | $91,000 | $91,000 |
| 2014 | $0 | $91,000 | $0 | $91,000 | $91,000 |
| 2013 | $0 | $91,000 | $0 | $91,000 | $91,000 |
| 2012 | $0 | $91,000 | $0 | $0 | $0 |
| 2011 | $0 | $91,000 | $0 | $0 | $0 |
| 2010 | $0 | $24,000 | $0 | $0 | $0 |
| 2009 | $0 | $12,000 | $0 | $0 | $0 |
| 2008 | $0 | $12,000 | $0 | $0 | $0 |
| 2007 | $0 | $12,000 | $0 | $0 | $0 |
Deed and Sales History
| 1 | 06/22/2017 | SWD | STATUTORY WARRANTY DEED | HOPWOOD DENNIS T & SHARON L | CHAMBERLAIN BILLY & PHYLLIS | | | $170,000.00 | 132647 | 2017-04776 |
| 2 | 01/21/2014 | WARRANTY D | WARRANTY DEED | REID DAVID A & ROSANNA M | HOPWOOD DENNIS T & SHARON L | | | $113,000.00 | 125301 | 2014-00452 |
| 3 | 11/09/2005 | WARRANTY D | WARRANTY DEED | BOBBITT, VENETHA R | REID, DAVID A & ROSANNA M | | | $90,000.00 | 108985 | 2005-14169 |
| 4 | 02/15/1995 | WARRANTY D | WARRANTY DEED | | | | | $165,000.00 | 83515 | 2279-501442 |
Payout Agreement
| No payout information available.. |