Property
Account |
| Property ID: | 16366 | Abbreviated Legal Description: | 28-7-36 TAX 143 |
| Parcel Number: | 360728220057 | Agent Code: | |
| Type: | Real | | |
| Tax Area: | 1 - OL-140-F | Land Use Code | 11 |
| Open Space: | N | DFL | N |
| Historic Property: | N | Remodel Property: | N |
| Multi-Family Redevelopment: | N | | |
| Township: | 7 | Section: | 28 |
| Range: | 36 |
Location |
| Address: | 558 CRAIG ST WA 99362 | Mapsco: | |
| Neighborhood: | G Res | Map ID: | |
| Neighborhood CD: | 614011 |
Owner |
| Name: | THOMPSON FAMILY REVOCABLE TRUST | Owner ID: | 64495 |
| Mailing Address: | 558 CRAIG ST WALLA WALLA, WA 99362 | % Ownership: | 100.0000000000% |
| | | Exemptions: | |
Taxes and Assessment Details
Values
| (+) Improvement Homesite Value: | + | $0 | |
| (+) Improvement Non-Homesite Value: | + | $453,210 | |
| (+) Land Homesite Value: | + | $0 | |
| (+) Land Non-Homesite Value: | + | $82,760 | |
| (+) Curr Use (HS): | + | $0 | $0 |
| (+) Curr Use (NHS): | + | $0 | $0 |
| | | -------------------------- | |
| (=) Market Value: | = | $535,970 | |
| (–) Productivity Loss: | – | $0 | |
| | | -------------------------- | |
| (=) Subtotal: | = | $535,970 | |
| (+) Senior Appraised Value: | + | $0 | |
| (+) Non-Senior Appraised Value: | + | $535,970 | |
| | | -------------------------- | |
| (=) Total Appraised Value: | = | $535,970 | |
| (–) Senior Exemption Loss: | – | $0 | |
| (–) Exemption Loss: | – | $0 | |
| | | -------------------------- | |
| (=) Taxable Value: | = | $535,970 | |
Taxing Jurisdiction
| Owner: | THOMPSON FAMILY REVOCABLE TRUST | | |
| % Ownership: | 100.0000000000% | | |
| Total Value: | $535,970 | | |
| Tax Area: | 1 - OL-140-F |
| CERFD | CURRENT EXPENSE REFUND 010 | 0.0000000000 | $535,970 | $535,970 | $0.00 | | |
| CURREXP | CURRENT EXPENSE 010 | 1.0175366760 | $535,970 | $535,970 | $545.37 | | |
| HUMNSERV | HUMAN SERVICES 119 | 0.0250000000 | $535,970 | $535,970 | $13.40 | | |
| SLDREL | SOLDIERS RELIEF 121 | 0.0155990005 | $535,970 | $535,970 | $8.36 | | |
| EMERGSER | EMS 147 | 0.3792580840 | $535,970 | $535,970 | $203.27 | | |
| EMSRFD | EMS REFUND 147 | 0.0000000000 | $535,970 | $535,970 | $0.00 | | |
| PORTRFD | PORT REFUND 640 | 0.0000000000 | $535,970 | $535,970 | $0.00 | | |
| PORTWWGEN | PORT OF WW 640 | 0.2460186015 | $535,970 | $535,970 | $131.86 | | |
| SD140BOND | SD #140 BOND 764 | 0.8342371393 | $535,970 | $535,970 | $447.13 | | |
| SD140GEN | SD #140 GENERAL 760 | 2.0646500647 | $535,970 | $535,970 | $1,106.59 | | |
| ST2 | STATE SCHOOL PART 2 600 | 0.8131451643 | $535,970 | $535,970 | $435.82 | | |
| STATESCHL | STATE SCHOOL 600 | 1.5158548041 | $535,970 | $535,970 | $812.45 | | |
| STREFUND | STATE REFUND LEVY 603 | 0.0000000000 | $535,970 | $535,970 | $0.00 | | |
| CWWBOND | C OF WW BOND 643 | 0.2760494372 | $535,970 | $535,970 | $147.95 | | |
| CWWGEN | CITY OF WW 631 | 1.6100204973 | $535,970 | $535,970 | $862.92 | | |
| CWWRFD | CITY OF WALLA WALLA REFUND 631 | 0.0000000000 | $535,970 | $535,970 | $0.00 | | |
| | Total Tax Rate: | 8.7973694689 | | | | | |
| | | | | Taxes w/Current Exemptions: | $4,715.12 | | |
| | | | | Taxes w/o Exemptions: | $4,715.12 | | |
Improvement / Building
| Improvement #1: | RESIDENTIAL | State Code: | 11 | 1305.0 sqft | Value: | $453,210 |
| Exterior Wall: | SIDING | Heating/Cooling: | WARM & COOLED AIR | | Number of Bathrooms: | 2 | Number of Bedrooms: | 2 | | Plumbing: | 10 | Roof Covering: | COMP SHINGLE |
|
| | Type | Description | Class CD | Sub Class CD | Year Built | Area |
| | MA | Main Area | 1 | 45 | 1941 | 1305.0 |
| | SI1 | SITE IMPROVEMENT | 1 | 45 | 0 | 4.0 |
| | BASE | BASEMENT | 1 | 45 | 1941 | 700.0 |
| | BPF | BASEMENT -PARTITIONED FINISH | 1 | 45 | 1941 | 700.0 |
| | S1F | Single One Story Fireplace | 1 | 45 | 1941 | 1.0 |
| | RPC | OPEN PORCH W/ROOF , CEILED | 1 | 45 | 1941 | 28.0 |
| | DTG | Detached Garage | 1 | 45 | 1941 | 240.0 |
| | WOD | Wood Deck | 1 | 45 | 1941 | 258.0 |
Sketch
Property Image
Land
| 1 | RES 1 | Converted: Residential | 0.1900 | 8276.00 | 0.00 | 0.00 | 1.00 | $82,760 | $0 |
Roll Value History
| 2026 | N/A | N/A | N/A | N/A | N/A |
| 2025 | $543,870 | $99,310 | $0 | $643,180 | $643,180 |
| 2024 | $453,210 | $82,760 | $0 | $535,970 | $535,970 |
| 2023 | $453,210 | $82,760 | $0 | $535,970 | $535,970 |
| 2022 | $394,100 | $68,280 | $0 | $462,380 | $462,380 |
| 2021 | $358,270 | $68,280 | $0 | $426,550 | $426,550 |
| 2020 | $325,700 | $68,280 | $0 | $393,980 | $393,980 |
| 2019 | $325,700 | $68,280 | $0 | $393,980 | $393,980 |
| 2018 | $235,960 | $45,700 | $0 | $281,660 | $281,660 |
| 2017 | $235,960 | $45,700 | $0 | $281,660 | $281,660 |
| 2016 | $235,960 | $45,700 | $0 | $281,660 | $281,660 |
| 2015 | $225,960 | $45,700 | $0 | $271,660 | $271,660 |
| 2014 | $188,300 | $45,700 | $0 | $234,000 | $234,000 |
| 2013 | $188,300 | $45,700 | $0 | $234,000 | $234,000 |
| 2012 | $159,000 | $45,700 | $0 | $0 | $0 |
| 2011 | $159,000 | $45,700 | $0 | $0 | $0 |
| 2010 | $159,000 | $45,700 | $0 | $0 | $0 |
| 2009 | $181,700 | $45,700 | $0 | $0 | $0 |
| 2008 | $181,700 | $45,700 | $0 | $0 | $0 |
| 2007 | $92,200 | $23,200 | $0 | $0 | $0 |
Deed and Sales History
| 1 | 07/23/2024 | SWD | STATUTORY WARRANTY DEED | THOMPSON FAMILY REVOCABLE TRUST | LORIA KYLE J & LANE E | | | $677,000.00 | 147916 | 2024-04013 |
| 2 | 01/10/2019 | SWD | STATUTORY WARRANTY DEED | UNDERWOOD MONTE & ONA KARASA | THOMPSON FAMILY REVOCABLE TRUST | | | $409,000.00 | 136232 | 2019-00221 |
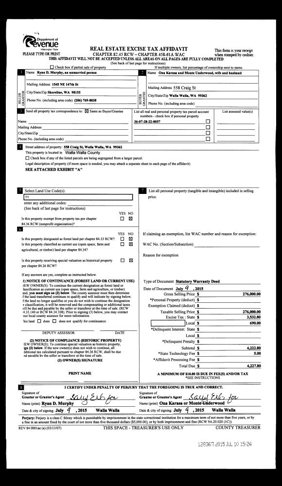
| 3 | 07/10/2015 | SWD | STATUTORY WARRANTY DEED | MURPHY RYAN D | UNDERWOOD MONTE & ONA KARASA | | | $276,000.00 | 128367 | 2015-05913 |
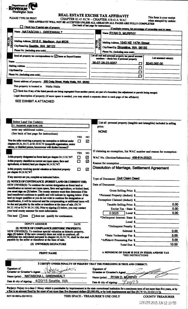
| 4 | 04/20/2015 | QCD | QUIT CLAIM DEED | MURPHY RYAN D | MURPHY RYAN D | | | $0.00 | 128155 | 2015-05188 |
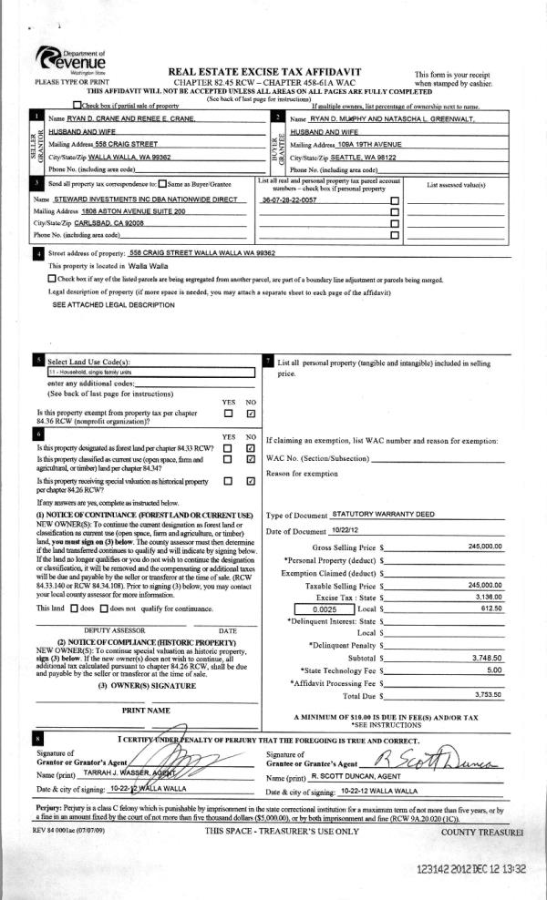
| 5 | 12/12/2012 | WARRANTY D | WARRANTY DEED | CRANE, RYAN D & RENEE E | MURPHY, RYAN D | | | $245,000.00 | 123142 | 2012-11071 |
| 6 | 07/31/2006 | WARRANTY D | WARRANTY DEED | MORGAN, JOSHU E | CRANE, RYAN D & RENEE E | | | $227,500.00 | 110852 | 2006-09011 |
| 7 | 04/23/2004 | WARRANTY D | WARRANTY DEED | GONZALEZ, JEREMIAH & KATHY JO | MORGAN, JOSHU E | | | $163,000.00 | 104573 | 2004-04332 |
| 8 | 09/28/2000 | WARRANTY D | WARRANTY DEED | | | | | $124,000.00 | 95870 | 3030-009231 |
Payout Agreement
| No payout information available.. |