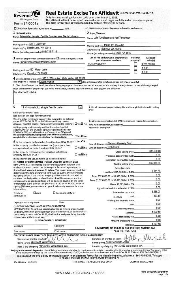
Property
Account |
| Property ID: | 16365 | Abbreviated Legal Description: | 22-7-36 TAX 8D LESS ST |
| Parcel Number: | 360722330097 | Agent Code: | |
| Type: | Real | | |
| Tax Area: | 6 - OL-140-F-FB | Land Use Code | 11 |
| Open Space: | N | DFL | N |
| Historic Property: | N | Remodel Property: | N |
| Multi-Family Redevelopment: | N | | |
| Township: | 7 | Section: | 22 |
| Range: | 36 |
Location |
| Address: | 335 S WILBUR AVE WA 99362 | Mapsco: | |
| Neighborhood: | A SFR | Map ID: | |
| Neighborhood CD: | 413011 |
Owner |
| Name: | KEMPLE JAIME ALLYN | Owner ID: | 68413 |
| Mailing Address: | CYNTHIA SUE & DANIEL JOHNSON 335 S WILBUR AVE WALLA WALLA, WA 99362 | % Ownership: | 100.0000000000% |
| | | Exemptions: | |
Taxes and Assessment Details
Property Tax Information as of
02/21/2026
Click on "Statement Details" to expand or collapse a tax statement.
* Please enter a valid date ** Please enter a valid date *
Statement Details |
| | TOTAL: | $0.00 | $0.00 | $0.00 | $0.00 | $0.00 | $0.00 |
|
| | $0.00 | $0.00 | $0.00 | $0.00 | $0.00 | $0.00 |
Values
| (+) Improvement Homesite Value: | + | $0 | |
| (+) Improvement Non-Homesite Value: | + | $276,300 | |
| (+) Land Homesite Value: | + | $0 | |
| (+) Land Non-Homesite Value: | + | $48,780 | |
| (+) Curr Use (HS): | + | $0 | $0 |
| (+) Curr Use (NHS): | + | $0 | $0 |
| | | -------------------------- | |
| (=) Market Value: | = | $325,080 | |
| (–) Productivity Loss: | – | $0 | |
| | | -------------------------- | |
| (=) Subtotal: | = | $325,080 | |
| (+) Senior Appraised Value: | + | $0 | |
| (+) Non-Senior Appraised Value: | + | $325,080 | |
| | | -------------------------- | |
| (=) Total Appraised Value: | = | $325,080 | |
| (–) Senior Exemption Loss: | – | $0 | |
| (–) Exemption Loss: | – | $0 | |
| | | -------------------------- | |
| (=) Taxable Value: | = | $325,080 | |
Taxing Jurisdiction
| Owner: | KEMPLE JAIME ALLYN | | |
| % Ownership: | 100.0000000000% | | |
| Total Value: | $325,080 | | |
| Tax Area: | 6 - OL-140-F-FB |
| CERFD | CURRENT EXPENSE REFUND 010 | 0.0000000000 | $325,080 | $325,080 | $0.00 | | |
| CURREXP | CURRENT EXPENSE 010 | 1.0175366760 | $325,080 | $325,080 | $330.78 | | |
| HUMNSERV | HUMAN SERVICES 119 | 0.0250000000 | $325,080 | $325,080 | $8.13 | | |
| SLDREL | SOLDIERS RELIEF 121 | 0.0155990005 | $325,080 | $325,080 | $5.07 | | |
| EMERGSER | EMS 147 | 0.3792580840 | $325,080 | $325,080 | $123.29 | | |
| EMSRFD | EMS REFUND 147 | 0.0000000000 | $325,080 | $325,080 | $0.00 | | |
| PORTRFD | PORT REFUND 640 | 0.0000000000 | $325,080 | $325,080 | $0.00 | | |
| PORTWWGEN | PORT OF WW 640 | 0.2460186015 | $325,080 | $325,080 | $79.98 | | |
| SD140BOND | SD #140 BOND 764 | 0.8342371393 | $325,080 | $325,080 | $271.19 | | |
| SD140GEN | SD #140 GENERAL 760 | 2.0646500647 | $325,080 | $325,080 | $671.18 | | |
| ST2 | STATE SCHOOL PART 2 600 | 0.8131451643 | $325,080 | $325,080 | $264.34 | | |
| STATESCHL | STATE SCHOOL 600 | 1.5158548041 | $325,080 | $325,080 | $492.77 | | |
| STREFUND | STATE REFUND LEVY 603 | 0.0000000000 | $325,080 | $325,080 | $0.00 | | |
| CWWBOND | C OF WW BOND 643 | 0.2760494372 | $325,080 | $325,080 | $89.74 | | |
| CWWGEN | CITY OF WW 631 | 1.6100204973 | $325,080 | $325,080 | $523.39 | | |
| CWWRFD | CITY OF WALLA WALLA REFUND 631 | 0.0000000000 | $325,080 | $325,080 | $0.00 | | |
| | Total Tax Rate: | 8.7973694689 | | | | | |
| | | | | Taxes w/Current Exemptions: | $2,859.86 | | |
| | | | | Taxes w/o Exemptions: | $2,859.86 | | |
Improvement / Building
| Improvement #1: | RESIDENTIAL | State Code: | 11 | 1030.0 sqft | Value: | $276,300 |
| Exterior Wall: | PLYWOOD | Heating/Cooling: | FORCED AIR | | Number of Bathrooms: | 2 | Number of Bedrooms: | 2 | | Plumbing: | 8 | Roof Covering: | COMP SHINGLE |
|
| | Type | Description | Class CD | Sub Class CD | Year Built | Area |
| | MA | Main Area | 1 | 30 | 1950 | 1030.0 |
| | CPC | COVERED CARPORT/PATIO | 1 | 30 | 0 | 180.0 |
| | SI1 | SITE IMPROVEMENT | 1 | 30 | 0 | 2.5 |
| | BASE | BASEMENT | 1 | 30 | 1950 | 940.0 |
| | OPS | OPEN PORCH W/STEPS | 1 | 30 | 1950 | 30.0 |
| | DTG | Detached Garage | 1 | 30 | 1950 | 432.0 |
| | S1F | Single One Story Fireplace | 1 | 30 | 1950 | 1.0 |
Sketch
Property Image
Land
| 1 | RES 1 | Converted: Residential | 0.1400 | 6098.00 | 0.00 | 0.00 | 1.00 | $48,780 | $0 |
Roll Value History
| 2026 | N/A | N/A | N/A | N/A | N/A |
| 2025 | $276,300 | $48,780 | $0 | $325,080 | $325,080 |
| 2024 | $276,300 | $48,780 | $0 | $325,080 | $325,080 |
| 2023 | $276,300 | $48,780 | $0 | $325,080 | $325,080 |
| 2022 | $265,210 | $32,020 | $0 | $297,230 | $297,230 |
| 2021 | $230,620 | $32,020 | $0 | $262,640 | $262,640 |
| 2020 | $115,310 | $32,020 | $0 | $147,330 | $147,330 |
| 2019 | $115,310 | $32,020 | $0 | $147,330 | $147,330 |
| 2018 | $88,700 | $32,020 | $0 | $120,720 | $120,720 |
| 2017 | $88,700 | $32,020 | $0 | $120,720 | $120,720 |
| 2016 | $90,800 | $24,400 | $0 | $115,200 | $115,200 |
| 2015 | $90,800 | $24,400 | $0 | $115,200 | $115,200 |
| 2014 | $90,800 | $24,400 | $0 | $115,200 | $115,200 |
| 2013 | $90,800 | $24,400 | $0 | $115,200 | $115,200 |
| 2012 | $75,800 | $24,400 | $0 | $0 | $0 |
| 2011 | $86,100 | $24,400 | $0 | $0 | $0 |
| 2010 | $86,100 | $24,400 | $0 | $0 | $0 |
| 2009 | $98,400 | $24,400 | $0 | $0 | $0 |
| 2008 | $98,400 | $24,400 | $0 | $0 | $0 |
| 2007 | $98,400 | $24,400 | $0 | $0 | $0 |
Deed and Sales History
| 1 | 10/20/2023 | SWD | STATUTORY WARRANTY DEED | KEMPLE JAIME ALLYN | TUMBLESON LYLE & KARI | | | $335,000.00 | 146663 | 2023-06167 |
| 2 | 11/19/2020 | SWD | STATUTORY WARRANTY DEED | LANDONI KENNETH R & KOLEEN R | KEMPLE JAIME ALLYN | | | $290,000.00 | 140382 | 2020-12261 |
| 3 | 07/28/2006 | QCD | QUIT CLAIM DEED | LANDONI, KENNETH R | LANDONI, KENNETH R & KOLEEN R | | | | 110822 | 2006-08884 |
| 4 | 01/30/1989 | WARRANTY D | WARRANTY DEED | | | | | $38,000.00 | 0 | 1748-900637 |
Payout Agreement
| No payout information available.. |