Property
Account |
| Property ID: | 16358 | Abbreviated Legal Description: | CP #2 E 27' OF W 177' OF N 1151/2' OF LOT 1 BLK 24 W 50' OF N 1151/2' LOT 1 BLK 24 |
| Parcel Number: | 350735602401 | Agent Code: | |
| Type: | Real | | |
| Tax Area: | 75 - CP 250 | Land Use Code | 11 |
| Open Space: | N | DFL | N |
| Historic Property: | N | Remodel Property: | N |
| Multi-Family Redevelopment: | N | | |
| Township: | 7 | Section: | 35 |
| Range: | 35 |
Location |
| Address: | 27 SW 6TH ST WA 99324 | Mapsco: | |
| Neighborhood: | A SFR | Map ID: | |
| Neighborhood CD: | 113011 |
Owner |
| Name: | MOORE JACOB | Owner ID: | 71965 |
| Mailing Address: | 27 SW 6TH ST COLLEGE PLACE, WA 99324 | % Ownership: | 100.0000000000% |
| | | Exemptions: | |
Taxes and Assessment Details
Property Tax Information as of
02/21/2026
Click on "Statement Details" to expand or collapse a tax statement.
* Please enter a valid date ** Please enter a valid date *
Statement Details |
| | TOTAL: | $0.00 | $0.00 | $0.00 | $0.00 | $0.00 | $0.00 |
|
| | $0.00 | $0.00 | $0.00 | $0.00 | $0.00 | $0.00 |
Values
| (+) Improvement Homesite Value: | + | $0 | |
| (+) Improvement Non-Homesite Value: | + | $283,230 | |
| (+) Land Homesite Value: | + | $0 | |
| (+) Land Non-Homesite Value: | + | $60,890 | |
| (+) Curr Use (HS): | + | $0 | $0 |
| (+) Curr Use (NHS): | + | $0 | $0 |
| | | -------------------------- | |
| (=) Market Value: | = | $344,120 | |
| (–) Productivity Loss: | – | $0 | |
| | | -------------------------- | |
| (=) Subtotal: | = | $344,120 | |
| (+) Senior Appraised Value: | + | $0 | |
| (+) Non-Senior Appraised Value: | + | $344,120 | |
| | | -------------------------- | |
| (=) Total Appraised Value: | = | $344,120 | |
| (–) Senior Exemption Loss: | – | $0 | |
| (–) Exemption Loss: | – | $0 | |
| | | -------------------------- | |
| (=) Taxable Value: | = | $344,120 | |
Taxing Jurisdiction
| Owner: | MOORE JACOB | | |
| % Ownership: | 100.0000000000% | | |
| Total Value: | $344,120 | | |
| Tax Area: | 75 - CP 250 |
| CERFD | CURRENT EXPENSE REFUND 010 | 0.0000000000 | $344,120 | $344,120 | $0.00 | | |
| CURREXP | CURRENT EXPENSE 010 | 1.0175366760 | $344,120 | $344,120 | $350.15 | | |
| HUMNSERV | HUMAN SERVICES 119 | 0.0250000000 | $344,120 | $344,120 | $8.60 | | |
| SLDREL | SOLDIERS RELIEF 121 | 0.0155990005 | $344,120 | $344,120 | $5.37 | | |
| COLLPLBOND | C OF CP BOND 644 | 0.4374241808 | $344,120 | $344,120 | $150.53 | | |
| COLLPLGEN | CITY OF CP 632 | 1.4453819216 | $344,120 | $344,120 | $497.38 | | |
| EMERGSER | EMS 147 | 0.3792580840 | $344,120 | $344,120 | $130.51 | | |
| EMSRFD | EMS REFUND 147 | 0.0000000000 | $344,120 | $344,120 | $0.00 | | |
| RURALLIB | RURAL LIBRARY 623 | 0.3710609029 | $344,120 | $344,120 | $127.69 | | |
| PORTRFD | PORT REFUND 640 | 0.0000000000 | $344,120 | $344,120 | $0.00 | | |
| PORTWWGEN | PORT OF WW 640 | 0.2460186015 | $344,120 | $344,120 | $84.66 | | |
| SD250BOND | SD #250 BOND 773 | 1.4560608159 | $344,120 | $344,120 | $501.06 | | |
| SD250GEN | SD #250 GENERAL 770 | 2.3880724087 | $344,120 | $344,120 | $821.78 | | |
| ST2 | STATE SCHOOL PART 2 600 | 0.8131451643 | $344,120 | $344,120 | $279.82 | | |
| STATESCHL | STATE SCHOOL 600 | 1.5158548041 | $344,120 | $344,120 | $521.64 | | |
| STREFUND | STATE REFUND LEVY 603 | 0.0000000000 | $344,120 | $344,120 | $0.00 | | |
| | Total Tax Rate: | 10.1104125603 | | | | | |
| | | | | Taxes w/Current Exemptions: | $3,479.19 | | |
| | | | | Taxes w/o Exemptions: | $3,479.19 | | |
Improvement / Building
| Improvement #1: | RESIDENTIAL | State Code: | 11 | 702.0 sqft | Value: | $283,230 |
| Exterior Wall: | STUCCO | Heating/Cooling: | FLOOR FURNACE | | Number of Bathrooms: | 2 | Number of Bedrooms: | 3 | | Plumbing: | 10 | Roof Covering: | COMP SHINGLE |
|
| | Type | Description | Class CD | Sub Class CD | Year Built | Area |
| | MA | Main Area | 1 | 30 | 1918 | 702.0 |
| | SI1 | SITE IMPROVEMENT | 1 | 30 | 1918 | 4.0 |
| | BASE | BASEMENT | 1 | 30 | 1918 | 518.0 |
| | BPF | BASEMENT -PARTITIONED FINISH | 1 | 30 | 1918 | 518.0 |
| | DTG | Detached Garage | 1 | 30 | 1918 | 440.0 |
| | RPS | PORCH W/STEPS,ROOF | 1 | 30 | 1918 | 99.0 |
Sketch
Property Image
Land
| 1 | RES 1 | Converted: Residential | 0.2121 | 9240.00 | 0.00 | 0.00 | 1.00 | $60,890 | $0 |
Roll Value History
| 2026 | N/A | N/A | N/A | N/A | N/A |
| 2025 | $269,070 | $90,280 | $0 | $359,350 | $359,350 |
| 2024 | $283,230 | $60,890 | $0 | $344,120 | $344,120 |
| 2023 | $283,230 | $60,890 | $0 | $344,120 | $344,120 |
| 2022 | $236,030 | $60,890 | $0 | $296,920 | $296,920 |
| 2021 | $98,600 | $60,890 | $0 | $159,490 | $159,490 |
| 2020 | $49,300 | $60,890 | $0 | $110,190 | $110,190 |
| 2019 | $63,690 | $46,500 | $0 | $110,190 | $110,190 |
| 2018 | $49,000 | $46,500 | $0 | $95,500 | $95,500 |
| 2017 | $46,660 | $46,500 | $0 | $93,160 | $93,160 |
| 2016 | $42,420 | $46,500 | $0 | $88,920 | $88,920 |
| 2015 | $40,400 | $46,500 | $0 | $86,900 | $86,900 |
| 2014 | $50,500 | $46,500 | $0 | $97,000 | $97,000 |
| 2013 | $50,500 | $46,500 | $0 | $97,000 | $97,000 |
| 2012 | $50,500 | $46,500 | $0 | $0 | $0 |
| 2011 | $50,500 | $46,500 | $0 | $0 | $0 |
| 2010 | $45,900 | $46,500 | $0 | $0 | $0 |
| 2009 | $56,200 | $46,500 | $0 | $0 | $0 |
| 2008 | $51,700 | $24,000 | $0 | $0 | $0 |
| 2007 | $51,700 | $24,000 | $0 | $0 | $0 |
Deed and Sales History
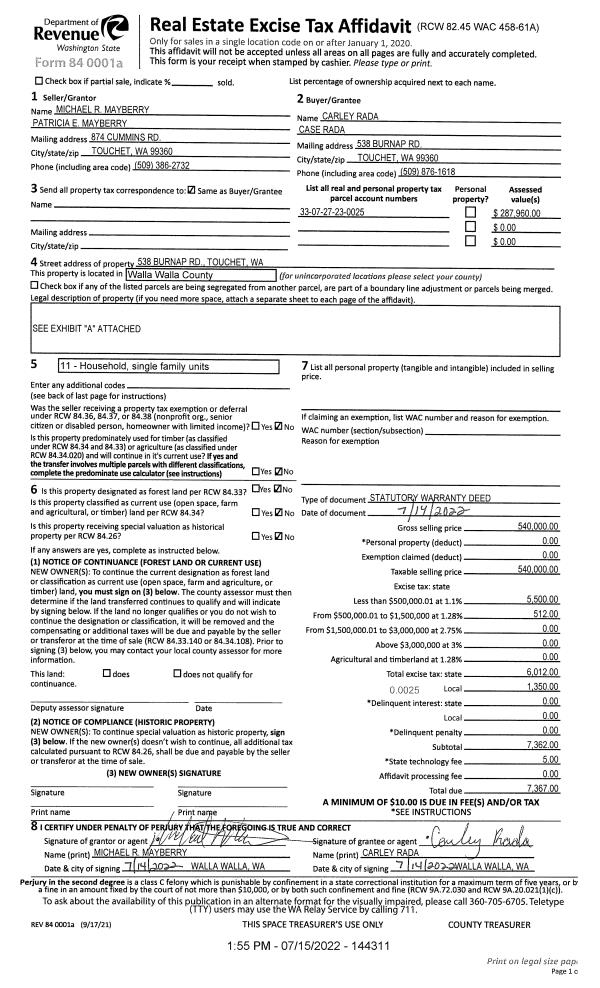
| 1 | 07/15/2022 | SWD | STATUTORY WARRANTY DEED | HARRAL DONALD J | MOORE JACOB | | | $370,000.00 | 144312 | 2022-06030 |
| 2 | 03/14/2014 | COURT CASE | COURT CASE | HARRAL DONALD J & ANNE M | HARRAL DONALD J | | | | 0 | CC 14-9-00216-1 |
| 3 | 08/17/2006 | WARRANTY D | WARRANTY DEED | COFFEEN, NATHANAEL & JANALEE | HARRAL, DONALD J & ANNE M | | | $85,000.00 | 110978 | 2006-09864 |
Payout Agreement
| No payout information available.. |