Property
Account |
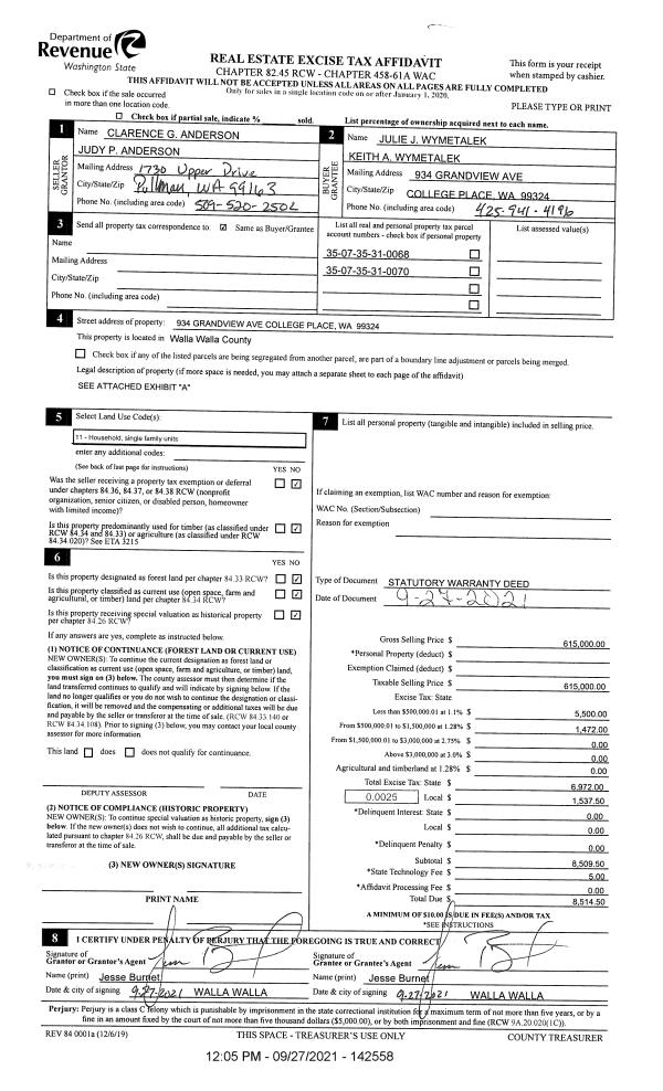
| Property ID: | 16356 | Abbreviated Legal Description: | 35-7-35 LES TAX 43A,43B,43C, & 43 |
| Parcel Number: | 350735310068 | Agent Code: | |
| Type: | Real | | |
| Tax Area: | 311 - 250-4 | Land Use Code | 11 |
| Open Space: | N | DFL | N |
| Historic Property: | N | Remodel Property: | N |
| Multi-Family Redevelopment: | N | | |
| Township: | 7 | Section: | 35 |
| Range: | 35 |
Location |
| Address: | 934 GRANDVIEW AVE WA 99324 | Mapsco: | |
| Neighborhood: | A+ Rural/City Inf | Map ID: | |
| Neighborhood CD: | 113212 |
Owner |
| Name: | WYMETALEK JULIE J & KEITH A | Owner ID: | 70409 |
| Mailing Address: | 934 GRANDVIEW AVE COLLEGE PLACE, WA 99324 | % Ownership: | 100.0000000000% |
| | | Exemptions: | |
Taxes and Assessment Details
Property Tax Information as of
02/21/2026
Click on "Statement Details" to expand or collapse a tax statement.
* Please enter a valid date ** Please enter a valid date *
Statement Details |
| | TOTAL: | $0.00 | $0.00 | $0.00 | $0.00 | $0.00 | $0.00 |
|
| | $0.00 | $0.00 | $0.00 | $0.00 | $0.00 | $0.00 |
Values
| (+) Improvement Homesite Value: | + | $0 | |
| (+) Improvement Non-Homesite Value: | + | $450,550 | |
| (+) Land Homesite Value: | + | $0 | |
| (+) Land Non-Homesite Value: | + | $76,320 | |
| (+) Curr Use (HS): | + | $0 | $0 |
| (+) Curr Use (NHS): | + | $0 | $0 |
| | | -------------------------- | |
| (=) Market Value: | = | $526,870 | |
| (–) Productivity Loss: | – | $0 | |
| | | -------------------------- | |
| (=) Subtotal: | = | $526,870 | |
| (+) Senior Appraised Value: | + | $0 | |
| (+) Non-Senior Appraised Value: | + | $526,870 | |
| | | -------------------------- | |
| (=) Total Appraised Value: | = | $526,870 | |
| (–) Senior Exemption Loss: | – | $0 | |
| (–) Exemption Loss: | – | $0 | |
| | | -------------------------- | |
| (=) Taxable Value: | = | $526,870 | |
Taxing Jurisdiction
| Owner: | WYMETALEK JULIE J & KEITH A | | |
| % Ownership: | 100.0000000000% | | |
| Total Value: | $526,870 | | |
| Tax Area: | 311 - 250-4 |
| CERFD | CURRENT EXPENSE REFUND 010 | 0.0000000000 | $526,870 | $526,870 | $0.00 | | |
| CURREXP | CURRENT EXPENSE 010 | 1.0175366760 | $526,870 | $526,870 | $536.11 | | |
| HUMNSERV | HUMAN SERVICES 119 | 0.0250000000 | $526,870 | $526,870 | $13.17 | | |
| SLDREL | SOLDIERS RELIEF 121 | 0.0155990005 | $526,870 | $526,870 | $8.22 | | |
| EMERGSER | EMS 147 | 0.3792580840 | $526,870 | $526,870 | $199.82 | | |
| EMSRFD | EMS REFUND 147 | 0.0000000000 | $526,870 | $526,870 | $0.00 | | |
| FD4EXP | FD #4 EXPENSE 686 | 0.8836993059 | $526,870 | $526,870 | $465.59 | | |
| RLBRFD | RURAL LIBRARY REFUND 623 | 0.0000000000 | $526,870 | $526,870 | $0.00 | | |
| RURALLIB | RURAL LIBRARY 623 | 0.3710609029 | $526,870 | $526,870 | $195.50 | | |
| PORTRFD | PORT REFUND 640 | 0.0000000000 | $526,870 | $526,870 | $0.00 | | |
| PORTWWGEN | PORT OF WW 640 | 0.2460186015 | $526,870 | $526,870 | $129.62 | | |
| SD250BOND | SD #250 BOND 773 | 1.4560608159 | $526,870 | $526,870 | $767.15 | | |
| SD250GEN | SD #250 GENERAL 770 | 2.3880724087 | $526,870 | $526,870 | $1,258.20 | | |
| ST2 | STATE SCHOOL PART 2 600 | 0.8131451643 | $526,870 | $526,870 | $428.42 | | |
| STATESCHL | STATE SCHOOL 600 | 1.5158548041 | $526,870 | $526,870 | $798.66 | | |
| STREFUND | STATE REFUND LEVY 603 | 0.0000000000 | $526,870 | $526,870 | $0.00 | | |
| COROAD | COUNTY ROAD 115 | 1.6549953990 | $526,870 | $526,870 | $871.97 | | |
| CRPRD | COUNTY ROAD REFUND 115 | 0.0000000000 | $526,870 | $526,870 | $0.00 | | |
| | Total Tax Rate: | 10.7663011628 | | | | | |
| | | | | Taxes w/Current Exemptions: | $5,672.43 | | |
| | | | | Taxes w/o Exemptions: | $5,672.43 | | |
Improvement / Building
| Improvement #1: | RESIDENTIAL | State Code: | 11 | 1456.0 sqft | Value: | $450,550 |
| Exterior Wall: | STUCCO | Foundation: | SLAB FOUNDATION | | Heating/Cooling: | BASEBOARD ELECTRIC | Number of Bathrooms: | 2 | | Number of Bedrooms: | 3 | Plumbing: | 11 | | Roof Covering: | COMP SHINGLE |   |   |
|
| | Type | Description | Class CD | Sub Class CD | Year Built | Area |
| | MA | Main Area | 1 | 40 | 1960 | 1456.0 |
| | SI1 | SITE IMPROVEMENT | 1 | 40 | 1960 | 4.0 |
| | ATG | Attached Garage | 1 | 40 | 1960 | 552.0 |
| | S1F | Single One Story Fireplace | 1 | 40 | 1960 | 1.0 |
Sketch
Property Image
Land
| 1 | RES 1 | Converted: Residential | 0.3984 | 17354.00 | 0.00 | 0.00 | 1.00 | $76,320 | $0 |
Roll Value History
| 2026 | N/A | N/A | N/A | N/A | N/A |
| 2025 | $421,260 | $133,970 | $0 | $555,230 | $555,230 |
| 2024 | $495,600 | $76,320 | $0 | $571,920 | $571,920 |
| 2023 | $450,550 | $76,320 | $0 | $526,870 | $526,870 |
| 2022 | $302,240 | $76,320 | $0 | $378,560 | $378,560 |
| 2021 | $181,010 | $76,320 | $0 | $257,330 | $257,330 |
| 2020 | $150,840 | $76,320 | $0 | $227,160 | $227,160 |
| 2019 | $163,760 | $63,400 | $0 | $227,160 | $227,160 |
| 2018 | $155,960 | $63,400 | $0 | $219,360 | $219,360 |
| 2017 | $148,530 | $63,400 | $0 | $211,930 | $211,930 |
| 2016 | $141,460 | $63,400 | $0 | $204,860 | $204,860 |
| 2015 | $128,600 | $63,400 | $0 | $192,000 | $192,000 |
| 2014 | $128,600 | $63,400 | $0 | $192,000 | $192,000 |
| 2013 | $128,600 | $63,400 | $0 | $192,000 | $192,000 |
| 2012 | $128,600 | $63,400 | $0 | $0 | $0 |
| 2011 | $128,600 | $67,500 | $0 | $0 | $0 |
| 2010 | $128,600 | $67,500 | $0 | $0 | $0 |
| 2009 | $128,600 | $67,500 | $0 | $0 | $0 |
| 2008 | $75,000 | $35,600 | $0 | $0 | $0 |
| 2007 | $75,000 | $35,600 | $0 | $0 | $0 |
Deed and Sales History
| 1 | 09/27/2021 | SWD | STATUTORY WARRANTY DEED | ANDERSON CLARENCE G & JUDY P | WYMETALEK JULIE J & KEITH A | | 2-PARCELS | $615,000.00 | 142558 | 2021-11798 |
|   | |
| 2 | 07/31/2006 | WARRANTY D | WARRANTY DEED | OELLRICH JOHN G | ANDERSON CLARENCE G & JUDY P | | | $239,000.00 | 110844 | 2006-08975 |
|   | |
Payout Agreement
| No payout information available.. |