Property
Account |
| Property ID: | 16348 | Abbreviated Legal Description: | WEDGEWOOD ADDITION LOT 1 |
| Parcel Number: | 360732790001 | Agent Code: | |
| Type: | Real | | |
| Tax Area: | 6 - OL-140-F-FB | Land Use Code | 11 |
| Open Space: | N | DFL | N |
| Historic Property: | N | Remodel Property: | N |
| Multi-Family Redevelopment: | N | | |
| Township: | 7 | Section: | 32 |
| Range: | 36 |
Location |
| Address: | 31 WEDGEWOOD RD WA 99362 | Mapsco: | |
| Neighborhood: | G Res Rural/City Inf | Map ID: | |
| Neighborhood CD: | 614012 |
Owner |
| Name: | RICHARD JULIE A & RICKY | Owner ID: | 72085 |
| Mailing Address: | 31 WEDGEWOOD RD WALLA WALLA, WA 99362 | % Ownership: | 100.0000000000% |
| | | Exemptions: | |
Taxes and Assessment Details
Values
| (+) Improvement Homesite Value: | + | $0 | |
| (+) Improvement Non-Homesite Value: | + | $542,830 | |
| (+) Land Homesite Value: | + | $0 | |
| (+) Land Non-Homesite Value: | + | $95,000 | |
| (+) Curr Use (HS): | + | $0 | $0 |
| (+) Curr Use (NHS): | + | $0 | $0 |
| | | -------------------------- | |
| (=) Market Value: | = | $637,830 | |
| (–) Productivity Loss: | – | $0 | |
| | | -------------------------- | |
| (=) Subtotal: | = | $637,830 | |
| (+) Senior Appraised Value: | + | $0 | |
| (+) Non-Senior Appraised Value: | + | $637,830 | |
| | | -------------------------- | |
| (=) Total Appraised Value: | = | $637,830 | |
| (–) Senior Exemption Loss: | – | $0 | |
| (–) Exemption Loss: | – | $0 | |
| | | -------------------------- | |
| (=) Taxable Value: | = | $637,830 | |
Taxing Jurisdiction
| Owner: | RICHARD JULIE A & RICKY | | |
| % Ownership: | 100.0000000000% | | |
| Total Value: | $637,830 | | |
| Tax Area: | 6 - OL-140-F-FB |
| CERFD | CURRENT EXPENSE REFUND 010 | 0.0000000000 | $637,830 | $637,830 | $0.00 | | |
| CURREXP | CURRENT EXPENSE 010 | 1.0175366760 | $637,830 | $637,830 | $649.02 | | |
| HUMNSERV | HUMAN SERVICES 119 | 0.0250000000 | $637,830 | $637,830 | $15.95 | | |
| SLDREL | SOLDIERS RELIEF 121 | 0.0155990005 | $637,830 | $637,830 | $9.95 | | |
| EMERGSER | EMS 147 | 0.3792580840 | $637,830 | $637,830 | $241.90 | | |
| EMSRFD | EMS REFUND 147 | 0.0000000000 | $637,830 | $637,830 | $0.00 | | |
| PORTRFD | PORT REFUND 640 | 0.0000000000 | $637,830 | $637,830 | $0.00 | | |
| PORTWWGEN | PORT OF WW 640 | 0.2460186015 | $637,830 | $637,830 | $156.92 | | |
| SD140BOND | SD #140 BOND 764 | 0.8342371393 | $637,830 | $637,830 | $532.10 | | |
| SD140GEN | SD #140 GENERAL 760 | 2.0646500647 | $637,830 | $637,830 | $1,316.90 | | |
| ST2 | STATE SCHOOL PART 2 600 | 0.8131451643 | $637,830 | $637,830 | $518.65 | | |
| STATESCHL | STATE SCHOOL 600 | 1.5158548041 | $637,830 | $637,830 | $966.86 | | |
| STREFUND | STATE REFUND LEVY 603 | 0.0000000000 | $637,830 | $637,830 | $0.00 | | |
| CWWBOND | C OF WW BOND 643 | 0.2760494372 | $637,830 | $637,830 | $176.07 | | |
| CWWGEN | CITY OF WW 631 | 1.6100204973 | $637,830 | $637,830 | $1,026.92 | | |
| CWWRFD | CITY OF WALLA WALLA REFUND 631 | 0.0000000000 | $637,830 | $637,830 | $0.00 | | |
| | Total Tax Rate: | 8.7973694689 | | | | | |
| | | | | Taxes w/Current Exemptions: | $5,611.24 | | |
| | | | | Taxes w/o Exemptions: | $5,611.24 | | |
Improvement / Building
| Improvement #1: | RESIDENTIAL | State Code: | 11 | 2355.0 sqft | Value: | $542,830 |
| Exterior Wall: | SIDING | Heating/Cooling: | WARM & COOLED AIR | | Number of Bathrooms: | 3 | Number of Bedrooms: | 4 | | Plumbing: | 12 | Roof Covering: | COMP SHINGLE |
|
| | Type | Description | Class CD | Sub Class CD | Year Built | Area |
| | MA | Main Area | 1 | 40 | 2006 | 2355.0 |
| | SI1 | SITE IMPROVEMENT | 1 | 40 | 2006 | 3.5 |
| | ATG | Attached Garage | 1 | 40 | 2006 | 667.0 |
| | PRC | PORCH W STEPS, ROOF,CEILED | 1 | 40 | 2006 | 75.0 |
| | RPC | OPEN PORCH W/ROOF , CEILED | 1 | 40 | 2006 | 108.0 |
| | GFP | GAS FIREPLACE | 1 | 40 | 2006 | 1.0 |
Sketch
Property Image
Land
| 1 | RES 1 | Converted: Residential | 0.3259 | 14195.00 | 0.00 | 0.00 | 1.00 | $95,000 | $0 |
Roll Value History
| 2026 | N/A | N/A | N/A | N/A | N/A |
| 2025 | $542,910 | $150,000 | $0 | $692,910 | $692,910 |
| 2024 | $597,120 | $95,000 | $0 | $692,120 | $692,120 |
| 2023 | $542,830 | $95,000 | $0 | $637,830 | $637,830 |
| 2022 | $493,480 | $75,000 | $0 | $568,480 | $568,480 |
| 2021 | $365,540 | $75,000 | $0 | $440,540 | $440,540 |
| 2020 | $304,620 | $75,000 | $0 | $379,620 | $379,620 |
| 2019 | $304,620 | $75,000 | $0 | $379,620 | $379,620 |
| 2018 | $291,970 | $65,000 | $0 | $356,970 | $356,970 |
| 2017 | $291,970 | $65,000 | $0 | $356,970 | $356,970 |
| 2016 | $265,430 | $65,000 | $0 | $330,430 | $330,430 |
| 2015 | $265,430 | $65,000 | $0 | $330,430 | $330,430 |
| 2014 | $241,300 | $65,000 | $0 | $306,300 | $306,300 |
| 2013 | $241,300 | $65,000 | $0 | $306,300 | $306,300 |
| 2012 | $232,500 | $65,000 | $0 | $0 | $0 |
| 2011 | $232,500 | $65,000 | $0 | $0 | $0 |
| 2010 | $232,500 | $65,000 | $0 | $0 | $0 |
| 2009 | $265,600 | $65,000 | $0 | $0 | $0 |
| 2008 | $265,600 | $65,000 | $0 | $0 | $0 |
| 2007 | $267,500 | $45,000 | $0 | $0 | $0 |
Deed and Sales History
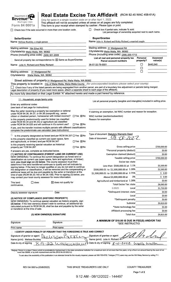
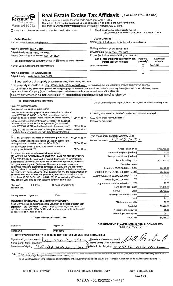
| 1 | 08/12/2022 | SWD | STATUTORY WARRANTY DEED | BUCKLEY MELISSA | RICHARD JULIE A & RICKY | | | $700,000.00 | 144497 | 2022-06762 |
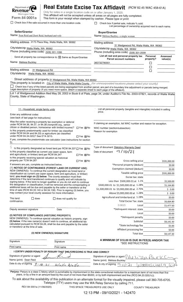
| 2 | 09/10/2021 | SWD | STATUTORY WARRANTY DEED | REID SEAN & DERRI | BUCKLEY MELISSA | | | $591,000.00 | 142470 | 2021-11144 |
| 3 | 11/04/2015 | SWD | STATUTORY WARRANTY DEED | SPILLANE KATHLEEN M | REID SEAN & DERRI | | | $369,000.00 | 129124 | 2015-09591 |
| 4 | 07/26/2006 | WARRANTY D | WARRANTY DEED | PAC SKY INC | SPILLANE, KATHLEEN M | | | $331,500.00 | 110810 | 2006-08772 |
Payout Agreement
| No payout information available.. |