Property
Account |
| Property ID: | 16319 | Abbreviated Legal Description: | SCENIC VIEW LOT 4 BLK 8 |
| Parcel Number: | 350736580804 | Agent Code: | |
| Type: | Real | | |
| Tax Area: | 75 - CP 250 | Land Use Code | 11 |
| Open Space: | N | DFL | N |
| Historic Property: | N | Remodel Property: | N |
| Multi-Family Redevelopment: | N | | |
| Township: | 7 | Section: | 36 |
| Range: | 35 |
Location |
| Address: | 418 SE MOUNTAIN VIEW DR WA 99324 | Mapsco: | |
| Neighborhood: | A SFR | Map ID: | |
| Neighborhood CD: | 113011 |
Owner |
| Name: | ARMIJO TONY D & RHONDA K | Owner ID: | 70664 |
| Mailing Address: | 418 SE MOUNTAIN VIEW DR COLLEGE PLACE, WA 99324 | % Ownership: | 100.0000000000% |
| | | Exemptions: | |
Taxes and Assessment Details
Property Tax Information as of
02/21/2026
Click on "Statement Details" to expand or collapse a tax statement.
* Please enter a valid date ** Please enter a valid date *
Statement Details |
| | TOTAL: | $0.00 | $0.00 | $0.00 | $0.00 | $0.00 | $0.00 |
|
| | $0.00 | $0.00 | $0.00 | $0.00 | $0.00 | $0.00 |
Values
| (+) Improvement Homesite Value: | + | $0 | |
| (+) Improvement Non-Homesite Value: | + | $301,000 | |
| (+) Land Homesite Value: | + | $0 | |
| (+) Land Non-Homesite Value: | + | $40,500 | |
| (+) Curr Use (HS): | + | $0 | $0 |
| (+) Curr Use (NHS): | + | $0 | $0 |
| | | -------------------------- | |
| (=) Market Value: | = | $341,500 | |
| (–) Productivity Loss: | – | $0 | |
| | | -------------------------- | |
| (=) Subtotal: | = | $341,500 | |
| (+) Senior Appraised Value: | + | $0 | |
| (+) Non-Senior Appraised Value: | + | $341,500 | |
| | | -------------------------- | |
| (=) Total Appraised Value: | = | $341,500 | |
| (–) Senior Exemption Loss: | – | $0 | |
| (–) Exemption Loss: | – | $0 | |
| | | -------------------------- | |
| (=) Taxable Value: | = | $341,500 | |
Taxing Jurisdiction
| Owner: | ARMIJO TONY D & RHONDA K | | |
| % Ownership: | 100.0000000000% | | |
| Total Value: | $341,500 | | |
| Tax Area: | 75 - CP 250 |
| CERFD | CURRENT EXPENSE REFUND 010 | 0.0000000000 | $341,500 | $341,500 | $0.00 | | |
| CURREXP | CURRENT EXPENSE 010 | 1.0175366760 | $341,500 | $341,500 | $347.49 | | |
| HUMNSERV | HUMAN SERVICES 119 | 0.0250000000 | $341,500 | $341,500 | $8.54 | | |
| SLDREL | SOLDIERS RELIEF 121 | 0.0155990005 | $341,500 | $341,500 | $5.33 | | |
| COLLPLBOND | C OF CP BOND 644 | 0.4374241808 | $341,500 | $341,500 | $149.38 | | |
| COLLPLGEN | CITY OF CP 632 | 1.4453819216 | $341,500 | $341,500 | $493.60 | | |
| EMERGSER | EMS 147 | 0.3792580840 | $341,500 | $341,500 | $129.52 | | |
| EMSRFD | EMS REFUND 147 | 0.0000000000 | $341,500 | $341,500 | $0.00 | | |
| RURALLIB | RURAL LIBRARY 623 | 0.3710609029 | $341,500 | $341,500 | $126.72 | | |
| PORTRFD | PORT REFUND 640 | 0.0000000000 | $341,500 | $341,500 | $0.00 | | |
| PORTWWGEN | PORT OF WW 640 | 0.2460186015 | $341,500 | $341,500 | $84.02 | | |
| SD250BOND | SD #250 BOND 773 | 1.4560608159 | $341,500 | $341,500 | $497.24 | | |
| SD250GEN | SD #250 GENERAL 770 | 2.3880724087 | $341,500 | $341,500 | $815.53 | | |
| ST2 | STATE SCHOOL PART 2 600 | 0.8131451643 | $341,500 | $341,500 | $277.69 | | |
| STATESCHL | STATE SCHOOL 600 | 1.5158548041 | $341,500 | $341,500 | $517.66 | | |
| STREFUND | STATE REFUND LEVY 603 | 0.0000000000 | $341,500 | $341,500 | $0.00 | | |
| | Total Tax Rate: | 10.1104125603 | | | | | |
| | | | | Taxes w/Current Exemptions: | $3,452.72 | | |
| | | | | Taxes w/o Exemptions: | $3,452.72 | | |
Improvement / Building
| Improvement #1: | RESIDENTIAL | State Code: | 11 | 1424.0 sqft | Value: | $301,000 |
| Exterior Wall: | MASONRY VENEER | Foundation: | SLAB FOUNDATION | | Heating/Cooling: | BASEBOARD ELECTRIC | Number of Bathrooms: | 1.5 | | Number of Bedrooms: | 3 | Plumbing: | 8 | | Roof Covering: | BUILT-UP ROCK |   |   |
|
| | Type | Description | Class CD | Sub Class CD | Year Built | Area |
| | MA | Main Area | 1 | 30 | 1960 | 1424.0 |
| | SI1 | SITE IMPROVEMENT | 1 | 30 | 1960 | 1.0 |
| | DTG | Detached Garage | 1 | 30 | 1960 | 240.0 |
| | RPO | OPEN PORCH W/ROOF | 1 | 30 | 1960 | 16.0 |
Sketch
Property Image
Land
| 1 | RES 1 | Converted: Residential | 0.1377 | 6000.00 | 0.00 | 0.00 | 1.00 | $40,500 | $0 |
Roll Value History
| 2026 | N/A | N/A | N/A | N/A | N/A |
| 2025 | $270,900 | $60,000 | $0 | $330,900 | $330,900 |
| 2024 | $301,000 | $40,500 | $0 | $341,500 | $341,500 |
| 2023 | $301,000 | $40,500 | $0 | $341,500 | $341,500 |
| 2022 | $301,000 | $40,500 | $0 | $341,500 | $341,500 |
| 2021 | $222,960 | $40,500 | $0 | $263,460 | $263,460 |
| 2020 | $159,260 | $40,500 | $0 | $199,760 | $199,760 |
| 2019 | $163,760 | $36,000 | $0 | $199,760 | $199,760 |
| 2018 | $116,970 | $36,000 | $0 | $152,970 | $152,970 |
| 2017 | $113,570 | $36,000 | $0 | $149,570 | $149,570 |
| 2016 | $98,750 | $36,000 | $0 | $134,750 | $134,750 |
| 2015 | $89,780 | $36,000 | $0 | $125,780 | $125,780 |
| 2014 | $94,500 | $36,000 | $0 | $130,500 | $130,500 |
| 2013 | $94,500 | $36,000 | $0 | $130,500 | $130,500 |
| 2012 | $94,500 | $36,000 | $0 | $0 | $0 |
| 2011 | $104,300 | $36,000 | $0 | $0 | $0 |
| 2010 | $104,300 | $36,000 | $0 | $0 | $0 |
| 2009 | $119,900 | $36,000 | $0 | $0 | $0 |
| 2008 | $66,900 | $18,000 | $0 | $0 | $0 |
| 2007 | $66,900 | $18,000 | $0 | $0 | $0 |
Deed and Sales History
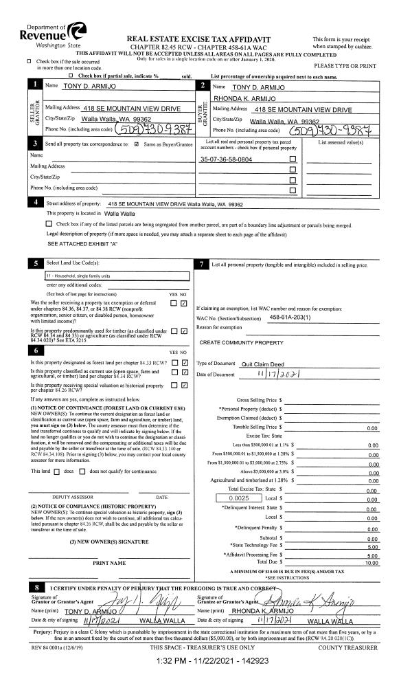
| 1 | 11/22/2021 | QCD | QUIT CLAIM DEED | ARMIJO TONY D | ARMIJO TONY D & RHONDA K | | | $0.00 | 142923 | 2021-13831 |
| 2 | 10/29/2012 | QCD | QUIT CLAIM DEED | LYDEEN, TAMMY S | ARMIJO, TONY D | | | $0.00 | 122898 | 2012-09568 |
| 3 | 10/26/2012 | WARRANTY D | WARRANTY DEED | ARMIJO, TAMMY S (LYDEEN) | ARMIJO, TONY D | | | | 0 | CC #12-3-00143-4 |
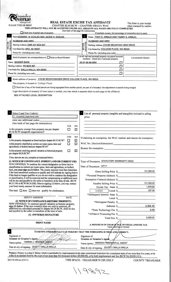
| 4 | 03/17/2011 | WARRANTY D | WARRANTY DEED | ECKLES, EDWARD M & JACKIE H | ARMIJO, TONY D & TAMMY S | | | $131,000.00 | 119892 | 2011-02345 |
| 5 | 07/27/2006 | WARRANTY D | WARRANTY DEED | WAGGONER, LEROY D & JUNE | ECKLES, EDWARD M & JACKIE H | | | $152,250.00 | 110811 | 2006-08807 |
| 6 | 08/11/1998 | WARRANTY D | WARRANTY DEED | | | | | $77,500.00 | 91025 | 2719-809122 |
Payout Agreement
| No payout information available.. |