Property
Account |
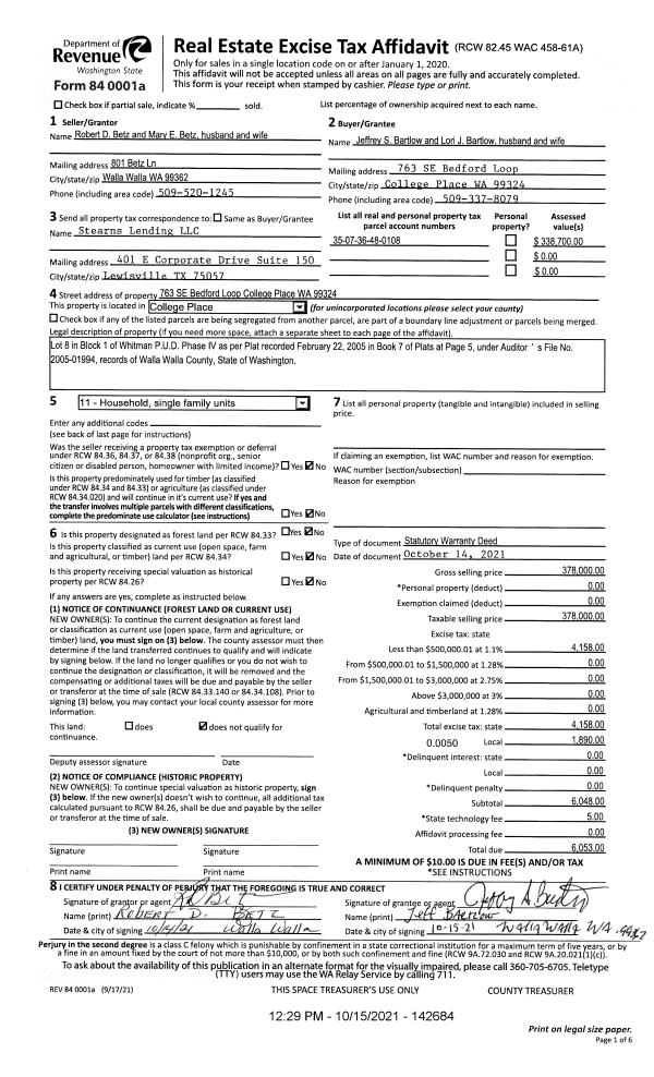
| Property ID: | 16317 | Abbreviated Legal Description: | WHITMAN P.U.D. PHASE IV LOT 8 BLOCK 1 |
| Parcel Number: | 350736480108 | Agent Code: | |
| Type: | Real | | |
| Tax Area: | 75 - CP 250 | Land Use Code | 11 |
| Open Space: | N | DFL | N |
| Historic Property: | N | Remodel Property: | N |
| Multi-Family Redevelopment: | N | | |
| Township: | | Section: | |
| Range: | |
Location |
| Address: | 763 SE BEDFORD LOOP WA 99324 | Mapsco: | |
| Neighborhood: | G SFR | Map ID: | |
| Neighborhood CD: | 114011 |
Owner |
| Name: | BARTLOW JEFFREY S & LORI J | Owner ID: | 70439 |
| Mailing Address: | 763 SE BEDFORD LOOP COLLEGE PLACE, WA 99324 | % Ownership: | 100.0000000000% |
| | | Exemptions: | |
Taxes and Assessment Details
Property Tax Information as of
02/21/2026
Click on "Statement Details" to expand or collapse a tax statement.
* Please enter a valid date ** Please enter a valid date *
Statement Details |
| | TOTAL: | $0.00 | $0.00 | $0.00 | $0.00 | $0.00 | $0.00 |
|
| | $0.00 | $0.00 | $0.00 | $0.00 | $0.00 | $0.00 |
Values
| (+) Improvement Homesite Value: | + | $0 | |
| (+) Improvement Non-Homesite Value: | + | $324,450 | |
| (+) Land Homesite Value: | + | $0 | |
| (+) Land Non-Homesite Value: | + | $70,000 | |
| (+) Curr Use (HS): | + | $0 | $0 |
| (+) Curr Use (NHS): | + | $0 | $0 |
| | | -------------------------- | |
| (=) Market Value: | = | $394,450 | |
| (–) Productivity Loss: | – | $0 | |
| | | -------------------------- | |
| (=) Subtotal: | = | $394,450 | |
| (+) Senior Appraised Value: | + | $0 | |
| (+) Non-Senior Appraised Value: | + | $394,450 | |
| | | -------------------------- | |
| (=) Total Appraised Value: | = | $394,450 | |
| (–) Senior Exemption Loss: | – | $0 | |
| (–) Exemption Loss: | – | $0 | |
| | | -------------------------- | |
| (=) Taxable Value: | = | $394,450 | |
Taxing Jurisdiction
| Owner: | BARTLOW JEFFREY S & LORI J | | |
| % Ownership: | 100.0000000000% | | |
| Total Value: | $394,450 | | |
| Tax Area: | 75 - CP 250 |
| CERFD | CURRENT EXPENSE REFUND 010 | 0.0000000000 | $394,450 | $394,450 | $0.00 | | |
| CURREXP | CURRENT EXPENSE 010 | 1.0175366760 | $394,450 | $394,450 | $401.37 | | |
| HUMNSERV | HUMAN SERVICES 119 | 0.0250000000 | $394,450 | $394,450 | $9.86 | | |
| SLDREL | SOLDIERS RELIEF 121 | 0.0155990005 | $394,450 | $394,450 | $6.15 | | |
| COLLPLBOND | C OF CP BOND 644 | 0.4374241808 | $394,450 | $394,450 | $172.54 | | |
| COLLPLGEN | CITY OF CP 632 | 1.4453819216 | $394,450 | $394,450 | $570.13 | | |
| EMERGSER | EMS 147 | 0.3792580840 | $394,450 | $394,450 | $149.60 | | |
| EMSRFD | EMS REFUND 147 | 0.0000000000 | $394,450 | $394,450 | $0.00 | | |
| RURALLIB | RURAL LIBRARY 623 | 0.3710609029 | $394,450 | $394,450 | $146.36 | | |
| PORTRFD | PORT REFUND 640 | 0.0000000000 | $394,450 | $394,450 | $0.00 | | |
| PORTWWGEN | PORT OF WW 640 | 0.2460186015 | $394,450 | $394,450 | $97.04 | | |
| SD250BOND | SD #250 BOND 773 | 1.4560608159 | $394,450 | $394,450 | $574.34 | | |
| SD250GEN | SD #250 GENERAL 770 | 2.3880724087 | $394,450 | $394,450 | $941.98 | | |
| ST2 | STATE SCHOOL PART 2 600 | 0.8131451643 | $394,450 | $394,450 | $320.75 | | |
| STATESCHL | STATE SCHOOL 600 | 1.5158548041 | $394,450 | $394,450 | $597.93 | | |
| STREFUND | STATE REFUND LEVY 603 | 0.0000000000 | $394,450 | $394,450 | $0.00 | | |
| | Total Tax Rate: | 10.1104125603 | | | | | |
| | | | | Taxes w/Current Exemptions: | $3,988.05 | | |
| | | | | Taxes w/o Exemptions: | $3,988.05 | | |
Improvement / Building
| Improvement #1: | RESIDENTIAL | State Code: | 11 | 1645.0 sqft | Value: | $324,450 |
| Exterior Wall: | HARDBOARD | Heating/Cooling: | WARM & COOLED AIR | | Number of Bathrooms: | 2 | Number of Bedrooms: | 3 | | Plumbing: | 11 | Roof Covering: | COMP SHINGLE |
|
| | Type | Description | Class CD | Sub Class CD | Year Built | Area |
| | MA | Main Area | 1 | 35 | 2006 | 1645.0 |
| | SI1 | SITE IMPROVEMENT | 1 | 35 | 2006 | 2.0 |
| | ATG | Attached Garage | 1 | 35 | 2006 | 462.0 |
| | RPC | OPEN PORCH W/ROOF , CEILED | 1 | 35 | 2006 | 36.0 |
| | GFP | GAS FIREPLACE | 1 | 35 | 2006 | 1.0 |
Sketch
Property Image
Land
| 1 | RES 1 | Converted: Residential | 0.1350 | 5881.00 | 0.00 | 0.00 | 1.00 | $70,000 | $0 |
Roll Value History
| 2026 | N/A | N/A | N/A | N/A | N/A |
| 2025 | $243,340 | $130,000 | $0 | $373,340 | $373,340 |
| 2024 | $324,450 | $70,000 | $0 | $394,450 | $394,450 |
| 2023 | $324,450 | $70,000 | $0 | $394,450 | $394,450 |
| 2022 | $309,000 | $70,000 | $0 | $379,000 | $379,000 |
| 2021 | $268,700 | $70,000 | $0 | $338,700 | $338,700 |
| 2020 | $200,520 | $70,000 | $0 | $270,520 | $270,520 |
| 2019 | $235,520 | $35,000 | $0 | $270,520 | $270,520 |
| 2018 | $196,270 | $35,000 | $0 | $231,270 | $231,270 |
| 2017 | $170,670 | $35,000 | $0 | $205,670 | $205,670 |
| 2016 | $162,540 | $35,000 | $0 | $197,540 | $197,540 |
| 2015 | $162,540 | $35,000 | $0 | $197,540 | $197,540 |
| 2014 | $180,600 | $35,000 | $0 | $215,600 | $215,600 |
| 2013 | $180,600 | $35,000 | $0 | $215,600 | $215,600 |
| 2012 | $157,300 | $65,000 | $0 | $0 | $0 |
| 2011 | $157,300 | $65,000 | $0 | $0 | $0 |
| 2010 | $157,300 | $65,000 | $0 | $0 | $0 |
| 2009 | $169,000 | $65,000 | $0 | $0 | $0 |
| 2008 | $182,200 | $30,000 | $0 | $0 | $0 |
| 2007 | $0 | $2,300 | $0 | $0 | $0 |
Deed and Sales History
| 1 | 10/15/2021 | SWD | STATUTORY WARRANTY DEED | BETZ ROBERT D & MARY E | BARTLOW JEFFREY S & LORI J | | | $378,000.00 | 142684 | 2021-12558 |
| 2 | 12/12/2006 | WARRANTY D | WARRANTY DEED | JEFF MOELLER CONSTRUCTION INC | BETZ, ROBERT D & MARY E | | | $213,000.00 | 111868 | 2006-14789 |
| 3 | 07/26/2006 | WARRANTY D | WARRANTY DEED | WHITMAN DEVELOPMENT CORP | JEFF MOELLER CONSTRUCTION INC | | | $160,000.00 | 110809 | 2006-08775 |
|   | |
Payout Agreement
| No payout information available.. |