Property
Account |
| Property ID: | 16314 | Abbreviated Legal Description: | 33-7-35 LOT 2B OF SHORT PLAT (PTN IN SW1/4SE1/4) |
| Parcel Number: | 350733430014 | Agent Code: | |
| Type: | Real | | |
| Tax Area: | 311 - 250-4 | Land Use Code | 11 |
| Open Space: | N | DFL | N |
| Historic Property: | N | Remodel Property: | N |
| Multi-Family Redevelopment: | N | | |
| Township: | 7 | Section: | 33 |
| Range: | 35 |
Location |
| Address: | 212 NARCISSA PL WA 99324 | Mapsco: | |
| Neighborhood: | VG SFR Rural/City Inf | Map ID: | |
| Neighborhood CD: | 115012 |
Owner |
| Name: | LEWIS DAVID ALAN | Owner ID: | 63905 |
| Mailing Address: | 212 NARCISSA PLACE WALLA WALLA, WA 99362 | % Ownership: | 100.0000000000% |
| | | Exemptions: | |
Taxes and Assessment Details
Property Tax Information as of
02/21/2026
Click on "Statement Details" to expand or collapse a tax statement.
* Please enter a valid date ** Please enter a valid date *
Statement Details |
| | TOTAL: | $0.00 | $0.00 | $0.00 | $0.00 | $0.00 | $0.00 |
|
| | $0.00 | $0.00 | $0.00 | $0.00 | $0.00 | $0.00 |
Values
| (+) Improvement Homesite Value: | + | $0 | |
| (+) Improvement Non-Homesite Value: | + | $484,370 | |
| (+) Land Homesite Value: | + | $0 | |
| (+) Land Non-Homesite Value: | + | $160,000 | |
| (+) Curr Use (HS): | + | $0 | $0 |
| (+) Curr Use (NHS): | + | $0 | $0 |
| | | -------------------------- | |
| (=) Market Value: | = | $644,370 | |
| (–) Productivity Loss: | – | $0 | |
| | | -------------------------- | |
| (=) Subtotal: | = | $644,370 | |
| (+) Senior Appraised Value: | + | $0 | |
| (+) Non-Senior Appraised Value: | + | $644,370 | |
| | | -------------------------- | |
| (=) Total Appraised Value: | = | $644,370 | |
| (–) Senior Exemption Loss: | – | $0 | |
| (–) Exemption Loss: | – | $0 | |
| | | -------------------------- | |
| (=) Taxable Value: | = | $644,370 | |
Taxing Jurisdiction
| Owner: | LEWIS DAVID ALAN | | |
| % Ownership: | 100.0000000000% | | |
| Total Value: | $644,370 | | |
| Tax Area: | 311 - 250-4 |
| CERFD | CURRENT EXPENSE REFUND 010 | 0.0000000000 | $644,370 | $644,370 | $0.00 | | |
| CURREXP | CURRENT EXPENSE 010 | 1.0175366760 | $644,370 | $644,370 | $655.67 | | |
| HUMNSERV | HUMAN SERVICES 119 | 0.0250000000 | $644,370 | $644,370 | $16.11 | | |
| SLDREL | SOLDIERS RELIEF 121 | 0.0155990005 | $644,370 | $644,370 | $10.05 | | |
| EMERGSER | EMS 147 | 0.3792580840 | $644,370 | $644,370 | $244.38 | | |
| EMSRFD | EMS REFUND 147 | 0.0000000000 | $644,370 | $644,370 | $0.00 | | |
| FD4EXP | FD #4 EXPENSE 686 | 0.8836993059 | $644,370 | $644,370 | $569.43 | | |
| RLBRFD | RURAL LIBRARY REFUND 623 | 0.0000000000 | $644,370 | $644,370 | $0.00 | | |
| RURALLIB | RURAL LIBRARY 623 | 0.3710609029 | $644,370 | $644,370 | $239.10 | | |
| PORTRFD | PORT REFUND 640 | 0.0000000000 | $644,370 | $644,370 | $0.00 | | |
| PORTWWGEN | PORT OF WW 640 | 0.2460186015 | $644,370 | $644,370 | $158.53 | | |
| SD250BOND | SD #250 BOND 773 | 1.4560608159 | $644,370 | $644,370 | $938.24 | | |
| SD250GEN | SD #250 GENERAL 770 | 2.3880724087 | $644,370 | $644,370 | $1,538.80 | | |
| ST2 | STATE SCHOOL PART 2 600 | 0.8131451643 | $644,370 | $644,370 | $523.97 | | |
| STATESCHL | STATE SCHOOL 600 | 1.5158548041 | $644,370 | $644,370 | $976.77 | | |
| STREFUND | STATE REFUND LEVY 603 | 0.0000000000 | $644,370 | $644,370 | $0.00 | | |
| COROAD | COUNTY ROAD 115 | 1.6549953990 | $644,370 | $644,370 | $1,066.43 | | |
| CRPRD | COUNTY ROAD REFUND 115 | 0.0000000000 | $644,370 | $644,370 | $0.00 | | |
| | Total Tax Rate: | 10.7663011628 | | | | | |
| | | | | Taxes w/Current Exemptions: | $6,937.48 | | |
| | | | | Taxes w/o Exemptions: | $6,937.48 | | |
Improvement / Building
| Improvement #1: | RESIDENTIAL | State Code: | 11 | 2490.0 sqft | Value: | $484,370 |
| Exterior Wall: | STUCCO | Heating/Cooling: | HEAT PUMP | | Number of Bathrooms: | 2.5 | Number of Bedrooms: | 3 | | Plumbing: | 15 | Roof Covering: | COMP SHINGLE |
|
| | Type | Description | Class CD | Sub Class CD | Year Built | Area |
| | MA | Main Area | 1 | 50 | 2007 | 2490.0 |
| | SI1 | SITE IMPROVEMENT | 1 | 50 | 2007 | 6.0 |
| | ATG | Attached Garage | 1 | 50 | 2007 | 1023.0 |
| | RPC | OPEN PORCH W/ROOF , CEILED | 1 | 50 | 2007 | 113.0 |
| | RPC | OPEN PORCH W/ROOF , CEILED | 1 | 50 | 2007 | 952.0 |
| | GFP | GAS FIREPLACE | 1 | 50 | 2007 | 1.0 |
Sketch
| No sketches available for this property. |
Property Image
Land
| 1 | RES 1 | Converted: Residential | 1.2000 | 52272.00 | 0.00 | 0.00 | 1.00 | $160,000 | $0 |
Roll Value History
| 2026 | N/A | N/A | N/A | N/A | N/A |
| 2025 | $508,590 | $175,000 | $0 | $683,590 | $683,590 |
| 2024 | $484,370 | $160,000 | $0 | $644,370 | $644,370 |
| 2023 | $484,370 | $160,000 | $0 | $644,370 | $644,370 |
| 2022 | $484,370 | $160,000 | $0 | $644,370 | $644,370 |
| 2021 | $484,370 | $160,000 | $0 | $644,370 | $644,370 |
| 2020 | $440,340 | $160,000 | $0 | $600,340 | $600,340 |
| 2019 | $490,340 | $110,000 | $0 | $600,340 | $600,340 |
| 2018 | $426,380 | $110,000 | $0 | $536,380 | $536,380 |
| 2017 | $355,320 | $110,000 | $0 | $465,320 | $465,320 |
| 2016 | $296,100 | $110,000 | $0 | $406,100 | $406,100 |
| 2015 | $296,100 | $110,000 | $0 | $406,100 | $406,100 |
| 2014 | $296,100 | $110,000 | $0 | $406,100 | $406,100 |
| 2013 | $296,100 | $110,000 | $0 | $406,100 | $406,100 |
| 2012 | $273,600 | $132,500 | $0 | $0 | $0 |
| 2011 | $273,600 | $132,500 | $0 | $0 | $0 |
| 2010 | $295,000 | $132,500 | $0 | $0 | $0 |
| 2009 | $386,100 | $132,500 | $0 | $0 | $0 |
| 2008 | $347,600 | $130,800 | $0 | $0 | $0 |
| 2007 | $0 | $2,800 | $0 | $0 | $0 |
Deed and Sales History
| 1 | 09/10/2018 | SWD | STATUTORY WARRANTY DEED | GRANT WILLIAM RANDALL | LEWIS DAVID ALAN | | | $635,000.00 | 135510 | 2018-07515 |
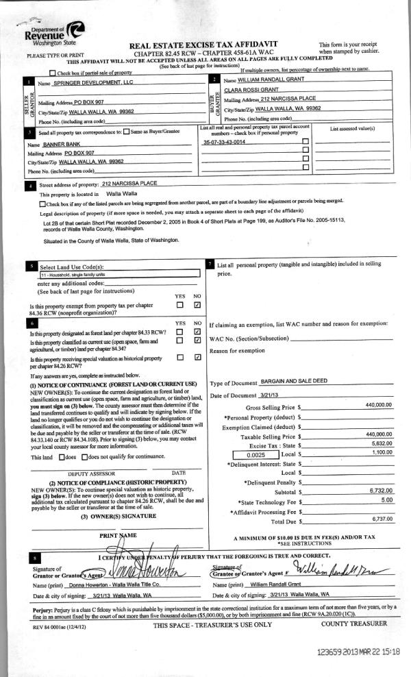
| 2 | 03/22/2013 | WARRANTY D | WARRANTY DEED | SPRINGER DEVELOPMENT LLC | GRANT, WILLIAM RANDALL | | | $440,000.00 | 123659 | 2013-02746 |
| 3 | 01/04/2013 | WARRANTY D | WARRANTY DEED | MUNSON, BRYAN J & ATER B | SPRINGER DEVELOPMENT LLC | | | $0.00 | 123287 | 2013-00110 |
| 4 | 08/07/2006 | WARRANTY D | WARRANTY DEED | LOCATI, MICHAEL F | MUNSON, BRYAN J & ATER B | | | $132,500.00 | 110896 | 2006-09298 |
Payout Agreement
| No payout information available.. |