Property
Account |
| Property ID: | 16288 | Abbreviated Legal Description: | ROBERTS TAX 6 LOT 8 BLK 11 |
| Parcel Number: | 360729871108 | Agent Code: | |
| Type: | Real | | |
| Tax Area: | 1 - OL-140-F | Land Use Code | 11 |
| Open Space: | N | DFL | N |
| Historic Property: | N | Remodel Property: | N |
| Multi-Family Redevelopment: | N | | |
| Township: | 7 | Section: | 29 |
| Range: | 36 |
Location |
| Address: | 428 S PARK ST WA 99362 | Mapsco: | |
| Neighborhood: | G-SFR | Map ID: | |
| Neighborhood CD: | 514011 |
Owner |
| Name: | TILZER ADELE | Owner ID: | 72826 |
| Mailing Address: | 428 S PARK ST WALLA WALLA, WA 99362 | % Ownership: | 100.0000000000% |
| | | Exemptions: | |
Taxes and Assessment Details
Values
| (+) Improvement Homesite Value: | + | $154,560 | |
| (+) Improvement Non-Homesite Value: | + | $0 | |
| (+) Land Homesite Value: | + | $47,310 | |
| (+) Land Non-Homesite Value: | + | $0 | |
| (+) Curr Use (HS): | + | $0 | $0 |
| (+) Curr Use (NHS): | + | $0 | $0 |
| | | -------------------------- | |
| (=) Market Value: | = | $201,870 | |
| (–) Productivity Loss: | – | $0 | |
| | | -------------------------- | |
| (=) Subtotal: | = | $201,870 | |
| (+) Senior Appraised Value: | + | $0 | |
| (+) Non-Senior Appraised Value: | + | $201,870 | |
| | | -------------------------- | |
| (=) Total Appraised Value: | = | $201,870 | |
| (–) Senior Exemption Loss: | – | $0 | |
| (–) Exemption Loss: | – | $0 | |
| | | -------------------------- | |
| (=) Taxable Value: | = | $201,870 | |
Taxing Jurisdiction
| Owner: | TILZER ADELE | | |
| % Ownership: | 100.0000000000% | | |
| Total Value: | $201,870 | | |
| Tax Area: | 1 - OL-140-F |
| CERFD | CURRENT EXPENSE REFUND 010 | 0.0000000000 | $201,870 | $201,870 | $0.00 | | |
| CURREXP | CURRENT EXPENSE 010 | 1.0175366760 | $201,870 | $201,870 | $205.41 | | |
| HUMNSERV | HUMAN SERVICES 119 | 0.0250000000 | $201,870 | $201,870 | $5.05 | | |
| SLDREL | SOLDIERS RELIEF 121 | 0.0155990005 | $201,870 | $201,870 | $3.15 | | |
| EMERGSER | EMS 147 | 0.3792580840 | $201,870 | $201,870 | $76.56 | | |
| EMSRFD | EMS REFUND 147 | 0.0000000000 | $201,870 | $201,870 | $0.00 | | |
| PORTRFD | PORT REFUND 640 | 0.0000000000 | $201,870 | $201,870 | $0.00 | | |
| PORTWWGEN | PORT OF WW 640 | 0.2460186015 | $201,870 | $201,870 | $49.66 | | |
| SD140BOND | SD #140 BOND 764 | 0.8342371393 | $201,870 | $201,870 | $168.41 | | |
| SD140GEN | SD #140 GENERAL 760 | 2.0646500647 | $201,870 | $201,870 | $416.79 | | |
| ST2 | STATE SCHOOL PART 2 600 | 0.8131451643 | $201,870 | $201,870 | $164.15 | | |
| STATESCHL | STATE SCHOOL 600 | 1.5158548041 | $201,870 | $201,870 | $306.01 | | |
| STREFUND | STATE REFUND LEVY 603 | 0.0000000000 | $201,870 | $201,870 | $0.00 | | |
| CWWBOND | C OF WW BOND 643 | 0.2760494372 | $201,870 | $201,870 | $55.73 | | |
| CWWGEN | CITY OF WW 631 | 1.6100204973 | $201,870 | $201,870 | $325.01 | | |
| CWWRFD | CITY OF WALLA WALLA REFUND 631 | 0.0000000000 | $201,870 | $201,870 | $0.00 | | |
| | Total Tax Rate: | 8.7973694689 | | | | | |
| | | | | Taxes w/Current Exemptions: | $1,775.93 | | |
| | | | | Taxes w/o Exemptions: | $1,775.93 | | |
Improvement / Building
| Improvement #1: | RESIDENTIAL | State Code: | 11 | 1426.0 sqft | Value: | $154,560 |
| Exterior Wall: | SHINGLE | Heating/Cooling: | FORCED AIR | | Number of Bathrooms: | 2 | Number of Bedrooms: | 4 | | Plumbing: | 10 | Roof Covering: | COMP SHINGLE |
|
| | Type | Description | Class CD | Sub Class CD | Year Built | Area |
| | MA | Main Area | 4 | 30 | 1896 | 1426.0 |
| | UPFL | Upper Floor (included in main area) | 4 | 30 | 1896 | 432.0 |
| | SI1 | SITE IMPROVEMENT | 4 | 30 | 1896 | 1.0 |
| | RCD | WOOD DECK W/ROOF, CEILED | 4 | 30 | 1896 | 66.0 |
| | RCD | WOOD DECK W/ROOF, CEILED | 4 | 30 | 1896 | 258.0 |
| | ATG | Attached Garage | 4 | 30 | 1896 | 292.0 |
Sketch
Property Image
Land
| 1 | RES 1 | Converted: Residential | 0.1498 | 6525.00 | 0.00 | 0.00 | 1.00 | $47,310 | $0 |
Roll Value History
| 2026 | N/A | N/A | N/A | N/A | N/A |
| 2025 | $169,900 | $71,780 | $0 | $241,680 | $241,680 |
| 2024 | $169,900 | $71,780 | $0 | $241,680 | $241,680 |
| 2023 | $154,560 | $47,310 | $0 | $201,870 | $201,870 |
| 2022 | $193,200 | $47,310 | $0 | $240,510 | $240,510 |
| 2021 | $175,640 | $47,310 | $0 | $222,950 | $222,950 |
| 2020 | $146,370 | $47,310 | $0 | $193,680 | $193,680 |
| 2019 | $146,370 | $47,310 | $0 | $193,680 | $0 |
| 2018 | $133,060 | $47,310 | $0 | $180,370 | $0 |
| 2017 | $95,850 | $29,400 | $0 | $125,250 | $0 |
| 2016 | $91,290 | $29,400 | $0 | $120,690 | $0 |
| 2015 | $86,940 | $29,400 | $0 | $116,340 | $0 |
| 2014 | $75,600 | $29,400 | $0 | $105,000 | $0 |
| 2013 | $75,600 | $29,400 | $0 | $105,000 | $0 |
| 2012 | $74,000 | $29,400 | $0 | $0 | $0 |
| 2011 | $74,000 | $29,400 | $0 | $0 | $0 |
| 2010 | $69,100 | $29,400 | $0 | $0 | $0 |
| 2009 | $80,000 | $29,400 | $0 | $0 | $0 |
| 2008 | $80,000 | $29,400 | $0 | $0 | $0 |
| 2007 | $80,000 | $29,400 | $0 | $0 | $0 |
Deed and Sales History
| 1 | 11/11/2022 | SWD | STATUTORY WARRANTY DEED | HARVEY JACOB TODD | TILZER ADELE | | | $206,000.00 | 145014 | 2022-09119 |
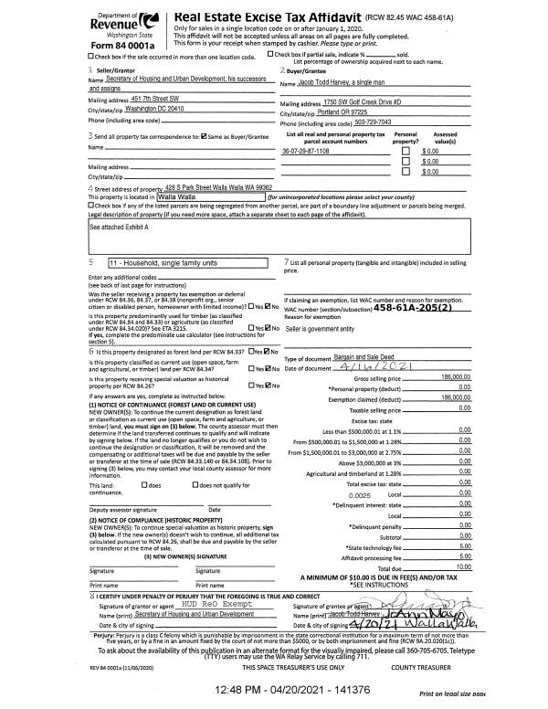
| 2 | 04/20/2021 | SWD | STATUTORY WARRANTY DEED | SECRETARY OF HOUSING AND URBAN DEVELOPMENT | HARVEY JACOB TODD | | | $186,000.00 | 141376 | 2021-04608 |
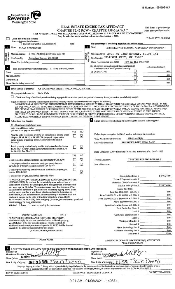
| 3 | 12/23/2020 | FORE | FORECLOSURE | SCOGGIN VELDA E | SECRETARY OF HOUSING AND URBAN DEVELOPMENT | | | $0.00 | 140674 | 2021-00545 |
| 4 | 09/20/2007 | QCD | QUIT CLAIM DEED | SCOGGIN, VELDA LEOTA ELIZABETH | SCOGGIN, VELDA E | | | | 113747 | 2007-11062 |
| 5 | 08/30/1982 | QCD | QUIT CLAIM DEED | | | | | $0.00 | 74590 | 1348-206175 |
Payout Agreement
| No payout information available.. |