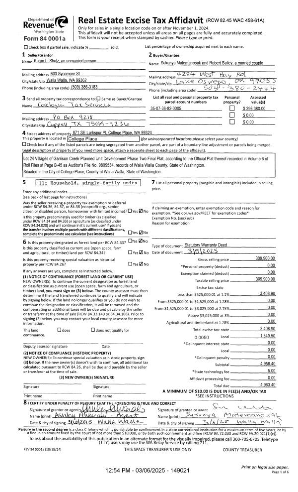
Property
Account |
| Property ID: | 16269 | Abbreviated Legal Description: | VILLAGES OF GARRISON CRK PUD PHASE 2 LOT 24 |
| Parcel Number: | 350736820005 | Agent Code: | |
| Type: | Real | | |
| Tax Area: | 77 - CP-250-F | Land Use Code | 11 |
| Open Space: | N | DFL | N |
| Historic Property: | N | Remodel Property: | N |
| Multi-Family Redevelopment: | N | | |
| Township: | 7 | Section: | 36 |
| Range: | 35 |
Location |
| Address: | 871 SE LARKSPUR PL WA 99324 | Mapsco: | |
| Neighborhood: | G Inferior SFR | Map ID: | |
| Neighborhood CD: | 114111 |
Owner |
| Name: | SHULTZ KARAN L | Owner ID: | 70355 |
| Mailing Address: | 871 SE LARKSPUR PL COLLEGE PLACE, WA 99324 | % Ownership: | 100.0000000000% |
| | | Exemptions: | |
Taxes and Assessment Details
Values
| (+) Improvement Homesite Value: | + | $189,110 | |
| (+) Improvement Non-Homesite Value: | + | $0 | |
| (+) Land Homesite Value: | + | $60,000 | |
| (+) Land Non-Homesite Value: | + | $0 | |
| (+) Curr Use (HS): | + | $0 | $0 |
| (+) Curr Use (NHS): | + | $0 | $0 |
| | | -------------------------- | |
| (=) Market Value: | = | $249,110 | |
| (–) Productivity Loss: | – | $0 | |
| | | -------------------------- | |
| (=) Subtotal: | = | $249,110 | |
| (+) Senior Appraised Value: | + | $0 | |
| (+) Non-Senior Appraised Value: | + | $249,110 | |
| | | -------------------------- | |
| (=) Total Appraised Value: | = | $249,110 | |
| (–) Senior Exemption Loss: | – | $0 | |
| (–) Exemption Loss: | – | $0 | |
| | | -------------------------- | |
| (=) Taxable Value: | = | $249,110 | |
Taxing Jurisdiction
| Owner: | SHULTZ KARAN L | | |
| % Ownership: | 100.0000000000% | | |
| Total Value: | $249,110 | | |
| Tax Area: | 77 - CP-250-F |
| CERFD | CURRENT EXPENSE REFUND 010 | 0.0000000000 | $249,110 | $249,110 | $0.00 | | |
| CURREXP | CURRENT EXPENSE 010 | 1.0175366760 | $249,110 | $249,110 | $253.48 | | |
| HUMNSERV | HUMAN SERVICES 119 | 0.0250000000 | $249,110 | $249,110 | $6.23 | | |
| SLDREL | SOLDIERS RELIEF 121 | 0.0155990005 | $249,110 | $249,110 | $3.89 | | |
| COLLPLBOND | C OF CP BOND 644 | 0.4374241808 | $249,110 | $249,110 | $108.97 | | |
| COLLPLGEN | CITY OF CP 632 | 1.4453819216 | $249,110 | $249,110 | $360.06 | | |
| EMERGSER | EMS 147 | 0.3792580840 | $249,110 | $249,110 | $94.48 | | |
| EMSRFD | EMS REFUND 147 | 0.0000000000 | $249,110 | $249,110 | $0.00 | | |
| RURALLIB | RURAL LIBRARY 623 | 0.3710609029 | $249,110 | $249,110 | $92.43 | | |
| PORTRFD | PORT REFUND 640 | 0.0000000000 | $249,110 | $249,110 | $0.00 | | |
| PORTWWGEN | PORT OF WW 640 | 0.2460186015 | $249,110 | $249,110 | $61.29 | | |
| SD250BOND | SD #250 BOND 773 | 1.4560608159 | $249,110 | $249,110 | $362.72 | | |
| SD250GEN | SD #250 GENERAL 770 | 2.3880724087 | $249,110 | $249,110 | $594.89 | | |
| ST2 | STATE SCHOOL PART 2 600 | 0.8131451643 | $249,110 | $249,110 | $202.56 | | |
| STATESCHL | STATE SCHOOL 600 | 1.5158548041 | $249,110 | $249,110 | $377.61 | | |
| STREFUND | STATE REFUND LEVY 603 | 0.0000000000 | $249,110 | $249,110 | $0.00 | | |
| | Total Tax Rate: | 10.1104125603 | | | | | |
| | | | | Taxes w/Current Exemptions: | $2,518.61 | | |
| | | | | Taxes w/o Exemptions: | $2,518.61 | | |
Improvement / Building
| Improvement #1: | RESIDENTIAL | State Code: | 11 | 848.0 sqft | Value: | $189,110 |
| Exterior Wall: | PLYWOOD | Heating/Cooling: | WARM & COOLED AIR | | Number of Bathrooms: | 1 | Number of Bedrooms: | 2 | | Plumbing: | 6 | Roof Covering: | COMP SHINGLE |
|
| | Type | Description | Class CD | Sub Class CD | Year Built | Area |
| | MA | Main Area | 1 | 40 | 2000 | 848.0 |
| | SI1 | SITE IMPROVEMENT | 1 | 40 | 2000 | 1.0 |
| | ATG | Attached Garage | 1 | 40 | 2000 | 240.0 |
| | PRC | PORCH W STEPS, ROOF,CEILED | 1 | 40 | 2000 | 34.0 |
| | RPC | OPEN PORCH W/ROOF , CEILED | 1 | 40 | 2000 | 42.0 |
Sketch
Property Image
Land
| 1 | RES 1 | Converted: Residential | 0.0579 | 2520.00 | 0.00 | 0.00 | 1.00 | $60,000 | $0 |
Roll Value History
| 2026 | N/A | N/A | N/A | N/A | N/A |
| 2025 | $172,560 | $110,000 | $0 | $282,560 | $282,560 |
| 2024 | $236,380 | $60,000 | $0 | $296,380 | $296,380 |
| 2023 | $189,110 | $60,000 | $0 | $249,110 | $249,110 |
| 2022 | $189,110 | $60,000 | $0 | $249,110 | $249,110 |
| 2021 | $151,280 | $60,000 | $0 | $211,280 | $211,280 |
| 2020 | $126,070 | $60,000 | $0 | $186,070 | $120,945 |
| 2019 | $141,070 | $45,000 | $0 | $186,070 | $186,070 |
| 2018 | $104,500 | $45,000 | $0 | $149,500 | $149,500 |
| 2017 | $101,450 | $45,000 | $0 | $146,450 | $146,450 |
| 2016 | $101,450 | $45,000 | $0 | $146,450 | $146,450 |
| 2015 | $92,230 | $45,000 | $0 | $137,230 | $137,230 |
| 2014 | $80,200 | $45,000 | $0 | $125,200 | $125,200 |
| 2013 | $80,200 | $45,000 | $0 | $125,200 | $125,200 |
| 2012 | $89,500 | $45,000 | $0 | $0 | $0 |
| 2011 | $89,500 | $45,000 | $0 | $0 | $0 |
| 2010 | $71,000 | $45,000 | $0 | $0 | $0 |
| 2009 | $77,100 | $45,000 | $0 | $0 | $0 |
| 2008 | $69,300 | $18,000 | $0 | $0 | $0 |
| 2007 | $69,300 | $18,000 | $0 | $0 | $0 |
Deed and Sales History
| 1 | 03/06/2025 | SWD | STATUTORY WARRANTY DEED | SHULTZ KARAN L | MATEMANOSAK SUKUNYA & ROBERT BAILEY | | | $309,900.00 | 149021 | 2025-01163 |
| 2 | 10/01/2021 | SWD | STATUTORY WARRANTY DEED | JOYAL JEANNE M | SHULTZ KARAN L | | | $262,000.00 | 142593 | 2021-12046 |
| 3 | 06/13/2016 | SWD | STATUTORY WARRANTY DEED | JUNKE LYNN S | JOYAL JEANNE M | | | $149,900.00 | 130407 | 2016-04474 |
| 4 | 05/07/2010 | WARRANTY D | WARRANTY DEED | SMITH, GEORGIA F | JUNKE, LYNN S | | | $139,900.00 | 118441 | 2010-03541 |
| 5 | 08/14/2000 | WARRANTY D | WARRANTY DEED | | | | | $15,700.00 | 95627 | 3010-007742 |
Payout Agreement
| No payout information available.. |