Property
Account |
| Property ID: | 16258 | Abbreviated Legal Description: | BUTTS LOT 17 |
| Parcel Number: | 300802510017 | Agent Code: | |
| Type: | Real | | |
| Tax Area: | 328 - 400-M-5 | Land Use Code | 11 |
| Open Space: | N | DFL | N |
| Historic Property: | N | Remodel Property: | N |
| Multi-Family Redevelopment: | N | | |
| Township: | 8 | Section: | 2 |
| Range: | 30 |
Location |
| Address: | 83 MAIN ST WA 99323 | Mapsco: | |
| Neighborhood: | Burbank F SFR | Map ID: | |
| Neighborhood CD: | 212711 |
Owner |
| Name: | WATERS JAMES A JR | Owner ID: | 70814 |
| Mailing Address: | PO BOX 166 BURBANK, WA 99323 | % Ownership: | 100.0000000000% |
| | | Exemptions: | |
Taxes and Assessment Details
Values
| (+) Improvement Homesite Value: | + | $139,390 | |
| (+) Improvement Non-Homesite Value: | + | $0 | |
| (+) Land Homesite Value: | + | $35,700 | |
| (+) Land Non-Homesite Value: | + | $0 | |
| (+) Curr Use (HS): | + | $0 | $0 |
| (+) Curr Use (NHS): | + | $0 | $0 |
| | | -------------------------- | |
| (=) Market Value: | = | $175,090 | |
| (–) Productivity Loss: | – | $0 | |
| | | -------------------------- | |
| (=) Subtotal: | = | $175,090 | |
| (+) Senior Appraised Value: | + | $0 | |
| (+) Non-Senior Appraised Value: | + | $175,090 | |
| | | -------------------------- | |
| (=) Total Appraised Value: | = | $175,090 | |
| (–) Senior Exemption Loss: | – | $0 | |
| (–) Exemption Loss: | – | $0 | |
| | | -------------------------- | |
| (=) Taxable Value: | = | $175,090 | |
Taxing Jurisdiction
| Owner: | WATERS JAMES A JR | | |
| % Ownership: | 100.0000000000% | | |
| Total Value: | $175,090 | | |
| Tax Area: | 328 - 400-M-5 |
| CERFD | CURRENT EXPENSE REFUND 010 | 0.0000000000 | $175,090 | $175,090 | $0.00 | | |
| CURREXP | CURRENT EXPENSE 010 | 1.0175366760 | $175,090 | $175,090 | $178.16 | | |
| HUMNSERV | HUMAN SERVICES 119 | 0.0250000000 | $175,090 | $175,090 | $4.38 | | |
| SLDREL | SOLDIERS RELIEF 121 | 0.0155990005 | $175,090 | $175,090 | $2.73 | | |
| EMERGSER | EMS 147 | 0.3792580840 | $175,090 | $175,090 | $66.40 | | |
| EMSRFD | EMS REFUND 147 | 0.0000000000 | $175,090 | $175,090 | $0.00 | | |
| FD5EXP | FD #5 EXPENSE 689 | 1.2045331840 | $175,090 | $175,090 | $210.90 | | |
| RLBRFD | RURAL LIBRARY REFUND 623 | 0.0000000000 | $175,090 | $175,090 | $0.00 | | |
| RURALLIB | RURAL LIBRARY 623 | 0.3710609029 | $175,090 | $175,090 | $64.97 | | |
| PORTRFD | PORT REFUND 640 | 0.0000000000 | $175,090 | $175,090 | $0.00 | | |
| PORTWWGEN | PORT OF WW 640 | 0.2460186015 | $175,090 | $175,090 | $43.08 | | |
| SD400BOND | SD #400 BOND 793 | 0.0000000000 | $175,090 | $175,090 | $0.00 | | |
| SD400CAP | SD #400 CP 792 | 0.3443722657 | $175,090 | $175,090 | $60.30 | | |
| SD400GEN | SD #400 GENERAL 790 | 1.9278469916 | $175,090 | $175,090 | $337.55 | | |
| ST2 | STATE SCHOOL PART 2 600 | 0.8131451643 | $175,090 | $175,090 | $142.37 | | |
| STATESCHL | STATE SCHOOL 600 | 1.5158548041 | $175,090 | $175,090 | $265.41 | | |
| STREFUND | STATE REFUND LEVY 603 | 0.0000000000 | $175,090 | $175,090 | $0.00 | | |
| COROAD | COUNTY ROAD 115 | 1.6549953990 | $175,090 | $175,090 | $289.77 | | |
| CRPRD | COUNTY ROAD REFUND 115 | 0.0000000000 | $175,090 | $175,090 | $0.00 | | |
| | Total Tax Rate: | 9.5152210736 | | | | | |
| | | | | Taxes w/Current Exemptions: | $1,666.02 | | |
| | | | | Taxes w/o Exemptions: | $1,666.02 | | |
Improvement / Building
| Improvement #1: | RESIDENTIAL | State Code: | 11 | 794.0 sqft | Value: | $139,390 |
| Exterior Wall: | SHINGLE | Heating/Cooling: | FLOOR FURNACE | | Number of Bathrooms: | 1 | Number of Bedrooms: | 3 | | Plumbing: | 6 | Roof Covering: | COMP SHINGLE |
|
| | Type | Description | Class CD | Sub Class CD | Year Built | Area |
| | MA | Main Area | 1 | 20 | 1950 | 794.0 |
| | SI1 | SITE IMPROVEMENT | 1 | 20 | 1950 | 1.0 |
| | RPS | PORCH W/STEPS,ROOF | 1 | 20 | 1950 | 48.0 |
| | CPC | COVERED CARPORT/PATIO | 1 | 20 | 1950 | 228.0 |
Sketch
Property Image
Land
| 1 | RES 1 | Converted: Residential | 0.1561 | 6800.00 | 0.00 | 0.00 | 1.00 | $35,700 | $0 |
Roll Value History
| 2026 | N/A | N/A | N/A | N/A | N/A |
| 2025 | $168,320 | $35,700 | $0 | $204,020 | $204,020 |
| 2024 | $146,360 | $35,700 | $0 | $182,060 | $182,060 |
| 2023 | $139,390 | $35,700 | $0 | $175,090 | $175,090 |
| 2022 | $69,700 | $35,700 | $0 | $105,400 | $105,400 |
| 2021 | $43,560 | $35,700 | $0 | $79,260 | $79,260 |
| 2020 | $48,350 | $19,900 | $0 | $68,250 | $0 |
| 2019 | $48,350 | $19,900 | $0 | $68,250 | $0 |
| 2018 | $48,350 | $19,900 | $0 | $68,250 | $0 |
| 2017 | $43,960 | $19,900 | $0 | $63,860 | $0 |
| 2016 | $39,960 | $19,900 | $0 | $59,860 | $0 |
| 2015 | $39,960 | $19,900 | $0 | $59,860 | $0 |
| 2014 | $29,600 | $19,900 | $0 | $49,500 | $0 |
| 2013 | $29,600 | $19,900 | $0 | $49,500 | $0 |
| 2012 | $29,600 | $19,900 | $0 | $0 | $0 |
| 2011 | $29,600 | $19,900 | $0 | $0 | $0 |
| 2010 | $29,600 | $19,900 | $0 | $0 | $0 |
| 2009 | $31,000 | $10,200 | $0 | $0 | $0 |
| 2008 | $31,000 | $10,200 | $0 | $0 | $0 |
| 2007 | $31,000 | $10,200 | $0 | $0 | $0 |
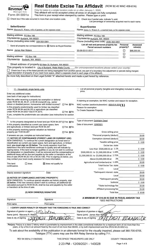
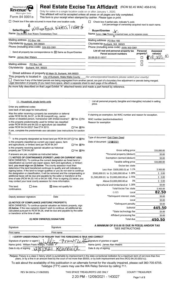
Deed and Sales History
| 1 | 12/09/2021 | QCD | QUIT CLAIM DEED | WATERS MARCENA R | WATERS JAMES A JR | | | | 143028 | 2021-14511 |
| 2 | 12/09/2021 | QCD | QUIT CLAIM DEED | THE BONNIE JEAN WATERS TESTAMENTARY TRUST | WATERS JAMES A JR | | | $33,000.00 | 143027 | 2021-14510 |
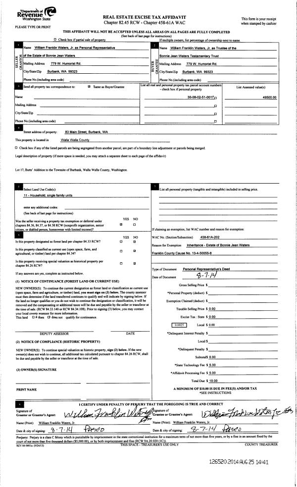
| 3 | 08/25/2014 | DPR | DEED OF PERSONAL REPRESENTATIVE | WATERS BONNIE | THE BONNIE JEAN WATERS TESTAMENTARY TRUST | | | | 126520 | 2014-06178 |
| 4 | 01/01/1958 | WARRANTY D | WARRANTY DEED | | WATERS, WILLIAM F SR | | | $0.00 | 0 | 287-407369 |
Payout Agreement
| No payout information available.. |