Property
Account |
| Property ID: | 16226 | Abbreviated Legal Description: | GREEN PARK TAX 1 & 7 LOT 1 BLK 11 |
| Parcel Number: | 360720511111 | Agent Code: | |
| Type: | Real | | |
| Tax Area: | 1 - OL-140-F | Land Use Code | 11 |
| Open Space: | N | DFL | N |
| Historic Property: | N | Remodel Property: | N |
| Multi-Family Redevelopment: | N | | |
| Township: | 7 | Section: | 20 |
| Range: | 36 |
Location |
| Address: | 724 VALENCIA ST WA 99362 | Mapsco: | |
| Neighborhood: | G-SFR | Map ID: | |
| Neighborhood CD: | 514011 |
Owner |
| Name: | ADAMS JOHN WALTERS | Owner ID: | 72571 |
| Mailing Address: | 724 VALENCIA ST WALLA WALLA, WA 99362 | % Ownership: | 100.0000000000% |
| | | Exemptions: | |
Taxes and Assessment Details
Property Tax Information as of
02/21/2026
Click on "Statement Details" to expand or collapse a tax statement.
* Please enter a valid date ** Please enter a valid date *
Statement Details |
| | TOTAL: | $0.00 | $0.00 | $0.00 | $0.00 | $0.00 | $0.00 |
|
| | $0.00 | $0.00 | $0.00 | $0.00 | $0.00 | $0.00 |
Values
| (+) Improvement Homesite Value: | + | $0 | |
| (+) Improvement Non-Homesite Value: | + | $707,790 | |
| (+) Land Homesite Value: | + | $0 | |
| (+) Land Non-Homesite Value: | + | $47,850 | |
| (+) Curr Use (HS): | + | $0 | $0 |
| (+) Curr Use (NHS): | + | $0 | $0 |
| | | -------------------------- | |
| (=) Market Value: | = | $755,640 | |
| (–) Productivity Loss: | – | $0 | |
| | | -------------------------- | |
| (=) Subtotal: | = | $755,640 | |
| (+) Senior Appraised Value: | + | $0 | |
| (+) Non-Senior Appraised Value: | + | $755,640 | |
| | | -------------------------- | |
| (=) Total Appraised Value: | = | $755,640 | |
| (–) Senior Exemption Loss: | – | $0 | |
| (–) Exemption Loss: | – | $0 | |
| | | -------------------------- | |
| (=) Taxable Value: | = | $755,640 | |
Taxing Jurisdiction
| Owner: | ADAMS JOHN WALTERS | | |
| % Ownership: | 100.0000000000% | | |
| Total Value: | $755,640 | | |
| Tax Area: | 1 - OL-140-F |
| CERFD | CURRENT EXPENSE REFUND 010 | 0.0000000000 | $755,640 | $755,640 | $0.00 | | |
| CURREXP | CURRENT EXPENSE 010 | 1.0175366760 | $755,640 | $755,640 | $768.89 | | |
| HUMNSERV | HUMAN SERVICES 119 | 0.0250000000 | $755,640 | $755,640 | $18.89 | | |
| SLDREL | SOLDIERS RELIEF 121 | 0.0155990005 | $755,640 | $755,640 | $11.79 | | |
| EMERGSER | EMS 147 | 0.3792580840 | $755,640 | $755,640 | $286.58 | | |
| EMSRFD | EMS REFUND 147 | 0.0000000000 | $755,640 | $755,640 | $0.00 | | |
| PORTRFD | PORT REFUND 640 | 0.0000000000 | $755,640 | $755,640 | $0.00 | | |
| PORTWWGEN | PORT OF WW 640 | 0.2460186015 | $755,640 | $755,640 | $185.90 | | |
| SD140BOND | SD #140 BOND 764 | 0.8342371393 | $755,640 | $755,640 | $630.38 | | |
| SD140GEN | SD #140 GENERAL 760 | 2.0646500647 | $755,640 | $755,640 | $1,560.13 | | |
| ST2 | STATE SCHOOL PART 2 600 | 0.8131451643 | $755,640 | $755,640 | $614.45 | | |
| STATESCHL | STATE SCHOOL 600 | 1.5158548041 | $755,640 | $755,640 | $1,145.44 | | |
| STREFUND | STATE REFUND LEVY 603 | 0.0000000000 | $755,640 | $755,640 | $0.00 | | |
| CWWBOND | C OF WW BOND 643 | 0.2760494372 | $755,640 | $755,640 | $208.59 | | |
| CWWGEN | CITY OF WW 631 | 1.6100204973 | $755,640 | $755,640 | $1,216.60 | | |
| CWWRFD | CITY OF WALLA WALLA REFUND 631 | 0.0000000000 | $755,640 | $755,640 | $0.00 | | |
| | Total Tax Rate: | 8.7973694689 | | | | | |
| | | | | Taxes w/Current Exemptions: | $6,647.64 | | |
| | | | | Taxes w/o Exemptions: | $6,647.64 | | |
Improvement / Building
| Improvement #1: | RESIDENTIAL | State Code: | 11 | 2437.0 sqft | Value: | $707,790 |
| Exterior Wall: | SIDING | Heating/Cooling: | WARM & COOLED AIR | | Number of Bathrooms: | 3 | Number of Bedrooms: | 4 | | Plumbing: | 12 | Roof Covering: | COMP SHINGLE |
|
| | Type | Description | Class CD | Sub Class CD | Year Built | Area |
| | MA | Main Area | 4 | 45 | 1910 | 2437.0 |
| | UPFL | Upper Floor (included in main area) | 4 | 45 | 1910 | 723.0 |
| | SI1 | SITE IMPROVEMENT | 4 | 45 | 1910 | 4.0 |
| | BASE | BASEMENT | 4 | 45 | 1910 | 1714.0 |
| | BPF | BASEMENT -PARTITIONED FINISH | 4 | 45 | 1910 | 700.0 |
| | STG1 | Sub Terrain Garage Single | 4 | 45 | 1910 | 1.0 |
| | S1F | Single One Story Fireplace | 4 | 45 | 1910 | 1.0 |
| | APP | APPLIANCE ALLOWANCE | 4 | 45 | 1910 | 1.0 |
| | OPS | OPEN PORCH W/STEPS | 4 | 45 | 1910 | 24.0 |
| | RPS | PORCH W/STEPS,ROOF | 4 | 45 | 1910 | 32.0 |
Sketch
Property Image
Land
| 1 | RES 1 | Converted: Residential | 0.1515 | 6600.00 | 0.00 | 0.00 | 1.00 | $47,850 | $0 |
Roll Value History
| 2026 | N/A | N/A | N/A | N/A | N/A |
| 2025 | $655,270 | $72,600 | $0 | $727,870 | $727,870 |
| 2024 | $655,270 | $72,600 | $0 | $727,870 | $727,870 |
| 2023 | $707,790 | $47,850 | $0 | $755,640 | $755,640 |
| 2022 | $615,470 | $47,850 | $0 | $663,320 | $663,320 |
| 2021 | $439,620 | $47,850 | $0 | $487,470 | $487,470 |
| 2020 | $366,350 | $47,850 | $0 | $414,200 | $414,200 |
| 2019 | $366,350 | $47,850 | $0 | $414,200 | $414,200 |
| 2018 | $366,350 | $47,850 | $0 | $414,200 | $414,200 |
| 2017 | $352,900 | $29,700 | $0 | $382,600 | $382,600 |
| 2016 | $352,900 | $29,700 | $0 | $382,600 | $382,600 |
| 2015 | $352,900 | $29,700 | $0 | $382,600 | $382,600 |
| 2014 | $352,900 | $29,700 | $0 | $382,600 | $382,600 |
| 2013 | $352,900 | $29,700 | $0 | $382,600 | $382,600 |
| 2012 | $352,900 | $29,700 | $0 | $0 | $0 |
| 2011 | $334,700 | $29,700 | $0 | $0 | $0 |
| 2010 | $317,300 | $29,700 | $0 | $0 | $0 |
| 2009 | $355,800 | $29,700 | $0 | $0 | $0 |
| 2008 | $355,800 | $29,700 | $0 | $0 | $0 |
| 2007 | $355,800 | $29,700 | $0 | $0 | $0 |
Deed and Sales History
| 1 | 03/23/2022 | QCD | QUIT CLAIM DEED | JOHN ADAMS INC | ADAMS JOHN WALTERS | | | $0.00 | 143737 | 2022-08342 |
| 2 | | REAL ESTAT | REAL ESTATE CONTRACT | JOHN ADAMS INC | | | | | 143737 | NO DEED |
| 3 | 01/04/2019 | SWD | STATUTORY WARRANTY DEED | 724 VALENCIA LLC | JOHN ADAMS INC | | | $415,000.00 | 136208 | 2019-00053 |
| 4 | 11/02/2017 | BARGAIN & | BARGAIN & SALE DEED | DAVENPORT TERRY DEAN & LISA SCHULTE | 724 VALENCIA LLC | | | $0.00 | 133608 | 2017-09183 |
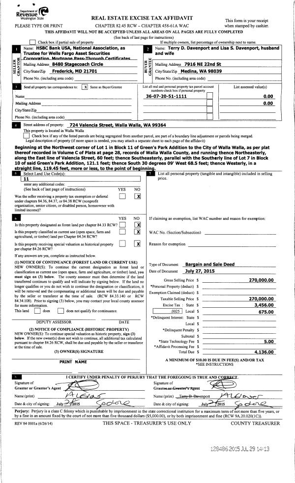
| 5 | 07/29/2015 | BARGAIN & | BARGAIN & SALE DEED | HSBC BANK USA NATIONAL ASSOCIATION | DAVENPORT TERRY DEAN & LISA SCHULTE | | | $270,000.00 | 128486 | 2015-06442 |
| 6 | 05/15/2014 | TRUSTEES D | TRUSTEE'S DEED | METRO JOHN G & NANCY | HSBC BANK USA NATIONAL ASSOCIATION | | | $362,905.00 | 125892 | 2014-03303 |
| 7 | 07/03/2006 | WARRANTY D | WARRANTY DEED | BYERLEY, JANET L | METRO, JOHN G & NANCY | | | $405,000.00 | 110666 | 2006-07843 |
| 8 | 12/19/2005 | WARRANTY D | WARRANTY DEED | RUBIN, GENEVA E | BYERLEY, JANET L | | | $250,000.00 | 109273 | 2005-15799 |
| 9 | 07/02/1980 | WARRANTY D | WARRANTY DEED | | | | | $18,000.00 | 0 | 1235-008154 |
Payout Agreement
| No payout information available.. |